建业·蓝海郑风酒店综合体,郑州/建筑
“直与曲,方与圆,明与暗,明确与暧昧,被界定与未定义……这些都像极了人与人的关系,这太有趣了。”
方圆之间是宇宙。悄悄的,我们唱完了一首时空礼赞。
——建筑师自述
"Straight and curved, square and round, light and dark, clear and ambiguous, defined and undefined... These are very much like the relationship between people, which is so interesting."
Between the square and the circle is the universe. Quietly, we finished a space-time tribute.
——Architect Readme

方圆之间 遇见艺术
“ PREFACE ”

我不想画一幅画,我想打开空间,创造一个新的维度,将它与无限伸展的宇宙相连……
我希望直曲在此相遇、方圆在此转化、时空在此交融、万物在此共生……
I don't want to draw a picture. I want to open space, create a new dimension and connect it with the infinite universe
I hope that Zhiqu will meet here, the square and circle will transform here, the space and time will blend here, and all things will coexist here

本案所在区位为河南未来陆空交通枢纽地带,属城市未来规划南拓之核心所在,同时承载了传承传统中原之文化与新兴豫州之未来的双重使命。
The location of this case is the future land and air transportation hub of Henan, which is the core of the South expansion of urban future planning. At the same time, it carries the dual mission of inheriting the culture of the traditional central plains and the future of the emerging Yuzhou.
故我们以描绘古郑国人文风貌、诗经中十五国风之一的“郑风”为名,取“为中原造出一片蓝海”为意,赋其名曰“蓝海郑风”。
Therefore, we take the name "Zheng Feng", which describes the style of ancient Zheng and one of the fifteen national styles in the book of songs, and take "creating a blue ocean for the Central Plains" as the meaning, and give it the name "Blue Ocean Zheng Feng".


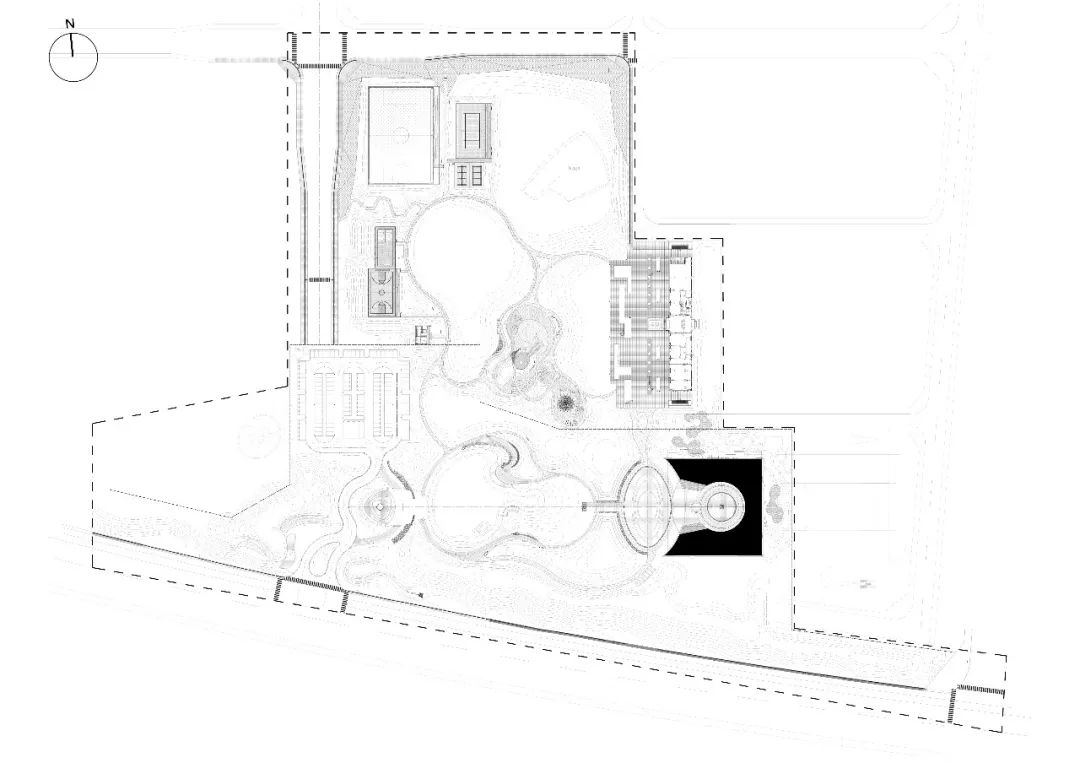
项目总占地3547亩,以“自成一城”的气势跳出了现有格局。在前期规划设计中,我们借鉴了《周礼·考工记》中“匠人营国,方九里,旁三门。国中九经九纬,经涂九轨。”和“南园北苑,前朝后市”的中国传统城市营造手法,同时融入本土中原文化符号,试图引古论今,从城市层面打造属于郑州的“国风城市桃花源”。
The project covers a total area of 3547 mu, jumping out of the existing pattern with the momentum of "forming a city by itself". In the preliminary planning and design, we drew lessons from "the craftsman runs the country with nine miles and three doors. The middle school has nine longitudes and nine latitudes, and the longitude is painted with nine tracks" And the Chinese traditional urban construction method of "South Garden, North Garden, former dynasty and future market", while integrating the local Central Plains cultural symbols, trying to introduce the past and discuss the present, and build a "national style urban peach blossom garden" belonging to Zhengzhou from the urban level.


“我国古代造园者,大都以建筑开路。沈元禄记猗园谓:‘奠一园之体势者,莫如堂。’盖园以建筑为主,树石为辅,树石为建筑物之连缀物也。”
——陈从周《续说园》
"In ancient China, most of the people who built gardens opened the way with architecture. Shen Yuanlu wrote about Yiyuan garden, saying:" the body of a garden is no more than a hall. "The garden is mainly built with architecture, supplemented by trees and stones, which are the connecting objects of buildings."
——Continuation garden by Chen Congzhou

本案中的酒店在园区的重要地位可与中国古典园林中的厅堂在园林中的位置相比拟。计成在《园冶》中提出:“凡园圃立基,定厅堂为主。”并对“堂”赋以定义:“堂者,当也。谓正向向阳之屋,以取堂堂高显之义。”
The important position of the hotel in this case in the park can be compared with the position of the hall in the Chinese classical garden in the garden. Ji Cheng put forward in "Yuanye": "where the garden is based, the hall shall be the main." And the "Hall" is defined as: "the hall should also be. It is called the house facing the sun, so as to take the high meaning of the hall."

整个大区以“南园北苑”为整体造园规划逻辑。而在“南园”中,我们引入中国古园林造园思路“以建筑开路”——将最重要的建筑作为整个序列的起点,其以一种开放的姿态面向城市,成为城市级别的公共客厅。
The whole region takes "South Garden and North Garden" as the overall Gardening Planning logic. In the "South Garden", we introduced the idea of Chinese ancient gardens "opening the way with architecture" - Taking the most important architecture as the starting point of the whole sequence, which faces the city with an open attitude and becomes a public living room at the city level.
建筑正面更是以一道圆弧来呼应接纳前方的主体园林,大有环抱接纳、阴阳相融之势。
The front of the building is echoed by an arc to accept the main garden in front, which has the potential of embracing and integrating Yin and Yang.




在古人的宇宙观里,“宇宙”二字拆解开就是时空。“宇”字脱胎于居住的“屋宇”,《说文》中曰:“宇,屋边也。”“宙”字理解为“由宇中出入”,《说文》中曰“宙,舟舆所极覆也。”
In the ancient view of the universe, the word "universe" is time and space. The word "Yu" was born out of the "house" in which you live. In Shuowen, it says, "Yu is near the house." The word "Zhou" is understood as "going in and out of the universe". In Shuowen, it is said that "Zhou and Yu are extremely covered."
“四方上下曰宇,古往今来曰宙。”应该是古人对宇宙与时空关系最为贴切的概括。
"The four directions are called the universe, and the past and present are called the universe." It should be the most appropriate generalization of the relationship between the universe and time and space by the ancients.


先秦两汉时期流行的宇宙模式“盖天说”,将天穹看作覆碗状,把大地看作向四面八方无限延伸的方形基座,方圆迭合成上下两个平面,形成“天圆地方”的格局。
The universal model "covering the sky theory" popular in the Pre-Qin and Han Dynasties regards the sky as a bowl shape and the earth as a square base extending infinitely in all directions. The square and circle are overlapped into the upper and lower planes, forming a pattern of "round sky and place".

设计希望能体现建筑与中国传统宇宙观的关系,最终提炼出形式上的“三道弧、两个口与一束光”。
The design hopes to reflect the relationship between architecture and Chinese traditional cosmology, and finally refine the formal "three arcs, two openings and a beam of light".


西立面作为建筑的主要展示面,可以概括为由主要的三道弧线构成。其中第一道弧线为寰宇华盖之弧,意为空间。第二道弧为四方五位之弧,意为时间。老子说:“大方无隅。”方在其终极之处,是与圆和谐统一的,这是方与圆在中国哲学上的辩证与统一。
As the main display surface of the building, the West facade can be summarized as three main arcs. The first arc is the arc of the universal canopy, which means space. The second arc is the arc of four directions and five figures, which means time. Lao Tzu said, "generosity has no corner." In its ultimate place, square is harmonious and unified with circle, which is the dialectic and unity of square and circle in Chinese philosophy.
时间和空间已在第一道穹宇之弧和第二道四方之弧之间形成,第三道入口之弧则是整个立面形式序列的中心焦点。
Time and space have been formed between the first dome arc and the second square arc, and the third entrance arc is the central focus of the whole facade form sequence.


当建筑倒影于水面之上,虚实相间的两道弧线形成了一只眼睛,而通过这只眼睛仿佛望向时间与空间转换的交汇之处。
When the building is reflected on the water surface, two arcs alternating between virtual and real form an eye, which seems to look at the intersection of time and space.

整个建筑有两个开口,一个朝向西侧的花园,另外一个朝向天空。入口引导行人的汇聚,朝向天空给人予仰望与反思。当人由外至内行进,并矗立于此,顷刻间或许能感悟“大方无隅,大音希声,大象无形……”
The whole building has two openings, one facing the west garden and the other facing the sky. The entrance guides the gathering of pedestrians towards the sky and gives people a look up and reflection. When people walk from the outside to the inside and stand here, they may realize that "there is no corner for generosity, great music has the faintest notes, and great form Is beyond shape are invisible..."


建筑内部的圆形空间,取意于中国传统建筑中的“庭”与“院”的概念,又如中国古时的良渚玉琮,内圆外方,中穿圆孔,贯通天地。
The circular space inside the building is derived from the concept of "court" and "courtyard" in Chinese traditional architecture. It is also like the Liangzhu jade Cong in ancient China, which has an inner circle and an outer side, with a round hole in the middle and connects heaven and earth.
庭院连通天地,有别于外部与室内空间,为建筑空间打开了另一个维度,时空在此交融。
The courtyard connects heaven and earth, which is different from the external and indoor space. It opens another dimension for the architectural space, where time and space blend.

在中国古意中,“光”是被辩证理解的。《潜夫论》中论:“上古之世,太素太时,未有形光。若斯久之,翻然自化,清浊分别,变成阴阳,阴阳有体,实生两仪。”
In ancient Chinese meaning, "light" is dialectically understood. "Qian Fu Lun" in the theory: "in ancient times, too plain and too time, there is no form of light. If this is long, it will turn into yin and Yang, clear and turbid, and become Yin and Yang. Yin and Yang have body, and there are two kinds of yin and Yang."


可见,古人辩证的将光理解为光与影,光影即指阴阳。当一束光照入建筑之中,一切有了明暗阴阳对比,光耀与阴翳随着时间的变化在明暗交界之处不停的辗转交融,掠过建筑的每一处空间,让原本唯物的场所因为光影与时间的融入形成了各自阴阳乾坤,有了生命起来。
It can be seen that the ancients dialectically understood light as light and shadow, which refers to Yin and Yang. When a beam of light shines into the building, there is a contrast between light and shade, and the light and shade constantly blend at the junction of light and shade with the change of time, passing through every space of the building, so that the original materialistic places form their own Yin and Yang heaven and earth and have life because of the integration of light, shadow and time.

中庭的正中心摆放着我们原创设计的艺术装置“时光容器”,它置于空间交汇的中心,以三角锥体的呼应圆形内庭,直曲对比,明暗交融,与倒影一起如沙漏般暗示着时光的流逝。
In the center of the atrium is placed the art device "time container" originally designed by us. It is placed in the center of the intersection of space. It echoes the circular atrium with a triangular cone, with straight and curved contrast and light and shade blending. Together with the reflection, it suggests the passage of time like an hourglass.




绘有漂亮泥金化的光亮的涂蜡首饰盒、文几、搁板等,有的看上去花里胡哨、俗恶不堪。假如使这些器物周围的空白充满黑暗,再用一盏灯光或一根烛火代替日光或电灯映照过去,那你看吧,原来花里胡哨的东西就会立刻变得深沉而凝重起来。
There are bright waxed jewelry boxes, tables, shelves, etc. painted with beautiful clay gold. Some look fancy and vulgar. If the blank space around these objects is filled with darkness, and then a light or a candle is used to reflect the past instead of sunlight or electric light, you see, the original fancy things will immediately become deep and dignified.
方圆之间是宇宙。悄悄的,我们唱完了一首时空礼赞。——阴翳礼赞
Between the square and the circle is the universe. Quietly, we finished a space-time tribute—— Shadow praise

在形式设计和材料选择上,我们希望形式有着东方特有的美,故“浑厚”与“蕴藉”便成了与色泽与融入关系对应的关键词。
In terms of form design and material selection, we hope that the form has the unique beauty of the East, so "thick" and "implication" have become the key words corresponding to the relationship between color and integration.


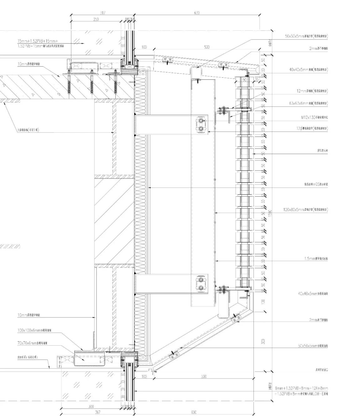
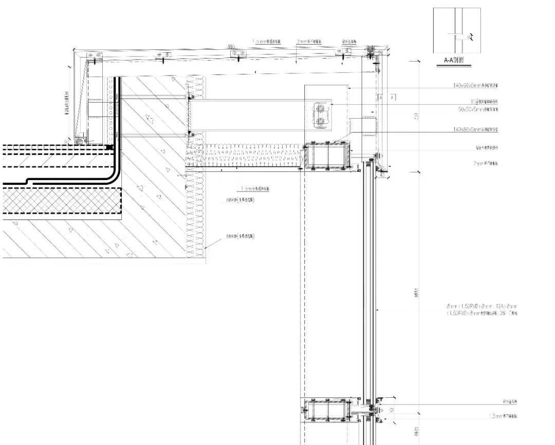
相之于简单直白的美,浑厚的质感更加委婉含蓄。在光泽度方面,我们选用了磨砂陶砖、亚光复合铝塑板与拉丝不锈钢等一系列亚光材质,又根据其之间不同的光泽特性在高度上进行排列组合。
Compared with the simple and straightforward beauty, the thick texture is more euphemistic and implicit. In terms of gloss, we selected a series of matte materials such as frosted ceramic brick, matte composite aluminum-plastic plate and brushed stainless steel, and arranged and combined them in height according to their different gloss characteristics.

蕴藉,有含蓄、隐而不露的意思,我认为这是东方人特有的、能欣赏的一种高级的美。为了达到应有的蕴藉,“融入”与“消隐”成了我们着重思考的两个关键词。
Implication has the meaning of being implicit and hidden. I think it is a kind of advanced beauty that Oriental people can appreciate. In order to achieve the proper implication, "integration" and "blanking" have become the two key words we focus on.
我们希望建筑能尽可能融入所在环境。基座要沉稳有力,有中原深厚磅礴之势,融入大地,为此我们选用暗灰色陶砖与原色拉丝不锈钢组合,配以强调水平关系的立面构图,从色调与韵律两方面尽可能让基座与中原大地遥相辉映。
We hope that the building can be integrated into the environment as much as possible. The base should be calm and powerful, with the deep and majestic potential of the Central Plains, and integrate into the earth. Therefore, we choose the combination of dark gray ceramic brick and primary color brushed stainless steel, coupled with the elevation composition emphasizing horizontal relationship, so as to make the base shine remotely with the Central Plains as far as possible from the two aspects of tone and rhythm.











建筑一层分为外部曲直相交的方形砖墙与内部圆筒砖墙,由10万块陶砖组合而成。通过大面积实体错缝拼接与局部渐变镂空的砖墙组合方式,达到纹理渐变效果,其中在转角与窗户交接处分别做了锐角收分处理,让细节更为挺拔。
The first floor of the building is divided into a square brick wall with intersecting external curves and an internal cylindrical brick wall, which is composed of 100000 ceramic bricks. Through the combination of large-area solid staggered stitching and local gradual hollowed out brick wall, the texture gradual change effect is achieved, in which the sharp angle points are collected at the junction of corner and window to make the details more straight.


拱形吊顶的结构系统为空间复合网架系统,不仅作为悬吊下方木纹拱形吊顶的主要幕墙龙骨,同时也是建筑主体受力结构的一部分。
其上方分别承载了建筑内部特色大台阶空间及用于三层大屋顶悬挑的双柱系统,也是整体建筑结构的难点所在。
The structural system of the arched ceiling is a spatial composite grid system, which is not only the main curtain wall keel for suspending the wood grain arched ceiling below, but also a part of the main stress structure of the building.
The upper part of it carries the characteristic large step space inside the building and the double column system used for the cantilevered three-story roof, which is also the difficulty of the overall building structure.



为了尽可能达到极致的悬挑尺度与轻薄度,我们采用了两种创新结构体系—筒型双柱系统与屋顶复合桁架系统,悬挑达到12米之多,最薄处仅为15公分。屋面选用暗灰蓝色铝镁锰直立锁屋面,在鸟瞰中与天空大地相融。
In order to achieve the ultimate cantilever scale and lightness as much as possible, we have adopted two innovative structural systems - tubular double column system and roof composite truss system. The cantilever is as much as 12 meters and the thinnest part is only 15 cm. The dark gray blue aluminum magnesium manganese vertical lock roof is selected as the roof, which blends with the sky and earth in the bird's eye view.


一层平面图,First floor plan

二层平面图,Second floor plan

三层平面图,Third floor plan

西立面图,West elevation

南立面图,South elevation

北立面图,North elevation

东立面图,East elevation

剖面图,profile





项目名称:建业·蓝海郑风酒店综合体
业主单位:建业住宅集团(中国)有限公司
建筑设计:上海日清建筑设计有限公司
总建筑师:宋照青 赵晶鑫
设计团队:张铎 陈良鹏 冀林娟
建筑面积:5110㎡
设计时间:2019.10
竣工时间:2020.11
Project Name: Jianye · blue ocean Zhengfeng hotel complex
Owner: Jianye Housing Group (China) Co., Ltd
Architectural design: Shanghai Riqing Architectural Design Co., Ltd
Chief architect: Song Zhaoqing, Zhao Jingxin
Design team: Zhang duo, Chen Liangpeng, Ji Linjuan
Building area: 5110 ㎡
Design time: October 2019
Completion time: November 2020














