厂房重生 – “在地主义”新作,北京 /建筑
“在地主义 – 建筑形态能够融入周边环境,取材亦来自于当地的设计理念。”本项目位于北京后花园风景区附近的后白虎涧村,地处整个村落的最南侧,紧邻乡道。建筑原址为北京惠伦家具厂, 是一栋坐南朝北的二层建筑,属于上个世纪80年代典型的红砖结构
“Localism – architectural form can be integrated into the surrounding environment, and the design concept that materials all come from the local place. “The project is located in Bai Hujian Village, near the Back Garden Scenic Area, Beijing. It’s in the south of the entire village, close to the township road. The original site is Beijing Huilun Furniture Factory, which is a two-story building faced north. It was built in the typical red brick structure in the 1980s.
▼建筑外貌,view of the architecture
因常年无人打理,最终设计师面对的,是一个红砖与钢结构结合的、杂乱无序的建筑形态。原建筑一层为6间员工宿舍,每个宿舍面积17m²,南侧没有采光,房间内阴暗潮湿;二层东西各一个露台,中间为木门与木雕展厅,一二层由一个外挂的钢制楼梯相连。因本项目是定位于“微度假”概念的精品酒店,如何平衡周边村落的生态环境,在增加房间的采光量的同时保证其私密性,提升客房的舒适度,成为了整个设计改造中的重点。
Due to perennial unattended, what designer faces is a combination of red brick and steel structure architectural form of highly disorder. The original first floor of the building have six staff quarters, each dormitory has an area of 17m ², without light in the south side and the room is dark and humid; the east and west of the secondary floor each has a terrace, wooden doors and wood carvings exhibit hall are in the middle. Two floors are connected by an external steel staircase. Because this project aims at building a boutique hotel with the “micro holiday” concept, how to balance the ecological environment of surrounding villages, increasing the amount of room lighting while ensuring its privacy, enhance the comfort of the room has become the focus of the entire design and transformation.
▼建筑改造过程,process of reconstruction
建筑的设计改造中,“在地主义”的设计理念贯穿始终。为了融入周边环境,设计师保留了建筑原有的红砖结构,并在南侧人视线以上的区域统一开镀膜玻璃高窗,既隔绝了室外乡道人流对室内环境的干扰,又最大限度的引入光线,与此同时,近处绿树的姿态,远处西山的形状也被悉数纳入窗内。建筑外线的公共区域曾堆放了近千块闲置的西山花岗岩,处理起来费时费力,在衡量了建筑与周边环境的关系之后,设计师决定因地制宜,利用原花岗岩原料堆放成“山”,砂石回填为“水”,建筑外围形成自然水系与禅意。
“Localism” design concept was adopted throughout the design and transformation of the architecture. In order to integrate into the surrounding environment, the designer retains the original red brick structure of the building, and use coated glass window in the area above people’s eyesight in the south side, which both isolate the indoor environment from the interference of outdoor rural road traffic and introduce the maximum light into the room. At the same time, the view of near trees and the shape of the distance Xishan can also be enjoyed through the windows. The public area of the building used to be stacked by nearly a thousand pieces of idle Xishan granite, which require great time and effort to be dealt with. In measuring the connection between the building and the surrounding environment, the designer decided to make use of the local conditions, having original granite raw materials stacked into “mountain” and letting gravel filled to become the “water”. Then an external natural water system and Zen are formed outside the architecture.
▼建筑外堆放近千块闲置花岗岩, the public area of the building used to be stacked by nearly a thousand pieces of idle Xishan granite
▼设计保留了原有的建筑红砖结构,the designer retains the original red brick structure of the building
建筑北侧的设计也极尽考究,为了营造良好的视觉感受,每户一层均设置大面积玻璃幕开窗,并增加了8平米的入户花园,在营造窗景的同时,又保证了每个房间的私密性,形成独特的客房体验。
The design of the north side of the building is also of high elegant. In order to create a good visual experience, each household are set with a large area of glass curtain window and a 8 square meters’ home garden is added, which ensure the privacy of each room while creating a window view, forming a unique guest experience.
▼大面积立面开窗与入户花园的设置,既营造窗景又保证私密性
a large area of glass curtain window and a 8 square meters’ home garden is added, which ensure the privacy of each room while creating a window view
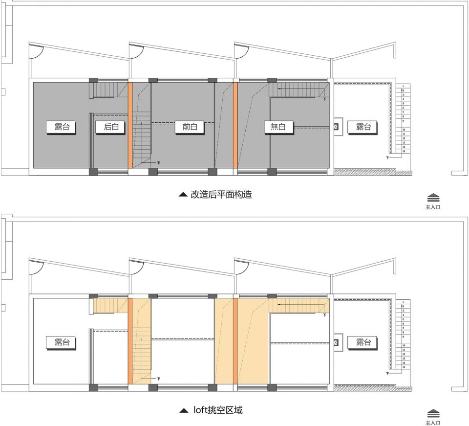
考虑到房间的舒适度与完整性,设计师对一层原有的六个房间进行了重新规划。东侧第一间被设置为酒店的厅堂,连同东侧二层露台一起,兼具接待、娱乐、用餐等功能。剩余的五间房被重新划分为三间客房,拆除了部分楼板,将楼上楼下打通,形成了三间loft,可满足一个家庭(3-4人)入住,并从东向西分别以無白、前白、后白为客房命名。室内所有的机电,水暖管线全部裸露明线管,保留材质本身的质感与属性;橱柜门板直接采用镀锌钢板基层材质制作而成,摩登而归本。
Considering the comfort and integrity of the room, the original six rooms on the first floor were re-planned by the designer. The first room in the east side, together with the east side of the two-story terrace, are designed to be the hotel’s hall with functions such as reception, entertainment, dining and so on. The remaining five rooms were redivided into three rooms, dismantling some of the floor, letting upstairs and downstairs to be connected, forming three loft which are able accommodate a family (3-4 people) to stay. And the three rooms are named as Wu Bai, Qian Bai and Hou Bai from the east to the west. All electrical and plumbing lines in the room are all exposed to the light, retaining the texture and the property of the material. Cabinet door are directly made by galvanized steel base material which is modern and natural.
▼厅堂外立面,elevation of the hall
▼厅堂,the hall
▼东侧二层露台,the two-story terrace
▼房间前白一层,first floor of room Qianbai
▼房间无白一层,first floor of room Wubai
▼房间后白一层,first floor of room Houbai
卧室被统一设置在loft的二层,使得活动空间与休息空间上下分隔互不干扰。室内屋面的处理上,设计师用原建筑拆除下来的老房梁在内部重新搭接并覆以芦苇,再以灯带描绘房梁形状,渲染空间氛围;床头背板由整块原木切片加工制成,古朴自然的气质尽现。西侧的露台则被纳入相邻的客房后白中,成为了客房的一部分。不同于前两间客房南北朝向的床位设计,后白的床位被设置成东西朝向,躺在床上透过飘窗便可欣赏到西山、日落等自然景观;飘窗可以全部打开与二层屋面花园内外互联;阳台上特意用红砖砌筑了长榻,晚间可坐于榻上,品茶观星,把酒夜话。
The bedroom is unified set in the second floor of the loft, making living space and rest space separated from each other without interference. As for the Indoor roof treatment, the designer removed the old beam from the original building and re-lapped it in the room and covered it with reeds. Then it was depicted with light belt, showing the shape of the beam, rendering the space atmosphere. The bedside backplane is made by the processed whole piece of wood, simple and natural. The west side of the terrace was incorporated into the adjoining room, Hou Bai. And it became part of the room. Different from the north-to-south direction of the bed in the first two rooms, beds in Hou Bai are set to lie form east to west. The Western Hills, sunset and other natural landscape can be enjoyed through the bay window when lying in bed. Bay windows can all be opened, connecting the garden on the second floor. Balcony is specially set with long couch made of red brick, where is a good place to sit on and have some tea while enjoying the view of stars in the evening.
▼客房后白飘窗,bay window of room Houbai
▼房间前白二层,second floor of room Qianbai
▼西侧露台由竹篱笆包裹,纳入房间后白中,surrounded by the fence, the terrace become part of room Houbai
设计细节中,所有客房的洗手盆均采用西山的花岗岩石打磨制作;楼梯上悬挂的吊灯由西山林地的木段掏制而成;门牌则是由老房拆除下来的瓦片锻造的,既是北京西北合院特色,又赋予了老材料新的功能用途。
In the details of the design, the wash basins of all the rooms are made from the granite stone of the Western Hills. The chandeliers hanging above the stairs are made from the wood segments of the Western Hills woodland. The door is forged by the old tiles removed from the old building, which not only has features of Northwest courtyard but also makes new use of the old material.
▼门牌来自老房瓦片/桌面细节,the plate is made of the old tile/detail of the table
▼房间后白,床头细节/洗手台由花岗原石打磨而成,room Houbai, detail/the sink was made by granite
整个室内空间的设计上,无论是硬装还是软装,都尽可能的从周边环境中汲取灵感和用材,丰富空间内涵,最大的体现“在地主义”的设计立意。旧宅外堆放的近千块花岗岩被设计师反复利用,不仅打造了建筑外围的禅意小景,还铺就了入户景观步道,并用于室内空间中厅堂桌台、卫生间洗手台的制作。除此之外,西山林场的木段也被设计师收集过来,加工成楼梯上悬挂的吊灯;房间前白的浴缸背景,是门前一颗老树加工而成的实木挂板;老房拆除下来的瓦片被制作成房间的门牌,既是北京西北合院特色,又赋予了老材料新的功能用途。
The design of the entire interior space, whether hard or soft style, draws inspiration and timber as much as possible from the surrounding environment, enriching the space connotation and explaining the idea of “in the land”. The huge amounts of granite stacked outside the old house was repeatedly used by the designer, which not only created a view of Zen outside the building, but also paved the landscape pail leading to the room, and be used to make the indoor hall table and bathroom toilet. In addition, the logs in Xishan forest had also been collected by the designer, processed into hanging chandeliers above the staircase; The bathtub background of room Qian Bai is a solid wood hanging board made from an old tree in front of the door. The old tiles removed from the tiles were made into the doorplate of the room, not only has the characteristics of the Beijing Northwest Institute, but also makes new use of old materials.
▼西山林场木段加工成楼梯上悬挂的吊灯
the logs in Xishan forest had also been collected and processed into hanging chandeliers above the staircase
▼老树加工而成的实木挂板用作浴缸背景,the bathtub background of is a solid wood hanging board made from an old tree in front of the door
旧屋改造既赋予了原有建筑新的生命,又激发了设计中的无限可能。在约束中寻求突破,在新旧之间找到平衡,乡宅改造的最大价值不只在于居住环境的改善,更多的是作为乡村与城市的纽带,向繁忙而浮躁的都市人群普及乡村生活、助力乡村发展,这其中,设计的社会学意义得以体现。
The transformation of the old house not only gives the original building a new life, but also inspired infinite possibilities in the design. Breakthrough is sought in the constraints and balance is found in the old and the new. The greatest value of rural building transformation is not only to improve the living environment, but more as a link between the village and the city and introduce rural life to the busy and impetuous urban population, helping the development of village, in which the sociological significance of design is reflected.
▼灯带描绘建筑外轮廓,the light belt draws the buildings contour
▼改造后平面图,plan after reconstruction
▼立面图,elevation
▼剖面图,section
设计公司:CCDI卝智室内设计
主持设计师:李秩宇
项目策划:张鹏、许文峰
项目位置:中国/北京/昌平
设计面积:340㎡
设计/竣工时间:2017.03—2017.07
项目类型:民宿
材料:红砖、花岗岩毛石、水泥、原木、黑铁、镀锌钢板
摄影师:鲁飞、任恩彬
联系卝智:GWdesign@yeah.net
Corporation: CCDI Grand Wisdom interior Design
Creative Design: Li Zhiyu
Location: Changping/Beijing/China
Area: 340㎡
Design/Completion Time: Mar 2017—Jul 2017
Project Type: Homestay
Decoration Materials: Red brick, granite rock, cement, logs, black iron, galvanized steel
Photographer: Lu Fei, Ren Enbing
Email: GWdesign@yeah.net












































