木岛摄影工作室,上海 / 室内
栖斯设计接受木岛工作室委托,为他们设计新的摄影工作室。这个300平方米的场地被划分为三个功能空间,分别是1:内部人员拍摄使用的白棚空间。2:内部办公空间。3:充当商业摄影拍摄背景的实景棚空间。其中实景棚空间是本次设计的重点。
Qisi Design was commissioned by Woodland to design their new photography studio. The 300-square-meter site is divided into three functional spaces: 1.white studio for internal staff, 2. office space, 3.the real scene studio to serve as a backdrop for commercial photography shoots. The real scene studio is the focus of this project.
▼室内空间概览,overview of the interior space
木岛工作室在商业产品摄影上有很强的专业性和创新性。在开始设计之前,我们首先分析了木岛工作室的摄影作品。希望从中找出好的商业摄影作品的规律,或者一类商业摄影项目的特点。这样我们便可以站在摄影师拍摄的角度去设计实景棚空间,创造出有利于商业摄影拍摄的场所。剥离出图面的叙事含义,只从形式层面分析,我们发现了立体主义绘画与当代商业摄影的紧密联系。概况总结为以下几点。1:浅透视; 2:空间层化结构; 3:图面能够引发观者的深入探索以及多元解读。
Woodland has strong professionalism and innovation in commercial product photography. First, we analyze the photographic works of Woodland. We hope to find out the rules of good commercial photography, or the characteristics of a type of commercial photography project. In this way, we can design the real scene studio from the perspective of the photographer, and create a place that is conducive to commercial photography. Stripping out the narrative meaning of the picture and analyzing it only from the formal level, we find the close connection between cubist painting and contemporary commercial photography. The overview is summarized in the following points: 1. Shallow perspective; 2. spatial stratification; 3. The drawing can lead to in-depth exploration and multiple interpretations of the viewer.
▼立体主义绘画与当代商业摄影图像的关联分析
an analysis of the relationship between cubist painting and contemporary commercial photographic images
经过近百年的发展,立体主义对当代摄影、设计产生巨大的影响。它已经渗透到每个人的日常生活中。不论是否经过专业的立体主义绘画训练。摄影师、设计师都在潜移默化的使用立体主义的原则进行创作。受众也潜移默化的用立体主义的原则来做判断。我们在设计实景影棚这一专门生产照片的场所时,需要脱离形式的表象,用形式的底层逻辑设计,这样才能创造出具有更多形式可能性的拍摄空间。
After nearly a hundred years of development, Cubism has had a huge impact on contemporary photography and design. It has penetrated into everyone’s daily life. Regardless of whether they have undergone professional cubist painting training, photographers and designers are subtly using the principles of cubism to create creations, and the audience is also subtly using the principles of cubism to make judgments. When we design the real scene studio, a place specializing in the production of photos, we need to break away from the appearance of the form and design with the underlying logic of the form, so as to create a shooting space with more formal possibilities.
▼整体轴测图,axonometric drawing
柯林罗的《透明性》为我们提供了理论指导。《透明性》将立体主义绘画与空间形态设计联系在一起。提供了一种理性的形式设计思路。在这个项目中,我们将空间的透明性原则与相机镜头取景规律结合,进行具体的空间设计。根据场地的形态,设计师将三种功能由南至北排列。南侧是供内部人员使用的白棚空间,北侧是对外出租的实景棚空间。两个场地之间通过办公空间分隔。
Colin Rowe’s “Transparency” provides us with theoretical guidance. It links cubism painting with spatial form design. Provides a rational form of design ideas. In this project, we combine the principle of spatial transparency with the rules of camera lens framing to carry out specific space design. According to the form of the site, the designer arranged the three functions from south to north. The south side of the site is the studio for internal personnel, and the north side is the real scene studio for external rental. The two spaces are separated by office space.
▼通向二层内部办公区的景观楼梯以及通向白棚的通道
landscape stairs leading to the office area on the second floor and the corridor leading to the white studio
在场地的入口处,设计师通过叠加空间坐标系的方式创造出一个多义的入口空间。这个区域起到了衔接室内外空间的作用,同时也提供了一处拍摄场地。旋转后的坐标系、建筑原本的坐标系以及新置入的圆弧坐标系共同叠加在一起。形体碰撞又相互渗透。此处空间获得了现象的透明。设计师将靠近外侧的楔形空间处理成砖红色。并且将入户门内移,这样场地便获得了一个具有明显昭示性的半室外空间。通过设置阵列的方洞,楔形空间与露台获得了连接。阳光通过方洞照射进来,形成均匀的光斑。此处也成为整个场地第一处拍摄场景。
At the entrance of the site, the designer created an ambiguous entrance space by superimposing the spatial coordinate system. This area connects indoor and outdoor spaces, and also provides a filming location. The rotated coordinate system, the original coordinate system of the building and the newly placed arc coordinate system are meshing together, and the shapes collide and penetrate each other. Here space acquires the transparency of phenomena. The designer treated the wedge-shaped space close to the outside into brick red, and moved the entrance door inward, so that there is a semi-outdoor space with obvious signs in the site. By setting the array of square holes, the wedge-shaped space is connected to the terrace. Sunlight shines in through the square hole, forming a uniform light spot. This also became the first scene of the whole site.
▼三重坐标系的叠加,superposition of triple coordinate systems
▼楔形入口空间在自然光下的效果
the effect of the wedge-shaped entrance space in natural light
楔形空间的色彩、墙面方洞阵列产生的肌理以及光斑在墙地面形成的图案共同构成此处拍摄场景的层化结构。在场景中置入的被拍摄物被多个层级包裹,在此处的取景即产生了立体主义绘画的特征。
The color of the wedge-shaped space, the texture produced by the array of square holes on the wall, and the pattern formed by the light spot on the wall and the ground together constitute the stratification structure of the scene here. The subjects placed in the scene are wrapped in multiple layers, and the framing here produces the characteristics of cubist painting.
▼通向场地内部的圆弧形通道,arc-shaped passage leading to the interior of the site
摄影师可以通过弧形的通道灵活的调整透视灭点的位置,通道后方的场景可以有选择的暴露或隐藏。设计师在通道的末端设置阵列的立柱与草地的元素以丰富画面的层级。通过镜头取景,前中后的景别坍塌到一个平面。表达空间深度的透视被消弱。此处形成一处“浅空间”。
The photographer can flexibly adjust the position of the vanishing point of perspective through the arc-shaped channel, and the scene behind the channel can be selectively exposed or hidden. At the end of the passage, the designer set the columns of the array and the elements of the grass to enrich the layers of the picture. Through the lens framing, the front, middle and back scenes collapse to a plane. The perspective that expresses the depth of space is diminished. A “shallow space” is formed here.
▼多个层级的取景角度,viewing angles for multiple layers
▼平台、造型立柱、楼梯、草坡、原始结构柱以及通向白棚拍摄区的通道的叠加
superposition of platforms, molding columns, stairs, grassy slopes, original structural columns, and the corridor to the white studio
▼白棚拍摄场地看向实景棚场地,view from the white studio to the real scene studio
项目场地是由工业厂房改造而成。厂房原有的梁、柱以及楼板都按原始状态保留。位于主要路径上的结构柱上段穿过夹层的楼板暴露在空间内,下段被半透明的茶色玻璃包裹,成为场地的鲜明特征。
The project site was transformed from an industrial plant. The original beams, columns and floor slabs of the workshop are preserved in their original state. The upper section of the structural column located on the main path is exposed to the space through the floor slab of the mezzanine, and the lower section is wrapped in translucent tan glass, which becomes a distinctive feature of the site.
▼原柱结构,original column
整个拍摄场地均采用最基本的元素:白色墙体与灰色地坪。除了造价的考量,单纯通过形体以及形体之间的关系所创造的具有丰富性的场地有着更加持久的审美体验以及摄影师进行二次创作的可能性。塑造空间的层化结构是实景棚设计的重点。
The most basic elements are used throughout the shooting area: white wall and grey floor. In addition to the consideration of cost, the rich site created by shapes and their relationship has a more lasting aesthetic experience and the possibility of second creation by photographers. Shape spatial stratification is the focus of the real scene studio design.
▼方向1,空间层化结构图解;方向2,空间层化结构图解
direction 1 illustration of the spatial stratification; direction 2 ,illustration of the spatial stratification
▼圆柱体以及通过门洞看到的内部空间、平台、草坡所组成的拍摄背景
the shooting background consists of the cylinder and the interior space, platform and grass slope seen through the doorway
在综合考量了摄影师实际拍摄中的机位、器材摆放需求以及场地自身特色。设计师确定了两个主要的取景方向。在这两个方向上进行空间形态的层化叠加。
In the comprehensive consideration of the photographer’s actual shooting machine location, equipment placement requirements and site characteristics. The designer identified two main framing directions. The spatial stratification is superimposed in these two directions.
▼方向1楼梯与方向2楼梯形成的构图
the composition formed by the stairs in direction 1 and the stairs in direction 2
▼从圆柱体内部看向立柱,view from the inside of the cylinder towards the column
被拍摄的物件、人物出现在任意层级中,充当整体构图的一个要素。其他层级涌入画面中,相互叠加、遮挡,形成多义的、引人探索的画面。
The objects and people being photographed appear in any layers and act as an element of the overall composition. Other layers pour into the picture, superimpose and block each other, forming an ambiguous and exploratory picture.
▼方向2,多个层级的取景角度,direction 2 ,viewing angles for multiple layers
▼墙和墙洞形成的层级,layers formed by walls and wall openings
▼墙洞与布帘形成的层级,layers formed by wall holes and curtains
在这样的场景中,拍摄创作可以获得更多自由度与可能性。
In such a scene, shooting creation can gain more degrees of freedom and possibilities.
▼地面造型、坐凳、墙面灯带的叠加,superposition of floor modeling, benches, and wall light strips
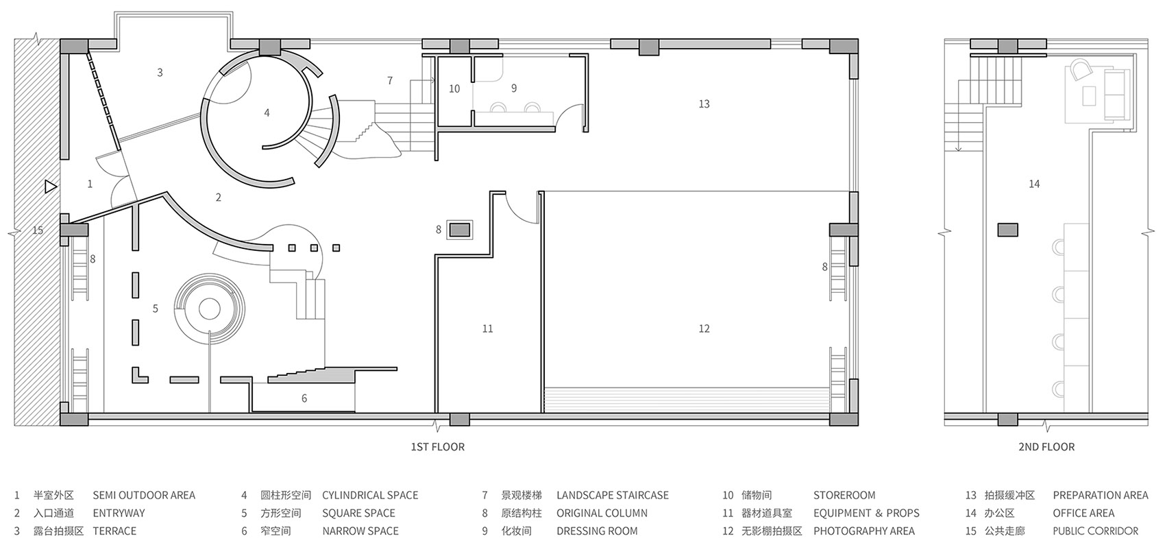
▼平面图,plan
项目信息
项目名称:木岛摄影工作室
设计方:栖斯设计
项目设计 & 完成年份 设计:2021.07-2021.08 施工:2021.09-2021.12
主创及设计团队 主创:陈茜茜、傅翀 团队成员:单仁杰
项目地址 上海市宝山区真大路560号
建筑面积 340㎡
摄影版权 吕晓斌
客户 木岛工作室
品牌 艺术涂料、白色乳胶漆
Project information
Project Name: kishima photography studio
Designer: Qisi design
Project design & completion year design: July 2021 to August 2021 Construction: September 2021 to December 2021
Chief creator and design team chief Creator: chenxixi, Fu Zhen team member: Shan Renjie
Project address: No. 560, Zhenda Road, Baoshan District, Shanghai
Building area 340m2
Photography copyright lvxiaobin
Customer's Wooden Island studio
Brand art paint, white emulsion paint




































