南岔湾·石屋部落民宿,湖北/建筑设计
前话
该项目位于湖北宜昌的一个小山村。整个村落由两条水系环绕,承半环形山地与农田组成,山体大部分为自然原石,项目房子全由当地石料砌筑而成。
Antecedents
The project is located in a small mountain village in Yichang, Hubei Province. The whole village is surrounded by two water systems, which are composed of semi-circular mountains and farmland. Most of the mountains are natural raw stones, and the houses of the project are all made of local stones.

源于当地的民俗传承与古法石墙的砌筑方式,因地制宜,因势利导,顺应当下的生活方式。
It originates from the local folk custom inheritance and the masonry method of ancient stone walls. It is a way of life that adapts to local conditions, guides the situation and adapts to the situation.
▼建筑位于群山之中,The building is located in the mountains

在湖北省宜昌市夷陵区分乡镇北部,有几十座古老的石屋组成的村落南岔湾村,约百户村民居住在石头砌成的房子里,一栋栋错落有致的石屋,掩映在花田青山之间,这是一个以“石屋”闻名的村庄。石屋墙壁全用大小不一的长石堆砌而成,木梁上盖着瓦片,大多建于上世纪六七十年代,最长已经有百余年历史。从清代起,南岔湾人就地取材,用丰富的石材资源建房居住,从而在这里形成了石屋群。这些石屋在建造中并没有使用任何粘合物质,充分体现了南岔湾人的聪明和智慧。岁月沧桑,世代更迭,石屋维系着世世代代南岔湾人的生息,石屋印证着南岔湾村庄的发展,石屋也牵动着远方游子的浓浓乡愁。
In the north of Yiling District, Yichang City, Hubei Province, there are dozens of ancient stone houses in nanchawan village. About 100 villagers live in stone houses, one by one among the green hills in Huatian. This is a village famous for its "stone houses". The walls of the stone houses are all made of feldspar of different sizes. The wooden beams are covered with tiles. Most of them were built in the 1960s and 1970s, and have a history of more than 100 years. Since the Qing Dynasty, nanchawan people have taken local materials and built houses with rich stone resources, thus forming stone houses here. These stone houses did not use any bonding materials in construction, which fully reflects wisdom and wisdom of the nanchawan people. With the vicissitudes of time and the change of generations, the stone house has maintained the livelihood of nanchawan people from generation to generation. The stone house has confirmed the development of nanchawan village, and also affected the nostalgia of distant travelers.

房子由原村落的两个兄弟的石屋,外部小石块堆砌而成,肌理混乱,工艺粗糙,但由于时间的沉淀而变成真实。屋内由木结构加土砖砌筑,年久失修,已支撑不了石墙的重量。
The house is made up of two brothers' stone houses in the original village, with small stones piled outside. The texture is chaotic and the process is rough, but it becomes real due to the sedimentation of time. The house is built with wood structure and earth bricks. It is in disrepair for a long time and can no longer support the weight of the stone wall.
▼建筑正面外观,保留古法石墙砌筑方式,The facade appearance of the building retains the masonry method of ancient stone wall


为了保留石墙的肌理,把原有的木结构更改为钢架结构。石墙开启大面积玻璃窗,进行适当的拆除和反砌。两栋石屋中间嵌入一个钢结构玻璃体作为入口前厅与天井,后方增加一把楼梯至二层,保留石墙内外的一体化设计方式。
In order to preserve the texture of the stone wall, the original wood structure was changed into a steel frame structure. Large area glass windows shall be opened on the stone wall for proper demolition and reverse masonry. A steel structure glass body is embedded in the middle of the two stone houses as the entrance vestibule and patio, and a staircase is added to the second floor at the rear, retaining the integrated design method of inside and outside the stone wall.
▼两栋石屋中间嵌入一个钢结构玻璃体,其余部分保留石墙肌理,A steel structure glass is embedded in the middle of the two stone houses, and the stone wall texture is retained in the rest


▼建筑后部,在两栋石屋之间置入楼梯,At the rear of the building, place stairs between the two stone houses


▼两栋石屋之间形成天井,A patio is formed between the two stone houses


一层设有西式的咖啡厅和围合式壁炉,客人谈天说地,畅聊人生,另一侧则是中式传统的书、香、茶、画,再配置一个餐厅,以满足不同入住客人的需求。
On the first floor, there is a western style coffee shop and a enclosed fireplace, where guests can talk about their lives. On the other side, there are traditional Chinese books, incense, tea and paintings, and a restaurant is configured to meet the needs of different guests.
▼从外部看向客厅,石墙开启大面积玻璃窗,Looking at the living room from the outside, the stone wall opens large-area glass windows

▼客厅,西式的咖啡厅和围合式壁炉,Lliving room, western style coffee shop and enclosed fireplace


▼楼梯,Stairs

▼户型多样的客房,结合石墙与钢材,Guest rooms of various types, combined with stone walls and steel


▼飘窗,可欣赏室外田园风景,Floating windows allow you to enjoy the outdoor rural scenery


结语
山水田园,古村石屋。依稀记得巴东人毛老师的山歌,清亮悠扬,听之不厌。石屋部落更想表达一种画境,畅想自然与人的融合。
Epilogue
Landscape and countryside, ancient village stone house. I vaguely remember the folk songs of Mr. Mao from Badong. They are clear and melodious, and I never get tired of listening to them. Shiwu tribe wants to express a kind of painting and imagine the integration of nature and people.

项目图纸
Project drawings
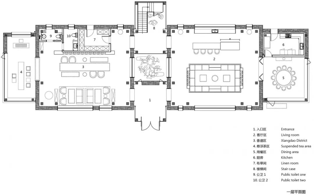
▼一层平面,First floor plan

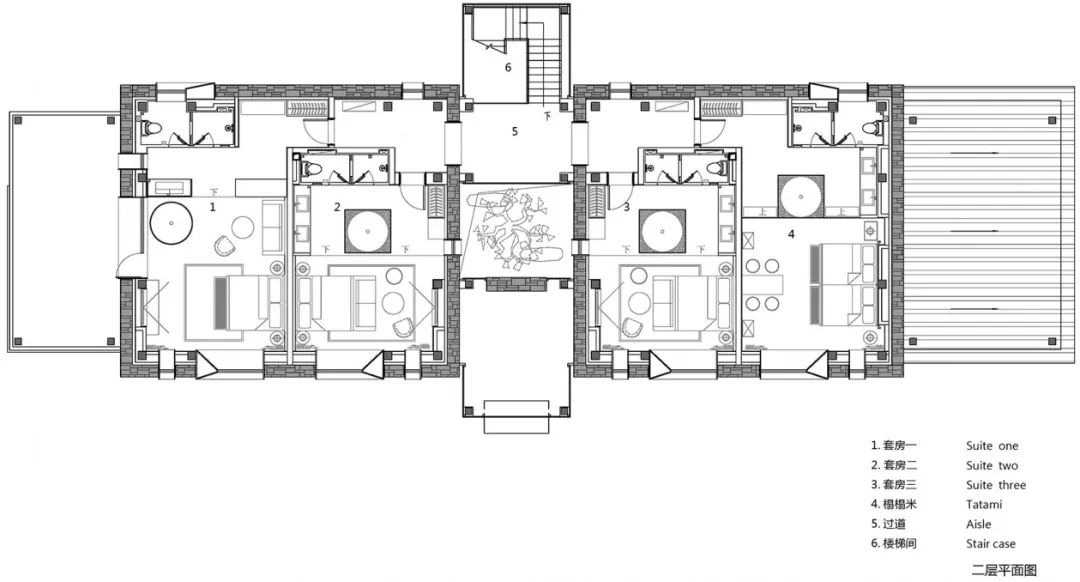
▼二层平面,Second floor plan

▼立面,Elevation


▼剖面,Profile









南岔湾·石屋部落民宿由中国美术学院风景建筑设计研究总院进行建筑设计。石屋部落民宿外部小石块堆砌而成,肌理混乱,工艺粗糙,但由于时间的沉淀而变成真实。屋内由木结构加土砖砌筑,现有的建筑物已年久失修,旧木结构无法承受石墙的重量。为了保护石墙的结构和石墙的肌理,把原有的木结构更改为钢架结构,并进行适当的拆除和反砌。建筑外观保留古法石墙砌筑方式,石墙开启大面积玻璃窗,整体内外塑造更讲究建筑与环境的融合,空间与自然的关系,可视的窗景意为画境。这里设有西式的咖啡厅和围合式壁炉,客人可在这里谈天说地,畅聊人生;这里还有中式传统的书、香、茶、画,再配置一个餐厅,以满足不同客人的需求。山水田园,古村石屋。石屋部落更想表达一种画境,畅想自然与人的融合。
Nanchawan · Shiwu tribe homestay is designed by the General Institute of landscape architecture design and research of China Academy of fine arts. The stone house tribal homestay is made of small stones stacked outside. The texture is chaotic and the process is rough, but it becomes real due to the sedimentation of time. The house is built with wood structure and earth bricks. The existing buildings have been in disrepair for a long time, and the old wood structure can not bear the weight of the stone wall. In order to protect the structure and texture of the stone wall, the original wood structure is changed into a steel frame structure, and appropriate demolition and reverse masonry are carried out. The appearance of the building retains the ancient stone wall masonry method. The stone wall opens a large area of glass windows. The overall internal and external shaping pays more attention to the integration of architecture and environment, the relationship between space and nature, and the visual window scenery means the painting. There are western style coffee shops and enclosed fireplaces here, where guests can talk about their lives; There are also traditional Chinese books, incense, tea and paintings, and a restaurant is configured to meet the needs of different guests. Landscape and countryside, ancient village stone house. Shiwu tribe wants to express a kind of painting and imagine the integration of nature and people.

项目信息
项目名称:南岔湾·石屋部落民宿
文章分类:旅游民宿
设计公司:中国美术学院风景建筑设计研究总院
项目地址:湖北宜昌夷陵区
项目规模:900平方米
获奖案例:金块奖
项目年份:2014年后
Project information
Project Name: nanchawan Shiwu tribal homestay
Article category: Tourist homestay
Design company: landscape architecture design and Research Institute of China Academy of Fine Arts
Project address: Yiling District, Yichang, Hubei
Project scale: 900 square meters
Award case: gold nugget Award
Project year: after 2014














