中国新疆区域数据网络控制中心,新疆/建筑
数字网络控制中心设计中心意在整合所有功能空间,营造统一庄重并且现代的外部形态,令来访者过目不忘,同时契合园区外部环境。在设计中,我们将建筑功能分成两大主要部分:机房区,主要包括各个计算机房及其辅助功能用房;对外展览区,包括接待、休息、展示及办公功能。两大功能空间上垂直分布,机房区位于下部,结合广场设计成大台阶及基座,外部展示区则被设计成为漂浮在基座之上的方舟。整体形象简单纯粹,同时庄重而不失现代感。建筑设计功能空间的上下复合避免了参观流线与辅助流线的交叉:主要办公及参观人流由正面大台阶上到二层平台,在此设有接待领导参观的入口大厅和接待团体参观的入口大厅,两者由内庭院分隔,使不同的参观人流互不干扰,机房工作人员和设备则由建筑东西两侧的辅助入口进入机房区。建筑上部采用暖灰色石材铝蜂窝板,塑造建筑坚实的体量感,并与入口门厅大面玻璃幕墙形成强烈对比。基座和大台阶采用深色石材,稳重厚实,平衡了建筑上部飘逸张扬的形态,使建筑整体和谐平稳。
Base is located in the middle of xinjiang karamay city, near Karamay City People’s Government and the Municipal Intermediate People’s Court, around the base will become Karamay important administrative office center with public cultural and sports center, it is an important node in the city functions.The project is located in the Xinjiang Oilfield headquarters office area is the development of Xinjiang energy science and technology industrial base, development office and a variety of functions in one, is to demonstrate an important window for the outcome of the development of Xinjiang in the new era.Oil industry is a pillar industry in the development of xinjiang, the design of a building form has raised the bow, is about to set sail. Looking out from the entrance to the square to the building, construction is like an open door, to meet the people across the country to witness the new development of xinjiang.
▼项目外观,project exterior
中国石油新疆区域数字网络控制中心是新疆油田公司为满足其生产决策指挥与油田信息化发展需求,建造的一栋兼具生产指挥与调度、数据中心机房与信息运行监控中心等多功能的生产指挥与信息运行中心大楼。华都设计(HDD)在设计招标中脱颖而出,全程参与完成本项目的设计工作。项目规划面积65521㎡,建筑面积48961㎡,本项目建成后将集成区域数据中心机房,数字城市数据中心机房,中国石油数据中心机房,云计算中心机房,对广泛的信息资源进行统一组织和有效管理。帮助新疆进行城市信息化的全面推进。整合多媒体信息网络,地理信息系统等基础设施平台,整合了城市信息资源。 建立电子政务、电子商务、科教信息系统、劳动和社会保障信息系统、网上教育、远程医疗系统、逐步实现郭明经济和社会信息化,建设信息化社区。最终帮助城市形成一个体系完善、功能健全、组织有序的数字信息体系。
PetroChina’s Xinjiang Regional Data Network Control Center in Karamay is a new headquarter building for production management, data monitoring and server facilities. To improve its production management and strategize an information network for its oil fields, PetroChina Xinjiang Oilfield Company organized a competition, in which Shanghai HuaDu Architecture and Urban Design Group (HDD) had won and was commissioned to design the building.The project will function as an efficient, centralized headquarter for information resource management that will further assist Xinjiang to develop its municipal information infrastructure. With a gross floor area of 48,961 m2, and a planning area of 65,521 m2, the building intersects server rooms for Digital City Data Center, PetroChina Data Center, and Cloud Computing Center. This converges urban information resources including multimedia information networks, geographic information system and other information infrastructures. With a long-term goal to construct an organized, multifunctional smart city information system, the frameworks for e-government, e-commerce, science and education information, social security information, distant learning and telemedicine will be gradually set up.
▼项目近观-建筑功能为生产指挥与信息运行中心大楼,close view to the building which acts as a command and information operation center
项目主要建筑物为数控中心,设计以“戈壁方舟”为意向,建筑的形态形似一向上升起的船头,寓意着扬帆远航,以具有几何感的造型象征着帆船行进的动态感。建筑设计手法现代大气,主入口处30余米的钢结构悬挑与大台阶设计使建筑整体形态具有很强的震撼感,重构了克拉玛依油田办公区域的整体天际线。建筑主体立面采用暖灰色石材铝蜂窝板,塑造建筑坚实的体量感,并与入口门厅大面玻璃幕墙形成非常鲜明的对比。基座和大台阶采用稳重厚实的深色石材,平衡了建筑上部飘逸张扬的形态,使建筑整体和谐平稳。远瞰建筑整体,颇具乘风破浪、一飞冲天的恢弘气势。
The data network control center took the design concept of “an ark floating on the wavy dunes of the Gobi Desert”, in a dynamic geometric form that symbolizes a ship’s bow rising from tides. The concept is articulated through a set of modern design languages. The entrance space framed by a 30m cantilevered steel structure and horizontal steps creates an imposing spatial experience. Its bold figure reshapes the skyline of the Karamay oil field’s administrative area. The façade is composed of warm grey aluminum honeycomb panels to emphasize solid massing in contrast with the foyer’s large glass wall. To balance the visual heaviness of the upper part of the building, the floor and entrance steps are tiled with dark stone. Viewed from a distance, the center’s volume conveys a sense of momentum and vigor.
为了实现漂浮在基座之上的方舟建筑形态以及业主对项目高标准的功能定位要求,数控中心建筑空间有多处错层,主屋面高度由31.17m变到11.20m,从平面形状、高墙造型、楼板连续性等均特别不规则,列入国家超限建筑工程。在设计过程中,由于层面构造与观景通廊采用大悬挑,且在其端部再支撑跨度达27.4m,空中观光廊成为本工程结构安全考虑的重点部分。设计团队对主楼的抗震性能化进行论证工作,邀请多位超限评审专家对项目的抗震设计进行了评审,并在技术突破和数据佐证下得到了全国超限审查的一致通过。
To accurately unite its form of an ark floating beyond the base and its high-standard function, the design uses a staggered plan. With the height of the roof falls from 31.17m to 11.20m, floor plans and enclosing walls become irregular as floors spilt into staggered layers. The project was listed ‘exceed-code irregular building structure’ in China, and thus has gone through an examine-and-approve process in terms of seismic performance. With an in-depth research and unique technical breakthroughs supported by data, the design team demonstrated the project in a jury formed by exceed-code structure specialists and eventually gained approval from the authority.
▼设计以“戈壁方舟”为意向,Gobi Ark as design concept
▼建筑主体立面采用暖灰色石材铝蜂窝板,并与入口门厅大面玻璃幕墙形成对比,the main facade of the building is made of warm gray stone and aluminium honeycomb board, which are in contrast with the large glass curtain wall of the entrance hall
▼立面细节,elevation details
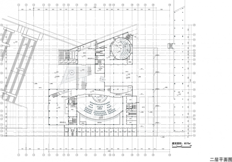
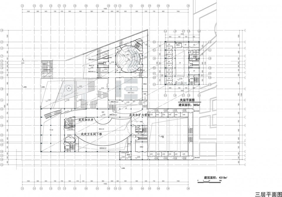
数控中心的建筑主要功能分为两大部分:1)机房区,主要包括各个计算机房及其辅助功能用房,位于建筑的地下一层与一层区域;2)对外展览区,包括接待、休息、展示及办公功能,其中二层为指挥中心和视听室,三层、三层夹层和四层为办公区域。两大功能空间上下垂直分布,机房区位于下部,结合广场设计成大台阶及基座,外部展示区则被设计成为漂浮在基座之上的方舟。机房区的安全防护等级更为直观地体现了本项目的重要程度。华都设计与IBM(国际商业机器有限公司)进行合作设计,引入目前业界最知名、最权威的数据中心标准组织和第三方认证机构UptimeInstitute的UptimeTIER等级认证 ,遵循世界上仅有极少数数据中心参照的Uptime Institue 《Data Center Site Infrastructure Tier Standard》 TierIV 标准,充分确保了数据中心的基础设施可用性、可靠性及运维管理服务能力,致力于向新疆油田公司提供国际一流的机房环境、云计算及各类综合数据服务。
The data network control center is vertically zoned by two major programs: 1) Server rooms and related facilities that locate on the ground floor and basement, using the base of the building volume and the space below the entrance steps. 2) The exhibition area that takes up the upper part of the building, including space for reception, leisure and office. First floor is for command center and auditorium. Second floor, third floor, and staggered floors in between are for offices.The server facility space is designed under high security standards due to its municipal significance. HDD cooperates with International Business Machines Corporation (IBM) to develop its design, by introducing the standard Tier Classification System created by Uptime Institute into design evaluation. Uptime Institute is the most renowned and authoritative third-party organization to evaluate data centers and set standards at present. The center’s design follows a Tier IV standard of the Data Center Site Infrastructure Tier Standard, which ensures the infrastructure’s serviceability, reliability, functional capacity, and easy maintenance. This will provide international first-class standard physical environment and data services to PetroChina Xinjiang Oilfield Company.
▼二层为指挥中心和视听室,command center and audiovisual rooms on the second floor
▼三层、三层夹层为办公区域,the third floor with its mezzanine are office areas
就项目的交通动线设计而言,综合考虑了不同区域的安全需求,将数据中心人流、物流进行分区管理和控制,实现无交叉混流的交通动线组织。同时功能空间的上下复合避免了参观流线与辅助流线的交叉:主要办公及参观人流由正面大台阶上到二层平台,在此设有接待领导参观的入口大厅和接待团体参观的入口大厅,两者由内庭院分隔,使不同的参观人流互不干扰,机房工作人员和设备则由建筑东西两侧的辅助入口进入机房区。
The project’s circulation design is also conceived through overlaying security requirements with program zoning. Different user groups and interflows of goods have separate access control. Vertical program zoning minimizes the chance of visitor circulation intersecting with service circulation. The majority of office staffs and visitors are directed to the first floor entrance through steps. Two entrance halls separated by an atrium channel different groups of visitors, one for inspectors from the authority, the other for group visitors. Devices and staffs working at server rooms enter through service entrances on the east and west side of the building.
内部交通动线运用高科技的隔离技术实现参观功能。总控中心大厅为跃层结构,设置跃层参观廊,紧急处理中心用玻璃隔断分隔。为保持良好的声学特征,玻璃隔墙安装电动窗帘。电动窗帘的动作可与指挥或者参观功能进行有效集成,实现该区域针对不同人员在不同交通流线的功能操作。外部参观动线设计为环形参观流线,注重参观空间的景观连续性。参观者依次经过围绕中庭展开的连续环形空间序列,最终登至屋顶游览,沿途拥有流畅丰富的空间体验。建筑景观绿化设计与空间环境相结合,在建筑入口大台阶设计水景及花坛,形成连续的景观界面;沿建筑周边设计的多块集中绿地,相互辉映,形成丰富多层次的景观效果;在建筑内部设计多个景观庭院,创造优良的室内小环境,以求达到协调、优美、宜人的建筑空间环境。
The internal visiting route is separated by hi-tech measures. A ramp gallery wanders through staggered floors and surrounds the command center hall. The emergency response center is isolated in glass walls with electric blinds. To maintain a good acoustic environment for the center, the electric blinds can be automated into different modes, and thus adapt for various visiting purposes.External visiting activities follow a circular route with a rich spatial hierarchy of landscapes. Following a circular ramp surrounding the central courtyard, different layers of landscape will unfold before visitors reaching the top of the roof for a open view. The project’s landscape design is conceived with different spatial conditions created by the massing. The waterscape and parterre form a coherent interface with the horizontal entrance steps. Vegetated green spaces surrounding the building create a dialogue and a rich layer of landscape. Green atriums shape beautiful micro-environments within the building, so as to form a balanced, humanistic relationship between nature and the built environment.
▼建筑景观绿化设计与空间环境相结合,landscape design is combined with space environment
▼沿建筑周边设计的多块集中绿地,形成丰富多层次的景观效果,there are many green spaces surrounded the building, forming rich and diverse landscape effects
▼总平面图,site plan
▼立面图,elevations
建筑公司:上海华都建筑规划设计有限公司(HDD)
主创建筑师::董巍巍
建筑设计团队:沈毅、董巍巍、郑晓鸣、谭春勇、仇容、何宇巍、姜爱荣、张新
结构设计团队:周振、袁志立、汪国勋、张永强、齐晓哲、李美琦
电气设计团队:任福胜、张晓青、张弋、吴利华、曹玉浩、陈羽
给排水设计团队:蒋毅、陈露华、宋丽敏、张伟、高力
暖通设计团队:柴昀梁、程岭松、曲东阳、罗涛
项目完成年份:2018
建筑面积: 48961㎡
Construction Company: Shanghai Huadu Architectural Planning & Design Co., LTD. (HDD)
Chief Architect: Dong Weiwei
Architectural design team: Shen Yi, Dong Weiwei, Zheng Xiaoming, Tan Chunyong, Qiu Rong, He Yuwei, Jiang Irong, Zhang Xin
Structural design team: Zhou Zhen, Yuan Zhili, Wang Guoxun, Zhang Yongqiang, Qi Xiaozhe, Li Meiqi
Electrical design team: Ren Fusheng, Zhang Xiaoqing, Zhang Yi, Wu Lihua, Cao Yuhao, Chen Yu
Water supply and drainage design team: Jiang Yi, Chen Luhua, Song Limin, Zhang Wei, Gao Li
Hvac design team: Chai Yunliang, Cheng Lingsong, Qu Dongyang, Luo Tao
Project completion year: 2018
Building area: 48,961 square meters



























