阳光城愉景湾,上海/室内
客户要求(生活方式、喜好):喜欢明亮大气的空间,希望做的小而精。
Customer requirements (lifestyle, preferences): I like bright and atmospheric space, and I hope to make it small and refined.

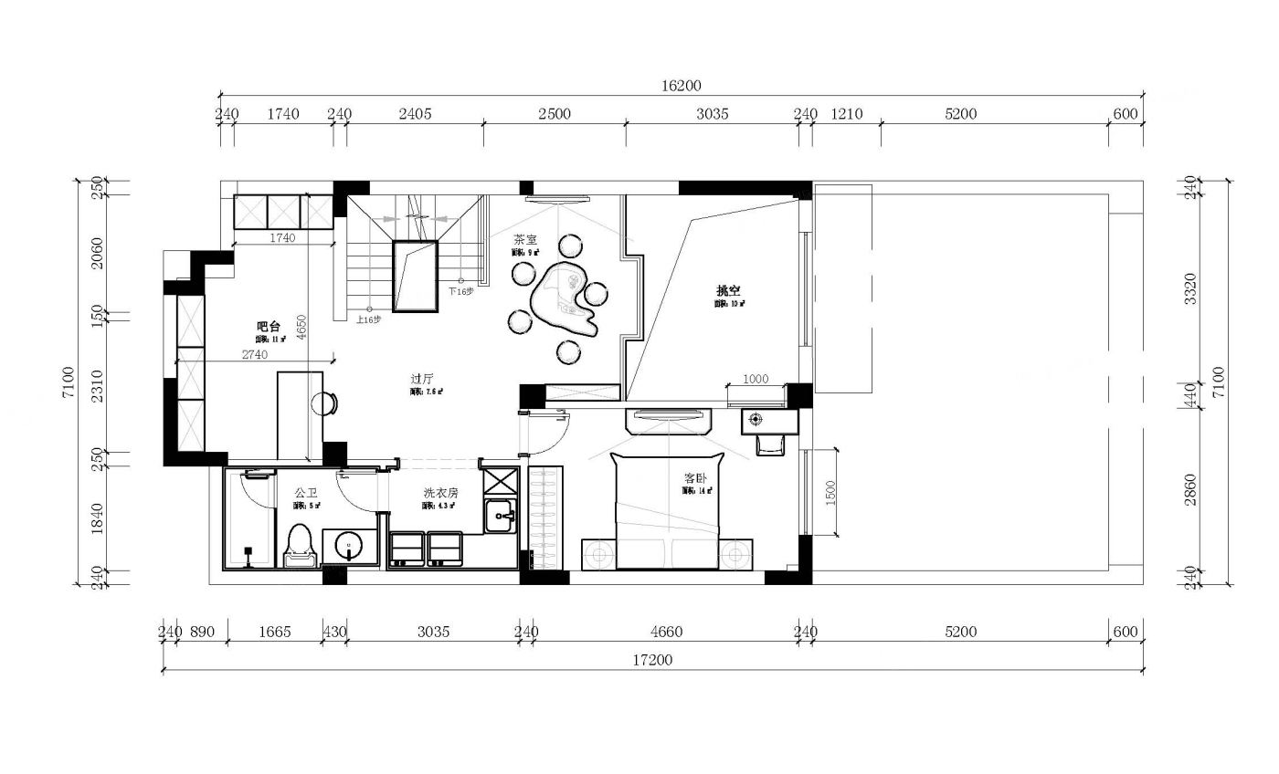
户型分析(户型缺点):地下室采光不是最理想,只有一个天窗位置。
House type analysis (house type disadvantages): the basement lighting is not the best, only one skylight position.

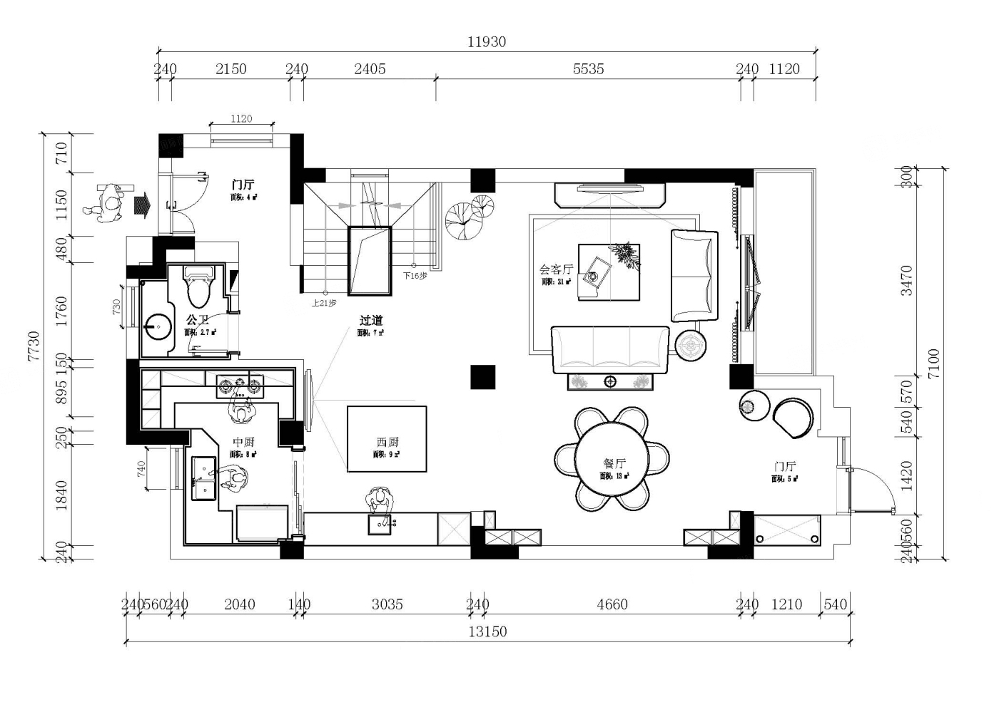
设计说明:集功能与美学的要求于一身,在细微处诠释着对精致生活的向往。目之所及,空间有一种雅致简约的美,淡雅温柔。
Design description: It integrates functional and aesthetic requirements, and interprets the yearning for exquisite life in details. As far as you can see, the space has an elegant and simple beauty, which is elegant and gentle.

石材、金属与皮革于空间中碰撞融合,刚柔并济的材质,冷暖相宜的色彩,打造出简约现代的氛围。一如业主沉稳低调的个性,不喜张扬,却于细节处追求品质生活。
Stone, metal and leather collide and merge in the space, and the combination of hardness and softness of the material and the appropriate color of cold and warm create a simple and modern atmosphere. Just like the owner's calm and low-key personality, he does not like publicity, but pursues quality life in details.

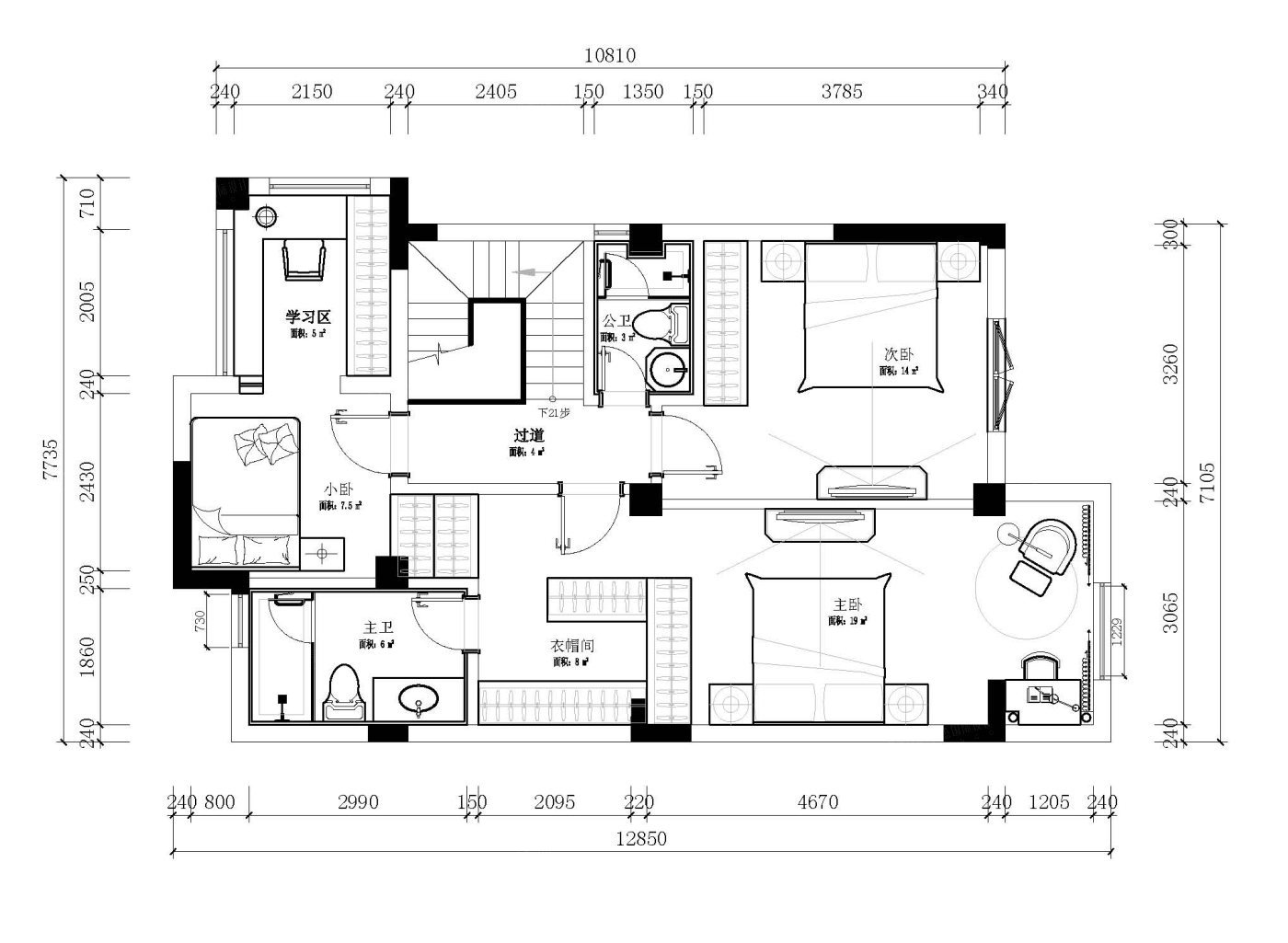
气泡造型的吊灯别致清新,提升颜值的同时,更为这方空间注入灵动之美。为打造静谧的卧室环境,在这里,你可以把一切的烦恼抛却脑后,温暖自己,柔软时光。
The bubble shaped chandelier is unique and fresh, which can enhance the beauty of the face and inject the beauty of flexibility into this space. In order to create a quiet bedroom environment, here you can put all your worries behind you, warm yourself and soft time.








名称:阳光城愉景湾 现代轻奢
楼盘:阳光城愉景湾
户型:独栋别墅
面积:300~500㎡
风格:港式轻奢,轻奢
Name: Sunshine City Discovery Bay Modern Luxury
Property: Sunshine City Discovery Bay
Unit type: single-family villa
Area: 300~500 ㎡
Style: Hong Kong-style light luxury, light luxury














