徐汇玺庭,上海/室内
建筑面积:175平米;套内面积:150平米;化简复杂传统的媒体表象,萃取低敛知性的人文风尚。将业主要的风格一一盘整,作为本次风格主师的基底脉络。
Building area: 175 square meters; Inside area: 150 square meters; Simplify the complex and traditional media representation, and extract the humanistic fashion of low self-control. Consolidate the main styles of the industry one by one as the basic context of this style master.

思考起居生活的实用需求,推导出别于常规印象的机能格局。 以弧形墙面呈现出来的中式细节语言,是设计师,为此格局所做出的大胆破题。简洁利落的六幅连屏形意内涵,传达出轻透,张力兼备的质感细节。
Think about the practical needs of daily life, and deduce the functional pattern different from the conventional impression. The Chinese detail language presented by the curved wall is a bold breakthrough made by the designer for this pattern. The concise and neat six consecutive screens convey the light and transparent texture details with both tension.

取消了电视墙的刻板设定,以家具摆设划分自然无达的定位关系,让视线落点能够不受拘束任意游走。
The rigid setting of the TV wall has been canceled, and the positioning relationship of natural and unreachable has been divided by furniture furnishings, so that the point of view can wander freely.

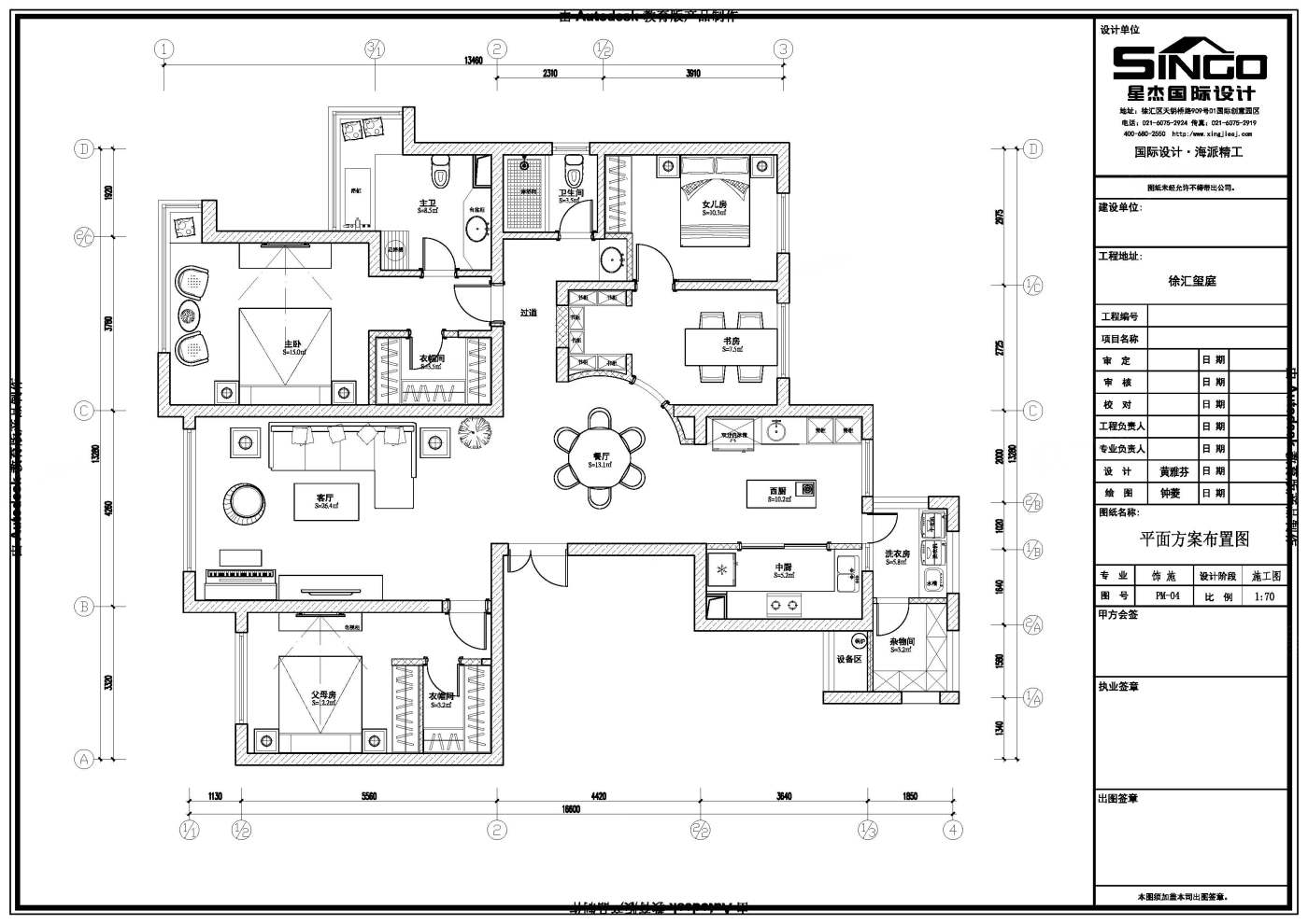
主材名称:博莎兰尼瓷砖,加德美尚地砖,富贵年轮地板,欧雅壁布,唯宝洁具等等;此案例是上海徐汇区徐汇玺庭大平层装修设计案例,展示了徐汇玺庭别墅户型图(房型图)及效果图,别墅风格是新中式风格,别墅设计师是黄雅芬,别墅面积200㎡以下平米,造价40万。
Name of main materials: Bosarani ceramic tile, Jiade Meishang floor tile, rich ring floor, Ouya wall cloth, Vibro sanitary ware, etc; This case is the decoration design case of the flat floor of Xuhui Xiting Villa in Xuhui District, Shanghai. It shows the house type drawing (house type drawing) and effect drawing of Xuhui Xiting Villa. The villa style is the new Chinese style, and the villa designer is Huang Yafen. The villa area is less than 200 square meters, and the cost is 400000 yuan.




名称:徐汇玺庭 新中式
楼盘:徐汇玺庭
户型:大平层
面积:300㎡以下
风格:新中式
Name: Xuhui Xiting New Chinese Style
Property: Xuhui Xiting
House type: large flat floor
Area: less than 300 ㎡
Style: New Chinese style














