仁恒滨江园,上海/室内

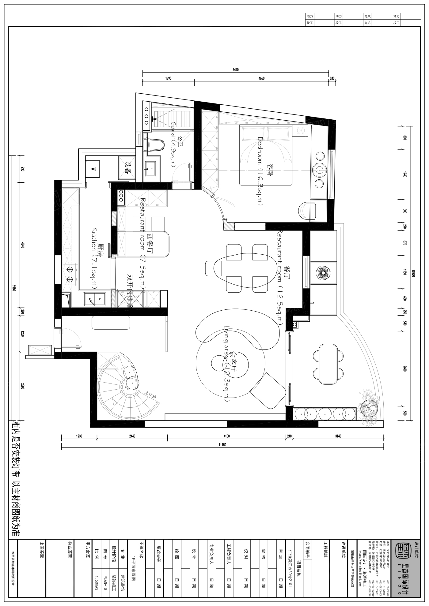
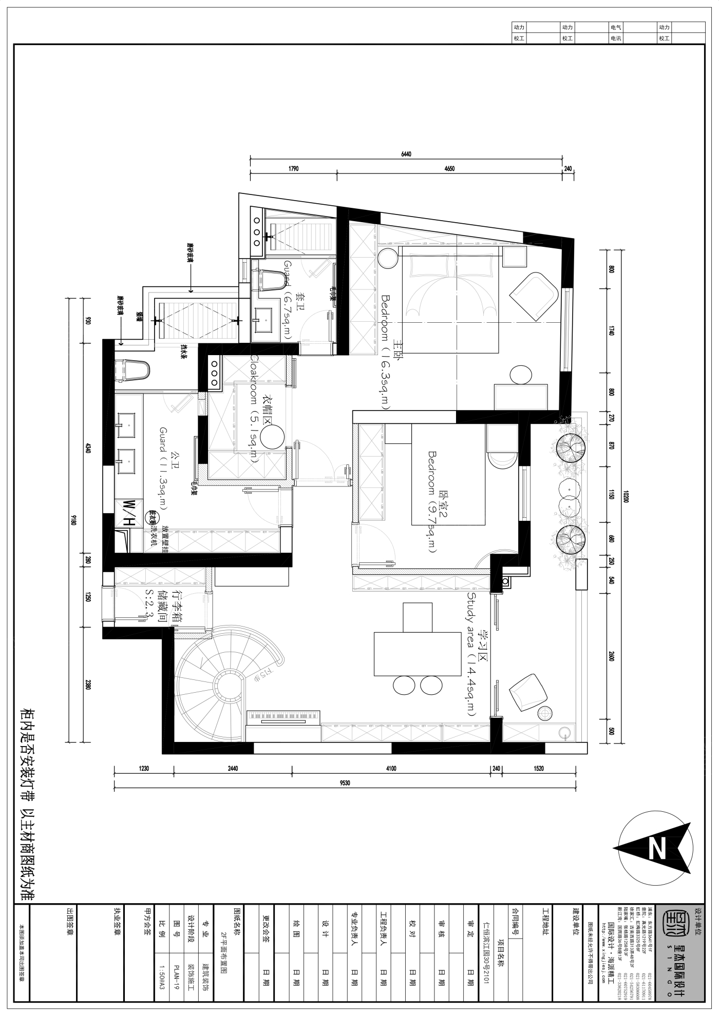
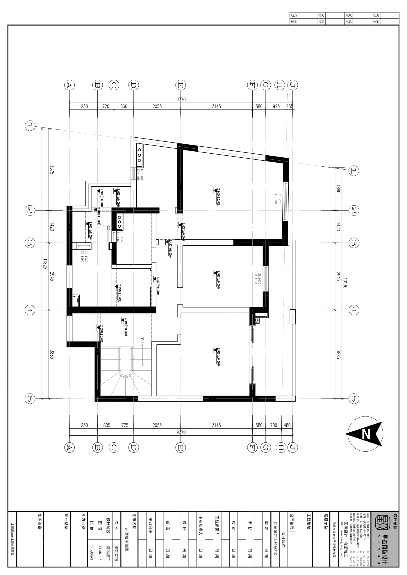
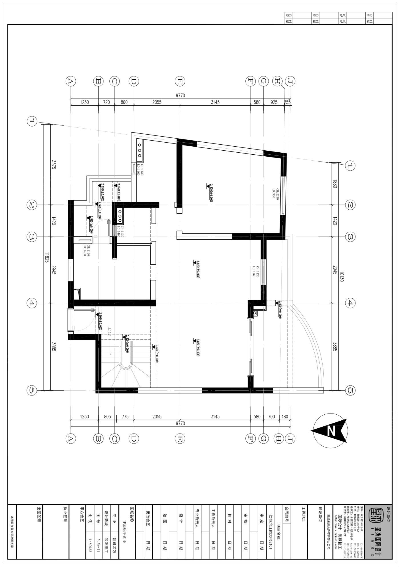
原户型分析:进门大门对着楼梯,地下室采光差,二楼房间分配布局不合理。
Analysis of the original house type: the entrance door faces the stairs, the basement has poor lighting, and the room distribution on the second floor is unreasonable.

特色创意改造:最有特色的部分要细说(楼梯,酒柜,地下室,灯光,空间结构调整等等优化改造的亮点)
Characteristic creative transformation: the most distinctive parts should be explained in detail (stairs, wine cabinets, basement, lighting, space structure adjustment and other highlights of optimization and transformation)

客户选择方案理由:设计比较吸引客户 ,方案和细节打动了客户
Reasons for customers to choose the scheme: the design attracts customers, and the scheme and details impress customers























名称:仁恒滨江园 诧寂
楼盘:仁恒滨江园
户型:大平层
面积:300㎡以下
风格:极简,现代简约
Name: Renheng Binjiang Garden
Property: Renheng Binjiang Park
House type: large flat floor
Area: less than 300 ㎡
Style: minimalist, modern and simple














