杉语,重庆/室内设计

杉语民宿位于南川区山王坪镇境,是一个建筑面积近1402.4平方米的改造项目,由海力设计团队从建筑到室内软装一体化设计。项目场地的前身是一间极具年代的旧楼,场地原始的村落风貌和建筑形式,保留得相对完整。
Shanyu B & B is located in shanwangping Town, Nanchuan district. It is a reconstruction project with a construction area of nearly 1402.4 square meters. It is designed by Haili design team from architecture to indoor soft decoration. The predecessor of the project site is a very old building. The original village style and architectural form of the site are relatively intact.

海力设计团队,立足于场地保留的年代建筑,希望改造的介入,能够在自然中创造传统与现代并存的全新居住空间体验。并将传统建筑与现代艺术进行内化赋形,使其变为可观、可感的形体与符号,渗透到空间中去,呈现出一个和谐而自然,寻觅归属感的心灵原乡。
Haili design team, based on the age buildings preserved on the site, hopes to create a new living space experience in nature with the coexistence of tradition and modernity. And the traditional architecture and modern art are internalized and shaped, so that they can become considerable and sensible forms and symbols, penetrate into the space, and present a harmonious and natural spiritual hometown looking for a sense of belonging.

项目周围的杉木林,被悉心保留,围树而建的场景唤醒了人们对自然、对故土的归属感。这处院落亦以之为名唤作“杉语”。在室内空间的设计中,既需保留与尊重当地乡村文化,又需植入新度假模式,塑造一种独属于乡村的自然生活状态。
The fir forest around the project has been carefully preserved. The scene of building around trees has awakened people's sense of belonging to nature and hometown. This courtyard is also called "Shanyu" by its name. In the design of interior space, it is necessary to retain and respect the local rural culture, and implant a new vacation mode to create a natural living state that belongs to the countryside alone.



设计灵感源自于“侘寂(wabi-sabi)”以接受短暂和不完美为核心的日式美学艺术。设计团队在保留建筑古旧时代感的同时,去融入现代艺术的技艺,打造一种“虽由人造,却宛若天成。”的美学空间。
The design is inspired by the Japanese aesthetic art of "WABI Sabi", which focuses on accepting transience and imperfection. The design team, while preserving the sense of the ancient times of the building, integrates the skills of modern art to create a "man-made, but natural." Aesthetic space.


设计呼应传统木质结构建筑顶层,在空间中利用软装陈设的旋变、叠加、交错的体块带来视觉上的多维立体感,丰富着空间的表达,彰显自然主题的柔和性与舒适度。
The design echoes the top floor of the traditional wooden structure building, and brings a multi-dimensional sense of vision in the space by using the rotating, overlapping and staggered blocks of soft furnishings, enriching the expression of the space and highlighting the softness and comfort of the natural theme.




卧室空间极具乡野韵味的床具旁,搭配着空间内棉麻质感陈设,当自然的风透过景观台吹拂而过时,空间更为空灵纯粹,涌动着欣然舒惬的情感。
Beside the bed set with rural charm in the bedroom space, there are cotton and linen furnishings in the space. When the natural wind blows through the landscape platform, the space is more ethereal and pure, surging with pleasant and comfortable emotions.


挑高的空间架构中,通过天花与墙面连续的设计,塑造出空间整体风格的延伸性,各个区域之间的转换自然而流畅,从而打破了常规民宿空间的形制特点与界分感,于简单中加以微妙的转折,呈现出空间简净大方的当代气息。
In the elevated space structure, the continuous design of ceiling and wall creates the extensibility of the overall style of the space, and the conversion between various areas is natural and smooth, thus breaking the shape characteristics and sense of division of the conventional B & B space, and making subtle turns in simplicity, presenting the contemporary flavor of simple and generous space.

设计将空间中的硬软装上无过多杂色与线条组合,整体呈现出和谐的温润色系,以简雅的视像打造一处放松心灵的安逸空间。
The design combines the hard and soft decoration in the space without too many variegated colors and lines, presenting a harmonious and moist color system as a whole, and creating a relaxing and comfortable space with simple and elegant visual images.


空间内的线条元素呼应着空间脉络,家具的形制延续硬装体块的线性语言,营造出游走在自然之间的美感。充满禅意趣致的摆件装点在其中,自然的艺术让空间活力倍增。
The line elements in the space echo the context of the space. The shape of the furniture continues the linear language of the hard block, creating an aesthetic feeling of traveling between nature. The natural art makes the space more energetic.




整块玻璃悬挂在天花之上,让自然光线透过其上营构的形影与色彩,像湖镜上倒映的月夜般清凉。露台区域以大面积留白的体块构造,辅之以棕竹编制天花,令空间视效在简单中有层序感。薄暮下的林野般温暖、闲适与恬静,同时亦极具昂昂生机与灵动美。
The whole piece of glass is hung on the ceiling, so that the natural light can pass through the shape, shadow and color on it, like the moonlight reflected on the lake mirror. The terrace area has a large area of blank block structure, supplemented by Brown Bamboo Ceiling, so that the spatial visual effect has a sense of sequence in simplicity. The forest is warm, comfortable and quiet at dusk. At the same time, it is also full of vitality and smart beauty.



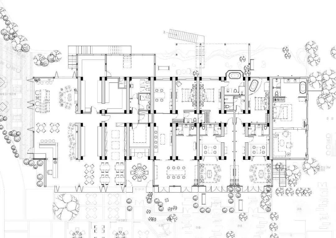
▼ 平面图一层,Plan 1F

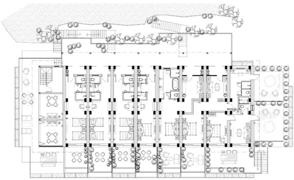
▼ 平面图二层,Plan 2F

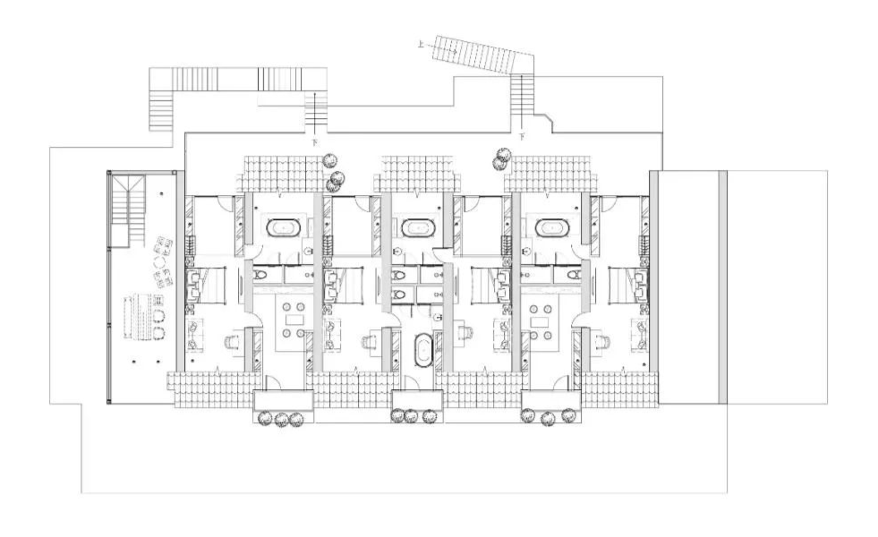
▼ 平面图三层,Plan 3rd floor

项目信息
项目名称:杉语·民宿
文章分类:旅游民宿
设计公司:重庆海力装饰设计工程有限公司
项目地址:重庆南川山王坪
项目规模:1402.4 ㎡
建筑师:冯焕辉
项目年份:2020年
Project information
Project Name: Shanyu homestay
Article category: Tourist homestay
Design company: Chongqing Haili decoration design Engineering Co., Ltd
Project address: Wangping, Nanchuan mountain, Chongqing
Project scale: 1402.4 ㎡
Architect: Feng Huanhui
Project year: 2020














