菜市口220KV变电站及附属设施,北京/市政
随着国民经济发展我国用电需求增长迅速,城市为满足输电、变电和配电需求建设了大量的变电站。城市中的新增变电站在一定程度上都面临缺乏混合利用开发强度低、邻避效应明显、自我封闭与城市环境不协调的问题。本项目尝试通过促进政府部门、投资方、建设方和使用者之间的交流,提出整体问题解决方案。
With the development of national economy, the demand for electricity in China is growing rapidly. Cities have built a large number of substations to meet the needs of transmission, transformation and distribution. To a certain extent, new substations in cities are faced with the problems of lack of mixed utilization, low development intensity, obvious neighbor avoidance effect, self isolation and uncoordinated urban environment. The project tries to put forward an overall solution to the problem by promoting exchanges among government departments, investors, builders and users.
▼场地原状,Site undisturbed

▼城市变电站典型模式,Typical mode of Urban Substation

▼中山会馆视角,Perspective of Zhongshan guild hall

▼菜市口大街视角,View from Caishikou Street


▼胡同区视角,Perspective of Hutong District


中心旧城区燃煤小锅炉排放不达标是北京雾霾产生的一个重要因素。北京市发改委和环保局为此推行“煤改电”计划,菜市口220 KV变电站及附属设施为市“煤改电”的重点工程。建设地点位于北京市西城区,北侧紧邻区历史文物中山会馆,东侧与胡同民居相连。规划部门要求建设220KV输变电站并和城市风貌相协调;周边居民不希望建设有围墙的地上变电站;而建设方对需要花费数倍于地上变电站的地下做法并不积极,同时要求建立80m高超大体量地上建筑获取利益。在民众诉求、政府意志和企业利益之间,该项目反复几次后一度陷入僵局。
The substandard emission of small coal-fired boilers in the central old urban area is an important factor in the generation of smog in Beijing. To this end, the Beijing Municipal Development and Reform Commission and the environmental protection bureau have implemented the "coal to electricity" plan. Caishikou 220 kV substation and ancillary facilities are the key projects of the city's "coal to electricity". The construction site is located in Xicheng District, Beijing. It is adjacent to the historical relics Zhongshan guild hall in the north and connected to Hutong dwellings in the East. The planning department requires the construction of 220kV transmission and transformation power station to coordinate with the urban landscape; Surrounding residents do not want to build aboveground substations with walls; However, the construction party is not active in the underground practice that needs to cost several times as much as the above ground substation. At the same time, it is required to build 80m high-quality above ground buildings to obtain benefits. Between the demands of the people, the will of the government and the interests of the enterprise, the project was stalled after repeated several times.
▼菜市口大街夜景,Night view of Caishikou Street

▼概念图示,Concept diagram

▼总平面图,General layout

设计团队以策划介入,通过多方多次协调重写设计任务书:规划控制建筑高度60m,北侧30m范围内为文保建控区,建构筑物控高5m。项目包括220KV变电站主厂房及电力科技馆两部分内容。其中地下三至五层为变电站主厂房,是世界首座可参观的地下220KV智能变电站。地下二层以上为具有商业价值的附属设施(电力科技馆及电力客服中心办公用房)。
The design team participated in the planning and rewritten the design specification through multiple coordination: the height of the planned building is 60m, the cultural protection and construction control area is within 30m to the north, and the height of the buildings is 5m. The project includes 220kV substation main plant and power science and Technology Museum. Three to five floors underground are the main power house of the substation, which is the world's first underground 220kV intelligent substation that can be visited. Above the second floor underground are ancillary facilities with commercial value (power science and Technology Museum and power customer service center office).
▼菜市口大街视角,View from Caishikou Street

▼中山会馆视角,Perspective of Zhongshan guild hall

▼可参观220KV地下变电站,Visit 220kV underground substation


总图设计在北侧退让出30m范围的建控区,以园林景观设计营造出贴近文物建筑的高品质城市空间。建筑形体分为高度不同的若干小体块:12层主体建筑布置在用地南侧,和现状沿菜市口大街周边60m高的建筑群基本保持一致;北侧布置多层裙房,形成空间梯度高度递减至建控区。此举消解对城市历史街区的视觉压迫,同时形成丰富的建筑表情。建筑表皮设计着力于体现建筑与城市历史和文脉发展的关系,以超白玻璃反射天光云影和胡同院落,以传统纹样开洞的石材幕墙表皮暗合中国神韵。
The general layout design gives way to a construction control area within 30m in the north, and creates a high-quality urban space close to cultural relics buildings with garden landscape design. The building form is divided into several small blocks with different heights: the 12 storey main building is arranged on the south side of the land, which is basically consistent with the current 60m high building complex along Caishikou street; Multi storey podium buildings are arranged in the north, forming a spatial gradient height decreasing to the construction control area. This action dispels the visual oppression on the urban historical blocks and forms rich architectural expressions at the same time. The architectural skin design focuses on reflecting the relationship between architecture and urban history and context development. The super white glass reflects the sky light, cloud shadow and Hutong courtyards, and the stone curtain wall skin with holes in traditional patterns coincides with the charm of China.
▼剖面图1,Section 1

▼剖面图2,Section 2

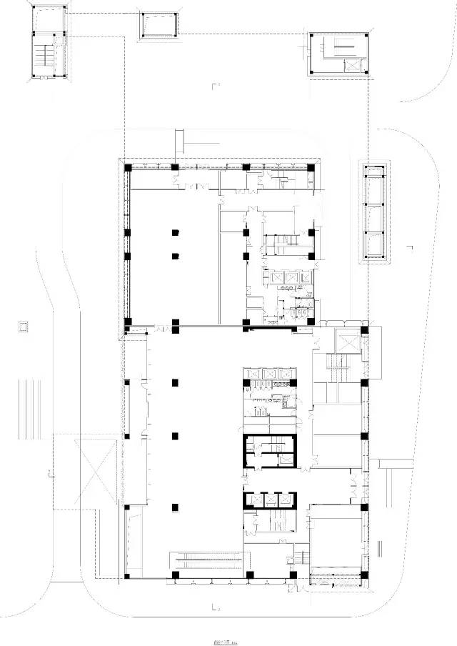
▼首层平面图,Ground floor plan

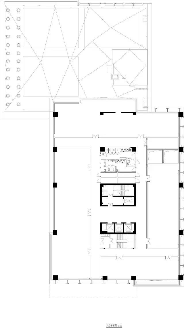
▼8F 平面图,8F plan

北京菜市口220 KV变电站及附属设施是在新型城镇化背景下将电力设施、教育功能、公众服务等融为市政综合体的一次探索。通过创新式的混合利用提升建筑价值、协调城市环境、营造城市开放空间,并促进北京空气质量的改善。尝试通过前期建筑策划引导多方在相互搭接的平台上共同商讨,以整体解决方案应对日益复杂的城市建筑项目。
Beijing Caishikou 220 kV substation and ancillary facilities are an exploration to integrate power facilities, educational functions and public services into a municipal complex under the background of new urbanization. Through innovative mixed utilization, we can enhance the building value, coordinate the urban environment, create urban open space, and promote the improvement of air quality in Beijing. Try to guide multiple parties to discuss together on the overlapping platform through early architectural planning, and deal with increasingly complex urban construction projects with overall solutions.
▼主立面及细部,Main elevation and details

▼北立面细部,North elevation details

▼夜景细部,Night scene details


项目信息
项目名称:菜市口220KV变电站及附属设施
文章分类:展览展示
设计公司:清华大学建筑设计研究院
项目地址:北京
项目规模:47767.75m²
建筑师:庄惟敏
摄影师:姚力
Project information
Project Name: Caishikou 220kV substation and auxiliary facilities
Article category: Exhibition
Design company: Architectural Design Institute of Tsinghua University
Project address: Beijing
Project scale: 47767.75m²
Architect: Zhuang Weimin
Photographer: Yao Li














