沈阳东北大学文科2楼,东北/建筑设计

本案为位于沈阳东北大学新校区的教学楼,为清华大学设计研究院在日本鹿岛设计公司所做的校园规划基础上进行的建筑单体设计。设计师庄惟敏力求在轴线对称的严谨校园基础上,探索“正中求变”的可能性,希望以此激发建筑室内外的活力。
This case is a teaching building located in the new campus of Shenyang Northeast University. It is a single building design carried out by the design and Research Institute of Tsinghua University on the basis of the campus planning made by Japan's Kajima design company. Designer zhuangweimin strives to explore the possibility of "seeking change in the middle" on the basis of the rigorous campus with symmetrical axes, hoping to stimulate the vitality of the interior and exterior of the building.
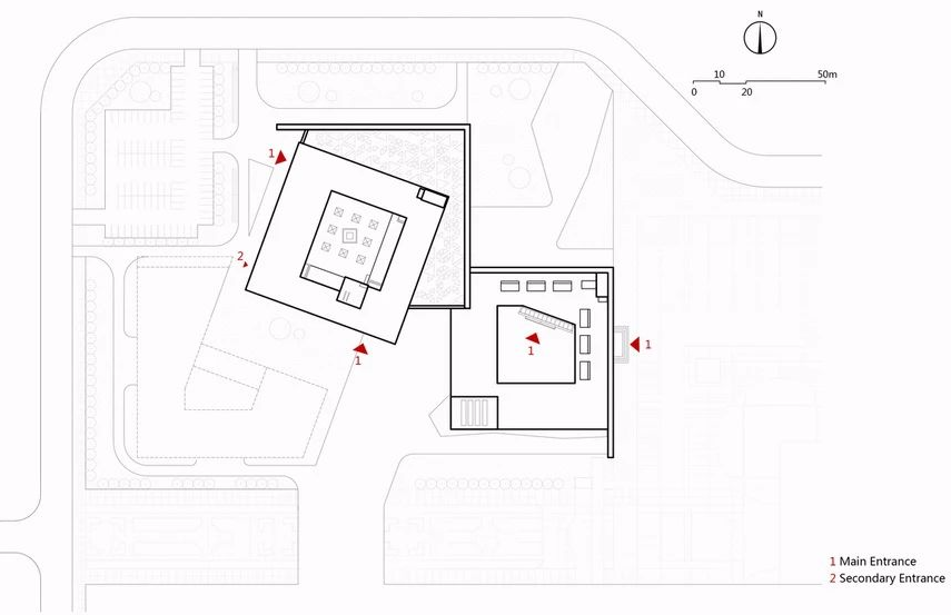
项目是建筑学院、文化创意学院及国际交流学院的教学楼,采用轴线对称的严谨格局。建筑面积28377㎡。
The project is the teaching building of the school of architecture, the school of cultural creativity and the school of international exchange, which adopts a rigorous pattern of axis symmetry. The building area is 28377㎡.


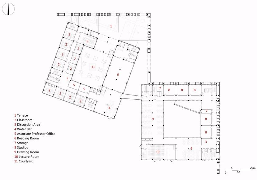
作为中心区域的四大学院组团之一,受到校园规划的详细控制:四大学院组团均要求为三个方形庭院构成的品字形,一期为靠近中轴的两个方形,分别为四层和六层;朝向中轴和校门的立面必须贴线,并沿用红砖材质以呼应老校区文脉。
As one of the four college clusters in the central area, it is subject to the detailed control of the campus planning: the four college clusters are required to be in the shape of three square courtyards, and the first phase is two square courtyards close to the central axis, which are four floors and six floors respectively; The facade facing the central axis and the school gate must be pasted with lines, and the red brick material must be used to echo the context of the old campus.






作为寒地建筑,如何激发室外空间活力是一个考验。建筑师在楔形灰空间上设置了满布三角形天窗的屋盖,免除雨雪之虞,也带来了丰富的光影。其中一个楔形灰空间位于两个方体之间,是穿行路径的一部分。另一个楔形灰空间位于北侧,与文创学院的大、中、小三个工坊在平面上恰好可以契合。三个工坊的屋顶形成叠落台地,作为师生作品的室外立体展场。
As a cold building, how to stimulate the vitality of outdoor space is a test. The architect set up a roof with triangular skylights on the wedge-shaped gray space to avoid rain and snow and bring rich light and shadow. One of the wedge-shaped gray spaces is located between two cubes and is part of the passage path. The other wedge-shaped grey space is located in the north, which can fit in with the large, medium and small workshops of the College of culture and innovation. The roofs of the three workshops form a stacked platform, which serves as an outdoor three-dimensional exhibition hall for the works of teachers and students.


立面语言和材料选择上,建筑师在沉稳的基调中求新意。
In terms of facade language and material selection, architects seek new ideas in a calm tone.














项目信息
项目名称:沈阳东北大学文科2楼
文章分类:文化体育
设计公司:清华大学建筑设计研究院
项目地址:沈阳
项目规模:28377㎡
设计师:庄惟敏
摄影师:苏圣亮
Project information
Project Name: 2nd floor, liberal arts department, Northeast University, Shenyang
Article category: culture and sports
Design company: Architectural Design Institute of Tsinghua University
Project address: Shenyang
Project scale: 28377 ㎡
Designer: Zhuang Weimin
Photographer: Su Shengliang














