丽斯别墅效果图方案,顺义/室内
设计理念:赖特说“美丽的建筑不只局限于精确,它们是真正的有机体,是心灵的产物。”我们希望创造一个改变使用者心境的空间,人在空间内走动、停留,光打通过设计的墙壁、树荫洒向草地和人们的身体。
Design philosophy: Wright said, "Beautiful buildings are not limited to precision, they are real organisms, products of the soul." We hope to create a space that changes the user's mood, where people move and stay, and light shines through the designed walls and tree shade onto the grass and people's bodies.
1F室内概念设计方案
1F Interior Conceptual Design Plan
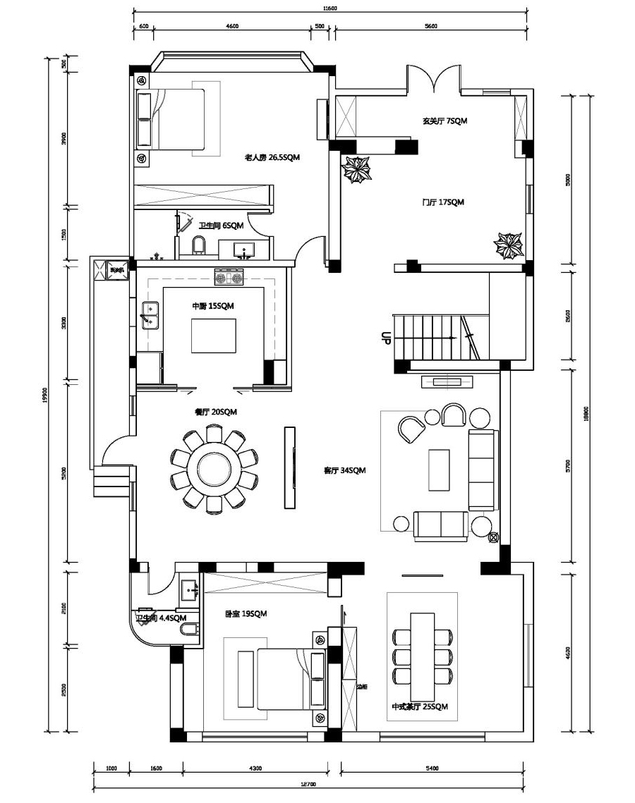
▼一层平面,First floor plan



门厅设计
Foyer design


客厅设计
Living room design


厨房设计
kitchen design

餐厅设计
Restaurant design

电视背景墙设计
TV Background Wall Design


中式茶厅设计
Chinese Tea House Design

长辈房设计
Elderly House Design

事业的繁忙似乎永远与生活对立。带不走海岛的阳光和沙滩,只好在闹中取静的市区修筑自己的伊甸园。设计师黄全说:“相比逃离城市,我更愿意构建一个远方般舒适的家。虽然不能面朝大海,但还是希望能伴着春暖花开。”
The busyness of career seems to always be in opposition to life. Unable to take away the sunshine and beach of the island, I had to build my own Eden in the bustling city area. Designer Huang Quan said, "Compared to escaping the city, I would rather build a comfortable home as far away. Although I cannot face the sea, I still hope to be accompanied by the warmth of spring and blooming flowers."
2F室内概念设计方案
2F indoor conceptual design scheme
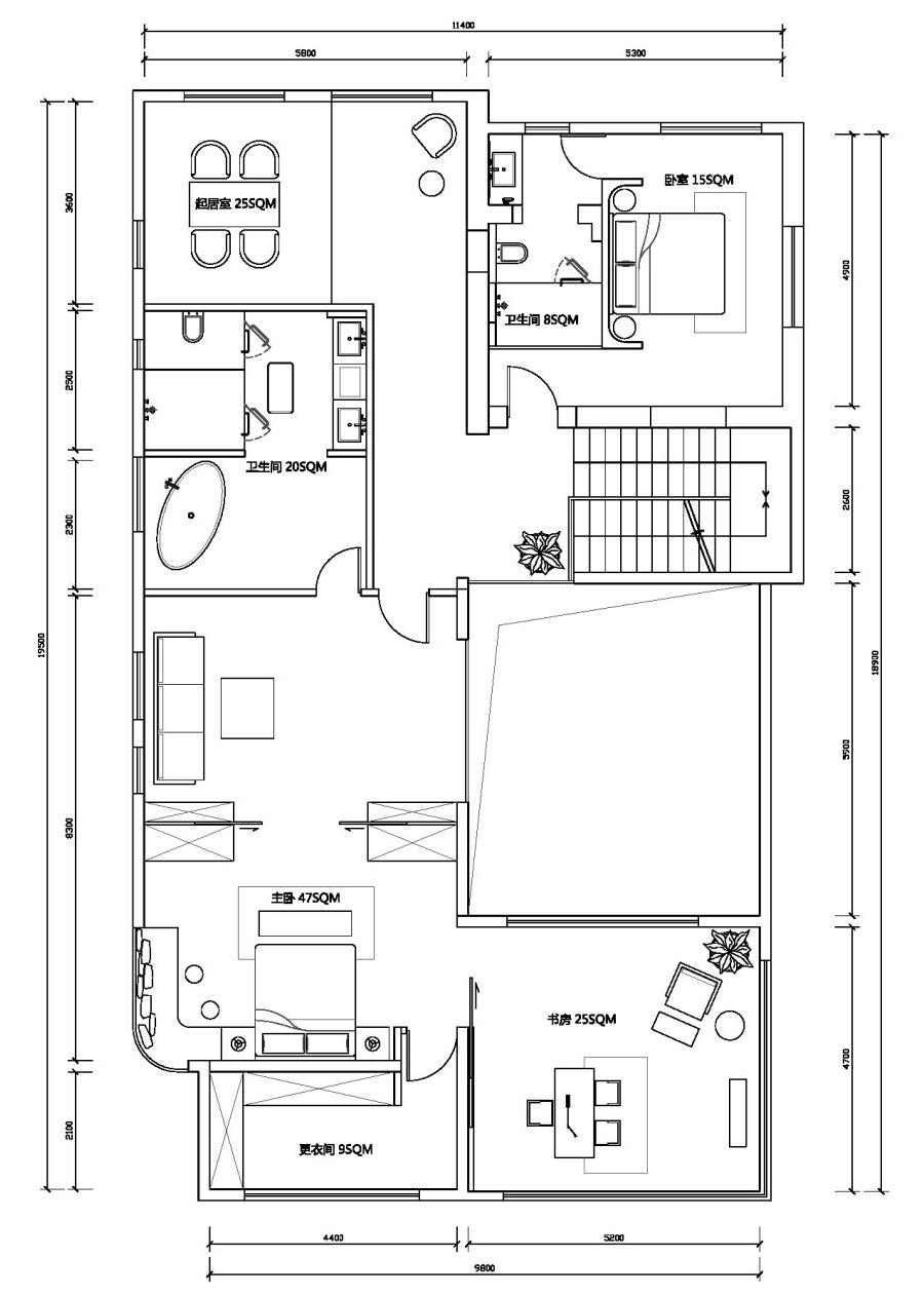
▼二层平面,Second Floor Plan

主卧设计
Master bedroom design



卧室客厅设计
Bedroom and living room design

书房设计
Study Design

主卧浴缸设计
Master Bathtub Design


起居室设计
Living Room Décor


客房设计
Guest room design


客房卫生间设计
Guest room bathroom design

室内空间强调从内部空间到外部空间的延伸,增强了空间连续性,以壁炉为中心点向外蔓延,让空间内呈现出与自然环境相联的轴线倾向。视线移游,大理石桌面、皮革沙发、木饰面等自然材料应运而生,与黑白灰的极简色调相互碰撞,带来纯净大气的视觉感受。
The indoor space emphasizes the extension from the internal space to the external space, enhancing the continuity of the space. It spreads outward from the fireplace as the center point, presenting an axial trend that is connected to the natural environment within the space. As the gaze shifts, natural materials such as marble tabletops, leather sofas, and wood veneers emerge, colliding with the minimalist tones of black, white, and gray, bringing a pure and atmospheric visual experience.
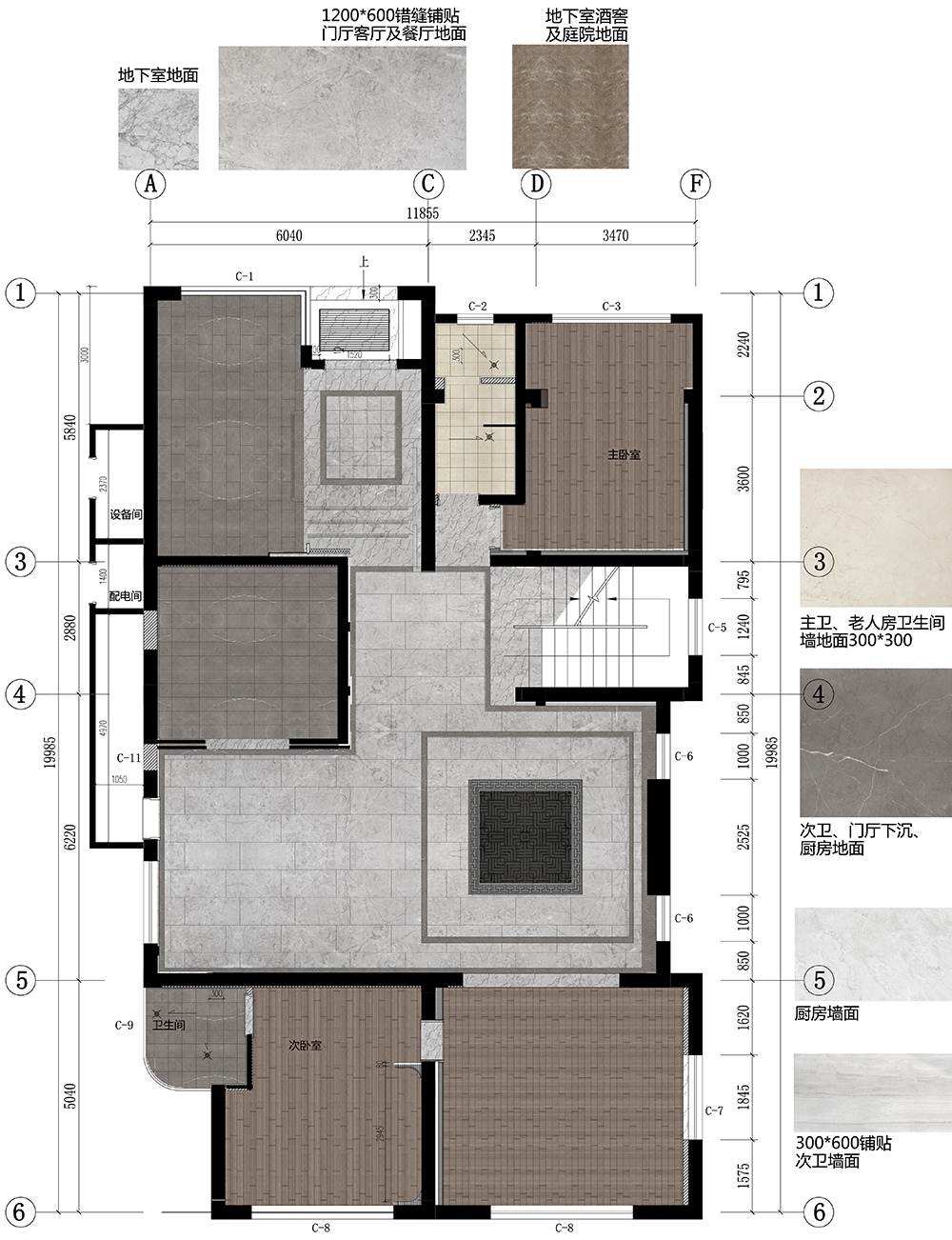
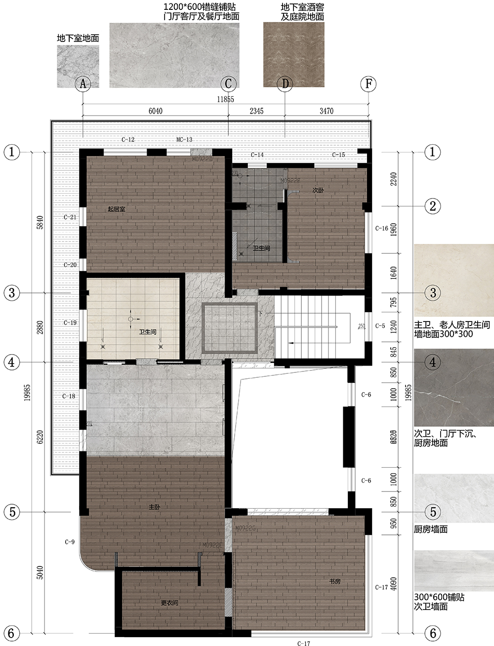
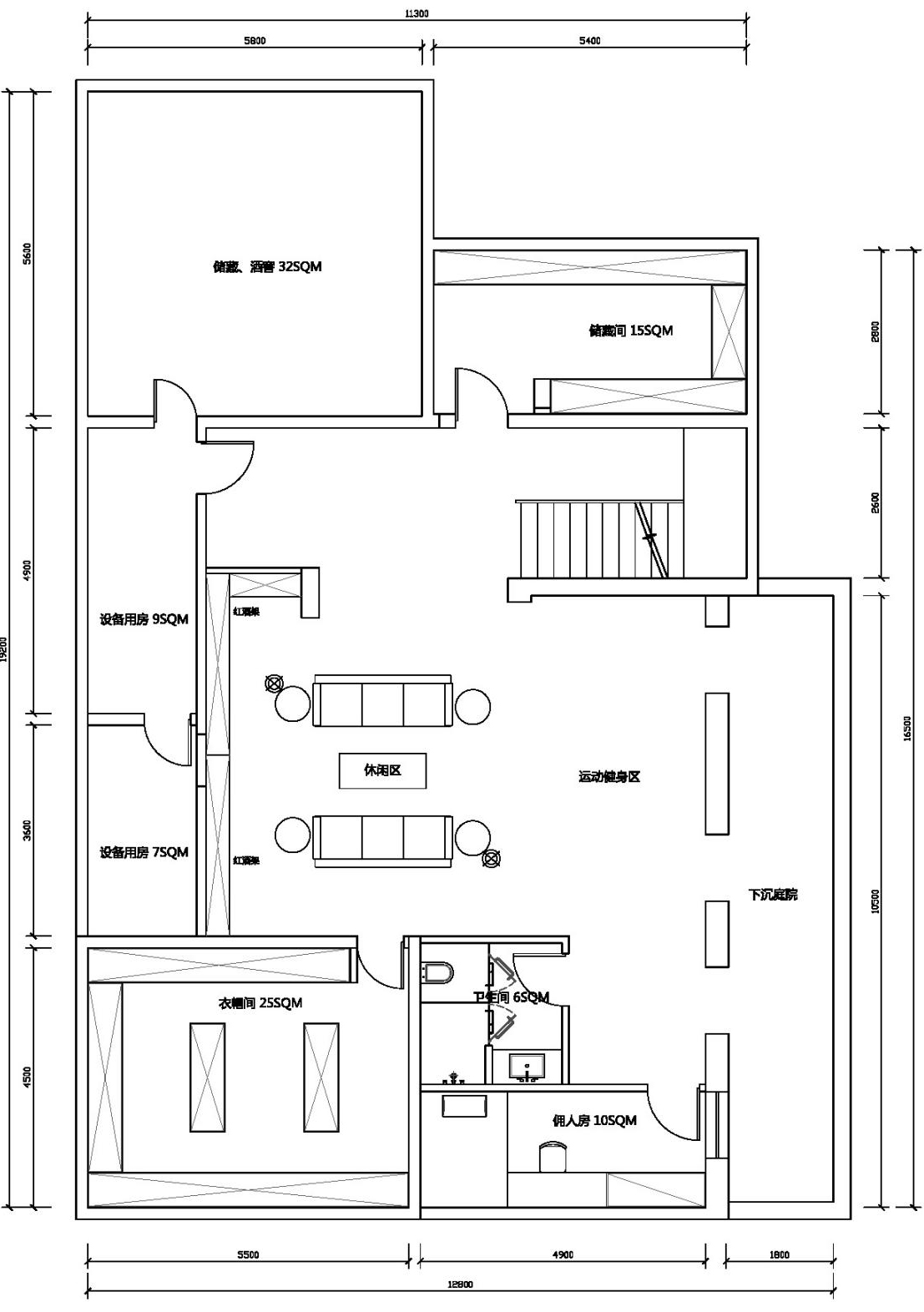
B1室内概念设计方案
B1 Interior Conceptual Design Scheme
▼地下一层平面图,Underground First Floor Plan

地下一层楼梯概念设计
Conceptual design of the first underground staircase

影音休闲区概念设计
Conceptual design of audio-visual leisure area


公共卫生间设计
Designing Public Toilets

项目名称:丽斯别墅效果图方案
文章分类:室内设计-别墅
项目地址:顺义
项目规模:500平米
设计主创:王建伟
设计团队:叶建森 张旭 崔欢 周连城
设计公司:北京华城远大建设有限公司
建 材:石材 集成板材 木饰面 壁纸 硬包
完成年份:2018年
业主单位:个人
施工企业:北京华城远大建设有限公司
Project Name: Lishi Villa Rendering Scheme
Article classification: Interior Design - Villas
Project address: Shunyi
Project scale: 500 square meters
Designer: Wang Jianwei
Design team: Ye Jiansen, Zhang Xu, Cui Huan, Zhou Liancheng
Design Company: Beijing Huacheng Yuanda Construction Co., Ltd
Building materials: stone integrated board, wood veneer, wallpaper, hard package
Completion year: 2018
Owner unit: individual
Construction company: Beijing Huacheng Yuanda Construction Co., Ltd














