颐西庄园室内概念设计方案,北京/室内
颐西庄园室内概念设计方案
INTERIOR DESIGN PLAN
01
设计说明
DESIGN SPECIFICATION
这间新屋子的室内设计旨在为当代的极简式住宅注入温暖而热情的氛围。空间的美感经得起时间考验,纹理细腻而丰富的石灰华、深色的木板以及优雅的钢制细部共同带来视觉上的享受。
The interior design of this new house aims to inject a warm and passionate atmosphere into contemporary minimalist homes. The beauty of space can withstand the test of time, with delicate and rich textures of lime, dark wooden boards, and elegant steel details bringing visual enjoyment together.
▼原始建筑外观, Original building appearance

建筑外观主要材料
Main materials for building appearance

建筑外观概念
BUILIDING

02
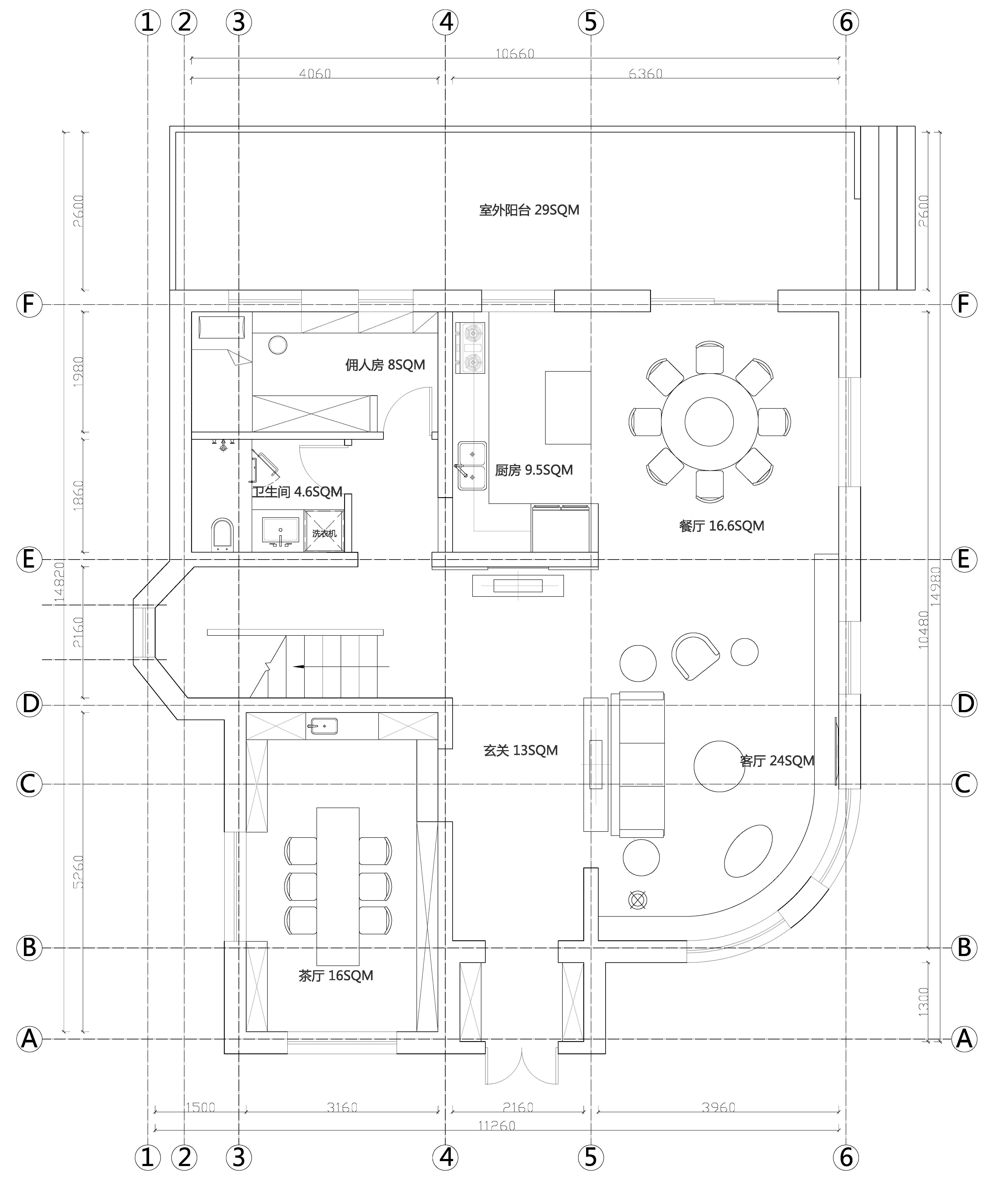
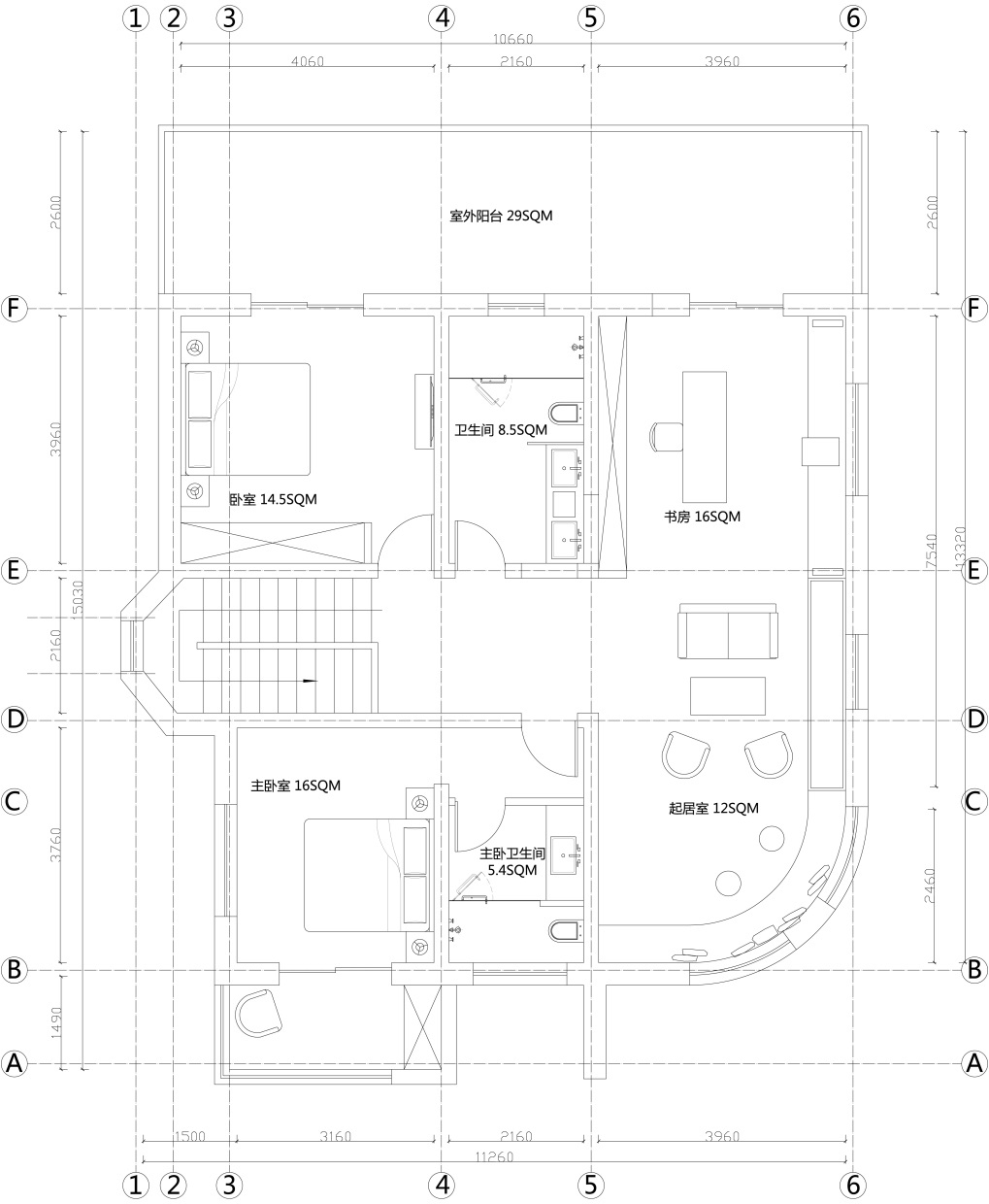
平面布局
PLANE LAYOUT

03
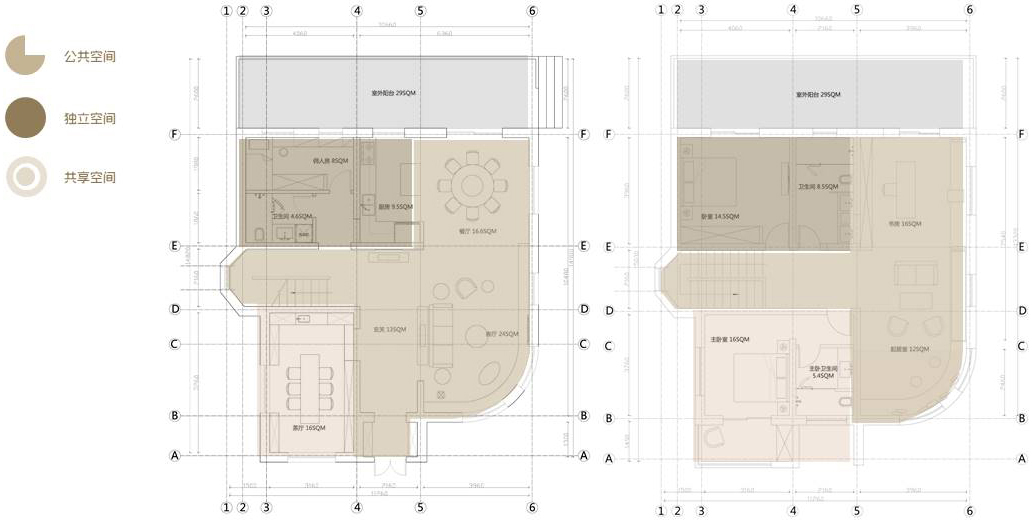
功能分区
FUNCTIONAL PARTITION


04
空间流线
SPACE STREAMLINE

光源分析
LIGHT SOURCE ANALYSIS

05
概念效果图
SOLUTION CONCEPT
家具、照明和装饰物皆经过了仔细的甄选和排布,使室内空间的建筑性得到进一步增强。大堂上,丝绣的新颖屏风将空间中悄然分割成三个区域,桌椅朴素无华,格调淡雅。底片铺装整齐干净,在精美的井字形
Furniture, lighting, and decorations have all been carefully selected and arranged, further enhancing the architectural quality of the indoor space. In the lobby, the novel embroidered screen quietly divides the space into three areas, with simple and elegant tables and chairs. The film is neatly and cleanly laid out in a beautiful well shaped pattern
空间概念元素
Spatial conceptual elements

1F室内概念设计方案
INTERIOR DESIGN PLAN
1F概念元素
1F conceptual elements


玄关概念设计效果图
PORCH CONCEPTUAL DESIGN

客厅概念设计效果图
Conceptual design rendering of living room

厨房概念设计效果图
Conceptual design rendering of kitchen

茶室概念设计效果图
Conceptual design rendering of tea room

楼梯间概念效果图
STAIRWELL CONCEPTUAL DESIGN

佣人房概念设计
Conceptual design of servant room

2F室内概念设计方案
2F indoor conceptual design scheme
2F概念元素
2F conceptual elements


起居室概念设计效果图
Conceptual design rendering of living room

主卧概念效果图
Master bedroom concept renderings

家具参考
Furniture reference

材质色彩概念
Material color concept

06
物料参考表
MATERIAL LIST
主材表参考
Main material list reference

项目名称:颐西庄园室内概念设计方案
文章分类:室内设计-别墅
项目地址:北京
项目规模: 300m²
设计主创: 王建伟
设计团队:叶建森 张旭 周连城 于本彦
设计公司:北京华城远大建设有限公司
建 材:真石漆 木饰面 石材 瓷砖
项目年份:2017年
业主单位:个人
Project Name: Interior Conceptual Design Scheme for Yixi Manor
Article classification: Interior Design - Villas
Project address: Beijing
Project scale: 300m²
Designer: Wang Jianwei
Design team: Ye Jiansen, Zhang Xu, Zhou Liancheng, Yu Benyan
Design Company: Beijing Huacheng Yuanda Construction Co., Ltd
Building materials: real stone lacquer wood veneer, stone tiles
Project Year: 2017
Owner unit: individual














