广武滑雪场室内方案设计,朔州/室内
01
设计理念
DESIGN CONCEPT
业态规划
ANALYSIS OF THE SITUATION

02
建筑及平面方案设计
ARCHITECTURAL AND GRAPHIC DESIGN
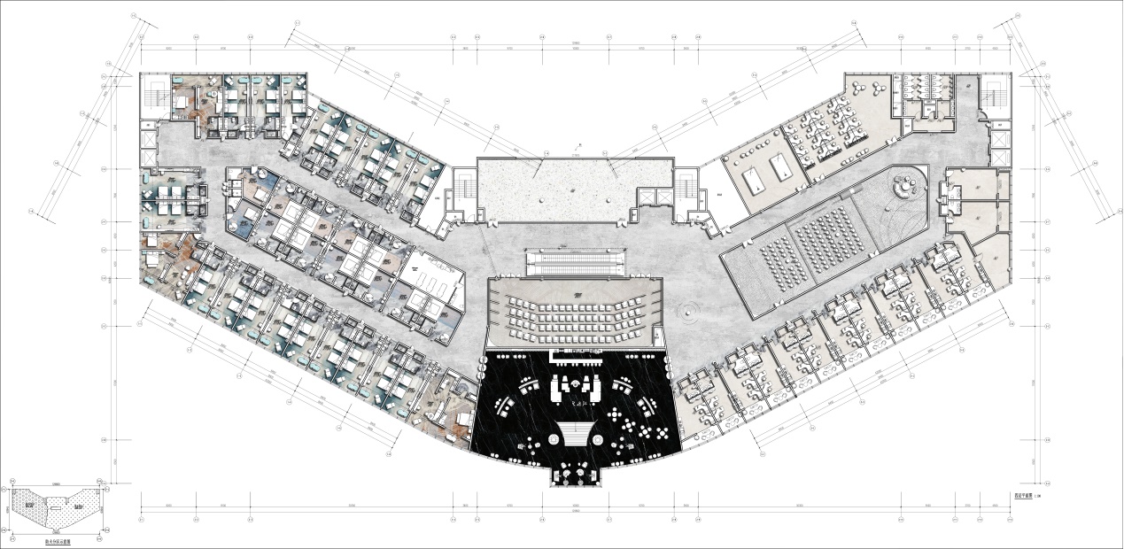
首层公区方案设计
THE PROJECT DESIGN

二层公区方案设计
THE PROJECT DESIGN

三层公区方案设计
THE PROJECT DESIGN


03
效果方案设计
EFFECT SCHEME DESIGN
公区方案设计—空间效果
THE PROJECT DESIGN
▼门厅,hall


▼挑空攀岩区,Tiaokong Climbing Area


▼行政酒廊,Executive Lounge


▼客房——套房,Guestroom - Suite





▼客房——双人间,Guest Room - Double Room


▼材质说明,Material Description




▼客房——星空房,Guest Room - Starry Sky Room

4F客房及厨房餐厅区域—重点空间意向
4F Guestroom and Kitchen Restaurant Area - Key Space Intentions
▼客房走道,Guest room walkway

2F活动区方案设计—重点空间意向
2F Activity Area Plan Design - Key Space Intention
▼儿童游乐园,Children's amusement park


▼咖啡吧,Coffee Bar

3F客房及厨房餐厅区域—重点空间意向
3F Guestroom and Kitchen Restaurant Area - Key Space Intentions
▼日光休息区,Sunlight rest area

▼餐饮区,Catering area

▼VIP餐饮区,VIP dining area

▼VIP餐饮包房,VIP Catering Room

▼室内高尔夫,Indoor Golf

▼健身房,Gym


▼多功能厅,Multifunctional Hall


项目名称:广武滑雪场室内方案设计
文章分类:室内设计-餐饮娱乐
项目地址:山西省朔州市山阴县广武镇天圪佬村
项目规模:18000m²
设计主创:王建伟
设计团队:叶建森 董涛 于本彦 张旭 张振波
设计公司:北京华城远大建设有限公司
建 材:石材 铝板 波纹钢 木饰面
完成年份:2023年10月
业主单位:广武滑雪场运营
Project Name: Interior Design of Guangwu Ski Resort
Article classification: Interior Design - Entertainment
Project address: Tiangelao Village, Guangwu Town, Shanyin County, Shuozhou City, Shanxi Province
Project scale: 18000m²
Designer: Wang Jianwei
Design team: Ye Jiansen, Dong Tao, Yu Benyan, Zhang Xu, Zhang Zhenbo
Design Company: Beijing Huacheng Yuanda Construction Co., Ltd
Building materials: stone, aluminum plate, corrugated steel, wood veneer
Completion year: October 2023
Owner: Guangwu Ski Resort Operations













