Marie Marvingt托儿所及幼儿园,法国 / antonio virga architecte
玛丽·马尔文克托儿所及幼儿园(Marie Marvingt Crèche and Nursery school)的翻新与扩建项目旨在为现有建筑重塑一个清晰、鲜明且持久的身份。这是一项既现代又永恒的设计,充分适应其功能与用户需求。通过对建筑的体量、平面布局和立面的合理化,我们最大程度地简化了建筑设计,同时显著提升了建筑整体的热工性能。项目包含一个早教中心,分为两大功能区:前两层为幼儿园,后三层为托儿所。
The project for the renovation and extension of the Marie Marvingt Nursery School and Crèche in Issy-les-Moulineaux focused on recreating a strong, legible, and enduring identity for an existing building, a contemporary and timeless design well adapted to its programme and users. By rationalising the volumes, plans and façades, we simplified the design of the building as much as possible, while ensuring a better thermal envelope for the whole structure. The programme proposes an early learning centre, comprising two main units: a nursery school on the first two levels, and a crèche on the last two levels.
▼街道视角,view from street


立面采用了双重材质(木材与矿物质),自然且有效地突出了主入口。入口的体量以简洁的竖向构造和坡屋顶为特征,成为中心的地标——一个共享空间,也被称为“木屋”。
A double materiality was chosen for the façades (wood and mineral). This enabled us to mark the main entrance naturally and effectively. By means of a simple elevation and a double-sloped roof, the volume of the entrance acts as a landmark for the centre: a meeting point, a shared space, “the wood house”.
▼立面,facade

▼木屋内部,wood house interior

在学校内部,活动操场进行了全面改造,与建筑的新架构融为一体。我们特别重视一楼原本未充分利用的通道,赋予其新功能。该通道成为连接一楼与二楼幼儿园庭院的“缺失环节”,我们精心设计,确保其功能性与美观性兼具。
Inside the school, the playgrounds have been completely refurbished, in line with the new architecture of the building. We wanted to give these spaces a new expression by treating the existing, previously under-used, passageway on the first floor. We believed that this space could become the missing link between the two kindergarten courtyards (ground floor and second floor), so we took particular care in designing it.
▼内部,inside

▼活动操场,playgrounds



通过将一楼廊道与底层儿童休息室对齐,我们将廊道整体宽度增加了1米,达到2.4米。这一新的空间尺度极大提升了教师和儿童的使用灵活性。在底层,廊道成为一个遮阳的室外活动空间,为孩子们提供遮蔽,同时通向游乐场后方的卫生设施。
By aligning the first floor gallery with the children’s rest room on the ground floor, we have increased its overall width by one metre, making it a total of 2.4m wide. The new dimension makes it possible to increase the variety of its uses to teachers and children. On the ground floor, the gallery serves as a covered play area, providing sun protection and protected access for the children to the sanitary facilities at the back of the playground.
▼遮阳廊道,covered gallery


为充分利用一楼的廊道,我们将二楼的庭院向外延伸,与廊道保持同一对齐,使得其得以免受恶劣天气影响,同时也为教室提供遮阳效果。这种空间设计确保了二楼和底层庭院的平等对待,增强了空间的灵活性。
In order to make the most of this gallery on the first floor, we extended the courtyard on the second floor up to the same alignment, so that the first floor is protected from bad weather, and its classrooms shielded from the high levels of solar radiation on this façade. An equitable treatment of these spaces (on ground and first floor) has been ensured, for greater flexibility of use.
▼二楼,first floor

建筑立面的主要材质为光滑、浅色的砂浆饰面。所有外窗框均更换为金色阳极氧化铝。第三种主要材质为木材,采用饱和色的落叶松木,进一步强化了建筑的新形象。
The main material used on the façades is a smooth, light-coloured stucco. All the external frames, replaced by new ones, are in gold anodised aluminium. The third main material used on the façades is wood, larch with a colour saturator, which contributes to the building’s new overall identity.
▼立面材质,facade material


建筑的体量原则同样延续至室内空间。生活空间经过简化,材质选择更加低调。建筑中心的入口大厅去除了原先繁冗的建筑元素,开敞至街道和内庭院,为建筑内的各功能区提供了清晰的导向。整体空间更加明亮,色调以中性色为主。配备了适合成人和儿童使用的定制木质家具。去除了以往设计留下的繁杂痕迹,空间焕然一新,为儿童创造了更加舒适、自由的活动环境。
The building’s volumetric principles have also been implemented in its interior spaces. The living spaces have been simplified and their materiality has been toned down. At the centre of the building, the entrance hall has been stripped of all the superfluous and cumbersome architectural elements that previously filled it, and it finally opens to the street outside and onto the inner courtyard, providing a clear orientation of the different programmes in the building. The spaces are brighter, with neutral tones. Made-to-measure wooden furniture, suitable for use by adults and children, has been installed. The spaces, previously burdened by architectural choices from bygone times, can now be fully enjoyed by the children.
▼室内概览,interior oveerview



▼色调以中性色为主,neutral tones


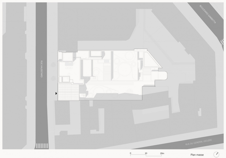
▼总平面图,site plan

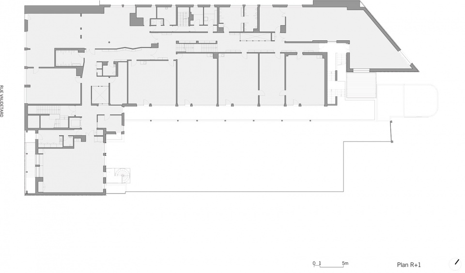
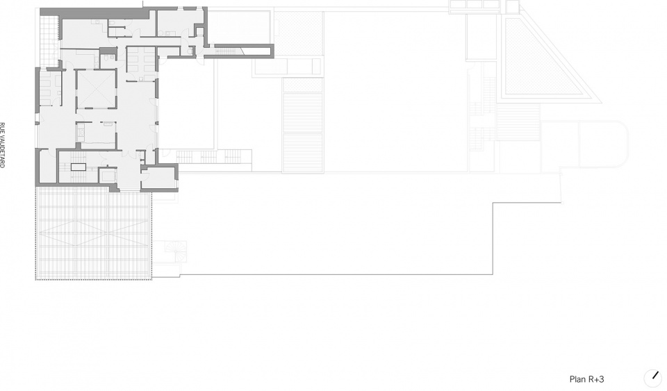
▼平面图,plan




▼立面图,elevations




▼剖面图,sections


Address : 19 rue Vaudetard, 92130 Issy-les-Moulineaux, France
Programme: Crèche and nursery school
Client: Ville d’Issy-les-Moulineaux
architect : antonio virga architecte
project manager : Miguel Allen
construction management : Batscop
Structural engineering: Bollinger & Grohmann
M&E engineer : Emenda
Economist: Delomenie
Surface area
interior spaces: 2710.81 sq m
exterior spaces: 1419.78 sq m
Cost: 5,435,615.46 EXCL VAT
Competition: March 2019
Construction period: 12 months
Handover: August 2022
Structural work: SAS Ehrmann
Metalwork: S3M
Roofing: Balas
Structure and wooden façade: SAS Ehrmann
Facade: SAS Ehrmann
External fenestration: Diter
Carpentry and interior fittings: MERI
Plaster work and Painting: DBRL
Hard and soft floor coverings: Eliez
Electricity : Salmon
HVAC and plumbing: Reolian














