南京南部新城新虹花加油站 / 同济原作工作室
概况与定位Overview and Positioning
“ 红花 ”加油站——南京南部新城新虹花加油站位于秦淮区红花街道南部新城核心区西北侧 ,南临红花路 ,西临大明路 ,北临规划商住地块 。项目用地面积约 2082.02 平方米,建筑高度≤12米,容积率≤0.25。
The “Red Flower” gas station is located in the northwest core area of the Southern New City in Honghua Subdistrict, Qinhuai District, Nanjing. It enjoys a prime location, bordered by Honghua Road to the south, Daming Road to the west, and a planned commercial-residential plot to the north. The project covers an area of 2,082.02 square meters, with a building height limit of 12 meters and a floor area ratio of no more than 0.25.
▼鸟瞰,aerial view

南部新城一直坚持按照“ 世界眼光、国际标准、中国特色 、高点定位 ”的要求,全面打造“ 长三角中央活力区、都市圈总部集聚区、现代化主城新中心 ”。“红花 ”加油站位于南部新城核心区西侧重要交通节点 ,设计方案秉承“ 碳达峰、碳中和”理念 ,并结合大校场区域历史元素 ,充分考虑了区域文化和现代元素的融合 。建筑为提升南部新城建设水平、充分发挥土地的空间价值 、形成新的区域吸引力都有重要的作用。
Southern New Town has been adhering to the requirements of “ world vision,international standards, Chinese characteristics, high positioning ‘, to fully build ’ Yangtze River Delta Central Vitality Zone, the metropolitan area headquarters agglomeration area, the new center of the modern main city ”. “Saffron” gas station is located in the core area of the southern new city west of the important transportation nodes, the design plan adhering to the ‘carbon peak, carbon neutral’ concept, and combined with the Daxuechang regional historical elements, giving full consideration to the integration of regional culture and modern elements. The building is of great value in upgrading the construction level of the southern new town, giving full play to the spatial value of the land, and forming a new regional attraction.
▼城市环境,urban context

城市性的回应Urban Response
建筑选址位于红花路和大明路的交叉口 ,来往车流量、人流量很大 ,周边各类型建筑众多 ,建设密度较大 ,相邻地块还面临接下来的城市开发 。从城市形象和城市功能来说, 如果仅仅做一个常规的满足功能的加油站 ,具有较大的“ 邻避效应 ”风险 ,也很可能造成城市形象展示不足的遗憾。
The site is located at the intersection of Honghua Road and Daming Road, an area with significant traffic flow and pedestrian movement. It is surrounded by a variety of building types, and the construction density is high. Additionally, the neighboring plots are expected to undergo future urban development. From both an urban image and functional perspective, simply constructing a conventional gas station would pose a significant “not-in-my-backyard” (NIMBY) effect risk, and would likely fall short of contributing to the city’s overall image.
▼建筑概览,overview


为了不辜负这处可贵的城市转角空间资源 ,设计在最初的定位上就丰富了加油站的身份 ,将其视为一系列“ 城市驿站 ”的建设起点 ,希望能够在南部新城借着一系列具有基础设施内涵的必要性建设的机会 ,发挥其布点均匀 、位置重要的优势 ,叠合服务功能 、审美意义和文化呈现 ,打造一个带有公共性和开放性的服务建筑体系 ,令其像公共艺术、 城市雕塑一般装点城市和人们的日常生活。
In order to make the most of this valuable urban corner space, the design sought to enhance the identity of the gas station from the outset. Rather than being a simple service facility, the station was envisioned as the starting point for a series of “urban hubs.” The intention was to leverage opportunities provided by necessary infrastructure developments within the Southern New Town, and take advantage of the site’s strategic location and accessibility. By integrating service functions with aesthetic significance and even cultural expression, the project aims to create a public, open service building system. The station, in this context, becomes a piece of public art or an urban sculpture, enriching the cityscape and people’s everyday lives.
▼侧向透视,Side View Perspective

在地文化与形态Local Culture and Form
项目这个区域被命名为“ 红花 ”,来源于一种名为红蓝 花的植物 ,寄托了人们美好的想象 ,也形成了此地独特的集 体身份认同 , 因此“ 红花 ”成为了形态创作的最初动机 ,也是对于在地文化的呼应 。设计团队对于红花的形状特点进行解读和结构化重构 ,形成单元化的红花绽放的形象 , 以不同方向互相搭接的红花单元组合成为罩棚 ,并延伸到建筑内部, 定义出了使用空间。在“ 红花 ”的形象塑造中 ,采用了几何简化和抽象化的策略 ,这样的表达让建筑规避了过分具象和世俗化的风险,也让建筑可以有更多的可阅读空间和更多的理解的可能性 ,使得建筑的审美可以更加耐久和经典 。建筑的红色也没有选取标准的大红色 ,而是仔细控制其明度和饱和度 ,让其既能吸引目光又足够融入周边的城市环境。
▼红花形态抽象,Abstraction of the Red Flower Shape

▼单元的扩展拼接,Modular Expansion and Connectione

▼轴测,axon

The area is named “Red Flower,” derived from a plant called red-blue flower, symbolizing people’s beautiful aspirations and forming a unique collective identity. Thus, “Red Flower” became the initial inspiration for the design, reflecting the local culture. The design team interpreted and structurally reconstructed the shape of the red flower, creating a modular image of blooming red flowers. These units, interconnected in different directions, form the canopy and extend into the building’s interior, defining the functional spaces. In shaping the “Red Flower” image, the design employs geometric simplification and abstraction, avoiding overly literal and mundane expressions. This approach allows the architecture to offer more interpretative space and enduring, timeless aesthetics. The red color of the building is carefully controlled in brightness and saturation, ensuring it attracts attention while harmonizing with the surrounding urban environment.
▼加油空间,Fueling Space


建筑公共开放性Public Accessibility and Openness
加油站本身必须满足安全要求和功能要求 ,其空间一般可以分为作业区和辅助区 ,周边需要有隔离 ,设计团队在充分尊重并满足规范的前提下 ,尽量做到公共和开放 。在与周边地块的隔离上 ,仍然采用实体围墙 ,但是与城市转角人行道的隔离中 ,采用了通透栏杆和绿植相结合的方式 ,保证了作业区的安全管控要求 ,也满足了建筑的有效呈现和城市转角的通透性。与此同时,设计团队挖掘了辅助区和站房内部的空间潜力 ,在界面上 ,尽量采用落地窗或玻璃幕墙 ,让内部的便利店功能充分外显 ,并将出入口尽量设置于转角附近 ,方便加油和路过的人们进入 ,将内部楼梯外化,并将二楼的走道加宽,连接到二层“ 红花” 下的观景平台,人们可以在具有丰富感受的一系列开放空间内休憩探索 ,为可能的文化展示创造条件 ,进一步增加了开放空间的复合性。
A gas station must meet specific safety and functional requirements, which typically divide the space into operational and auxiliary areas, with necessary safety barriers surrounding the site. While adhering to these safety standards, the design team aimed to maximize public accessibility and openness.
To achieve this, a solid perimeter wall is used for the site’s boundary; however, for the separation from the urban corner pedestrian sidewalk, a transparent railing combined with greenery was employed. This design solution ensures the safety and control of the operational area while maintaining the visual permeability of the building and its integration into the urban corner.
Moreover, the design team explored the spatial potential of the auxiliary area and the interior of the station building. The use of large windows or glass curtain walls on the facades enhances the visibility of the convenience store, making its services more apparent to passersby. The entrances were strategically placed near the corner to facilitate easy access for both fueling customers and pedestrians. The interior staircase is externalized and turned into a feature, while the second-floor walkway was widened, connecting to an observation platform under the “Honghua” structure. This platform offers a space for people to rest and explore, surrounded by a series of open spaces that foster a dynamic experience. This approach not only creates opportunities for potential cultural exhibitions but also increases the multifunctionality of the public space, enriching the overall user experience.
▼绿树映衬下的红花状结构,The Red Flower-Inspired Design Framed by Lush Trees

▼交错形成的的红花形态罩棚,Canopy Formed by Interlocking Red Flower Shapes

▼结构细部,structure detail

一体化设计Integrated Design
在加油站的建筑设计中 ,为了保证其整体性和主题的鲜明性 ,在多个层面都采用了“ 一体化 ”的设计策略。
结构形态一体化:根据一束束的红花的形态特点和轮廓特征 ,采用一片片弧形切割的扁钢形成空间形态 ,同时梁柱延展完成了建筑的结构支撑 ,在外立面的装饰中并没有做额外的包覆,只是做了颜色的涂装 ,完整的展示了结构体系, 也让整个建筑充满了理性 、逻辑的结构之美。
站房罩棚一体化: 罩棚的高度和二层建筑的高度相同, 拼合的罩棚和站房相连成为一体 ,统一了加油站最重要的两个空间要素 ,一改大量存在的两者分置的状态 ,钢结构的形态特点在站房内部也加以呼应 ,人们的空间感受得到了统一。
设施结构一体化:在建筑设计中也考虑了加油工艺设施 的布局 ,尤其是加油机 ,因其在罩棚下是最明显的设施 ,设计考虑将其与结构进行整合 ,在结构设计中为加油机预留了 空间 ,在安装时定制加油机并将其嵌入结构柱之中, 加油站的功能特点得以恰当而得体的呈现。
In the design of the gas station building, the strategy of “integration” was employed at multiple levels to ensure the overall cohesion and clarity of the theme.
Structural and Morphological Integration: Drawing inspiration from the shape and outline of blooming safflowers, the design utilizes curved, sheet-like steel plates to create spatial forms. Simultaneously, the beams and columns extend to provide structural support for the building. The external facade does not feature additional cladding but instead highlights the structure itself with a simple color coating, fully exposing the structural system. This approach showcases the rational and logical beauty of the architecture’s structural design.
Canopy and Station Building Integration: The height of the canopy aligns with the second floor of the station building, seamlessly connecting the two elements into one unified form. This integration unifies the two key functional spaces of the gas station, breaking away from the common practice of separating them. The structural characteristics of the steel frame are echoed inside the station building, ensuring that the spatial experience feels cohesive and unified for users.
Facility and Structure Integration: The layout of the fueling facilities, especially the fuel dispensers, was carefully considered in the design, as they are the most prominent features beneath the canopy. The design integrates these dispensers with the structural framework by reserving space for them within the columns during the structural design phase. In the installation process, the fuel dispensers were partially customized and embedded within the structural columns. This thoughtful integration allows the station’s functional elements to be presented in a refined and appropriate manner.
▼罩棚与建筑一体化,Integration of the Canopy and the Building

▼加油机与结构结合,Integration of Fuel Dispensers with the Structure

▼廊架覆盖下二层露台,A Canopy-Shaded Terrace on the Second Floor

加油站设计以建筑设计为抓手 ,整合了功能 、形态 、文化 、城市性等多种要素和信息 ,让基础设施转变成为高品质城市驿站 ,让简练隽永的几何红花绽放在红花盛开的地方。
The design of the gas station leverages architecture as the key driver, integrating various elements such as function, form, culture, and urban context. This approach transforms the infrastructure into a high-quality urban hub, where the timeless and concise geometry of the safflower blooms in the very place it is celebrated.
▼一瞥,a glimpse

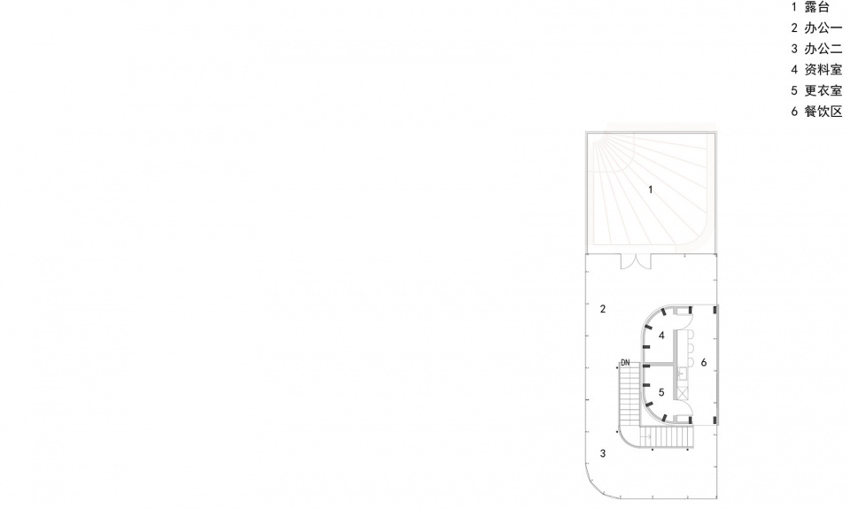
▼一层平面图,1F plan

▼二层平面图,2F plan

▼屋顶层平面图,RF plan

▼北平面图,north elevation

▼西平面图,west elevation

▼东立面图,east elevation

▼剖面图,section

Project Name: Nanjing Southern New City Xinhonghua Gas Station
Project Address: No. 1, Honghua Road, Qinhuai District, Nanjing
Construction Unit: Nanjing Southern New City Convention and Exhibition Center Development Co., Ltd.
User Unit: Nanjing Xinhonghua Gas Station Co., Ltd.
Lead Design Unit: Original Design Studio, Urban Architecture Design Institute, Tongji University Architectural Design and Research Institute (Group) Co., Ltd.
Lead Architects: Zhang Ming, Zhang Zi, Wang Xunan
Architects: Ding Chun, Ding Kuo, Zhang Wenjun
Construction Drawing Design: China Machinery International Engineering Design and Research Institute Co., Ltd.
Photography Copyright: Daily Architectural Photography – Liu Guowei














