首都国际会展中心(CIECC),北京 / Zaha Hadid Architects
首都国际会展中心(CIECC)将北京现有的展览场地面积扩展至超过611,000平方米。新建设了九个展览馆、三个接待厅、一个可容纳9,000名代表的会议中心以及一个设有410间客房的酒店。CIECC的模块化建造大大缩短了开发时间,同时也降低了投资和运营成本。
CIECC expands Beijing’s existing exhibition venue to over 611,000 sq. m. Providing nine new exhibition halls, three reception halls, a conference centre for 9,000 delegates and a hotel with 410 rooms. CIECC’s modular fabrication and construction minimized the centre’s development time, investment and operational costs.
▼外观概览,overall of the project

作为商业、文化和政府的中心,北京在服务业和数字技术行业迅速发展。随着北京企业部门的持续扩张,城市举办会议、国际会议和行业博览会的需求日益增加,吸引了来自中国乃至全球的代表。
A leading centre of commerce, culture and government, Beijing has seen significant growth in the city’s service and digital technology industries. This continued expansion of Beijing’s corporate sectors has increased demand for the city to host conventions, international conferences and industry expos attended by delegates from throughout China and around the world.
▼入口,entrance


为应对这种需求增长,由扎哈·哈迪德建筑事务所设计的新首都国际会展中心(CIECC)成为北京最大、最先进的展览和会议场所。新中心不仅拓展了现有设施,还新增了九个展览馆、三个接待厅、一个可容纳9,000人的会议中心和一个410间客房的酒店。
▼立面系统,Facade Systems


Meeting this growth, the new Capital International Exhibition & Convention Center (CIECC) by Zaha Hadid Architects is Beijing’s largest and most advanced exhibition and convention venue; expanding the city’s existing facility to over 611,000 sq. m with nine new exhibition halls as well as three new reception halls, a conference centre for 9,000 delegates and a hotel with 410 rooms.
▼外观,exterior views


▼中央庭院上方的桥梁,the bridge over the central courtyard

▼有遮蔽的户外活动空间和景观花园,sheltered outdoor space and landscaped garden

CIECC位于北京地铁15号线附近,坐落于顺义区,临近首都国际机场。中心的南北主轴是九个展览馆的主要连接线,提供了明确的导向、极高的灵活性和效率,还创造了一个包括遮蔽的户外活动空间和景观花园的中央庭院聚集地。
Located on Line 15 of the Beijing Subway network within the city’s Shunyi District adjacent to Capital International Airport, the CIECC’s central north-south axis serves as the primary connector between the nine exhibition halls; providing navigational clarity, maximum flexibility and efficiency, as well as creating a central courtyard and gathering place within sheltered outdoor event spaces and landscaped gardens.
▼外观近景,closer view of exterior

▼深铜色褶皱外立面,deep copper pleated facade

▼近景,closer view

设计以“丝带”为概念,将所有新设施紧密连接。中央庭院上方的桥梁连接展览馆、会议中心和酒店,实现了室内各活动空间的无缝流通。会议中心和酒店位于场地北侧,共同界定了一个新的用于展览和活动的公共广场。CIECC内部的人流、货物流和车流被划分为三条独立路线,优化流通,增加适应性,同时避免不同活动之间的干扰。
Conceived as ‘ribbons’ that weave together all the new facilities, bridges above this central courtyard also connect the exhibition halls, conference centre and hotel, to provide indoor circulation between event spaces. The conference centre and hotel are located to the north of the site, defining a new public square for exhibitions and events. The movement of people, goods, and vehicles throughout the CIECC is divided into three distinct routes to aid circulation, provide optimal adaptability and avoid disruption to different concurring events.
▼大型后退式窗户,large, recessed windows

▼褶皱外立面,pleated facade

CIECC的复合屋顶系统采用对称的几何形状,形成了一个隔热、轻质、大跨度的结构,提供了可快速适应不同展览和使用需求的无柱空间。
The CIECC’s composite roof system of symmetric geometries creates an insulated, lightweight, large-span structure providing column-free spaces that can be quickly adapted to changes in exhibitions and nature of use. This modular fabrication and construction minimized the centre’s development time, investment, and operational costs.
▼屋顶,roof

▼“丝带”般的结构,”ribbon” like structure

▼外观细部,details of exterior

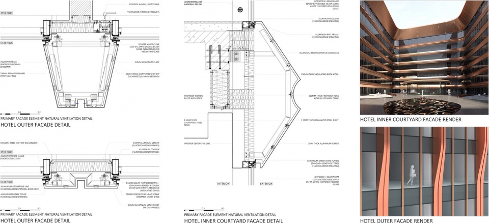
中心的建筑设计流畅,采用深铜色褶皱外立面和大型后退式窗户,巧妙平衡了CIECC的巨大工业规模和材料感。
The centre’s fluid architectural language and pleated, deep copper-coloured façade incorporating large, recessed windows, have been designed to balance the CIECC’s immense industrial scale and materiality.
▼外观细部,details of the exterior


▼外立面细部,details of the facade


中心获得中国绿色建筑最高认证,采用智能建筑管理系统和混合通风技术,确保最佳自然通风,配合高效能HVAC设备提升室内空气质量并最大限度降低能耗。CIECC的雨水收集、灰水回收和光伏发电系统将减少对城市公共供应系统的水和能源需求。
Achieving the highest certification of China’s Green Building Program, the centre uses smart building management systems with hybrid ventilation, ensuring optimum natural ventilation supported by high efficiency HVAC equipment to enhance indoor air quality and minimise energy consumption. Rainwater collection throughout CIECC’s extensive footprint, grey water recycling, and photovoltaics for on-site energy generation will reduce water and energy demand from the city’s municipal supply.
▼入口大厅,entrance lobby

▼入口大厅,entrance lobby

▼侧厅,side lobby

▼上层空间,upper floor space


▼细部,details

▼场地平面图,Site Plan

▼展览中心平面-L01,Exhibition Plan-L01

▼展览中心平面-L02,Exhibition Plan-L02

▼展览中心平面-屋顶,Exhibition Plan-Roof

▼会议中心平面-L01,Conference Plan-L01

▼会议中心平面-L02,Conference Plan-L02

▼会议中心平面-L03,Conference Plan-L03

▼会议中心平面-L04,Conference Plan-L04

▼会议中心平面-屋顶,Conference Plan-Roof

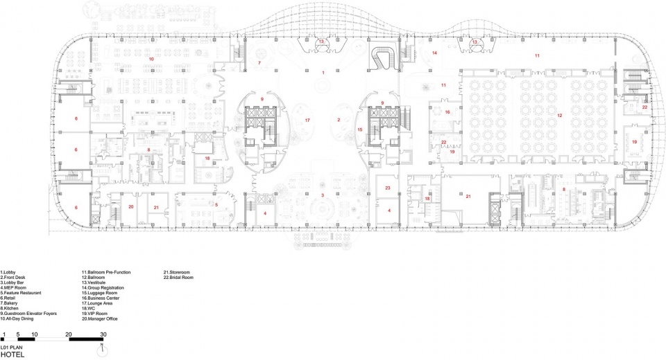
▼酒店平面-L01,Hotel Plan-L01

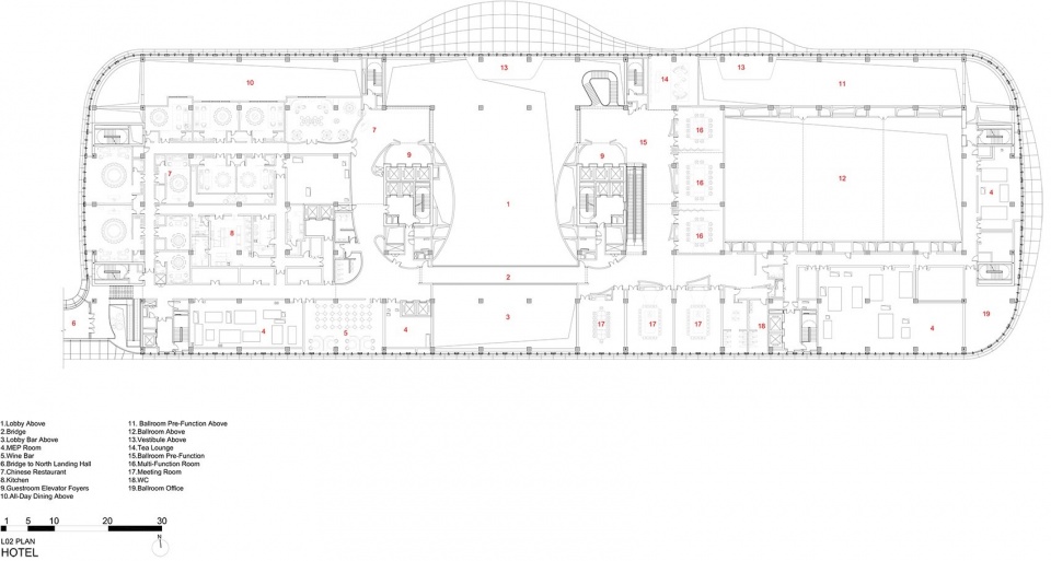
▼酒店平面-L02,Hotel Plan-L02

▼酒店典型平面-L05-06,Hotel Plan-Typical-L05-06

▼会议中心立面,Conference Center Elevation

▼展览中心立面,Exhibition Center Elevation

▼酒店立面,Hotel Elevation

▼展览中心剖面,Exhibition Section

▼会议中心剖面,Conference Center Section

▼酒店剖面,Hotel Section

▼会议中心立面细节,FacadeDetails_CC

▼酒店立面细节,FacadeDetails_Hotel

▼桥梁,外墙结构布局,Bridge, Cladding Geometry Setout

▼桥梁,底部结构布局,Bridge, Soffit Geometry Setout

▼会议中心,立面结构布局,Conference Center, Facade Geometry Setout

▼会议中心,平面及结构布局,Conference Center, Plan & Geometry Setout

▼东侧大厅,外墙结构布局,East Landing Hall, Cladding Geometry Setout

▼展览馆布局,Exhibition Hall Setout

▼展览馆,机电设备盒结构布局,Exhibition Hall, MEP Box Geometry Setout

▼展览馆,整体结构布局,Exhibition Hall, Overall Geometry Setout

▼展览馆,折叠屋顶结构布局,Exhibition Hall, Pleated Roof Geometry Setout

▼酒店,主要垂直元素布局,Hotel, Primary Vertical Element Setout

▼北侧大厅,整体结构布局,North Landing Hall, Overall Geometry Setout

▼北侧大厅,折叠屋顶结构布局,North Landing Hall, Pleated Roof Geometry Setout

▼南侧大厅,整体结构布局,South Landing Hall, Overall Geometry Setout

Project Team
Architect: Zaha Hadid Architects (ZHA)
Design: Patrik Schumacher
ZHA Project Directors: Satoshi Ohashi, Paulo Flores
ZHA Project Associates: Di Ding, Martin Pfleger, Clara Martins
ZHA Project Leads: Leo Alves, I-Chun Lin, Eduardo Camarena, Juan Montiel
ZHA Site Team: Di Ding, I-Chun Lin
ZHA Project Team: Satoshi Ohashi, Paulo Flores, Yang Jingwen, Di Ding, Cristiano Ceccato, Martin Pfleger, Clara Martins, Leo Alves, I-Chun Lin, Eduardo Camarena, Juan Montiel, Yihui Wu, Cristina Barrios Cabrera, Chen Lian, Dilara Yurttas, Felix Amiss, Gaoqi Lou, Hao Yang, Haotian Man, Huiyuan Li, Shuaiwei Li, John Kanakas, Kate Hunter, Nessma Al Ghoussein, Qiren Lu, Thomas Bagnoli, Meysam Ehsanian, Yushan Chen, Zhe Zhong, Xinying Zhang
ZHA Competition Project Directors: Satoshi Ohashi, Paulo Flores
ZHA Competition Associates: Yang Jingwen, Michail Desyllas
ZHA Competition Project Architect: Di Ding
ZHA Competition Team: Satoshi Ohashi, Paulo Flores, Yang Jingwen, Di Ding, Michail Desyllas, Eduardo Camarena, Enoch Kolo, Che-Hung Chien, Felix Amiss, Genci Sulo, I-Chun Lin, Jiaxing Lu, Juan Liu, Mariana Custodio dos Santos, Meng Zhao, Michael On, Nastasja Mitrovic, Nicolas Tornero, Ying Xia, Zheng Xu
Consultants
Executive Architect: Beijing Institute of Architectural Design
Local Architect: Beijing Institute of Architectural Design, Beijing BIAD Decoration Engineering and Design (Conference Center Interior), Beijing E.Scene Art Design Co. LTD (Exhibition Interior), Cheng Chung Design (Hotel Interior)
Structural Engineers: Beijing Institute of Architectural Design
General Contractor: China Construction Second Engineering Bureau LTD. and Beijing Construction Engineering Group
Façade Engineering: China Academy of Building Research
MEP: Beijing Institute of Architectural Design
Transport Consultant: Parking Management Organisation (Shanghai)
Fire Engineer: Tianjin Taida Fire Science and Technology LTD.
Landscape Consultant: Ecoland
Lighting Design: Toryo International Lighting Design Center
Site Supervision: RFR,CCAT
Urban Planning: AECOM
Photo by Virgile Simon Bertrand














