101FF 办公空间,武汉 / 万慕设计
时尚作为一个属于年轻人的行业,它形成了新的办公形式,需要更轻松自在更关注人本身的办公空间来适应它。在这个项目中,充分的光照让人充满活力,自然的洞石让人更有安全感,无矫饰的现代工业材料让人注意力集中,以及去掉繁琐的空间划分是为了去除上下级划分感。这所有的设计语言的运用都指向“开放”和“流动”。
Fashion, as an industry belonging to young people, it has formed a new form of office, which needs to be more relaxed and more focused on people space to accommodate it. In this project, ample lighting energizes people, while natural cave stones make people feel more secure. The modern industrial materials without pretense make people focus, and the removal of cumbersome space division is to remove the sense of superior and subordinate division. The application of these design principles revolves around “openness” and “flow.”
▼办公空间,Office space


入口Entrance
主入口位于场地南侧,只使用矮墙为院墙,保证视线通透,阳光充足。保留场地原有樟树,为进入室内空间增加层次,并硬化院落地面作为活动场地。
▼入口动图,GIF of entrance

The main entrance is located in the south of the site, with only low walls as the courtyard walls to ensure clear sight and sufficient sunlight. The original camphor trees on the site are retained to add layers to the interior space, and the courtyard ground is hardened as an activity area.
▼入口,Entrance


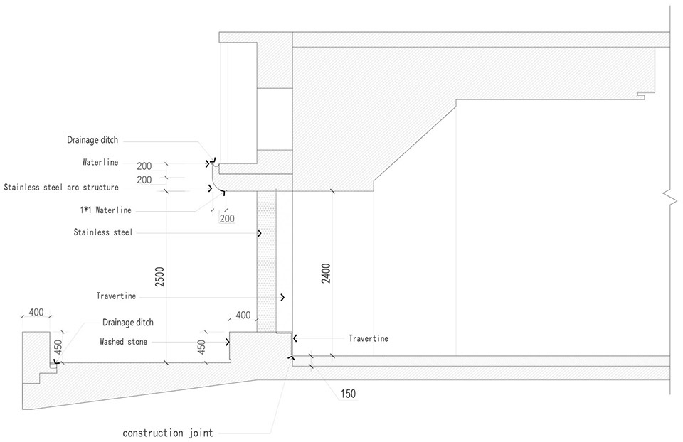
门头斜顶和茶水间向外折叠窗塑造原始房屋一门一窗的意向,入口采用喷砂不锈钢电动门和玻璃双开门,出檐部分采用不锈钢材质进行弧形包袱。
Slanted roof of the storefront and outward-folding windows of the tea room recall the rustic charm of the original house with one door and one window. The entrance features a sandblasted stainless steel electric door and double glass doors, and the overhanging part is clad with arc-shaped stainless steel, presenting a sleek yet nostalgic look.
▼入口,Entrance

▼剖面图示意,Sectional view

▼入口,Entrance


内侧采用无框玻璃门,沿街部分采用不锈钢弧形屋檐与玻璃落地窗搭配为表皮,为室内提供更好的视野与采光,向外展现出工业未来的氛围。
Inside, frameless glass doors are used. Along the street, an exterior of stainless steel curved eaves paired with floor-to-ceiling glass windows provides superior indoor views and natural light, exuding an industrial-futuristic ambiance outwards.
▼细节,Detail


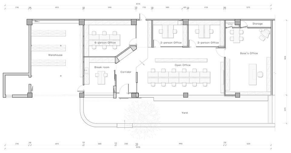
主要办公区域 Main Office Area
为了满足实际需求和为空间打造亮点,在入口部分采用45°的斜切,利用斜切墙面作为展示橱窗,缩短动线的同时激活平面,并与开放式办公区的倾斜发光灯膜相呼应。
To meet practical needs and create highlights for the space, a 45° bevel cut is employed at the entrance, utilizing the beveled wall as a display window to not only shorten the movement route but also activate the plane, while echoing the inclined light-emitting film in the open office area.
▼办公空间,Office space

室内橱窗:入口一侧的斜墙面被利用成类似橱窗的空间,用于展示不同内容,根据潮流风向或节日主题来布置不同的内容。
The inclined wall beside the entrance is transformed into a showcase-like space, utilized for displaying various contents tailored to fashion trends, seasonal themes, or festive occasions.
▼橱窗,Window

垂直方向上不封闭空间,抬高整体区域,利用半高柜划分办公与走廊区域;旨在使人们在空间中的移动更加灵活开放,期望空间中的人们也能更活跃起来。
The space features an open vertical design, with an elevated area and half-height cabinets dividing offices from corridors, promoting flexibility and interactivity among users.
▼办公空间,Office space



地台下设置灯带,强调边缘的同时为空间增加低位灯光,使整个空间弥漫均匀舒适的灯光。
With the addition of light strips beneath the raised floor, the design emphasizes the edges while providing low-level illumination, flooding the entire space with even and comfortable lighting.
▼细节,Detail


不划分工位,整面落地窗弱化室内外分隔,大片顶面灯光塑造均匀的光线,为主要办公区域塑造最舒适的环境;半高柜和磨砂玻璃保证内侧的二人办公室有良好的间接采光。
No individual workstations, full-height windows blurring indoors-outdoors, even ceiling lighting for a cozy main office. Half-height cabinets & frosted glass ensure good indirect light for enclosed offices.
▼平面分析图,Plan analysis diagram

▼办公空间,Office space




灯膜向办公桌方向倾斜,隐藏了原空间中低矮的横梁并为办公区域提供均匀灯光。采用工业材料不锈钢与自然材料洞石对撞作为主要材料为空间定调,为办公空间注入活力。
The light film tilts towards the desks, hiding the low beams in the original space and providing even lighting for the office area. The use of stainless steel as an industrial material juxtaposed with natural travertine as the main materials sets the tone for the space, injecting vitality into the office environment.
▼细节,Detail


▼剖面图,Sectional view


茶水间 Pantry
入口走廊尽头展示墙左侧为茶水间,柜体全部采用不锈钢材质包覆,房间南侧向外开窗,使空间开敞明亮,为茶水间创造轻松愉悦的氛围。
The pantry at the end of the corridor has stainless steel cabinets and south-facing windows, making it bright, open, and a pleasant place for breaks.
▼茶水间,Pantry

▼细节,Detail


办公室 Office
由于私密性需求,设有四个封闭办公室,一个六人办公室和两个两人办公室位于北部空间,磨砂玻璃和型材玻璃办公桌为小空间塑造轻盈开放的感受。
Four enclosed offices (1for6,2for2) in the north use frosted/profiled glass desks for privacy while keeping spaces feel light and open.
▼轴测图,Isometric drawings

▼办公室,Office


▼六人办公室,Office for six


董事长办公室位于空间东侧尽端,有安静与良好的光照条件,同时使用木地板铺装为办公室塑造柔和舒适的氛围。
The chairman’s office is located at the far east end of the space, enjoying quietness and excellent natural light. Wooden flooring is used to create a soft and cozy atmosphere in the office.
▼董事长办公室入口,Entrance to the chairman’s office

▼董事长办公室,Chairman’s office


▼平面图,Plan

型材办公桌 Profiled desk
利用工业铝型材设计全部可拆卸再回收利用的桌子,利用材料本身特点可以根据使用场景和需求灵活调整桌子形态即大小,双人办公桌、六人办公桌、多人办公桌等多种形态,成本低廉还兼具极简美感。
Aluminum desks are designed for disassembly, recyclability, and cost-effectiveness. They adapt to different sizes and setups (double, six-person, etc.), while frosted glass tops add elegance. Sockets are hidden in stair-tread profiles, keeping wires out of sight for a clean, minimalist look.
▼办公桌爆炸图,Desk explosion analysisfig

▼六人办公桌,Desk of six


▼细节,Detail


搭配玉沙玻璃桌面,在两张桌子中间位置利用型材楼梯踏板嵌入插座,并隐藏线路,延续空间干净简洁的氛围。
Coupled with frosted glass tabletops, sockets are embedded within the aluminum stair-tread profiles positioned at the center of two desks, effectively concealing wires and maintaining the clean, minimalist aesthetic of the space.
▼细节,Detail




Project name:101FF Office Space
Project type:Office Space
Design:OneMoodDESIGN
Contact e-mail: panpan0404@qq.com
Design year:2023
Completion Year:2023
Leader designer & Team:Pan Pan,Zhang Yuan,Song qi,Chen quanfu,Lin ao
Project location:Shop 104, 1st Floor, Building 10, Chuanglifang Industrial Park, No. 18 Shiqiao 1st Road, Jiang’an District, Wuhan City
Gross built area: 300㎡
Photo credit: OneMoodDESIGN
Materials:Natural travertine, Artificial travertine, Stainless steel, Wood, Paint
Brands:101 FASHION FACTORY














