智慧制造园区,比利时 / XDGA
智慧制造园区汇聚了从事智能技术领域的企业和机构。该项目被构想为一个完全模块化且灵活的建筑,独立企业的单元可以自由调整、扩展或缩小,以适应不同需求。
The Smart Manufacturing Campus houses companies and institutions working in the field of smart technology. The project is conceived as a fully modular, flexible building in which the units of independent companies can be (re)arranged, expanded or reduced.
▼远景鸟瞰,aerial view at distance

▼街景,street view

▼项目外观,appearance


▼建筑与景观,architecture and landscape

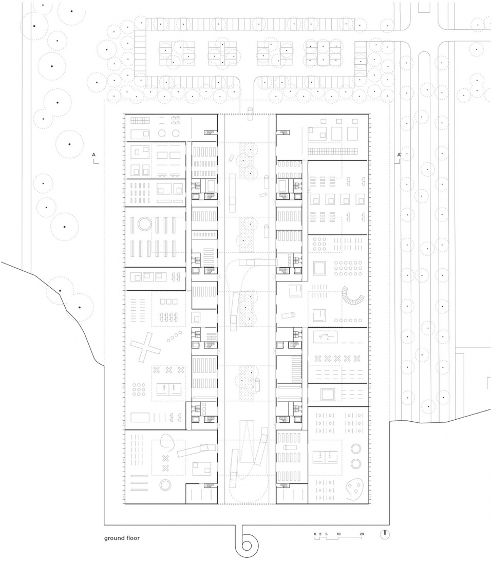
建筑的底层设有生产和储存空间,便于重型机械和车辆通过无柱的内部街道轻松抵达。
On the ground floor of the building are located all the production and storage spaces, easily reachable by heavy machinery and vehicles through a column-free inner street.
▼底层庭院,ground floor courtyard

▼储存空间,storage space

▼生产空间,production space

上层则围绕多个庭院布局办公区域,这些庭院不仅为员工提供了室内外休憩空间,还能将自然光引入下方车间的深处,提升室内采光质量。
On the upper level, the offices are housed around patios that not only create outdoor -or indoor- spaces for the staff, yet allow light to enter the deep interiors of the underlying workshops.
▼二层办公空间,upper working space

▼露台庭院,rooftop terrace

▼分析图,analysis diagram

▼总平面图,location plan

▼底层平面图,ground floor plan

▼二层平面图,first floor plan

▼地下层平面图,basement floor plan

▼剖面图,section

Place: Genk, Belgium
Program: production spaces, laboratories, offices and storage
Year: 2020 – 2024
Status: Built (1st Phase)
Client: MoThor NV (met aandeelhouders: LRM, StadGenk, HWW (holding Wetenschapspark Waterschei)
Surface: Fase 1: 7784m2 – Fase 2/3/4: 19500m2 – Fase 4parking : 5500m2
Designer: XDGA
Xaveer De Geyter, David Ampe, Joris De Greef, Arie Gruijters, Yasmine Houari
Consultants Bollinger & Grohmann (structure), Boydens Studiebureau – part of Sweco (mechanics), Daidalos-Peutz (acoustics), VK architects and engineers (fire-competition phase)














