Tammela体育场,芬兰 / JKMM Architects
芬兰首座混合型足球场于 2024 年春季在塔姆佩雷(Tampere)的Tammela区正式完工。这座新球场备受当地期待。该项目由塔姆佩雷市、Pohjola Rakennus建筑公司和JKMM建筑事务所组成的联盟共同推动,历经十余年的设计与建设才得以实现。
Finland’s first hybrid football stadium was completed in spring 2024 in the Tammela district of Tampere. The new stadium has been eagerly anticipated in the city. The project, which is a collaborative effort between the City of Tampere, Pohjola Rakennus, and JKMM Architects as part of an alliance, was in design and construction for over a decade.
▼项目鸟瞰,aerial view of the project


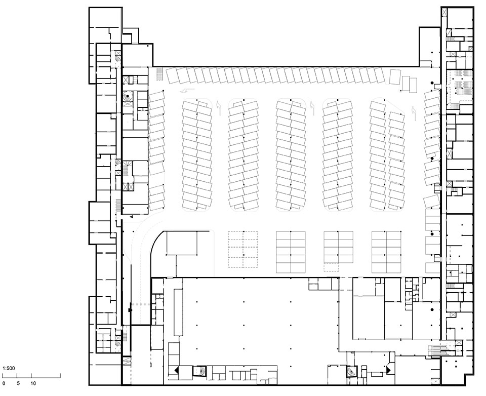
整个球场项目占地 13,500平方米,不仅为市民的体育活动提供高质量的设施,同时也能为8,000名观众呈现顶级足球赛事体验。该球场符合欧足联第4类别(UEFA Category 4) 的主要标准,因此可以举办 欧足联欧洲联赛(UEFA Europa League)和国家队比赛。此外,球场还可容纳15,000人,用于音乐会及其他大型活动。 该球场是一个 近 50,000平方米的混合型街区 的一部分,完善了城市结构,涵盖 八个相互连接的地块,包括足球场、五栋住宅楼、一座商业中心及配套停车设施。
The stadium project covers 13,500 square meters and provides high-quality facilities for both residents’ sports activities and top-level football experiences for 8,000 spectators. The stadium meets the main UEFA category 4 requirements, which means it can also be used for example UEFA Europa League and national team matches. Every seating position in the stadium offers an unobstructed view of the entire field. The stadium also accommodates 15,000 people for concerts and other various bigger events. The stadium is part of a nearly 50,000 square meter hybrid block, complementing the urban structure, consists of eight interconnected plots, including the football stadium, five residential buildings, a commercial centre, and parking facilities.
▼项目鸟瞰,aerial view of the project

以足球为核心的混合概念Hybrid concept on football’s terms
旧Tammela球场自1930年代初以来一直作为足球场地使用,是芬兰最早专为足球运动建造的体育场之一。尽管该地区面临城市密集化的需求,塔姆佩雷市政府仍希望在原址上保留这座历史悠久的球场。 2014年,市政府举办了一场邀请竞赛,寻找最优解决方案。JKMM建筑事务所的方案 “Hattutemppu”(意为“帽子戏法”) 最终获胜。该方案在紧凑的街区结构中,巧妙解决了城市设计、建筑、结构及交通挑战,同时尊重了该地区的历史特征和尺度。
The old Tammela stadium has been serving as a football pitch since the early 1930s and is one of Finland’s first sports venues built specifically for football. The City of Tampere wanted to preserve the stadium in its traditional location despite the need to densify the area. A solution was sought through an invited competition held in 2014. JKMM’s proposal, “Hattutemppu” (Eng. hat trick) won the competition by creatively addressing urban design, architectural, structural, and traffic challenges within the tight block structure while respecting the area’s character and scale.
▼球场鸟瞰,aerial view of the stadium

在这一混合型建筑中,建筑类型与结构交织融合。砖砌的住宅楼沿球场的长边布置,并面向活跃的街区空间。住宅庭院被抬升至屋顶层,形成错落有致的空间。球场内部设计紧凑,观众席从球场边缘直接升起,而玻璃入口则起到挡风作用,同时保持空间的开放感,使球场与周围环境紧密相连。
In the hybrid building, typologies and structures intertwine. The brick-clad residential buildings open to an active street space facing the long sides of the stadium. Their courtyards are elevated to the roof levels between the masses. In the compact football pitch, the stands rise immediately from the edges of the pitch. The stadium’s glass entrances shield the field from the wind while maintaining spatial connectivity with the surroundings.
▼球场与周围住宅相结合,stadium combines with the surrounding flat

球场最具标志性的设计是其自东向西的拱形屋顶。这一造型不仅呼应了球场悬挂式钢结构的特征,还与周边住宅楼屋顶相连,使整个街区建筑自然融合,并凸显球场的公共建筑属性。拱形屋顶的最低点位于球场纵向轴线上,确保遮阳篷不会在球场或北侧的学校操场上投下阴影。
The roof arching over the block from east to west is the most distinctive feature of the landmark. The stadium’s shape echoes the structure of the suspended steel canopies, extending onto the roofs of the residential buildings, blending the block with its environment, and indicating the nature of the public building. The lowest point of the arch is placed along the lengthwise axis of the field, ensuring that the canopy does not cast a shadow on the field or the northern schoolyard.
▼球场与周边住宅楼屋顶相连,extending onto the roofs of the residential buildings


▼周边住宅楼屋顶,the roofs of the residential buildings

▼周边住宅楼街景,street view of the residential buildings


可持续的城市策略Strategy for a more sustainable city
塔姆佩雷是芬兰最具吸引力的城市之一。通过 可持续且高质量的城市中心密集化建设,进一步增强了城市的活力与服务结构。球场施工时未拆除任何现有建筑,而是将旧观众席、照明设施和场地结构迁移至城市其他球场再次利用。球场位于市中心,依托现有基础设施,并可通过公共交通便捷抵达。球场的运营由本地足球俱乐部 Ilves Tampere负责。
Tampere is Finland’s most attractive urban area. Sustainable and high-quality densification of the city centre further strengthens the city’s vitality and service structure. No buildings were demolished at the stadium site; instead, old stands, lighting, and field structures were reused at other city fields. The stadium’s central location relies on existing infrastructure and is accessible by public transport. The local football club Ilves Tampere is responsible for the operation of the Tammela Stadium.
▼观众席,stands

球场的多功能性提升了使用效率,使其能够服务更广泛的用户群体。整个街区接入高效的区域供暖与制冷网络,并在结构设计时充分优化了建筑形态。屋顶采用浅色涂层,可吸收空气污染物并反射阳光,从而降低内部温度,提升空间舒适度。
The stadium’s versatility shortens its usage times, offering services to a broad range of users. The block is connected to an efficient district heating and cooling network. Optimisation of the structures was a key starting point in their design. The light-coloured roof surface cleans urban air pollutants and reflects light, cooling the spaces below.
▼屋顶结构,roof structure

这座混合型球场将充满活力的足球文化带入城市中心,观众可以从四面八方汇聚于此。球场不仅完善了 Tammela街区的整体规划,地面层的商业空间也进一步丰富了周边的服务功能。整个项目期待城市居民的热情参与和使用。
The hybrid stadium brings vibrant football culture to the heart of the city, with spectators arriving from different directions. The stadium complements the Tammela grid plan area. Ground-level commercial spaces add to the area’s services. The entire development awaits the city’s residents to embrace it.
▼将充满活力的足球文化带入城市中心,brings vibrant football culture to the heart of the city

微型城市的功能与建筑Miniature City functions and architecture
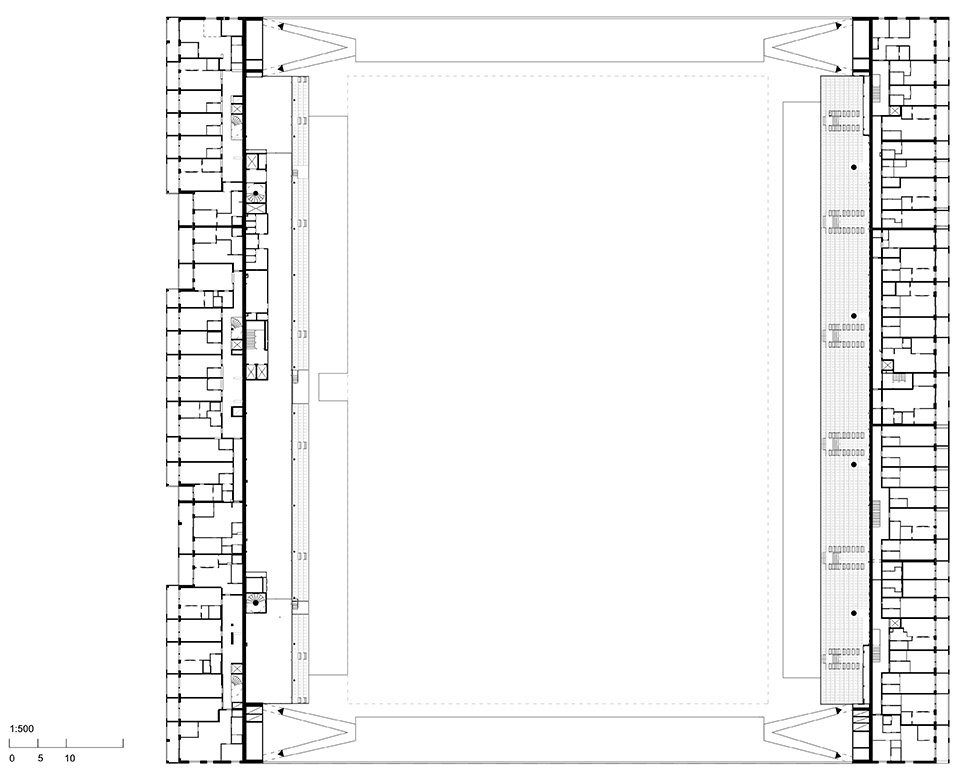
Tammela 球场犹如一座微型城市,承载着多种不同的功能,并无缝衔接城市街区网络。住宅楼朝向公园街道,球场的南北广场设有入口,观众可从街区四角进入场地。而客队球迷拥有独立的东北角入口,球员、贵宾、裁判及媒体则从球场西侧进入。停车场、商业中心及其配套设施位于地下层,可从南侧出入口进入。住宅楼的体量变化丰富,提供多样化的公寓类型,顶层公寓甚至可以俯瞰球场。
Tammela Stadium resembles a miniature city, containing many different functions. It seamlessly connects to the city’s block network. Residential buildings face park streets and the stadium’s southern and northern plazas, through which spectators enter the block’s corners. Visiting team supporters have their own entrance at the northeast corner of the block. Entrances for players, VIP spectators, referees, and the press are located on the west side of the block. Parking, the commercial centre, its maintenance, and residential support facilities are in the basement, accessed from the south side. The massing of residential buildings offers a diverse selection of apartments. The upper floors provide views in all directions, with the largest apartments even overlooking the field.
▼无缝衔接城市街区网络,seamlessly connects to the city’s block network

球场的观众入口位于端部看台下方,而场地维护设施则设在西北角。在街道层,球场的公共区域围绕球场三侧展开,并在二层设置额外的观众空间。主看台位于 东侧,西侧则设有餐厅、贵宾席及媒体席。在设计过程中,主看台上方额外增设了观众席,使球场符合欧足联第4类别标准。建筑照明强调球场的戏剧氛围,以增强观赛体验。艺术家Tommi Grönlund和Petteri Nisunen在遮阳篷下方创作了一件光影艺术装置 “Puolenvaihto”(意为“中场休息”),其动态光影图案呼应了足球运动的能量与动感。
▼轴测图,axonometric

The stadium entrances are located beneath the end stands, and pitch maintenance is at the northwest corner of the block. At street level, the stadium’s public spaces surround the pitch on three sides, with additional spaces on all sides in the second level. The main stand is situated on the eastern edge of the pitch, and the restaurant, VIP, and press stands are on the western edge. During the design phase, an additional spectator seats were added above the main stand, allowing the stadium to meet the UEFA category 4 requirements. The building’s lighting supports the drama of the stadium events. The design aims to create experiences. Artists Tommi Grönlund and Petteri Nisunen have created a light art installation called “Puolenvaihto” (Eng. half-time break) on the underside of the canopies. The graphic form of the moving light refers to the energy and movement of football.
▼球场,stadium

▼主看台,the main stand

▼球员区,the player area

▼主看台入口,the main stand entrance


▼看台,the stand

▼贵宾席及媒体席,VIP, and press stands


结构与材料Structures and materials
构造特性Tectonics
该项目的建筑具有构造性质,以结构形式和关节衔接为特征。建筑赋予结构以意义,而结构则赋予建筑以形式,并将其细节衔接起来。结构是有目的的,是为其功能服务的。看台没有柱子,末端雨篷的连接处可以移动。从近处看,结构的细节非常庞大,甚至有些粗糙。从远处看,它们构成了轻盈、近乎诗意的线条。从项目一开始,结构工程师、建筑师和建筑商之间的合作就在解决各种难题方面发挥了至关重要的作用。
The architecture of the project is tectonic in nature, marked by structural form and joint articulation. Architecture imparts meaning to the structure, and the structure gives form to the architecture, articulating its details. The structure is purposeful and serves its function. The stands are free of columns, and the end canopies’ joints allow for movement. Up close, the details of the structure are massive, even rough. From a distance, they form light, almost poetic lines. The collaboration between the structural engineer, architect, and builder has been crucial in resolving challenges from the start of the project.
▼结构形式,structural form

支柱Pillars
支柱主要是现浇钢筋混凝土墙和楼板结构的钢混柱。体育场的每个角落都有一根倾斜的支柱,支柱的底座是钢筋混凝土,顶部有一根预制的钢支柱,分两节。顶部周围有一个钢圈,与现场安装的钢支柱焊接在一起。钢支柱支撑着端部雨篷的压缩荷载,并通过地下室将其传递到地基。这种设置可防止住宅楼受到荷载压力,确保其翻新和使用寿命不受体育场的影响。
The pillars are primarily steel composite columns cast-in-situ reinforced concrete wall and slab structures. Each corner of the stadium has a sloped pillar with a reinforced concrete base and a prefabricated steel branch pillar in two sections at the top. The top is surrounded by a steel collar welded to the steel branch pillar installed on site. The steel branch pillars support the end canopies’ compressive loads and transfer them through the basement to the foundations. This setup prevents load stress on the residential buildings, ensuring their renovation and lifespan are independent of the stadium.
▼支柱,pillar

梁架Beams
梁包括餐厅看台一侧的WQ梁、主看台下部的钢筋混凝土梁以及阳台看台的焊接工字钢。端部看台由现浇钢筋混凝土墙和楼板结构支撑。
The beams include WQ beams on the restaurant stand side, reinforced concrete beams in the lower stand of the main stand, and welded I-beams in the balcony stand. End stands are supported by cast-in-situ reinforced concrete wall and slab structures.
▼梁架,beam

楼板Floors
楼板主要是空心楼板,有时也采用现浇结构。端部看台的支撑结构为现浇钢筋混凝土板结构。看台楼板结构为 L 型钢筋混凝土构件。
The floors are primarily hollow-core slabs and, in some cases, cast-in-situ structures. The supporting structures for the end stands are cast-in-situ reinforced concrete slab structures. The stand floor structures are L-shaped reinforced concrete elements.
▼楼板,floors

末端雨篷End Canopies
末端雨篷的特点是由六根缆绳支撑的桥状悬挂结构。钢索通过钢筋混凝土结构和倾斜的支柱结构固定在顶篷的两端。钢缆支撑着固定在钢缆上的钢梁构件。钢梁构件起到屋顶加劲件的作用,通过水平抗剪接缝在构件之间传递力。它们允许屋顶弯曲,允许钢缆伸展。
The end canopies feature a bridge-like suspended structure supported by six cables. The cables are anchored at the ends of the canopy with reinforced concrete structures and sloped pillar structures. The cables support the steel beam elements, which are secured to the cables. The steel beam elements act as roof stiffeners, transferring forces between elements through horizontal shear-resistant joints. They allow the roof to flex and the cables to stretch.
▼雨篷,canopy

端部玻璃墙End Glass Walls
端部玻璃墙的垂直钢结构受机械力作用。端部支架通过一个可移动的连接件支撑立面玻璃墙的钢结构。玻璃幕墙的底部与混凝土板相连,顶部采用铰链连接,允许横向移动。当雪荷载不均匀地影响屋顶时,该结构允许悬挂的顶篷垂直移动。
The vertical steel structures of the end glass walls follow the mechanical forces acting on them. The end stand supports the steel structure of the facade glass wall with a movement-allowing joint. The bottom part of the glass walls, attached to the concrete slab, is hinged to allow lateral movement at the top. The structure allows vertical movement of the suspended canopy when snow loads unevenly affect the roof.
▼端部玻璃墙,the end glass walls

侧面屋顶及屋顶Side Roofs & Roofs
看台的屋顶结构由钢塔结构支撑。屋顶钢结构由塔架结构通过塔架和钢结构之间的直接连接和钢棒支撑。每个塔架都由放置在住宅一侧保护管内的三根岩石锚定拉杆支撑。承重型材板安装在钢梁上,连接处的设计可满足钢梁构件之间的移动。在型材板的上方,屋顶由覆层胶合板和浅色沥青膜构成,可以清除空气中的污染物。侧面和末端的顶篷之间有一个活动连接,以适应结构的移动。
The roof structures of the side stands are supported by steel pylon structures. The roof steelwork is supported by the pylon structures through direct connections and steel rods attached between the pylon and steelwork. Each pylon is supported by three rock-anchored tension rods placed inside a protective tube on the residential side. The load-bearing profile sheets rest on steel beams, with joints designed to accommodate movements between the steel beam elements. Above the profile sheets, the roof is constructed with cladding plywood and light-coloured bitumen membrane that cleans air pollutants. The side and end canopies are separated by a movement joint that accommodates structural movements.
▼屋顶,roof

立面材料Facade Materials
建筑外围由浅色砖块砌成,两端装有玻璃和穿孔钢板。入口处的现浇混凝土表面延伸至体育场内部,由钢结构界定。绿色的人工草皮球场作为足球比赛的舞台,屋顶上有一个开口。
The block’s outer perimeter is clad in light-coloured brick, with glass and perforated steel plates on the ends. The cast-in-situ concrete surfaces of the entrances extend into the stadium’s interior, defined by steel structures. The green artificial turf of the pitch serves as a stage for football as size of an opening in the roof.
▼建筑外围由浅色砖块砌成,the block’s outer perimeter is clad in light-coloured brick

▼场地区位,site location

▼场地平面,site plan

▼地下一层平面,basement plan

▼一层平面,first floor plan

▼二层平面,second floor plan

▼三层平面,third floor plan

▼四层平面,fourth floor plan

▼八层平面,eighth floor plan

▼立面图,elevation



▼剖面图,section


▼草图,sketch


Location: Tampere
Functions: Football and public event building
In the hybrid block, in addition to the stadium, there are also five residential buildings, a commercial centre, and parking facilities across a total of eight plots.
Size: 13 436 m2 stadium (without the football pitch)
12 208 m2 Kalevan Puistotie residential buildings
9 688 m2 Salhojankatu residential buildings
12 421 m2 lower space (with commercial centre and parking facilities)
47 753 m2 total
Duration: Competition 2014
Detailed plan 2016
Feasibility study 2017
Development phase 2020–2021
Construction phase 2021–2024
Completion 2024
Main user: City of Tampere
Operator: FC Ilves Tampere
Client: City of Tampere
Contract: Alliance contract
parties City of Tampere – client
Pohjola Rakennus Oy Suomi – contractor
JKMM Architects – principal design and architecture
Integrated project execution in the hybrid block
parties Parties of the alliance contract + YIT Suomi Oy
Floor area 11 631 m2, of which 3,435 m² is heated space
Suspended end roof canopies x 2 length x width 103,5 m x 10,5 m = 1090 m2/ canopy
Suspended canopy over the east stand length x width 110 m x 19 m = 2090 m2
Steel-framed glass walls at the ends 1000 m2/ wall
Stadium site area 131 m x 109,5 m = 14350 m2
Total seating capacity 8000 – in a concert setting 15 000
CLIENT CITY OF TAMPERE
Virpi Ekholm, property manager (2016–2024) Properties, facilities, and housing policy
Mikko Nurminen, property manager (2014–2016)
Antti Lakka, Project Manager Facility services
USER CITY OF TAMPERE
Mikko Heinonen sports manager
OPERATOR FC ILVES TAMPERE
Risto Niklas-Salminen CEO
Toni Hevonkorpi stadium manager














