丽江厚苑,云南 / 李晓东工作室
01 内向不“内向”Introverted yet Open
▼厚苑,CASA NGULUKO

厚苑坐落于丽江玉湖村,这座拥有千年历史的村落,以石头外墙和木架屋顶的建筑传统承载着文化的沉淀。整个村庄自然生长,一侧是玉龙雪山,一侧是开阔的农田。
CASA NGULUKO is located in Yuhu Village, Lijiang—a village with over a thousand years of history, where stone exterior walls and wooden roof structures carry deep cultural heritage. The entire village grew organically, nestled between the Jade Dragon Snow Mountain and expansive farmland.
▼雪山脚下的厚苑,CASA NGULUKO at the foot of the snow mountain


▼融入村落肌理,Blend into the village fabric

厚苑的场地深嵌于村落肌理之中,四周环绕着传统纳西民居,自然形成了一种“内向”的空间特质。原场地由业主的旧民宿、祖宅与沿街商业建筑构成,设计在保留沿街建筑的基础上,拆除部分旧建筑,并重新梳理空间,使其更符合村落的肌理和秩序。建筑以“见缝插针”的方式介入,在村庄肌理中生长,与周边环境建立对话,而非以孤立的姿态存在。
The site of CASA NGULUKO is deeply embedded within the village fabric, surrounded by traditional Naxi dwellings, naturally forming an “introverted” spatial character. The original site consisted of the owner’s old guesthouse, ancestral home, and commercial buildings along the street. The design retained part of the street-facing buildings, demolished portions of the old structures, and reorganized the spatial layout to better align with the village’s texture and order. The architecture inserts itself in a “fill-in-the-gaps” manner, growing within the village context and engaging in dialogue with its surroundings rather than standing in isolation.
▼雪山、竹子、建筑的层次,Snow mountains, bamboo, building levels


厚苑既内向,又不内向,这种“内向”并非封闭,而是一种开放性的内敛。建筑摒弃了传统的外立面,使其在村落中几乎消隐。然而,步入其中,空间层层递进,视线与动线在围合的院落中不断展开,引导使用者进入一个层次丰富、充满变化的空间体验。
CASA NGULUKO is introverted yet not closed. This “introversion” is not about seclusion but rather an openness with restraint. The architecture forgoes a traditional façade, blending so seamlessly into the village that it nearly disappears. However, upon entering, the space unfolds layer by layer, with sightlines and pathways gradually opening up, guiding visitors into a rich, varied spatial experience.
▼院落构成,Courtyard composition

设计延续了玉湖村院落的空间原型,整理L形场地近乎两个院落叠合一间房,并在交界处设立核心公共空间。北侧设水院,以水的流动性串联空间,南侧则以围合庭院强化院落秩序。新建建筑与老宅子之间的院子保留。最终,三大院落层层围合,使建筑在保持自身空间逻辑的同时,通过不同层次的对话,生成丰富的场所体验。
The design continues the courtyard prototype of Yuhu Village, organizing the L-shaped site into two interlocked courtyards connected by a core public space. A water courtyard is placed to the north, using the fluidity of water to link spaces, while an enclosed courtyard to the south reinforces spatial order. The courtyard between the new buildings and the ancestral house is preserved. Ultimately, the three major courtyards form a layered enclosure, maintaining spatial logic while generating a rich experience through multi-level dialogue.
▼环境、露台、竹子的层次,The environment, the terraces, the bamboo levels

厚苑的隐匿性使其在村落中几乎不可见。从村庄主街望去,仅能窥见建筑一角,完整的外立面仿佛消失于传统肌理之中。然而,进入内部后,空间关系随即展开。
CASA NGULUKO’s subtle presence makes it almost invisible from the village. From the main street, only a glimpse of the building is visible; its façade seems to vanish into the village texture. Yet, upon entering, the spatial relationships immediately unfold.
▼环境、露台、竹子的层次,The environment, the terraces, the bamboo levels

02 以水为脉 Water as the Vein
▼中心水院,Central water yard


玉龙雪山不仅是纳西族文化的发源地,更是这一片土地上的生命之源。在纳西文化中,水具有重要的象征意义,它既是自然的一部分,也承载着人与环境的联系。
Jade Dragon Snow Mountain is not only the cultural birthplace of the Naxi people but also the source of life for this land. In Naxi culture, water carries deep symbolic meaning; it is part of nature and a vital connector between people and their environment.
▼水院倒影,Reflection in the water yard

▼入口小径,Entrance path

入口水系循序渐进,引导访客穿行于石、水、竹交错的自然序列中。这一动线如同《桃花源记》中所述:“初极狭,才通人。复行数十步,豁然开朗。”水不仅是物理的存在,更是空间的线索,将纳西文化与建筑体验有机融合。
The water sequence at the entrance gently leads visitors, guiding them through a natural choreography of stone, water, and bamboo. This route echoes the narrative from Peach Blossom Spring: “At first, the passage was extremely narrow, barely allowing a person to pass. After a few dozen steps, it suddenly opened up.” Water here is more than a physical presence; it serves as a spatial cue that organically blends Naxi culture with architectural experience.
▼中心水院,Central water yard

在厚苑,水的引入不仅是景观的一部分,更是空间秩序的重要构成。
In CASA NGULUKO, the introduction of water is not merely a landscaping element but a key component of spatial order.
▼中心水院,Central water yard


▼水院细节,Details of water yard




建筑的核心庭院——水院,成为视觉与感知的中心,水的流动与倒影赋予院落动态的秩序感。一侧是会客厅,另一侧是餐厅,两者围绕水庭展开,使用场景互相渗透,形成灵活而富有层次的空间体验。会客厅的木格栅可开可合,使空间的开放性与私密性可随情境调节。
The central water courtyard becomes the visual and sensory core, its flowing water and reflections giving dynamic rhythm to the space. On one side is the living room; on the other, the dining room. Both spaces unfold around the water courtyard, with their functions permeating one another, creating a flexible and layered spatial experience. The wooden grille of the living room can be opened or closed, allowing openness or privacy to be adjusted according to the context.
▼石墙洞口望向水院,Looking towards the water yard fom the opening of the stone wall

▼庭院楼梯,Courtyard staircase

在这一层层的空间对话中,水成为了连接内外的媒介,使建筑从封闭走向开放,从静态走向动态。这种水与空间的结合,使得厚苑在“内向”的同时,又展现出了丰富的层次与变化。
In this layered spatial dialogue, water becomes the medium connecting inside and outside, guiding the architecture from enclosure to openness, from static to dynamic. This integration of water and space allows CASA NGULUKO to remain “introverted” while displaying richness and variation.
▼水院细节,Details of water yard


03 层叠的对话Layered Dialogues
▼层叠露台,Cascade terrace

▼露台层次,Terrace layers



厚苑的设计不仅在平面上延续院落原型,在竖向空间亦构建了层次丰富的体验。核心水院作为轴心,通过层叠错落的露台将公共空间向垂直方向延展,模糊建筑的边界,使空间在多个维度上展开。
The design of CASA NGULUKO continues the prototype of courtyards not only on the horizontal plane but also builds a rich experience vertically. Centered around the core water courtyard, the cascading terraces extend public spaces upward, blurring architectural boundaries and unfolding the space across multiple dimensions.
▼露台层次,Terrace layers

▼露台层次,Terrace layers

客房部分与原有纳西老院子相连,使新旧建筑产生连续的对话。建筑的界墙在转角处形成独特的角院,使每间客房都拥有一个独立的小庭院,且每个庭院都独一无二。这种空间组织方式,使厚苑虽然整体内向,却并不封闭。水院与客房、露台与庭院、新院与老院之间建立起多重对话,在层次的交错中消解传统建筑的边界感。
The guest rooms connect to the original Naxi courtyard, creating continuous dialogue between new and old structures. The boundary walls form unique corner courtyards, ensuring each guest room has its own private courtyard, each one unique. This spatial arrangement allows CASA NGULUKO, while inward-looking, to avoid being closed off. Multiple dialogues emerge between the water courtyard and guest rooms, terraces and courtyards, new and old buildings, dissolving rigid boundaries within the traditional architectural framework.
▼客房直面玉龙雪山,Rooms face the Snow Mountain

▼浴室与玉龙雪山,Bathroom with Snow Mountain view

▼客房内部,Room interior

建筑的内向策略不仅是形式上的内向,更是一种与环境共生的方式。空间通过层次的递进、庭院的布局以及水系的引入,使整个场所既是自成一体的,又与周边村落形成对话的联系。在这一模式下,建筑超越了传统意义上的封闭与开放,构建了一种内外交融的空间关系。
The introverted strategy of CASA NGULUKO is not merely formal but a way to coexist with the environment. Through progressive spatial layering, courtyard layouts, and water systems, the entire place becomes both self-contained and connected to the village. This approach transcends the traditional closed-versus-open dichotomy, constructing a spatial relationship where inside and outside blend harmoniously.
▼庭院内装置,Installations in the courtyard

04 归属感的营造——真正的民宿A Sense of Belonging — A True Guesthouse
▼客厅,Living room

民宿不同于酒店,其核心在于主人与客人共享空间,并且更加注重人与人之间的链接与交流。民宿最早起源于欧洲的B&B(Bed & Breakfast)模式,便是乡村家庭开放多余房间,邀请旅人共享居住空间。厚苑在这一理念之上,进一步深化了“共生”的概念。
A guesthouse differs from a hotel in that its essence lies in the sharing of space between host and guest, placing greater emphasis on human connection and interaction. The concept of a guesthouse originated in Europe with the Bed & Breakfast model, where rural households opened extra rooms to travelers, inviting them to share the living space. CASA NGULUKO builds upon this idea, further deepening the notion of “coexistence.”
▼客厅,Living room

这里的客厅不仅是接待访客的空间,更是主人的生活场域。夜幕降临,纳西族的奶奶穿着传统服饰,小朋友从学堂归来,火塘点燃,客人与主人围坐畅谈。建筑消隐于村落,生活则在此延续,真正实现了民宿的本质——在地文化的承载者,人与空间的联结者。
Here, the living room is not only for receiving guests but also part of the host’s everyday life. As night falls, a Naxi grandmother in traditional dress may sit by the hearth, children return from the village school, and hosts and guests gather around to chat by the fire. The architecture disappears into the village, and life continues here, embodying the true essence of a guesthouse — a carrier of local culture and a connector of people and spaces.
▼入户小景,A small view of the entrance


厚苑不以独立的建筑个体存在,而是在村庄的肌理中找到自己的位置。它拒绝以孤立的形式彰显自身,而是以水为脉、以院为核,在多重层次的空间对话中,营造出一种隐匿而深厚的归属感。回到厚苑,是归来,是回家。
CASA NGULUKO does not exist as an isolated architectural entity but finds its place within the village fabric. It refuses to assert itself in isolation, instead using water as its vein and courtyards as its core, creating a profound sense of belonging through multi-layered spatial dialogue. Returning to CASA NGULUKO is not merely a visit—it is a return, a homecoming.
▼厚苑鸟瞰,CASA NGULUKO

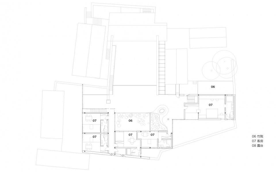
▼一层平面图,Ground floor plan

▼二层平面图,Second floor plan

▼三层平面图,Third floor plan

▼剖面图,Section

▼剖面图与立面图,Section & Elevation

Project Name: CASA NGULUKO
Project Location: Yuhu Village, Lijiang, Yunnan, China
Design Studio: Li Xiaodong Atelier
Chief Architect: Li Xiaodong
Design Team: Li Xiaodong, Chen Cheng, Xu Xiaojia
Client: He Jisong
Building Area: 1,200 sqm
Design Period: 2018–2019
Construction Period: 2019–2025
Contractor: He Jisong
Artical: Liu Yu
Photography: UK Studio, Li Xiaodong
Video:UK Studio














