黄河三角洲农产品交易服务中心,滨州 / 浙江大学建筑设计研究院
黄河三角洲农产品交易服务中心位于山东省滨州市,长江五路以南,渤海十八路以西,总建筑面积约11万平方米,是一个集展览、会议、餐饮等多功能于一体的大型会展综合体。设计紧密结合当地城市社会经济发展情况,深入解读场地特征,发掘当地文化魅力,成功打造出一个在地共生、理性高效、惠及大众的城市会客厅。
The Yellow River Delta Agricultural Product Trading Service Center is located in Binzhou City, Shandong Province, south of the 5th Changjiang Road and west of the 18th Bohai Road. With a gross floor area of approximately 110,000 square meters, it is a large-scale exhibition and conference complex integrating multiple functions such as exhibitions, conferences, and catering. The design of the center is deeply integrated with the city’s socio-economic development, carefully interpreting the site’s unique features and showcasing local cultural charm. Such endeavor brings a vibrant urban living space – a harmonious and efficient city hall that benefits the general public.
▼东侧鸟瞰图,Eastern Aerial View

展城一体的场地关系Relationship Between Exhibition and City
传统会展建筑因单一的功能和巨大的体量,往往成为城市中的“孤岛”,造成城市空间的割裂。设计从更为宏观的城市视角思考项目用地:场地的北侧和西侧是密集的住宅小区,东侧是珍珠湖公园。项目的主入口设于东侧渤海十八路,沿场地长边布置,形成面向城市的集中形象展示面,并创造出核心的城市庆典广场,为市民提供了一处活动、庆典、聚会之所。围绕会展建筑布置了市民广场、游艺区、景观公园、室外集市等,在高效满足集中展示与交易的基础上,提供给市民一片功能复合的城市休闲空间。
▼功能分析,Functional Analysis

Conventional exhibition buildings, with their singular functionality and immense size, often become “islands” within the urban landscape, leading to a fragmentation of urban space. The design approaches the site from a broader urban perspective: the north and west sides of the site lie dense residential communities, while the eastern side borders the Pearl Lake Park. The main entrance is situated on the eastern side along the 18th Bohai Road, aligned with the long side of the site. This configuration not only creates an concentrated image display facade facing the city but also brings a core urban celebration plaza, providing citizens with a vibrant space for activities, celebrations, and gatherings. Public square, recreation areas, landscape parks, and open-air markets, among others, are arranged around the exhibition building. These places provide citizens with a multi-functional urban leisure space that not only facilitate efficient exhibition and commercial activities, but also serve citizens’ recreational needs.
▼集中形象展示面,Concentrated Image Display Facade

高效集约的空间布局Efficient and Intensive Spatial Layout
设计结合会展建筑运营模式的需求,空间的布局灵活高效、可分可合。交易中心包含中央大厅、1个10000㎡大展厅、2个5000㎡中展厅、1个3000㎡小展厅,以及配套服务会议中心等部分多个展示空间由北向南一字排开,由中央大厅串联,呈现高效的鱼骨式布局。各展厅之间设连接通道,展厅可根据参展规模的不同选择不同的开放模式,为后期运营增添了多种可能性。
The design, responding to the operational needs of the exhibition building, features a flexible and efficient arrangement that allows for space division and consolidation. The trading center includes a central hall, one 10,000 m2 large exhibition hall, two 5,000 m2 intermediate exhibition halls, one 3,000 m2 small exhibition hall, along with supporting facilities such as convention center. These multiple exhibition spaces are arranged linearly from north to south, connected by the central hall, presenting an efficient herringbone layout. Interconnecting corridors are arranged between the individual exhibition halls, allowing flexible opening configurations depending on the scale of the exhibition, thereby adding versatile possibilities for future operations.
▼鱼骨式布局,Herringbone Layout

在地共生的建筑意象Architectural imagery of local symbiosis
本项目的建筑立面重视地域文化的表达。建筑外墙材料主要采用金属铝板和玻璃幕墙,结合参数化的表皮,建筑形象风貌强调时代性、现代性。
The architectural facades of this project emphasizes distinctive regional cultural elements. The exterior walls of the building are made of metal aluminum panels and glass curtain walls, combined with a parametric façade, presenting an architectural aesthetic that highlights contemporary and modern features.
▼建筑表皮与时代性,Architectural Facades and Contemporary Features

▼西立面,Western Facade

北立面是面向城市最重要的形象展示面,设计采用“渤海拾贝”的概念,通过多个扇形“贝壳”的造型排列并置,隐喻海洋文化意趣和水文化意向,在塑造标志性的同时对于城市文化进行有力的回应。
The north facade is the most important image display surface facing the city. The design incorporates the concept of “the surging tides of Bohai” by arranging and juxtaposing multiple fan-shaped “shells”, a hint of marine culture and aquatic symbolism. In shaping an iconic image, it offers a powerful response to urban culture.
▼渤海拾贝的造型意向,Stylistic Inspiration from the surging tides of Bohai

设计借鉴剪纸和编织的民间工艺,通过造型塑造和肌理处理唤起黄河文化的意向。东立面面向主广场,采用大面积的金黄色编织肌理,形成富有韵律的整体形象,在不同的阳光照射和角度下呈现出多变的建筑形象。
The design learns from traditional folk crafts such as paper-cutting and weaving, evoking the cultural essence of the Yellow River through sculptural forms and texture treatment.
The eastern facade, facing the main square, features an extensive golden woven texture, creating a rhythmic overall image. It presents a variety of architectural images under different sunlight exposure and angles.
▼富有韵律的编织肌理,Rhythmic Woven Texture

两侧的小型展厅立面采用穿孔板材质呈现传统剪纸图案,和编织肌理交相呼应,呈现具有在地审美体验的建筑造型。
The facades of the small exhibition halls on both sides are made of perforated panels to present traditional paper-cut patterns, echoing the woven texture and taking on architectural shapes with local aesthetic effect.
▼穿孔板幕墙,Curtain Wall of Perforated Panels

理象合一的结构创新Structural Innovation Unifying Principle and Form
交易中心展厅空间设计结合结构创新,实现大跨结构合理性与建筑空间表现力的契合。
The spatial design of the exhibition hall merges structural innovation with spatial design, achieving both the engineering rationality of long-span structures and the expressive power of architectural forms.
▼结构与建筑空间的契合,Integration of Structure and Architectural Space

展厅中最大的1#厅面积约为10000㎡,柱网平面尺寸为75m(南北向)*122.1m(东西向),建筑造型是两个东西向弧形屋面相连,常规的结构处理手法是沿屋面的弧度方向布置张弦梁。而本设计各主要展厅采用创新的“上承式张弦钢拱架结构体系”,该体系较好解决了索撑体系平面外不稳定问题,顶部局部空调风管外露问题,两侧屋面出挑造型结构支架问题等。上承式张弦钢拱架结合建筑屋面长向造型弧度,形成富有表现力的类似双曲穹顶的室内空间效果。中央大厅是展示交易的核心空间,最高点高度约为23.7米,设计在中庭东西两侧排列通高的V型斜柱,交汇于弧形金属屋顶。结构柱廊成为空间的主角,随着一天的光影变化,屋顶天窗洒下的光线投射在柱廊上,形成流动的光影,光线、结构、空间在这里融为一体。
The largest hall in the trading center, Hall No. 1, covers an area of approximately 10,000 m2. Its column grid measures 75m (north-south) × 122.1m (east-west). The architecture features interconnected east-west curved roofs. Conventionally, bowstring beams are arranged along the curvature of the roof surfaces as the structural solution. In this design, main exhibition halls adopt an innovative top-supported steel bowstring arch truss system. This structural system successfully resolves three key challenges: out-of-plane instability of cable-braced systems, exposed HVAC duct at the roof, and structural support for the cantilevered roof profiles on both sides. The top-supported bowstring arch truss, in conjunction with the longitudinal curvature of the architectural roof, create an expressive interior space reminiscent of a hyperbolic dome. The central hall, serving as the core space for exhibition and trading, has a maximum height of approximately 23.7 meters. The design features vertically arranged V-shaped inclined columns on both sides of the central atrium, converging at the curved metal roof. The structural column arcade takes on a prominent role within the space. With the change of light and shadow in a day, the light shed by the roof skylight projected onto the arcade creates a flowing light and shadow, blending light, structure, and space into a harmonious unity.
▼中央大厅,Central Hall

本项目作为滨州市“83”重点工程,2021年山东省重点建设项目,其建设过程受到社会各界的广泛关注。项目建成后,以高质量竣工验收一举成为滨州市规格最高的会议、展览场所,召开了滨州市第十二届人民代表大会第二次会议第一次全体会议、滨州市第七届资本对接大会等,年均承接大中型活动数量约50个,成为激发城市内在活力、提升滨州城市形象的重要起搏器。
This project, as a key project under Binzhou City’s “83” initiative and a key construction project in Shandong Province in 2021, has attracted wide attention from all walks of life. Upon completion, the project passed high-quality final inspection and instantly became the highest-caliber venue for conferences and exhibitions in Binzhou. It has hosted landmark events including the First Plenary Session of the 12th People’s Congress of Binzhou City and the 7th Capital Matchmaking Conference of Binzhou. With an average of approximately 50 large and medium-scale events held annually, it now serves as a catalytic hub for urban vitality and a driving force elevating Binzhou’s urban image.
▼会议中心,Convention Center

▼场地平面,site plan

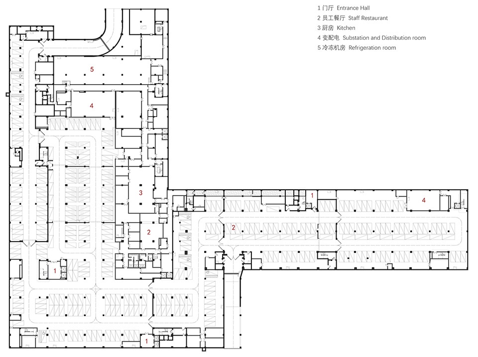
▼地下一层平面,basement plan

▼一层平面,ground floor plan

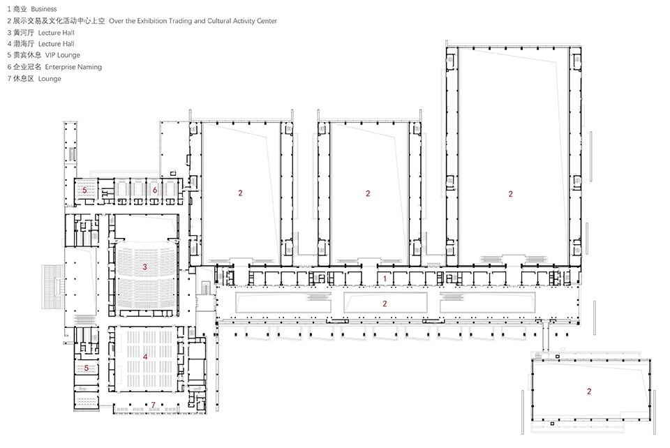
▼二层平面,first floor plan

▼三层平面,second floor plan

▼剖面,section

Project name:Tides of the Bohai, Harmony of Principle and Form – Yellow River Delta Agricultural Product Trading Service Center
Project type: Exhibition Center
Design: The Architectural Design & Research Institute of Zhejiang University
Website: http://www.uad.com.cn
Contact e-mail: 759660682@qq.com
Design year:2020.2-2021.2
Completion Year:2022
Leader designer & Team:
Architectural designers: Qiu Wenxiao, Zhu Rui, Xu Sun, Qiu Jiajun, Xia Nan
Structural designers: Shen Jin, Wang Jun, Cheng Ke, Xie Liao, Wang Chengzhi, Li Li, Pan Qingxiang, Kong Huawei
Water supply and drainage system designers: Chen Ji, Chen Fei, Zhao Jieqin
Electrical designers: Zheng Guoxing, Yang Kai, Ding Li, Fan Hongjian
HVAC designers: Yu Lilun
Curtain wall designers: Bai Qi’an, Chen Dong, Yu Hao, Shen Zhiyuan, Yang Dongyan, Zhang Moran
Landscape designers: Gao Fei, Ye Xingxing, Li Xianying, Wang Chunxi, Xu Weidong
Interior designers: Li Jingyuan, Fang Yu
Intelligent designers: Jiang Bing, Wang Fei
Lighting designers: Pang Xiaoxiao, Lu Danyu, Huang Chunling, Xiao Shuzheng
Project location: Binzhou, Shandong
Gross built area: 116084㎡
Photo credit: ZY studio
Clients: Shandong Binda Industrial Group Co., Ltd.














