MXTR PARK 深圳万象城水广场商业空间设计 / WBS里外工作室
项目定位Project Positioning
作为水广场的核心活力节点,MXTR PARK以”mixture park”为核心理念,通过简洁有力的几何形态与立体开放的公共空间策略,打造兼具商业价值与公共属性的地标性载体。项目旨在实现商业引流与城市生活的深度融合,将建筑转化为连接商业活力与公共生活的关键纽带。
As the central node of vitality within Water Plaza, MXTR PARK adopts the concept of “Mixture Park” as its core design philosophy. By combining bold geometric forms with a strategy of three-dimensional, open public spaces, the project creates a landmark that embodies both commercial value and public character. It aims to achieve a deep integration of commercial traffic and urban life, transforming the building into a dynamic connector between economic vibrancy and public engagement.
▼项目概览,project overview

▼公共-休憩-商业的柔性过渡,seamless transition between public, leisure, and retail spaces

现状与挑战Current Conditions and Challenges
项目面临两大核心挑战:其一,里巷和高街两条动线在水广场交汇,但端头商业氛围薄弱,难以形成完整的商业闭环;其二,场地位于高街尽端,缺乏昭示性形象,无法形成有效的轴线对景。这些现状问题直接影响了区域的商业活力和空间品质。
▼项目区位与动线,project location and circulation

The project faces two key challenges. First, although the inner alley and the high street converge at Water Plaza, the commercial atmosphere at this junction is weak, making it difficult to form a complete and continuous retail loop. Second, the site lies at the terminal end of the high street, lacking a strong visual presence or iconic identity, thereby failing to create a compelling focal point for the axial view. These site conditions directly undermine the area’s commercial vitality and spatial quality.
▼场地鸟瞰,aerial view of the site

▼鸟瞰,aerial view

▼台阶与拱形顶棚,steps and arch canopy

▼商业街巷,commercial alley

规划策略Planning Strategy
设计团队通过严谨的”找形”过程,最终选定圆柱形体量作为解决方案。这一选择基于三点考量:圆形具有理性且谦和的特质;圆柱体能与广场的抱抱象形成视觉对等关系;其完整形态可与周边大体量建筑平等对话。”一拱二阶三舞台”的规划方案应运而生:面向主动线采用布尔手法打开体量,形成开放商业界面;水广场侧设置阶梯式复合平台,通过三个层次激活空间——首层弹性市集区作为过渡空间,二层阶梯看台区创造仪式感体验,顶层空中舞台区打造”空中花园”。
▼轴线分析,analysis of axis

After a rigorous form-finding process, the design team selected a cylindrical architectural volume as the final solution. This choice was based on three considerations: the circle represents rationality and humility; the cylindrical shape creates a balanced visual dialogue with the plaza’s “hugging elephant” sculpture; and the pure, unified form enables a respectful dialogue with the surrounding large-scale buildings. The planning strategy—summarized as “one arch, two terraces, three stages”—emerged from this design direction. The building mass is opened up toward the main circulation route using Boolean techniques to form an inviting commercial façade. On the plaza-facing side, a stepped composite platform activates the space at three levels: the ground floor is designed as a flexible market zone for transitional use, the second level features stepped seating for a sense of ceremony and gathering, and the rooftop is developed into an elevated stage space—a “sky garden” that crowns the building.
▼立面,facade


▼建筑半鸟瞰,half-aerial view of the project


▼俯瞰,top view



设计策略Design Strategy
建筑以18米跨度的极简钢构圆拱统领整体造型,南立面完全敞开形成最佳商业展示面。巧妙利用拱形几何切割出通往二层的大台阶顶棚,实现形式与功能的统一。材质运用呈现双重表达:银色铝板屋面与周边建筑呼应,塑造雕塑感轮廓;近人尺度采用木材和木色氟碳喷涂铝板,营造亲切松弛的氛围。景观设计采用”虚化边界”的手法,让商业氛围自然渗透至公共区域,形成公共-休憩-商业的柔性过渡。
▼分析图,analysis diagram

The architectural form is anchored by a minimalist steel arch structure with an 18-meter span, which defines the entire composition. The south façade is fully open, maximizing visibility and commercial exposure. A large staircase canopy leading to the second level is skillfully carved from the arch’s geometry, seamlessly integrating form and function. Material selection emphasizes duality: a silver aluminum roof echoes the neighboring architecture and reinforces a sculptural silhouette, while the pedestrian-level scale incorporates wood and wood-colored fluorocarbon-coated aluminum panels to create a warm, relaxed atmosphere. The landscape design follows a strategy of “blurred boundaries,” allowing commercial energy to naturally flow into public zones and forming a seamless transition between public, leisure, and retail spaces.
▼顶视夜景,top view at night

▼通往二层的大台阶拱形顶棚,the second level is skillfully carved from the arch’s geometry


▼俯瞰大台阶,top view of the terrace

▼外观夜景,night view of exterior

▼立面夜景,night view of the facade


▼夜景半鸟瞰,half-aerial view at night

运营策略Operational Strategy
项目构建了三位一体的运营体系:通过优质公共空间实现”长效驻留”,先吸引人群停留再自然转化商业价值;精心设计”看与被看”的互动场景,让人群与建筑互为风景;将近地空间碎片化处理,形成具有社区感的微空间网络,为商业运营提供灵活可能。这种策略确保了空间的持续活力与商业效益。
The project establishes a triadic operational system to ensure sustainable vitality. High-quality public spaces are designed to promote long-term dwell time, drawing people in and naturally converting foot traffic into commercial value. Carefully crafted “see and be seen” scenarios enhance the interactive relationship between people and architecture, allowing both to become part of the urban spectacle. At the same time, ground-level spaces are fragmented into a network of micro-environments with a sense of community, providing flexible opportunities for commercial programming. This integrated strategy supports enduring spatial activation and economic performance.
▼二层露台,upper floor terrace

▼”空中花园”,“sky garden”

▼木材和木色氟碳喷涂铝板,wood and wood-colored fluorocarbon-coated aluminum plates


▼充满活力的休息与商业空间,
vibrant rest and commercial spaces



▼侧立面,side facade

▼内部夜景,night view of interior

总结Conclusion
通过“一拱·两阶·三舞台”的空间逻辑,将建筑转化成为城市事件容器,既满足了商业高效运营需求,又创造出了可生长、可参与的公共领域,为高密度城市综合体中的小微建筑提供创新范本。
By applying the spatial logic of “one arch, two terraces, three stages,” the architecture becomes a vessel for urban events—simultaneously supporting efficient commercial operations and cultivating a public domain that is participatory and capable of growth. MXTR PARK sets a new precedent for small-scale architecture within high-density urban complexes, offering an innovative model that harmonizes function, form, and civic engagement.
▼商业界面,commercial interface


▼户外露台,outdoor terrace


▼城市家具,urban furniture


▼座位区与露台,seating area and terrace


▼甲板露台,wooden deck

▼夜景,night views


▼台阶夜景,night view of the steps



▼露台夜景,night view of the terrace

▼模型,model

▼总平面图,master plan

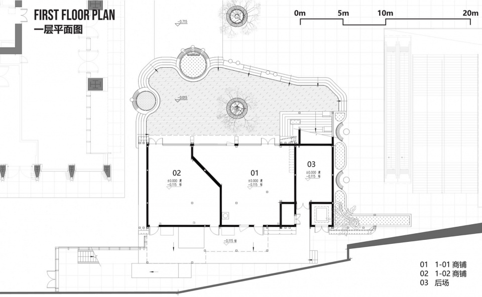
▼一层平面图,first floor plan

▼二层平面图,second floor plan

▼立面图,elevations


▼剖面图,sections


▼细部详图,construction details



Project name: MXTR PARK Shenzhen MixC Water Plaza Commercial Space Design
Project type: Retail
Design: Within Beyond Studio
Website: http://www.withinbeyond.com
Contact e-mail: info@withinbeyond.com
Design year: 2024.2
Completion Year: 2025.4
Leader designer & Team: Zhe ZHANG, Xiaoyu WANG, Haiying ZHANG, Fan ZHUANG, Summer LV
Green Plant Consultant:Huadao Landscape Greening company
Lighting:Fan ZHANG
Landscape:Na ZHAO
Project location: Shenzhen Mixc Water Plaza
Gross built area: 350㎡
Photo credit: ZC Architectural Photography Studio
Clients: Shenzhen Mixc














