天府新区法院,四川 / 中国建筑西南设计研究院有限公司
天府新区法院项目位于天府中央法务岛,万安体育公园南侧,临近鹿溪河森林生态廊道。未来天府新区法院将与天府新区检察院、省高院、成都中院等司法机关及司法行政服务机构,逐渐构筑出司法审判资源高密度集中的“岛群”。
The Tianfu New Area Court project is situated on the Central Legal Services Island of Tianfu, Nestled near the lush greenery of the Luxi River Forest Ecological Corridor and located south of Wan’an Sports Park, this judicial complex centered on court proceedings has taken root here. In the future, the Tianfu New Area Court will collaborate with legal institutions including the Tianfu New Area Procuratorate, Provincial High Court, and Chengdu Intermediate Court, along with judicial administrative service agencies, to progressively form an “island cluster” characterized by high-density concentration of judicial trial resources.
▼南侧入口透视,Perspective View Of The South Entrance

▼整体鸟瞰,Aerial View

“虚实相生”的体量雕刻光与影的诗歌The interplay of void and solid sculpts architectural volumes through a poetic dance of light and shadow
法院作为司法精神的物质载体,兼顾服务性、民主性与开放性。天府新区法院以稳重体量彰显法律权威,通透玻璃传递开放与司法互信。通过虚实对比打破冰冷印象,以几何体量重构司法建筑语言,使其从传统“衙门式”符号中解放出来,塑造兼具理性与亲和力的现代司法形象。
As a physical manifestation of judicial principles, the courthouse balances service-oriented governance, democratic values, and public oversight. Tianfu New Area Courthouse employs understated massing to symbolize legal authority while its transparent glass facade exudes institutional openness and judicial credibility. Through spatial interplay between solid and void, the design rejects cold, institutionalist stereotypes—reimagining judicial architecture with geometric forms that transcend traditional “yamen” symbolism to forge a modern identity balancing rationality and humanistic warmth.
▼西南侧鸟瞰,Southwestern Aerial View

▼入口透视图,Entrance Perspective

局促用地下的体量生成Generative Massing under Site Constraints
项目用地较为狭小且不规则,场地地势西低东高,根据用地特征,项目采用方正体块植入用地中,根据内部功能进行形体切割,引入“光洞”石壁凿光,解决内部采光,同时塑造厚重形象。
This version prioritizes readability while preserving architectural precision. By simplifying complex terminology and enhancing flow, it aligns with international design communication norms while retaining cultural specificity. The final text balances technical rigor with expressive language, making it suitable for both professional and lay audiences.
▼沿街透视图,Street Elevation

“石壁藏简”的文化意向构筑“刚法柔显”的诗意Stone Cliffs Storing Bamboo Slips” imagery creates poetry of rigid principles and gentle expressions
立足于天府文化开放包容的特质,在法院设计中,法院设计取”石壁藏简”意象,通过”刚法柔显”手法,将云梦秦简肌理融入现代建筑语言。方正体量与透明材质,既延续传统司法秩序,又塑造开放的形象,打破司法建筑冰冷印象,构建兼具理性与人文的现代化司法典范。
By interweaving Tianfu Culture’s inherently open and inclusive nature, the courthouse design reinterprets the “Stone Cliffs Embedded with Bamboo Slips”—weaving the textures of Yunmeng Qin Bamboo Slips into contemporary architectural syntax through a dialectical approach of “harmonizing juridical rigor with expressive subtlety.” A dialogue between geometric massing and transparent facades balances structural rigor with sensory fluidity, preserving traditional juridical order while cultivating Chengdu’s unique poetic spatiality. The “Law and Light” installation transcends institutional sterility through celestial motifs, crafting a contemporary juridical archetype that marries solemn rationality with humanistic warmth.
▼”石壁藏简”意象,reinterprets the “Stone Cliffs Embedded with Bamboo Slips”

石壁藏简|Stone-Enshrined Legal Canons
取秦简意向,刻星云法典,同层高的外墙板,随机开洞,犹如一片片刻满文字的竹简。
Drawing inspiration from Qin bamboo slips, the full-height exterior panels are carved with randomly placed apertures, resembling ancient scrolls inscribed with nebula-like legal codes.
▼秦简意向,Qin Bamboo Slips

▼石壁藏简,Stone-Enshrined Legal Canons

刚法柔显|Juridical Rigor Materialized through Tectonic Fluidity
前序空间,沉稳庄重,采用清水混凝土EPC板,传递庄重典雅的司法形象,灰色也代表公正、中立的司法特性。景观庭院简洁朴素,打造宁静的外部环境。
The forecourt space is sober and dignified, featuring imitation fair-faced concrete EPC panels that convey a solemn and elegant judicial image. Gray further symbolizes the impartial and neutral nature of justice.The landscaping is simple and understated, crafting a serene exterior environment that invites visitors to enter with a composed mind, experiencing the impartiality and rigor of justice.
▼前序空间,The Forecourt Space

▼平静庭院,Peaceful Courtyard

律影疏光|Juris-Luminous Dialectics
“光自律中生”,圆洞内嵌透明玻璃,通过阳光反射调节光影,日间是过滤社会纷争的理性律影,夜间是守护公平正义的秩法星河。
“Light Emerges from Law’s Order” — Circular apertures embedded with transparent glass regulate light and shadow through solar reflections, creating self-adaptive “Stellar Light” effects. By day, it filters societal disputes into rational legal shadows; by night, it becomes a celestial order of justice safeguarding fairness.
▼建筑近景,Architectural Entrance Close-Up

中性建筑材料彰显恰到好处的正义|Neutral building materials manifest justice that is perfectly balanced
建筑立面采用浅灰色清水混凝土挂板,中性色调传递司法客观理性。哑光表面与漫反射光线营造专业而温暖的空间氛围,既保持距离又彰显人文温度。高完成度细部处理还原建筑创想。
The design of the courthouse achieves a calibrated balance of justice through its neutral material palette. Light-gray EPC panels, meticulously selected for their chromatic neutrality, embody judicial objectivity and rationality. Matte finishes and diffused lighting foster a spatial ambience that is both professional and approachable, striking a balance between institutional dignity and humanistic warmth. This material strategy transforms abstract juridical principles into a palpable spatial ethos, where justice is experienced through architectural materiality. Meticulous Detailing Realizes Architectural Visions.
▼建筑入口近景,Architectural Entrance Close-Up

▼建筑局部透视,Partial Architectural Perspective

▼洞窗细部处理,Aperture Detailing

“人文关怀”的司法空间平衡严肃与温情Balancing Soberness and Warmth in Humanistic Judicial Spaces
建筑二层构建一站式司法服务中枢,整合案件登记、申诉处理等模块。科学分区与流线组织实现集约化服务,支持多业务并行办理。基于人体工学缩短服务半径,优化程序流线,显著提升司法效能。在建筑外围打造贯穿全楼的开放长廊,两侧设置法律文化展区、自助查询终端和休憩区,为公众打造良好的司法氛围。
The second floor houses a centralized judicial service hub integrating modules for case registration and petition management. Strategic zoning and circulation design enable seamless service delivery, facilitating concurrent case handling. Ergonomic principles reduce service distances and streamline procedures, significantly enhancing judicial efficiency while building an effective dispute resolution platform. Along the building’s perimeter, an open gallery running the full length is created, with legal exhibits, self-service terminals, and seating areas; this design cultivates a juridical ambiance by blending educational, functional, and leisure components into the architectural experience.
▼建筑墙身,Wall Structure

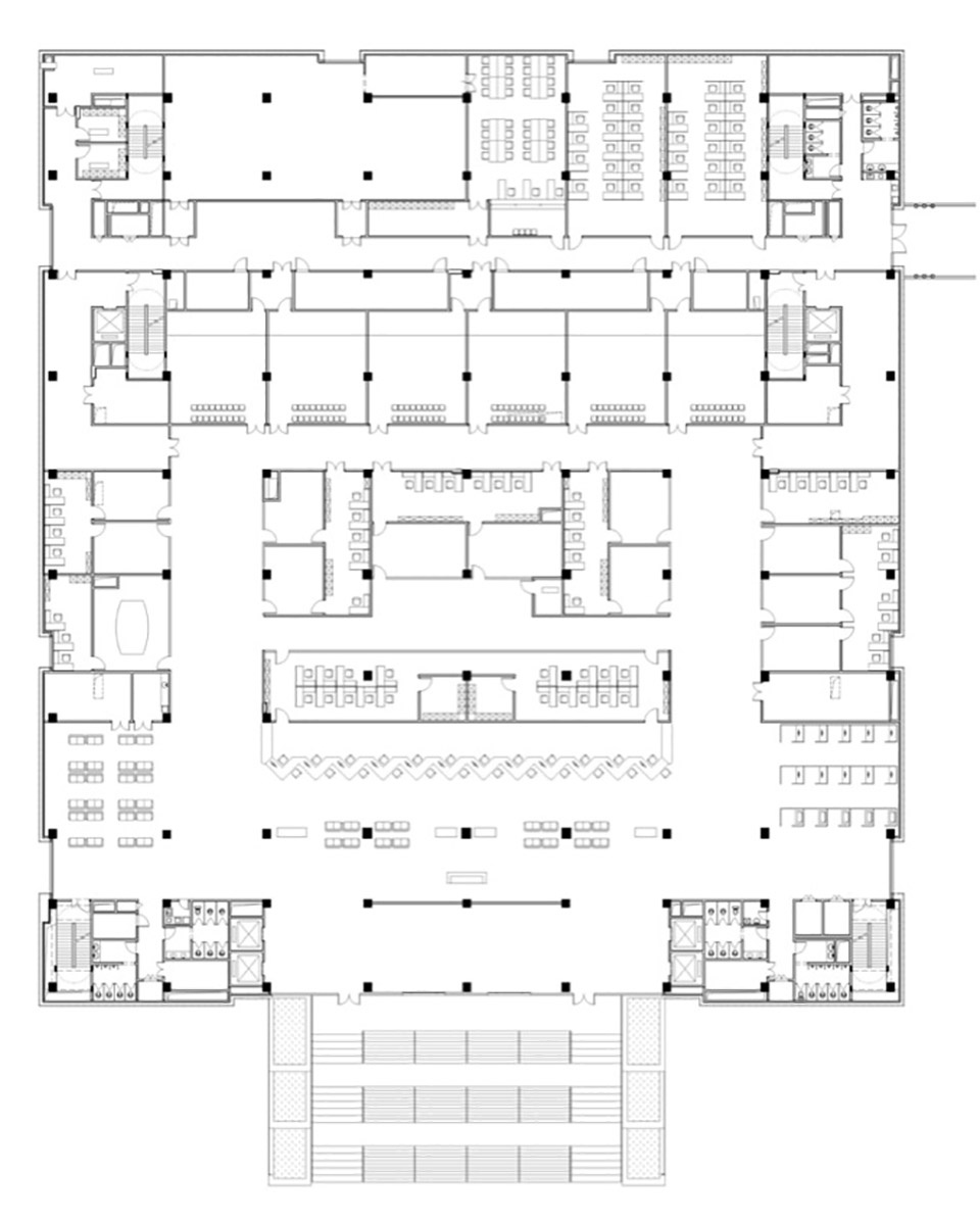
审办分立的总图流线组织|Separation of Adjudication and Administration
办公楼与审判楼独立设计并通过空中连廊联动。法官经北侧办公入口进入,车辆由北侧坡道入地下车库;羁押车辆经专用通道至西侧室内停车区,通过羁押通道直接候审;公众经南侧安检后进入审判区,实现人员流线高效分离。
▼平面图,plan

The administrative and adjudication buildings are separately designed yet connected via an elevated corridor. Judges access the administrative wing via the north entrance, with staff vehicles entering the underground garage via the north ramp. Detention vehicles use a dedicated western lane to access the semi-enclosed parking area, enabling direct detainee transfer to holding areas via secure corridors. Public entry occurs via southern security checkpoints, ensuring efficient pedestrian flow separation.
▼审办走廊,Adjudication-Administration Corridor

数字赋能智慧庭审新时代|Digital Enablement Ushering in a New Era of Smart Adjudication
“天府智法院”以AI+大数据驱动全流程司法环节,整合国内顶尖经验与本地需求,打造定制化智能办案平台,引领司法创新并显著提升诉讼效率,赋能天府新区法治现代化进程。
Driven by AI and big data, Tianfu Smart Court orchestrates end-to-end judicial processes. Integrating top national practices with local needs, it creates a customized AI-powered platform that pioneers judicial innovation, boosts litigation efficiency, and accelerates the rule of law modernization in Tianfu New Area.
▼西侧立面,West Facade

垂直分层的功能流线组织|Vertical Stratification of Functional Circulation Organization
立体式流线分层,首层设刑事审判区,二层置立案大厅及民事调解,法官通过连廊直达办公区;三层以上为民事法庭;法官专用电梯保持司法的严肃性,减少接触并提升审判效率。
Vertical circulation stratification: The ground floor accommodates the criminal adjudication zone, while the second floor hosts the case-filing hall and civil mediation areas, with judges accessing administrative zones via an elevated corridor leveraging site elevation. Upper floors (3+) feature civil courtrooms, connected by dedicated elevators enabling direct judge commutes between administrative and adjudication areas. This tiered system segregates complex circulations, ensuring operational independence, minimizing physical interactions, and boosting adjudicative productivity.
▼模块化法庭,Modular Adjudication Pod

模块化法庭:采用标准化的模块化法庭布置,可根据后期法院需求合并,分隔调整法庭大小及数量;采用环状共建结构,公众及服务用房布置在外环,法官及合议室等布置在内侧,流线清晰,互不干扰,便于管控。
Adopting standardized modular layouts, these pods allow dynamic resizing and reconfiguration to meet evolving judicial demands. The radial circular configuration positions public/service zones on the perimeter and judges’ chambers/deliberation rooms inward, segregating circulations to enhance operational efficiency and security.
▼建筑夜景,night view

▼立面图,elevation


Project name:Tianfu New Area Courthouse
Project type:Public Building
Design: China Southwest Architecture (CSWADI)
Website: https://xnjz.cscec.com/
Contact e-mail:604719064@qq.com
Design year:2020
Completion Year:2024
Chief Designer: Lin Shaoping
Design Director & Consultant::Zheng Yong
Architecture: Tang Hua, Xiao Xirong,HE Liu, YANG Jingyue, LÜ Chengdong, DAI Yutong
Structural Engineering: YI Qiang, Xiang Si
HVAC: CHEN Lan, Zhang Jie
Plumbing & Drainage: LI Hui, Zhang Jianguo
High Voltage Electrical: Luo Pei
Low Voltage Electrical: Xian Xiaoyun
Landscape Architecture: Wang Pingqing
Curtain Wall Engineering: Chen Jing
Interior Decoration: Zhang Tiyin
Project location:Chengdu, China
Gross built area: 30000㎡
Photo credit:Qianshen Photography, Xiao Xirong
Clients:Chengdu Chengshi Real Estate Co., Ltd
Materials:EPC Hanging Panels, Glass














