FK幼儿园与日托,日本 / HIBINOSEKKEI + Youji no Shiro + KIDS DESIGN LABO
园舍位于长崎县长崎市深堀町。这座临海小镇自古以来因渔业和造船业而繁荣发展,其历史文化至今仍深深镌刻在街道景观之中。该地区地势起伏较大,民居沿道路而建,错落有致的街巷形成了独特的风貌。本项目旨在将深堀町与自然共生的“街道景观”融入孩子们的日常生活。
This kindergarten is in the northern part of Japan, namely Fukahori Town of Nagasaki prefecture, a coastal town with a long history of fishing and shipbuilding. Its trace of history still lingers in the streets. The region is full of slopes and houses are built tightly along roads. These attributes shape the quaint atmosphere of the narrow alleyways. This project intends to bring the way Fukahori has co-existed with the land into the daily lives of children.
▼项目概览,overall of the project

▼入口立面,entrance facade

项目所在地的高低落差近7米,带有斜坡的地形特征十分明显。一般而言,斜面坡地常被视为设计上的挑战。然而,本项目充分利用地形特征,顺应地势布局建筑,最大限度减少挖掘,同时降低土石方运输量,以减少二氧化碳排放,降低环境负荷。通过因地制宜的设计,打造出独一无二的游戏空间。
The site has a nearly 7-meter difference in height, with a sloped terrain. The architecture turns such seemingly unfavorable conditions into an opportunity to minimize environmental footprint and maximize play areas for children. Instead of flattening the land, the buildings are strategically positioned to follow the natural contours. As a result, the need for excavation and soil transportation is reduced, minimizing CO₂ emissions. The slopes naturally became one and only playground.
▼场地高低落差近7米,the site has a nearly 7-meter difference in height

▼独一无二的游戏空间,unique game space


▼滑梯,the slide

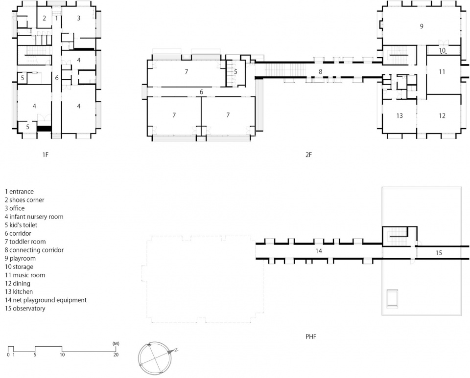
园舍由位于坡地上方与下方的两栋建筑及连接它们的连廊三部分构成。顺应坡地形态打造的庭院,拥有宛如山间自然环境般的起伏地势。受深堀町狭长街道的启发,连廊设计为具有大阶梯和网状攀爬设施的空间。孩子们可以在野山一样起伏不平的庭院、大阶梯、网状攀爬设施间自由攀爬奔跑,探索创造性的游戏方式,促进身体成长。整体空间设计上,实现了室内外一体化的布局,使游戏空间更加立体且富有流动性。
The kindergarten consists of three parts: one at the top of the slope, one at the bottom, and a connecting corridor in between. The corridor, inspired by the long, narrow streets of the town, has a large staircase and a thrilling climbing net structure for children. Children run up and down the large staircase and the mountainous playground, exploring and discovering imaginative ways to play and learn. The entire kindergarten is continuous, blending indoors and outdoors to create an environment where “play” flows in all directions.
▼走廊,hallway

▼走廊结合了游乐功能,the corridor combines recreational functions

▼吊床与楼梯,hammocks and stairs


▼吊床入口,entrance of the hammocks area

▼储物柜与座位的结合,the combination of lockers and seats

外墙、内饰材料及家具均采用象征长崎的色彩。例如,象征港口的蓝色、承载异国文化印记的砖红色,以及历史悠久的石板路色彩。站在庭院高处,蔚蓝大海和深堀町的街景尽收眼底。孩子们能在充满当地各种要素的园舍日常生活中感受深堀町的街道景观与文化氛围。
The materiality of the exterior walls, interior finishings, and furniture all incorporate the colors of Nagasaki city. Blue reflects the port, red recalls foreign cultural influences of brickwork, and earthy tones resemble the region’s historic stone paved streets. At the top of the playground, children can spot the ocean and the townscape. In this kindergarten, children grow up by naturally absorbing the “colors” of their hometown.
▼室内概览,overall of interior


▼内饰材料及家具均采用象征长崎的色彩,the materiality of the exterior walls, interior finishings, and furniture all incorporate the colors of Nagasaki city


▼幼托室,nursery room


▼承载异国文化印记的砖红色,red recalls foreign cultural influences of brickwork

园舍充分利用深堀町的地形与文化特色,为孩子们提供了一个与自然和城市景观亲密接触、自由成长的环境。
The kindergarten takes advantage of the unique terrain and culture of Fukahori Town, providing an environment where children can grow while interacting with nature and the town’s scenery.
▼卫生间,toilets

▼入口夜景,night view of the entrance

▼平面图,plan

▼立面图,elevations

▼剖面图,sections

Project name:FK Kindergarten and Nursery
Site:Nagasaki City,Nagasaki Prefecture
Architect:HIBINOSEKKEI + Youji no Shiro + KIDS DESIGN LABO
Site area:2730.38㎡
Building area:820.53㎡
Floor area:1075.25㎡
Structure:wood
Number of floors:Two
Completed in June 2024
Photograph:Ryuji Inoue














