欧洲大学Turia校区,西班牙 / Ramón Esteve Estudio
该项目源于欧洲大学(European University)在瓦伦西亚建立新校区的倡议,旨在选址于一处能够体现学校价值观、原则与目标的地点:既培养面向未来的专业人才,又传承已有的历史遗产与知识体系。
The project stems from the European University’s initiative to establish its new urban campus in Valencia in a location that reflects the institution’s values, principles, and objectives: to train professionals committed to the future while preserving the legacy and knowledge that precede them.
▼项目鸟瞰,aerial view of the university


前圣胡安·包蒂斯塔庇护所(San Juan Bautista Asylum)建于1873年,采用新古典主义风格,拥有重要的历史与建筑遗产,具备极大的修复潜力。建筑位于瓦伦西亚的战略位置,对面是瓦伦西亚现代艺术学院(IVAM),紧邻前图里亚河河床,靠近历史城区,并深度融入城市肌理,使其成为连接历史与当代的重要节点。
The former San Juan Bautista Asylum, a neoclassical-style building constructed in 1873, with its valuable historical and architectural heritage, presented great potential for rehabilitation. Strategically located in Valencia, opposite the Valencian Institute of Modern Art (IVAM) and next to the former Turia Riverbed, its proximity to the historic enter and integration into the urban fabric make it a key point of connection—both between the old and the contemporary.
▼新古典主义风格建筑,neoclassical-style building


▼新古典主义风格建筑入口,neoclassical-style building entrance


本次建筑设计将这座旧收容所改造为一座面向21世纪的教育中心,不仅修复了历史空间,也打造了一个融合交流、创新与学术成长的环境。新校园可容纳近2000名学生,其中不乏来自世界各地的国际学生,为城市中心带来学术创新的活力。
The architectural project transforms the former hospice into a 21st-century educational center. It not only restores a historic space but also creates an environment for meeting, innovation, and academic growth. Designed to accommodate nearly 2,000 students, many of them international, the campus fosters academic innovation in the heart of the city.
▼建筑入口,building entrance

▼中庭回廊,the cloisters


▼修复后的中庭回廊,the cloisters after renovation


项目核心原则之一是尊重既有建筑。此次修复优先保护圣胡安·包蒂斯塔收容所的历史遗产,修复了包括Nolla马赛克、石材地面、小教堂与回廊等关键元素。在原有材料与新材料之间寻求平衡,引入当代解决方案,同时保留建筑的本质与精神。
One of the project’s core principles is respect for the pre-existing architecture. The rehabilitation of the San Juan Bautista Asylum has prioritized the preservation of its heritage, restoring elements such as Nolla mosaics, stone floors, the chapel, and the cloisters. A balance has been sought between original and new materials, incorporating contemporary solutions that maintain the building’s essence.
▼修复后的马赛克地面,the mosaics floor after renovation


建筑设计充分响应学术机构的功能需求,强调空间的多样性、效率与实用性。平面布局清晰而均衡,便于教学安排的组织。建筑围绕两个设有回廊的翼楼展开,教室与办公空间分布其中,中央体量则设有公共区域,作为集会与合作的场所。临街立面方向为行政办公区域。教室采用双面立面设计,同时面向外部花园与内部回廊,充分引入自然光。回廊不仅是交通通道,也为师生互动提供交流空间,营造出一个富有活力和参与感的教学环境。
The architectural design responds to the needs of the academic institution, prioritizing versatility, efficiency, and functionality of spaces. The layout facilitates the organization of the academic program with a clear and balanced scheme. The building is structured around two wings with cloisters, where classrooms and offices are located. The central body houses common areas, conceived as spaces for gathering and collaboration. The spaces facing the main façade are reserved for administrative areas. The classrooms feature a double façade, connecting them to both the exterior garden and the cloisters, benefiting from natural light. The cloisters function as circulation areas and meeting points, fostering interaction between students and faculty, creating a dynamic and participatory environment.
▼教学区域入口,the teaching area entrance

▼一层公共区域,the public area on the ground floor

▼走廊,corridor


▼公共区域,public area


▼会议室,meeting room

▼充分引入自然光,benefiting from natural light


▼充分引入自然光的教室,classroom benefiting from natural light

▼经过修复的墙壁及铺地,wall decoration and mosaic pavement after renovation

▼营造出一个富有活力和参与感的教学环境,creating a dynamic and participatory environment


除了修复历史建筑之外,项目还包括在基地西侧新建一座附属建筑。该扩建体量与既有建筑保持协调对话,在材质、色彩与构图节奏上保持一致。最终呈现出一个融入受保护历史建筑群的当代建筑体量,既不破坏原有建筑,又体现现代设计语言。
In addition to the rehabilitation of the historic building, the project includes the construction of a new annex located to the west of the site. This extension maintains a harmonious dialogue with the pre-existing complex, respecting materiality, colour palette, and compositional rhythms. Ultimately, it creates a contemporary volume that integrates with the protected historic complex without compromising its architecture.
▼新建的附属建筑,a new annex


▼新建的附属建筑,a new annex


▼新旧建筑之间的对话,dialogue between old and new building

位于瓦伦西亚核心地带,这一建筑群成为历史遗产干预的典范之作,设计与功能在此交织互动,营造出兼具和谐与高效的空间体验。
Located in the heart of Valencia, this architectural ensemble becomes a benchmark for heritage intervention, where design and functionality interact to offer an environment that enhances the experience and use of space in a harmonious and efficient way.
▼庭院夜景,courtyard at night

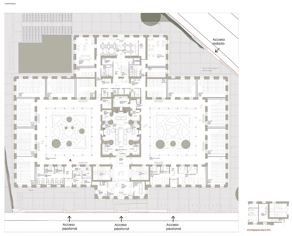
▼场地平面,site plan

▼场地屋顶平面,site plan with roof

▼校园立面,complex elevation


▼修复后庇护所一层平面,asylum ground floor plan

▼修复后庇护所二层平面,asylum first floor plan

▼修复后庇护所立面,asylum elevation


▼修复后庇护所剖立面,asylum section-elevation


▼修复后庇护所回廊及教室剖面,asylum cloister and classroom section

▼修复后庇护所走廊剖面,asylum corridor section

▼加建楼地下一层平面,extension basement floor plan

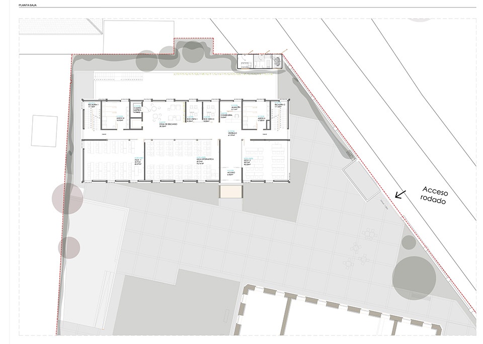
▼加建楼一层平面,extension ground floor plan

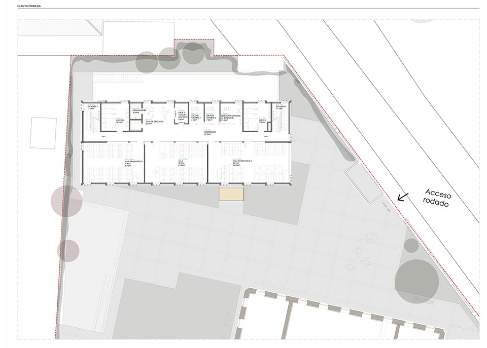
▼加建楼二层平面,extension first floor plan

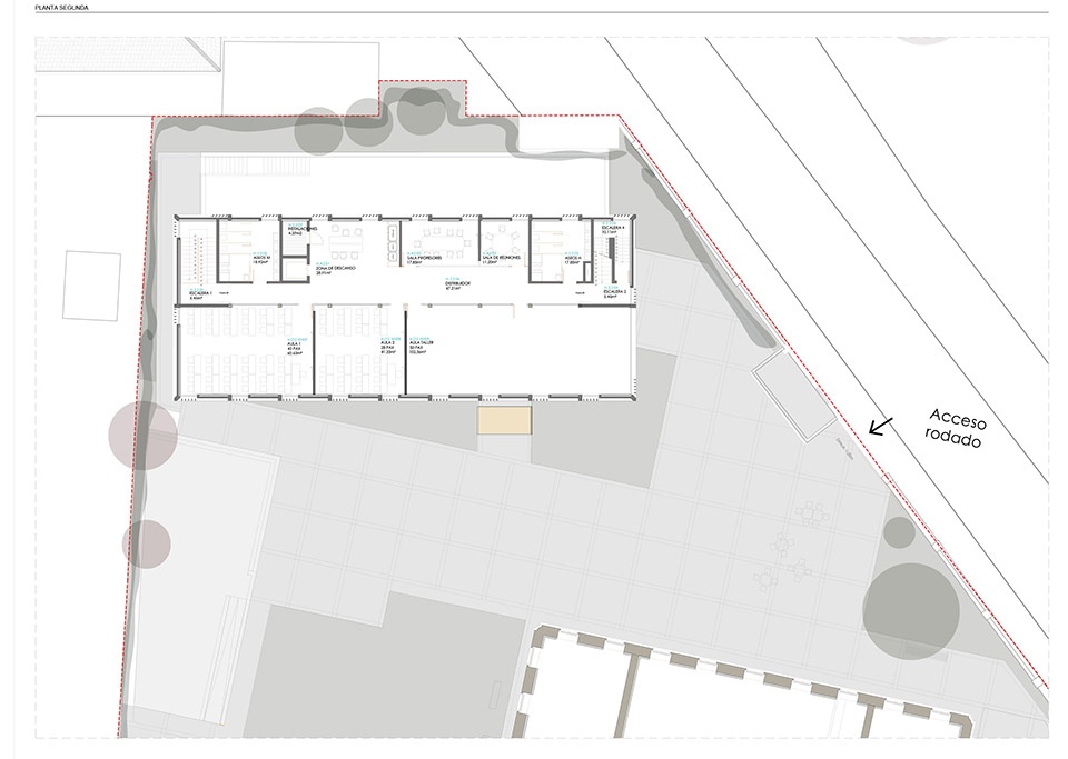
▼加建楼三层平面,extension second floor plan

▼加建楼剖面,extension section


Studio Ramón Esteve Estudio
Author Ramón Esteve
Contact E-mail comunicacion@ramonesteve.com
Website http://www.ramonesteve.com
Studio address Plaça Pere Borrego i Galindo, 7, 46003 Valencia, Spain
Design team Anna Boscá, Beatriz Gascón, Guillermo Sahuquillo, Beatriz Martín, Teresa Piá
Project location C/ de Guillem de Castro 175, 46008 Valencia
Project country Spain
Project year 2020
Completion year 2024
Gross floor area 1753 m² extension
5406 m² restoration
Usable floor area 1507 m² extension
3993 m² restoration
Plot size 7903 m²
Cost extension 2,7 mil. €
restoration 4,9 mil. €
Client Universidad Europea
Client’s website http://www.universidadeuropea.com
Photographer Alfonso Calza, www.alfonsocalza.com, alfonsocalza@gmail.com
Collaborators and suppliers Landscaping: GM Paisajistas, http://www.gmpaisajistas.com
3D images: Tudi Soriano and Pau Raigal
Building engineers: Emilio Pérez and Sergio Cremades
Construction companies: Kalam, www.kalam.es, Vialterra, http://ww.vialterra.com
Engineering: Leing Ingeniería, http://www.leing.es
Wood structure restoration: Lemara, http://www.lemara.es
Archeologist: Paloma Berrocal
Promoter: Universidad Europea, http://www.universidadeuropea.com














