邛崃市中医医院,四川 / 天津大学设计总院·顾志宏工作室
用全新的时尚的中医医院设计新模式诠释深邃的、辩证的、抽象的、奇幻的中医科学内涵与文化精神。
Interpret the profound, dialectical, abstract and fantastical scientific connotation and cultural spirit of traditional Chinese medicine with a brand-new, fashionable design model for traditional Chinese medicine hospitals.
邛崃市中医医院位于古称临邛的四川省邛崃市,建城迄今已有2300多年历史,是四川最早的四大古城之一。邛崃市中医医院是一个800床位的、总建筑面积9.3万平方米的新建大型中医医院。
Qionalai hospital of tradational medicine is located in Qionglai City, Sichuan Province, which was formerly known as Linqiong. The city has a history of over 2,300 years and is one of the four ancient cities in Sichuan. Qionalai hospital of tradational medicine is a newly-built large-scale traditional Chinese medicine hospital with 800 beds and a total construction area of 93,000 square meters.
▼与周边城市环境完美融合,Seamlessly integrated with the surrounding urban environment

▼天人合一、东方韵味,Unity of Heaven and Humanity with Eastern Aesthetic Charm

▼与环境共生,In harmony with the environment

提起中医医院建筑,“新中式”风格往往成为必然选择,似乎唯有传统建筑形式才能诠释中医的悠久历史与独特气质。传统建筑形式固然能体现一些中国文化的历史感,但却与现代医疗建筑的实际发展需要不相吻合,也不足以准确恰当地表达中医的奇幻深邃之美。
When it comes to traditional Chinese medicine hospital buildings, the “New-Chinese” style is often the inevitable choice, as if only traditional architectural forms can interpret the long history and unique charm of traditional Chinese medicine. Although traditional architectural forms can reflect some historical sense of China culture, they are not consistent with the actual development needs of modern medical buildings, and cannot express the fantasy and profound beauty of traditional Chinese medicine accurately and appropriately.
▼兼具东方韵味与现代时尚,Combining Eastern charm with modern sophistication



中医,不仅是中国传统文化中的瑰宝,更是一门面向未来、致力于用独特的视角解决现代人健康问题的真正科学,蕴含着东方智慧与深刻哲理。因此,中医医院的建筑设计不应仅仅停留在对历史传统建筑的回溯和符号的堆砌,更应大胆地用现代和未来的方式展现中医的科学性和哲学性,彰显中医接近生命本源的纯粹之美、无限至简的艺术之美,以及天人合一的哲学思辨的魅力。同时作为邛崃市重要的大型医疗设施,这座中医医院的建设对城市片区的振兴有着重大的拉动作用,其现代时尚、面向未来的建筑风格,也与城市崭新的建设进程完美呼应。
Traditional Chinese medicine is not only a treasure in China’s traditional culture, but also a true science that faces the future and is committed to solving modern people’s health problems from a unique perspective. It contains Oriental wisdom and profound philosophy. Therefore, the architectural design of traditional Chinese medicine hospitals should not merely focus on the retrospection of historical traditional buildings and the stacking symbols. Instead, it should boldly present the scientific and philosophical nature of traditional Chinese medicine in a modern and future-oriented way, highlighting the pure beauty of traditional Chinese medicine that approaches the essence of life, the artistic beauty of infinite simplicity, and the charm of philosophical speculation on the unity of human and nature. At the same time, as an important large-scale medical facility in Qionglai City, the construction of this traditional Chinese medicine hospital has a significant driving effect on the revitalization of the urban area. Its modern and fashionable architectural style also perfectly echoes the city’s new construction process.
▼既传统又时尚的建筑语言,An architectural language that is both traditional and contemporary

▼虚实相生、阴阳转换的空间趣味,The spatial intrigue of interplay between void and solid, and the transformation of yin and yang


▼饱含生命力的空间形态,A space form brimming with vitality

▼中国文化意境的院落空间,A courtyard space embodying the poetic essence of Chinese culture



我们希望在这次中医医院的设计中,探索一种全新的时尚的中医医院空间模式。这种中医医院的新模式不仅聚焦于建筑形态的创新表达,更注重中医医院空间氛围的现代营造。设计中,摒弃传统中式建筑中过于强调轴线、符号与复古的建筑形式,转而以医疗建筑的科学性为核心,将空间的人性化与舒适度放在首位,精心布局高效流畅宜人的就医流线,让人们在舒适的就以过程中自然领略中医之美与古老中医的现代魅力。串接门诊、医技、住院三个板块的医疗街,通过中国园林的塑造手法,将超市、书报亭、景观扶梯等休闲类功能与景观相融合,融入虚实阴阳的空间转换之中,带来自然轻松的现代医疗康养空间体验。通过以中医独有的医学性、科学性和哲学性作为设计的核心路径与目标,生动诠释中医辩证的思想与天人合一的智慧。我们想,中医医院的设计不能一味复古,而可以有所创新和发展,也可以体现现代与时尚。
In this design of the traditional Chinese medicine hospital, we hope to explore a new and fashionable spatial model for traditional Chinese medicine hospitals. This new model not only focuses on the innovative expression of architectural form, but also pays attention to the modern creation of the spatial atmosphere of traditional Chinese medicine hospitals. In the design, we abandon the architectural forms that overemphasize axial, symbolic, and retro in traditional Chinese architecture, and instead take the scientific nature of medical buildings as the core, prioritizing the humanization and comfort of the space, and carefully layout efficient, smooth and pleasant medical treatment flow lines to allow people to naturally appreciate the beauty of traditional Chinese medicine and its modern charm during the comfortable medical process. The medical street that connects the outpatient, medical technology, and inpatient sections, is transformed through the shaping techniques of Chinese gardens, integrating functions such as supermarkets, newsstands, and landscape elevators with landscapes, and incorporating them into the spatial transformation of virtual and real, yin and yang, bringing a natural and relaxed modern medical and health care space experience. By taking the unique medical, scientific, and philosophical nature of traditional Chinese medicine as the core path and goal of the design, we vividly interpret the dialectical thinking and the wisdom of the unity of heaven and man in traditional Chinese medicine. We believe that the design of traditional Chinese medicine hospitals should not be merely retro, but can be innovative and developed, and can also reflect modernity and fashion.
▼流畅简洁、对话天地的门诊入口大厅,A smooth and minimalist outpatient entrance hall in dialogue with nature and the sky

▼流畅简洁的室内共享空间,A smooth and minimalist indoor shared space

▼舒适流畅的医疗街空间,A comfortable and fluid medical street space

在院落空间的设计上,巧妙融入中国文化的独特氛围与意境。阴阳相生、虚实相间、禅意流淌的空间,带来中医传统文化的趣味、韵味和意味,探索“既现代又中国” 的设计手法。室内空间明快简洁、舒适流畅,体现着现代医院时尚性与中国传统文化性的结合,用全新的视角诠释中医的独特魅力。
In the design of the courtyard space, the unique atmosphere and artistic conception of Chinese culture are ingeniously integrated. The space where yin and yang interact, the real and the virtual alternate, and the Zen spirit flows brings the interest, charm and meaning of traditional Chinese medicine culture, exploring the design approach of “both Modern and China”. The interior space is bright, simple, comfortable and smooth, reflecting the combination of the modernity of a hospital and the traditional Chinese cultural characteristics, and interpreting the unique charm of traditional Chinese medicine from a new perspective.
▼暮色中的中医医院,Night view

我们希望邛崃市中医医院以未来的科学视角面对传统的中华医学,以时尚的优雅的流动空间舒缓现代人病痛的焦躁,以曲直虚实之间的抽象空间展现朦胧思辨的空间趣味,叩响深邃的中医哲学思想之门。
We hope that the Qionalai hospital of tradational medicine will face traditional Chinese medicine with a future scientific perspective, soothe the anxiety of modern people’s illness with the elegant and flowing space of fashion, and reveal the spatial interest of hazy speculation through the abstract space of curves, straight lines, emptiness and fullness, and knock on the door of profound traditional Chinese medicine philosophy.
▼总平面图,masterplan

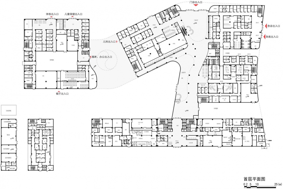
▼首层平面图,ground floor plan

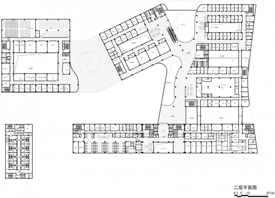
▼二层平面图,2F plan

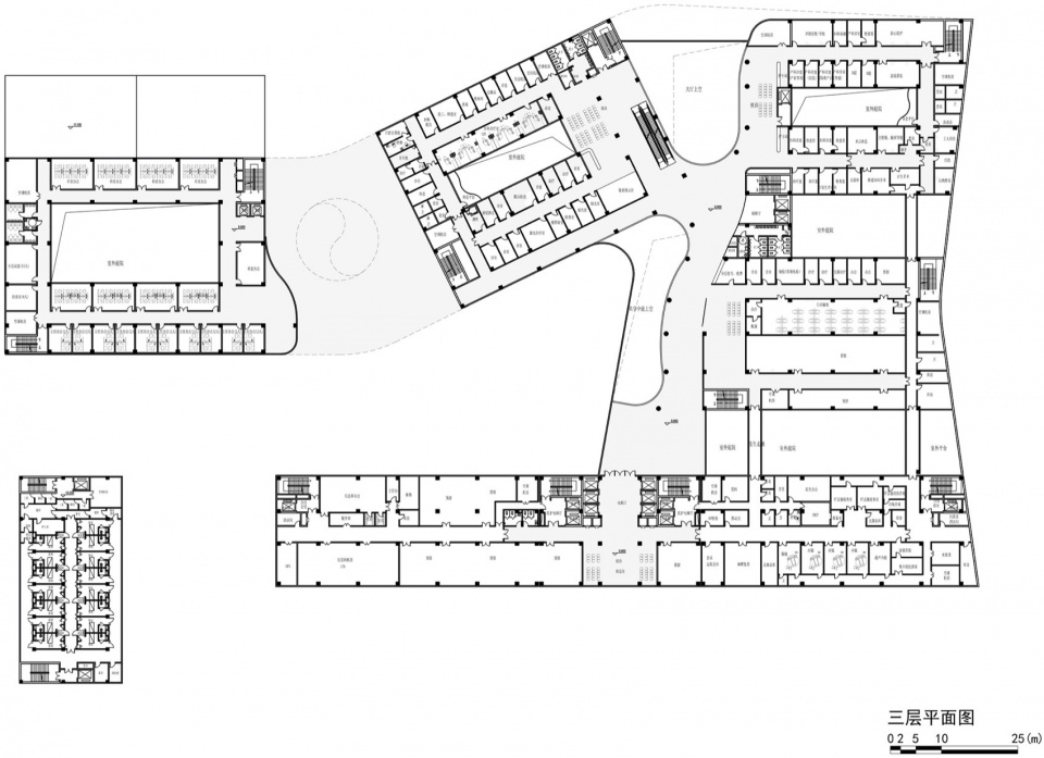
▼三层平面图,3F plan

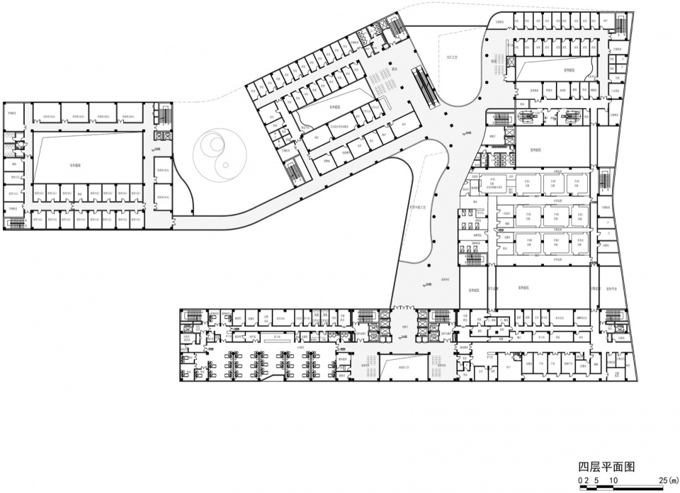
▼四层平面图,4F plan

▼较高层平面图,upper floor plan















