新办公楼,卢森堡 / Bureaux Andrew Phillips
Bureaux Andrew Phillips事务所近日在通往卢森堡市中心的一条主干道上完成了一座引人注目的新办公楼,该项目是城市西南部扩张的一个大型综合开发的一部分。该设计始于疫情初期,积极回应了现代办公空间不断演变的需求。这座建筑在其周围中性色调的背景下脱颖而出。
Bureaux Andrew Phillips has completed a striking new office building on a major boulevard leading into the City of Luxembourg, part of a broader mixed-use development expanding the city southwest. Commissioned during the early days of the pandemic, the design responds to the evolving needs of modern workspaces. The building stands out against the neutral tones of its surroundings.
▼办公楼概览,overview of the office building


传统建筑核心的元素被“解构”为若干部分,以增强楼层之间的视觉连通性。平面布局不再是“环形跑道”式的单元分隔,而是被划分为两个全景式的“工作阁楼”。楼梯被设为前台区域中的主动空间,充满自然光,并能眺望室外景观。这些楼梯鼓励使用者“享受攀登”的过程,将垂直交通转化为一段富有参与感的体验。
The elements of a traditional building core have been exploded into constituent elements to improve visual connection across the floorplate, which is split into two panoramic ‘lofts’ rather than a racetrack of cells. Staircases are active, front- of-house spaces, flooded with natural light and offering exterior views. These stairs invite users to enjoy the climb, turning vertical circulation into an engaging experience.
▼立面如同一幅深邃的编织帷幕,the façade resembles a deep woven curtain

▼建筑街景,the street view of the building

建筑立面的带状窗户由交替排列的倾斜立片构成,形成富有肌理感的三维表面。从特定角度看去,立面如同一幅深邃的编织帷幕。表面的“英伦赛车绿”涂层会随着光线变化而呈现出从深灰到明亮祖母绿的多重色调,在一天之中不断变幻。
The façade’s ribbon windows are framed by alternating raked fins, creating a textured, three-dimensional surface. From certain angles, the façade resembles a deep woven curtain. The British Racing Green finish shifts in tone from dark grey to bright emerald, depending on light conditions and changing throughout the day.
▼带状窗户由交替排列的倾斜立片构成,ribbon windows are framed by alternating raked fins


立面以光影、通透与遮蔽之间的对话为核心,制造出不断变化的感官体验:扁平转为深邃,实体表面映照着周围世界的变化。无论是行人、驾驶者,或是搭乘有轨电车的人们,从每个角度接近这座建筑,都会获得全新的视角。它是一段不断更新的视觉旅程,记录着时间的流动与城市的发展。
The façade plays with light and shadow, transparency and opacity. It’s a constantly shifting interplay that engages the senses, with flatness giving way to depth, and solid surfaces reflecting the world around them. The building offers ever- changing views—for those walking, driving, or taking the tram. Each approach gives a new perspective. It’s a visual experience that refreshes constantly, marking the passage of time and the city’s growth.
▼室内空间,interior space

▼露台空间,terrace space

这座建筑强调感官上的参与感,鼓励与周围环境产生连接,并在不同角度与不同时刻呈现出独特面貌。
The building prioritises sensory engagement. It invites connection with its surroundings, changing with every angle, at every hour.
▼场地平面,site plan

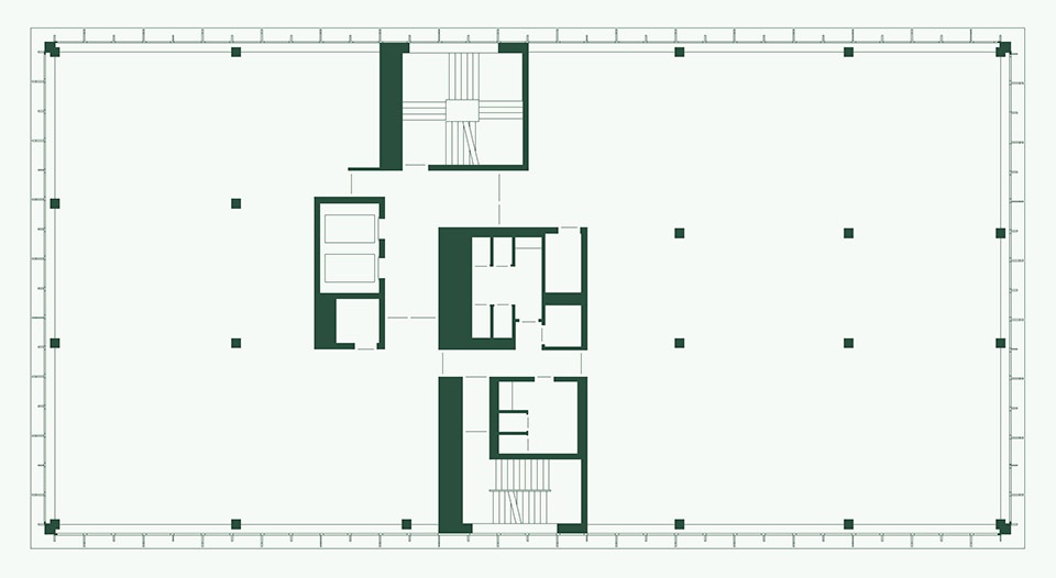
▼一层平面,ground floor plan

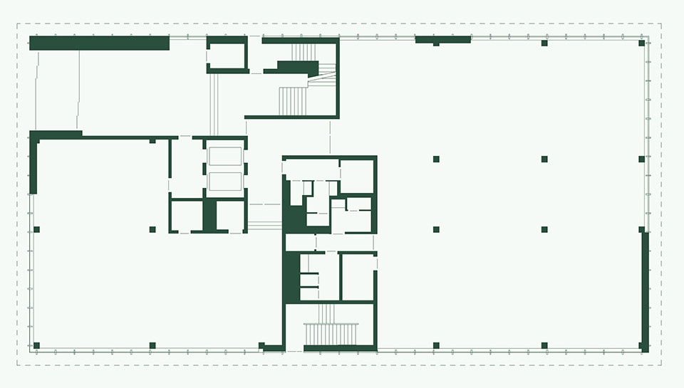
▼标准层平面,typical floor plan

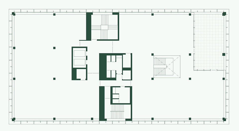
▼屋顶平面,top floor plan

▼剖面,section

Project Start 2021
Completion 2025
Gross Floor Area 7,000m2 Accreditation: Breeam ‘Excellent’, Well Core v2 ‘Gold’
Client: Grossfeld PAP
Architect (Design & Execution): Bureaux Andrew Phillips Structural Engineer: ICB
Services Engineer: Ingetech SA
Façade Consultant: FMDC Compliance: Energie et Environnment SA
Contractor: CBL
Facade Contractor: Kyotec
Photographer: Simon Menges














