Charles Aznavour音乐、戏剧和舞蹈学院,法国 / Dominique Coulon & associés
这座位于Montigny-le-Bretonneux的音乐、戏剧与舞蹈学院建筑,坐落在一块三角形地块上。从这里可以远眺里卡多·博菲尔于1985年建造的著名公寓楼“湖畔拱廊”。
The music, drama and dance academy building in the new town of Montigny-le-Bretonneux stands on a triangular site. It offers distant views of the famous apartment block Les Arcades du Lac that Ricardo Bofill made in 1985.
▼学院概览,overview of the academy building


这座紧凑的建筑仿佛在向南转向,以获得更佳的视角正对街道。建筑体块似乎向外展开,以展示其舞蹈教室的实际规模——该教室旋转至与道路平行。不同形态的体量相互碰撞,呼应了场地的几何形状,同时也为城市提供了多个视角,并将室内空间清晰地展现出来。
The compact building seems to turn to face south, to enjoy a better, right-angled view of the street. The structure seems to come apart to showcase the true size of its dance studio, which pivots to lie parallel with the road. Different forms collide, reflecting the site’s geometry. They offer vistas of the town and clear views of the interior.
▼不同形态的体量相互碰撞,different forms collide



建筑的外立面结合了透明的反光玻璃幕墙和竖向条纹表面,这些材质能捕捉光线。它们并置排列,使建筑的真实尺度变得模糊,为整体增添了一种神秘感和丰富的诠释空间。其模糊而耐人寻味的轮廓暗示了这是一座文化建筑。
The edifice’s outer sides feature transparent panes of reflective glazing and vertically striped surfaces that capture light. Their various textures are displayed side by side, which blurs the real scale of the building and endows the structure with an aura of strangeness and a wealth of interpretations. Its enigmatic outline suggests a cultural edifice.
▼外立面结合了透明的反光玻璃幕墙和竖向条纹表面,facade features transparent panes of reflective glazing and vertically striped surfaces

▼外立面细部,facade detail

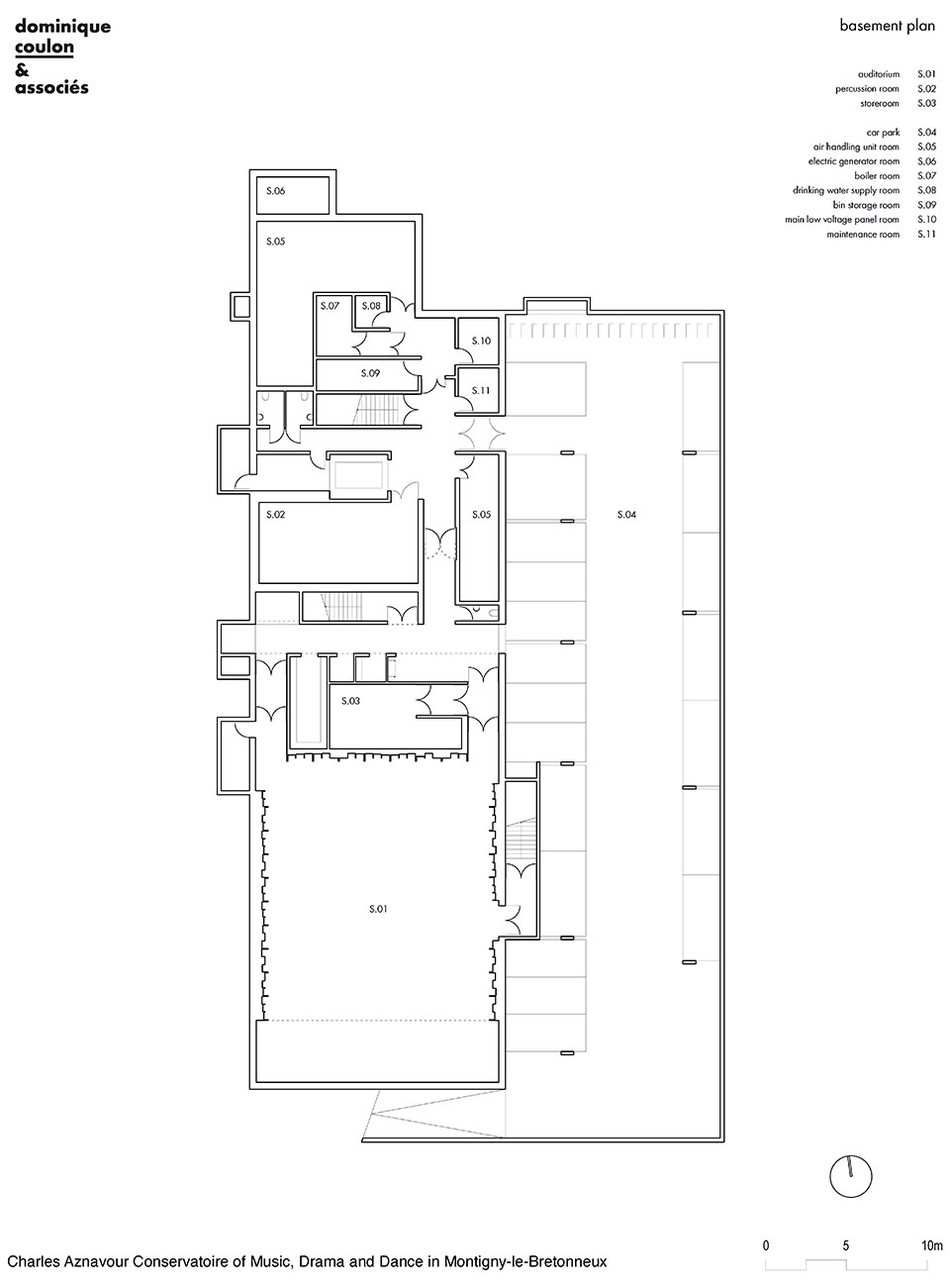
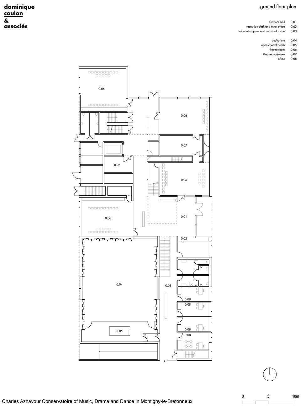
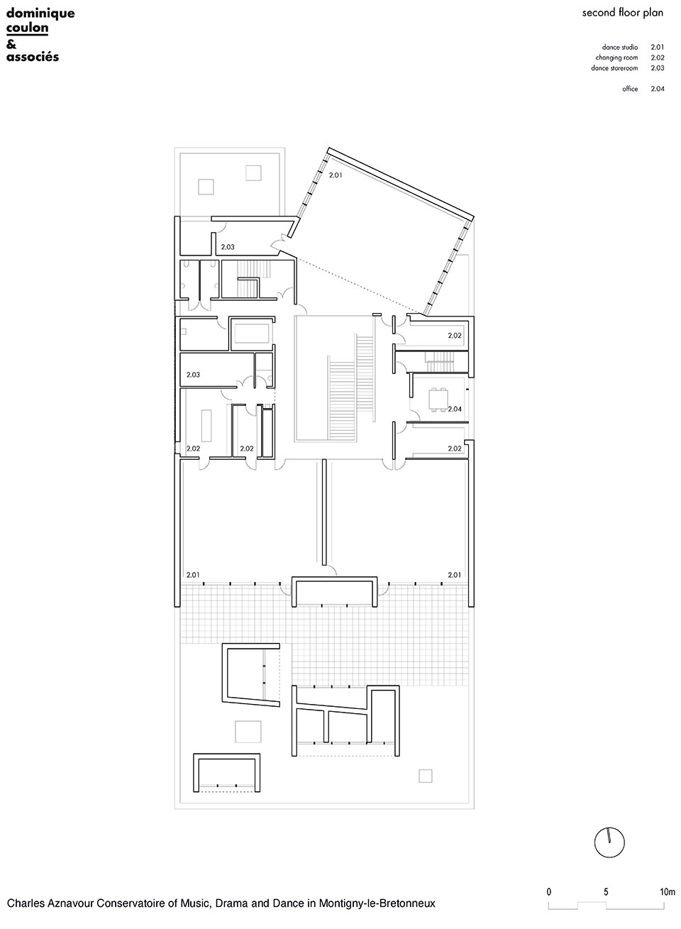
建筑共设四层,包含戏剧教室、大型黑匣子剧场、不同尺寸的音乐教室、录音棚、三间舞蹈教室及其更衣室,以及一个地下停车场。各个空间沿着一条不规则的轴线展开,沿途设有面向城市或建筑核心区域的开放交流空间。
The building has four levels. It includes drama rooms, a large black-box auditorium, music rooms of different sizes, a recording studio, three dance rooms with changing rooms, and an underground car park. The spaces are spread along an uneven axis that generously offers convivial areas looking out at the town or the building’s main sections.
▼入口大堂,entrance lobby

▼入口大堂,entrance lobby

走进入口大厅,映入眼帘的是两个高挑的地下空间:一个是洞穴般的剧场,另一个是拥有双层层高的打击乐教室,透过玻璃可以俯瞰乐器陈列。
When you step into the entrance hall, you find yourself looking down at two tall basement spaces: the cavernous auditorium and the percussion room with a ceiling height that spans two floors and offers views of the instruments below.
▼洞穴般的剧场,the cavernous auditorium



▼红色涂装的音乐教室,music room in red paint

▼双层层高的打击乐教室,the percussion room with a ceiling height that spans two floors



建筑的走廊展现出强烈的对比感:裸露的混凝土墙面与光滑的地面和天花板相映成趣。各楼层还点缀着大块实木构件,为交流空间增添了温暖与亲切感。
The hallways are characterised by contrasts: walls of exposed concrete juxtapose shiny floors and ceilings. The spaces are dotted with large solid timber additions on all levels, making the convivial areas welcoming.
▼裸露的混凝土墙面与光滑的地面和天花板形成对比,walls of exposed concrete juxtapose shiny floors and ceilings


▼大块实木构件点缀空间,the spaces are dotted with large solid timber

▼舞蹈排练室,dancing rehearsal room


▼走廊上方的穿孔板,Perforated panels over corridors

建筑的纵剖面图最能说明各空间之间所建立的强联系。三处大型天窗打破天花板的平整性,让自然光从各个角度洒入。一个纪念碑式的楼梯在中庭中斜向展开,一路延伸至上层的光线与舞蹈空间。大面积玻璃上贴有二向色薄膜,其色彩会随着观察者的位置和阳光的角度而不断变化。这一巨型万花筒般的构造将空间串联起来,营造出流动变化的色彩氛围。
The lengthways cross-section is the view that best helps understand the strong bond that we have created between all these spaces. Three large skylights punctuate the ceiling, which becomes distorted to let in natural light from all sides better. A monumental staircase rises in this atrium, which unfolds diagonally, stretching up towards the light and dance rooms. Dichroic films cover the large panes of glass. Their colours change in accordance with your position and that of the sun. The spaces are tied together by this giant kaleidoscope diffusing ever-changing colours.
▼巨型万花筒般的构造,giant kaleidoscope structure

▼玻璃上贴有二向色薄膜,Dichroic films cover the large panes of glass


▼色彩会随着观察者的位置和阳光的角度而不断变化,
colours change in accordance with your position and that of the sun


▼雕塑般的楼梯,sculpture-like staircase


▼夜景外观,exterior at night

▼夜景外观,exterior at night

▼场地平面,site plan

▼地下室平面,basement plan

▼一层平面,ground floor plan

▼二层平面,first floor plan

▼三层平面,second floor plan

▼立面,elevation


▼剖面,section


Contracting owner: Town of Montigny-le-Bretonneux [France]
Contract administration: Dominique Coulon & associés
Architects: Dominique Coulon, Steve Letho Duclos, David Romero-Uzeda, Diego Bastos Romero
Site supervision: Diego Bastos Romero
Perspectivist: Denis Labanq
Technical design – Structure: Batiserf Ingénierie
Technical design – Electricity: BET Gilbert Jost
Technical design – Fluids: Solares Bauen
Economist: E3 Économie
Acoustics and scenography: Euro Sound Project
Site scheduling, coordination and management: IPCS
Fire safety system: SSI Consulting
Assistant to contracting owner / Project planning engineer: CAP Urbain
Inspection agency and Coordinator for health and safety: Dekra Industrial
Programme: 146-seat auditorium, classrooms, theatre rooms, dance studios, music creation studios, percussion room, recording studio.
Address: 1 Parvis Colonel Arnaud Beltrame, 78180 Montigny-le-Bretonneux
Location using Google Maps: 48°46’14.7″N 2°02’45.8″E
Surface area: 3 346 sq.m.
Cost: 9 700 000 euros, excluding taxes
Schedule:
Competition: November 2016
Design work: May 2017 – November 2018
Site work: April 2019 – March 2022














