改新村乡村振兴配套基地,云南普洱 / 华建集团建筑装饰环境设计研究院 + 平介设计
项目位于云南省普洱市澜沧拉祜族自治县,依托于当地咖啡产业产、学、研的乡村振兴计划的支持下,通过对原有闲置的小学场地进行环境改造与新建,联合乡村笔记缔造的乡村特色产业基地配套设施。项目继承原有小学空间中“学”与“憩”的功能,协调梳理场地内外优良的自然环境,希望在日后开展的咖啡研学中,这个场所能成为研学活动容纳住宿,休闲,趣味活动一体的配套基地,成为乡村活力的新节点。
The project is located in Lancang Lahu Autonomous County, Pu’er City, Yunnan Province. Leveraging the local coffee industry and supported by the rural revitalization plan encompassing production, education, and research, the project transforms and constructs new facilities on the site of a disused primary school. In collaboration with Rural Notes, the project establishes supporting facilities for a rural characteristic industrial base. The project inherits the original functions of “learning” and “resting” from the primary school, harmonizes the excellent natural environment inside and outside the site, and aims to develop this place into a village coffee lounge that can accommodate research activities, lodging, leisure, and fun activities. It is envisioned to become a new hub of rural vitality.
▼项目鸟瞰图,Overhead view

场地踏勘之时,建筑的钢结构柱网基坑已然成型,旧规划方案中的客厅设置在原有小学教室与宿舍的中间,整体连成线型空间格局,却也隔开了场地空间中庭院景观与外侧山体自然森林的呼应关系,故此咖啡客厅的设计作为连接场地的元素而诞生。
During the site survey, the foundation pits for the steel structure columns of the building were already formed. The original planning placed the living room between the former primary school classrooms and dormitories, creating a linear spatial layout but also separating the courtyard landscape from the surrounding mountainous natural forest. Thus, the design of the coffee lounge emerged as an element to connect the site.
▼现状对比图,Ground plan

基于已然确定的钢结构柱网布局,在建筑的空间布局上我们进行了调整。在一层空间中,将咖啡吧的辅助性空间集中于一侧并结合楼梯整合布置,利用咖啡吧空间中连续的玻璃门窗构件形成的透明感,使得一层空间以一种轻质透明的状态介入到古树与自然景观之间。对于二层的民宿空间,我们借鉴传统村落的形式,以不同坡向的屋面来组成小型的群落空间,借助平台“浮”在自然环境之中,跳出原有建筑整齐的平屋面形式。
Based on the pre-determined steel structure column layout, we adjusted the spatial arrangement of the building. On the first floor, auxiliary spaces for the coffee bar were concentrated on one side and integrated with the staircase. The transparent effect formed by the continuous glass doors and windows in the coffee bar space allows the first floor to intervene between the ancient trees and natural landscape in a light and transparent state. For the second-floor homestay space, we drew inspiration from traditional villages, using roofs with different slopes to form a small clustered space that appears to “float” in the natural environment, breaking away from the original flat roof form of the building.
▼项目鸟瞰图,Overhead View


▼项目外观,exterior of the project


我们通过二层的平台出挑和一层体量退让出的灰空间,配合钢柱形成南侧与东侧的开放式游廊,游廊一方面可以作为两侧建筑的连接通道,另一方面使得二层民宿空间的入口流线形成的迂回过渡效果,让住宿空间私密性的得到加强。
▼轴测图,axonometric projection

▼爆炸图,Diagram

We created open verandas on the south and east sides by extending the platform on the second floor and retreating the volume on the first floor, in combination with the steel columns. The verandas not only serve as connecting passages between the buildings but also enhance the privacy of the homestay space by creating a winding transition effect at the entrance.
▼项目远观,distant view

▼项目外观,exterior of the project


▼庭院边廊,Courtyard side corridor

一层的咖啡厅南侧以多扇可开启透明玻璃门为界面,配合游廊形成半开放空间,我们希望以这样的多层次处理,让人在回味咖啡时得到于院内古树环境相接触的体验,而北侧则以离地1m的玻璃窗配合长吧台,人在此在眺望远山自然风景后,抿一口当地咖啡,融入到云南山野乡村的质朴之中。
▼方案模型,scheme model



The south side of the first-floor coffee lounge features multiple transparent glass doors that can be opened, forming a semi-open space in conjunction with the veranda. This layered approach aims to provide an experience of connecting with the ancient tree environment in the courtyard while enjoying coffee. On the north side, a glass window 1 meter above the ground combined with a long bar allows people to enjoy the distant mountain scenery while sipping local coffee, blending into the rustic charm of the Yunnan countryside.
▼咖啡客厅室内,Interior of Coffee Living Room

▼边廊山野框景,Side Corridor Framed Mountain Wilderness

项目设计中,我们通过咖啡吧与游廊之间连接形成的咖啡吧内部形成洄游流线,增加了空间内多角度体验的可能性。我们以此将咖啡吧室内钢柱,配合竹编悬挂式吊顶,在东西向界面形成的层叠弧线与游廊的吧台空间形成独特的框景效果,而在南北向界面中则呈现出连续弧线与平台的直线相互调和,构建出人、院落与自然景观的之间的视线引导。
In the project design, we created a circulating flow line inside the coffee bar through the connection between the coffee bar and the veranda, increasing the possibilities for multi-angle experiences within the space. We used steel columns inside the coffee bar, combined with a bamboo woven suspended ceiling, to form a layered arc on the east-west interface, creating a unique framed view with the veranda bar space. The north-south interface features continuous arcs and straight lines of the platform, harmonizing to guide the sightlines between people, the courtyard, and the natural landscape.
▼二层露台和树木关系,2- floor terrace – tree relationship

▼山景对景,Mountain – view counterpoint

在二层民宿空间的设计中,通过平台的构建与群落体量的间隙提供人在二层空间中流动的可能性,这样的调整使得人在村落中的步行游走体验被移植到二层空间,同时在这游走过程中与庭院古树形成的交互,让人得到了一种与自然在不同高度相接触的独特体验。
In the design of the second-floor homestay space, the construction of the platform and the gaps between the clustered volumes provide opportunities for movement within the second-floor space. This adjustment transplants the walking experience of the village into the second-floor space, creating unique interactions with the ancient courtyard trees and offering a distinct experience of connecting with nature at different heights.
▼客房一瞥,a glimspe at the guestroom

建筑立面空间作为整体院落的整合,在一层空间利用塑木地板与院落室外空间相衔接,配合白色的立柱与透明玻璃窗立面,形成白色的悬浮体量与周边的原有建筑相互协调。墙面材料选取带有竖向纹理的真石漆,整体建筑远观时呈现出映衬在绿林之中白石之感,近观则以细腻的肌理触觉与视觉增添整体空间的质感。
The facade space of the building integrates with the overall courtyard. The first-floor space uses wood-plastic flooring to connect with the outdoor courtyard space, complemented by white columns and transparent glass windows to form a white floating volume that harmonizes with the surrounding original buildings. The wall material is selected with vertical textured real stone paint, giving the overall building a white stone appearance against the green forest when viewed from a distance, and adding a delicate texture to the overall space when viewed up close.
▼户外平台,outdoor terrace

▼绿林之中白石之感,The feeling of white stone in the green forest

咖啡客厅作为乡村笔记后期运营咖啡研学活动的场所,我们同时将整体小学内原有的教室与宿舍进行改加建设计,提供完备的住宿条件,配合咖啡客厅的民宿空间形成四人间、标间、套房的多样化休憩空间。
As a venue for Rural Notes’ coffee research activities, the coffee lounge is complemented by the renovation and design of the original classrooms and dormitories in the primary school, providing complete accommodation conditions. The homestay space of the coffee lounge forms a variety of rest spaces including four-person rooms, standard rooms, and suites.
▼入口庭院,Entrance courtyard


在院落整体布局方面,我们对院落的景观布局进行调整,保留一定程度的运营灵活性。我们希望场地内预留出的木质活动平台与休闲草坪能够容纳更多的社区活动,使得众多研学学子更好地融入到当地居民社区生活中。值得一提的是,在项目建设中,或许是出于某个灵光一现的念头,原本分离的客厅与小学宿舍被一座钢结构玻璃楼梯连接起来,通过对小学宿舍屋顶的利用增添了院落的活动空间,增加了社区活动中院落的观赏空间,人、乡村、自然在这一刻得以融合,这才实现了农村社区的共建共享,得以一同拥抱的自然馈赠。
In terms of overall courtyard layout, we adjusted the landscape layout to retain a certain degree of operational flexibility. We hope the reserved wooden activity platform and leisure lawn can accommodate more community activities, allowing many research students to better integrate into the local community life. Notably, in a moment of inspiration during the project construction, the originally separated living room and primary school dormitory were connected by a steel structure glass staircase. By utilizing the roof of the primary school dormitory, we added activity space to the courtyard, increasing the viewing space during community activities. At this moment, people, the village, and nature merged, achieving co-construction and sharing in the rural community, embracing nature’s gift together.
▼夜景概览,overall night view


▼施工纪实,Construction Documentary

▼一层平面图,the 1st floor plan

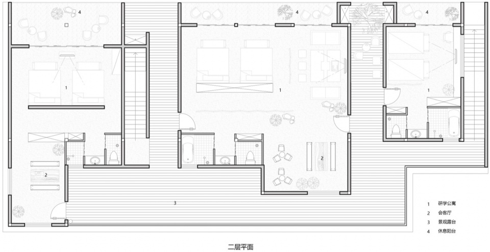
▼二层平面图,the 2nd floor plan

Project Name:Gaixin Village Rural Revitalization Supporting Base
Planning: Beyond The City
Designer: Huajian Group Architectural Decoration Environment Design and Research Institute, Parallect Design
Construction Drawing Design: Yunnan Nine Stars Architectural Survey and Design Co.
Company website: https://www.parallect-design.com
Contact Email: info@parallect-design.com
Building Area: 1200 square meters
Design year: 2023, 10; 2024, 05
Parallect design: Wang Yunwei,Wang Enzhu ,Li Zongji,Zhang Ying , Wu Si
Soochow University: Nan Yang
Photographer: Wang Yixiang
Client: Gaixin Village, Donghui Town, Lancang County; Beyond The City
Location: Gaixin Village, Donghui Town, Lancang County, Pu’er City, Yunnan Province, China














