白方摄影工作室,杭州 / Atelier LAI Horizon
白方摄影工作室的诞生,源于对本质需求的清醒洞察。我们摒弃浮华的技法,选择木工板的质朴肌理,阳光板的通透轻盈。它们不昂贵,却足够诚实,承载着我们对空间功能最基础的承诺。
By fun Photography Studio was born from a clear-eyed insight into essential needs. We eschew ostentatious techniques, choosing instead the honest texture of plywood and the translucent lightness of polycarbonate panels. These materials are not expensive, yet they are profoundly truthful, bearing witness to our most fundamental commitment to the studio’s function.
▼空间概览,overview of the interior space


▼极致简约的风格,radical simplicity reigns supreme


构造上,极致的简约是唯一的法则。每一处连接、每一次转折,都摒弃多余的矫饰,以最清晰、最经济的方式,将各个角落严谨而流畅地串联。这并非简陋,而是在有限的框架内,对细节进行近乎苛刻的温柔打磨。
In its construction, radical simplicity reigns supreme. Every joint, every turn, strips away superfluous ornamentation, connecting each corner with rigorous clarity and fluidity, all achieved in the most economical way. This is not mere austerity; it is tender refinement of detail pursued with near-obsessive care within defined constraints.
▼严谨而流畅地串联各个空间,connecting each corner with rigorous clarity and fluidity


▼极致简约的风格,radical simplicity reigns supreme



▼木材与阳光板的结合,
combination of the wood and polycarbonate panel


绿意它们是空间里蓬勃生长的伙伴,是呼吸着的生命体。藤蔓沿着结构自然攀援。
The greenery? It is a thriving partner within the space,living, breathing entities. Vines climb naturally along the structure.
▼空间中的绿意,the greenery in the space


▼空间中的绿意,the greenery in the space


▼绿意是空间里蓬勃生长的伙伴,
greenery is a thriving partner within the space


没有炫目的技巧堆砌,只有对材料本真的尊重,对功能纯粹的回归,以及对阳光、空气、生命最朴素的接纳。在经济的边界内,我们精心雕琢,只为让真实的需求得以安放。
There is no dazzling display of technical prowess. Only respect for the inherent nature of materials, a pure return to function, and a simple embrace of sunlight, air, and life. Within the boundaries of economy, we meticulously craft, letting genuine needs find their place.
▼对材料本真的尊重,the inherent nature of materials


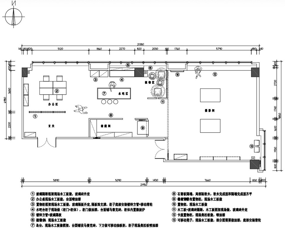
▼平面图,plan

▼岛台立面图,bar elevation















