九寨沟日赛谷丽思卡尔顿隐世酒店 / 中国建筑西南设计研究院有限公司 + WATG建筑设计事务所
前言
Foreword
丽思卡尔顿隐世酒店位于九寨沟漳扎镇中查沟,为万豪国际酒店集团在国内的首家、全球第六家“隐世”系列度假酒店。设计以藏、羌地域文脉为建构基础,以场所精神为引导,延续“川派营建”的设计理念,建造根植于自然,有机生长的建筑群落。
Rissai Valley,a Ritz-Carton Reserve is located in Zhongcha Valley, Zhangzha Town, Jiuzhaigou. It is the first “Reserve” collection resort hotel of Marriott International. Inc in China and the sixth globally. This design takes the regional cultural context of the Tibetan and Qiang ethnic groups as the foundation, and is guided by the place spirit, and inherits the design concept of “Sichuan-style construction”. It has built an architectural complex that is rooted in nature and grows organically.
▼从山顶俯瞰整个酒店,Overlook the entire hotel from the top of the mountain

01 依山结寨 和谐共生
The villages are built along the mountains and live in harmony
“日赛”(Rissai)藏语意为寨子,寓意在山谷中以千年文脉筑起的一方净土。传统藏寨空间格局形成与地形气候、生产生活方式、以及宗教文化都有密切关系。山地传统藏族村寨总平呈散落式布局,依山势层级错落,以碉楼为核心,道路沿地形蜿蜒连通,民居围合院落,兼顾防风防寒与防御,隐立于密林之中,与山林溪流相融共生。
“Rissai” in Tibetan means “stockade village”, a pure land with millennia of valley culture. The formation of traditional Tibetan stockade villages which have a scattered layout, is closely related to the terrain, climate, life and religion. The villages site has tiered buildings along slopes, watchtower-centered settlements with winding roads, courtyard-enclosed houses (windproof, defensive), hidden in forests, coexisting with mountains, forests and streams.
▼酒店总平面,Hotel site plan

酒店地处中查沟中部山谷的西侧,整个场地处于西高东低的山坡中部,地势陡峭。用地内最高点海拔2400m,最低点2311m,垂直高差最大处达89m。正对山谷的东侧,则是隐藏在中查沟山谷中原汁原味的藏族村寨“波日俄寨”。
The hotel is located on the west side of the central valley in Zhongcha Valley. The entire site sits in the middle of the hillside, where the higher elevation in the west and lower in the east, featuring a steep terrain. The highest point within the site reaches an elevation of 2,400 meters, while the lowest point is at 2,311 meters, with a maximum vertical height difference of 89 meters. Directly across the valley to the east lies “Bori’e Village” — an authentic Tibetan stockade village hidden in the Zhongcha Valley.
▼酒店遥望山谷对面村寨,The hotel overlooks the village across the valley

酒店总体规划借鉴山地传统藏寨散落式布局,顺应等高线,随形就势。项目占地166088㎡,总建筑面积36217㎡,包括87栋豪华私人别墅、酒店公区和SPA,总体布局以中心腹地的公区为核心,其余建筑围绕其周,鳞次栉比地环绕于浅山之间,向景而居,浑然天成,如同一座古朴村寨,与山谷对面的“波日俄寨”遥相呼应,名副其实的奢华“隐世”。酒店由一条蜿蜒的盘山公路与外界联系,进入酒店区域后,沿路而上到达公区,穿过一道寨门,在私人管家带领下,转乘观光车至客房下榻。
▼酒店高程分析及交通分析,The hotel transportation analysis and height analysis


The hotel’s master plan, inspired by scattered traditional Tibetan villages, follows contour lines and natural terrain. Covering 166,088㎡ plot area with total floor area of 36,217㎡, it includes 87 luxury villas, public areas and a SPA. The general layout sets the central public zones as core area, and surrounded by other building cluster, scattered amid low hills, blending into the scenery like an ancient village echoing “Bori’e Village” across the valley—a true luxury ” seclusion”. Access via a winding mountain road, the guests arrive public areas by passing a village gate, then take a sightseeing vehicle with a butler to rooms.
▼外部道路与内部道路,External roads and internal roads


02 堆石筑台 围院而居
The courtyard is surrounded by a platform built with stones
建筑单体借鉴藏寨传统吊脚楼形式,利用吊层设置配套、设备用房。客房为地上一层,吊脚一层,上部分为居住功能,保障采光通风与景观体验,下部吊层作配套或设备用房;公区为地上两层、吊脚三层,上部满足酒店餐饮、宴会等大空间需求,下部吊层承担后勤、停车等辅助功能。利用高差设不同标高出入口,游客入口位于首层中心位置,便捷且景观佳,后勤入口则隐蔽设置,实现动线分离、互不干扰。此外,每一栋客房基座之上均设置东向休闲露台,且前后排客房保持约7米高差,确保每套客房拥有良好的景观视野,远眺雪山近瞰原生态古藏寨。
▼A型客房首层平面及剖面,The floor plan and section of the first floor of Type A guest rooms


Each building draws on the form of stilted houses in traditional Tibetan stockade villages, with the stilted floors used as supporting facilities and equipment rooms. Guest rooms consist of 1 above-ground floor and 1 stilted floor: the upper floor serves as living space, ensuring lighting, ventilation and landscape views; the lower stilted floor functions as supporting facilities or equipment rooms. Public areas have 2 above-ground floors and 3 stilted floors: the upper floors meet the needs of large spaces like hotel dining and banquets; the lower stilted floors undertake auxiliary functions such as services and parking. Entrances at different elevations are set according to the terrain difference: the tourist entrance is in the center of the ground floor, offering convenience and good views; the service entrance is concealed, achieving separate circulation without mutual interference. Each guest room building has an east-facing leisure terrace at its base, and there is an approximate 7-meter height difference between front and rear rows of guest rooms, ensuring each room enjoys good views—overlooking distant snow-capped mountains and nearby original ecological ancient Tibetan stockades.
▼客房,Guest room

▼公区东立面,Public area east facade

在借鉴传统藏寨空间布局的同时,结合现代酒店功能需求,引用传统藏式民居的“院落”空间,从落客区的“前院”到客房的入户“小院”,从开放到私密,不同功能、不同尺度的院落空间营造出不同的空间氛围。客房注重为宾客提供温馨的“归家”感,精致小巧的木门迎宾入院,稻草、夯土墙围合的私人院落更具避世之感,穿过玄关、客厅、卧室来到宽敞的私人露台,让宾客在私密空间面朝绿野山涧,拥抱古朴。
▼客房视线分析,Analysis of Guest Room Views

While drawing on the spatial layout of traditional Tibetan stockade villages, the design also integrates the functional needs of modern hotels and incorporates the “courtyard” space of traditional Tibetan dwellings. Ranging from the “front courtyard” at the drop-off area to the “small courtyard” at the entrance of each guest room, these courtyard spaces—with different functions and scales—create distinct spatial atmospheres, transitioning from openness to privacy.The guest rooms are designed to provide guests with a warm “sense of homecoming”. Exquisite small wooden doors welcome guests into the courtyard; the private courtyards enclosed by straw and rammed earth walls evoke a stronger sense of seclusion. Passing through the entrance hall, living room, and bedroom, guests arrive at a spacious private terrace, allowing them to face the green fields and mountain streams in a private space and embrace the ancient simplicity.
▼酒店客房外观,Facade of the hotel guest room


03 隐秘藏羌 文化传承
Cultural inheritance
建筑风貌从藏羌传统中汲取灵感,以藏羌碉楼的雄浑与藏式木制榻板房的原始古朴为蓝本,建筑立面设计融入三段式形式,延续了量感明显的悬山坡屋顶,古朴宽厚的夯土与木板墙身以及收分适宜的基座。建筑构造设计提取传统藏式建筑的典型特征与符号语言,用于木构件的装饰设计中,演绎围墙“边玛墙”、窗楣“飞子木”,木门”门斗“等构造样式。建筑屋脊高低变化、穿插组合,建筑群落顶部线条灵动多变,在巍峨雪山背景的映衬下,建筑与环境和谐相融,共同勾勒出一幅至美的自然画卷。
The architectural style draws inspiration from traditional Tibetan and Qiang cultures, taking the majestic grandeur of Tibetan-Qiang watchtowers and the primitive simplicity of Tibetan wooden plank houses as prototypes. The design of building facades adopts a three-section structure, inheriting gable and hip roofs with a distinct sense of volume, primitive and thick rammed earth walls and wooden plank walls, as well as plinths with appropriately tapering proportions. In detail design, typical features and symbolic languages of traditional Tibetan architecture are extracted and applied to the decorative design of wooden components, reinterpreting detail styles such as the “Bianma Wall” (a traditional Tibetan parapet wall), “Feizi Wood” (decorative wooden brackets above windows), and “Mendou” (transition space) of wooden doors. The ridges of the buildings are scattered in height, interspersed and combined, while the skyline of the architectural complex is flexible and varied. Set against the backdrop of towering snow-capped mountains, the buildings blend harmoniously with the environment, jointly outlining a magnificent natural picture.
▼从酒店远眺雪山,Distant view of the hotel

▼客房外立面细部构造,Detailed construction of the guest room facade

▼客房外立面细部构造,Detailed construction of the guest room facade

室内设计巧妙融合藏羌文化,室内空间摒除多余装饰,展露木结构体系,完整显现梁柱穿插交接之美与一品品椽子排列的节律之美。大堂功能区镜像布局、客房入户轴线遵循中正序列,这些视觉秩序无不体现着藏式建筑特有的庄重感。
The interior design skillfully integrates Tibetan and Qiang cultures. Redundant decorations are excluded from the interior space to reveal the wooden structure system, fully presenting the beauty of the interconnection between beams and columns as well as the rhythmic beauty of the neatly arranged rafters. The functional areas of the lobby adopt a mirrored layout, and the entry axis of the guest rooms follows a centered and orderly sequence. These visual orders all reflect the unique sense of solemnity in Tibetan architecture.
▼大堂,Lobby

大堂吧复刻火塘与烟囱,还原民俗场景;客房床头装饰吉祥纹,地毯、楣梁与之呼应,公共区域采用吉祥纹作为空间分隔元素。室内摆放着藏式物件,很多都来自当地村民家,经过清洁或修缮后成为客房中的点睛之笔。这些凝练着地域基因的符号,让藏式风情自细节处自然流淌。
The lobby lounge reproduces the traditional fire pit and chimney, recreating a folk scene. In public area, auspicious patterns are used as elements to divide the space. Tibetan-style items are placed throughout the interiors—many of which were sourced from local villagers’ homes. After being cleaned or restored, these items have become the highlight of the guest rooms. These symbols that embody the regional cultural genes allow Tibetan-style charm to flow naturally in the details.
▼餐厅包间室内,Interior space of the private room

04 因地制宜 生态绿建
Ecological green construction adapted to local conditions
藏羌地区的建筑形态与气候环境有着密切的关联,应对高海拔和寒冷的气候特点,传统建筑材料就地取材,建造方式因地制宜,形成独特的结构形式与构造特点。“绿建生态”概念早已在先人世代流传下来的低技、适用、低成本的构建手法中实现,并成为当代学习的典范。
There is a close connection between the architectural forms of the Tibetan and Qiang regions and their climatic environment. In order to adapt to the high-altitude and cold climate characteristics, traditional building materials are sourced locally, and construction methods are tailored to the local conditions, thus forming unique structural forms and construction features. The concept of “green building and ecology” has long been realized in the low-tech, practical and low-cost construction techniques that handed down by ancestors from generation to generation, and has become a model for contemporary learning.
▼冬雪中的酒店,Hotel in the winter

▼冬雪中的酒店,Hotel in the winter

首先,建筑采用传统绿建智慧。场地顺西高东低山势延展,西侧借地形成屏障,防止西晒与寒风;建筑形态延续传统藏式碉楼特点,平面布局紧凑、形体简约以减少散热面积;客房呈现不同角度顺应等高线,以保证每间房屋得以充足日照;开窗比例匹配朝向、功能需求:东侧设露台与大木窗纳光揽景,外装悬挑木格栅防紫外线,木窗周围辅以藤编墙体增强储热性能;南北墙优化保温层、窗型及窗墙比以增强保温性能,双层实木窗框密封避风;西侧则小窗少开,仅满足盥洗采光。
Firstly, the architecture adopts traditional green technics wisdom: the site extends along the west-high-east-low mountain terrain, with the western part forming a barrier against western solar exposure and cold winds. It inherits the characteristics of traditional Tibetan watchtowers, featuring a compact layout and simple shape to reduce heat loss area. Guest rooms are arranged at multiple angles along the contour lines to ensure sufficient sunlight. The window-to-wall ratio is adapted to orientation and functions: the east side has terraces and large wooden windows, with overhanging wooden grilles installed externally to block ultraviolet rays, and woven rattan walls around the wooden windows to enhance heat storage; the north and south walls have optimized insulation layers, window types and window-to-wall ratios, with double-layer solid wood window frames for airtightness against drafts; the west side has few small windows, just enough to meet the lighting needs of washrooms.
▼融入山林的客房建筑群,A complex of guest rooms integrated into the mountains and forests

▼酒店公区望向雪山,The public area of the hotel overlooks the snow-capped mountains

其次,传统建筑中的材料具有很强的耐候性和环境适应性,在继承传统营造精髓之上,融合当代材料与技艺,经当代建造体系重新诠释,既延续传统智慧,亦焕发质朴持久的生命力。建筑屋面采用岩板瓦与复合保温层,增强保温和防水性能;采用防腐木替代传统木料,以延长木屋架寿命;毛石墙采取内层用实心砖墙或混凝土墙,外层以粗犷的麻岩石砌块堆叠的双层构造,其内部通过钢筋网拉结,将叠石与混凝土墙连接稳固,墙身的传统夯土墙质感,则是利用表面浅咖色矿物涂料甩浆的现代营造手法模拟再现。
Secondly, traditional building materials have strong weather resistance and environmental adaptability. Rooted in the essence of traditional craftsmanship, the design integrates contemporary materials and technologies, reinterpreting them through modern construction systems—not only inheriting traditional wisdom but also rejuvenating a simple yet enduring vitality. Building roofs adopt rock slab tiles and composite insulation layers to enhance thermal insulation and waterproof performance. Anticorrosive wood replaces traditional timber to extend the service life of wooden roof trusses. Rubble stone walls feature a double-layer structure: the inner layer is solid brick or concrete walls, while the outer layer is stacked with rough hemp stones. The inner and outer layers are firmly connected by steel mesh ties, securing the stacked stones to the concrete walls. The texture of traditional rammed earth walls is replicated on the wall surface using modern techniques—by spraying light brown mineral paint.
▼木构件、毛石墙等建筑细部,Architectural details such as wooden components and rubble walls


最后,在建筑结构设计上,依据高设防烈度、坡地高差等不同工况,采用框剪等多种结构组合,设置防震缝、脱开的挡土墙等,兼顾安全与经济。设备系统方面,给排水系统分区供水、余热回收;空调冷热源结合当地实际采用“集中 + 分散”形式,搭配自然通风;电气系统采用双重电源保障高海拔供电,且各系统借助节能产品与智能控制,实现节能运行 。
Finally, in terms of architectural structural design, multiple structural combinations such as frame-shear structures are adopted based on different working conditions including high seismic intensity fortification and slope height differences. Seismic gaps and detached retaining walls are installed to balance safety and cost. In terms of equipment systems, the water supply and drainage system adopts zoned water supply and waste heat recovery; the cooling and heating sources of the air conditioning system adopt a “centralized + decentralized” mode in line with local realities, combined with natural ventilation; the electrical system uses dual power supplies to ensure power supply at high altitudes. Moreover, all systems achieve energy-efficient operation through energy-saving products and intelligent control.
▼白雪皑皑中的酒店聚落,A hotel cluster blanketed in snow

结语
Conclusion
九寨沟丽思卡尔顿隐世酒店的设计秉持尊重自然与文化的理念,延续川地传统聚落“道法自然,天人合一”的哲学观。它如自然生长的聚落,在这片神圣山川间浑然天成,将夯土的厚重、经幡的灵动、火塘的暖融熬煮成一味独有的藏羌 “佳肴”,让每一位驻足者,都能品味到原乡文化与天地共生的醇厚滋味。
The design of Rissai Valley,a Ritz-Carton Reserve , Jiuzhaigou, adheres to the philosophy of respecting nature and culture, and inherits the traditional Sichuan settlement philosophy of “following the way of nature and achieving harmony between humanity and heaven”. Like a naturally growing settlement, it blends seamlessly into this sacred landscape of mountains and rivers. It brews the thickness of rammed earth, the vitality of prayer flags, and the warmth of fire pits into a unique Tibetan-Qiang “delicacy”, allowing every visitor to savor the rich flavor of the original culture coexisting with heaven and earth.
▼酒店公区木门,The wooden door of the hotel’s public area

▼酒店公区夜景,Night view of the hotel’s public area

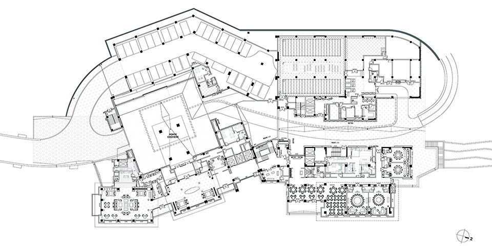
▼公区首层平面图,Public area ground floor plan

▼公区二层平面图,Public area first floor plan

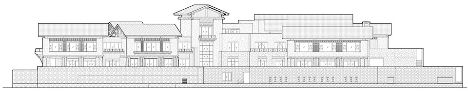
▼公区正投影立面图,Orthographic elevation view of the public area















