Kraffer花园修复项目,捷克 / matěj šebek architekti + Ateliér Za Mák
Kraffer花园的历史
History of the Kraffer Garden
Kraffer花园这一园区的历史可追溯至18世纪。它最初是一座巴洛克宫殿花园,后来因一场大火而与宫殿分离并被出售。在此后的百余年间,著名的Kraffer家族在这里经营苗圃。然而,20世纪50年代的国有化带来了缺乏敏感性的改造,苗圃及其建筑逐渐衰败,最终沦为废弃地,并在千禧年之交被部分清理。2021年起,景观设计事务所Ateliér Za Mák接管了这片被遗弃的苗圃,全面复兴由此展开。他们的投入为花园注入了新生机,将其转化为位于金德日赫乌夫·赫拉德茨市中心的社区空间。在巴洛克花园与一战后第一共和国时期苗圃的基址之上,这片棕地如今正转变为一个园艺手工、文化与人文故事交织的场所。
The Kraffer Garden complex is a place with a story reaching back to the 18th century. Originally a Baroque palace garden, it was later separated from the palace after a major fire and sold. For more than a hundred years, the renowned Kraffer family horticultural nursery operated here, until nationalisation in the 1950s brought insensitive alterations. The nursery and its buildings gradually declined into a brownfield, partly cleared at the turn of the millennium. A full-scale renewal began in 2021, when the abandoned nursery was taken over by a group of landscape architects from Ateliér Za Mák. Their energy has given the garden a new life, transforming it into a community space in the heart of Jindřichův Hradec. On the foundations of the Baroque garden and the First Republic–era nursery, a brownfield is being transformed into a place where horticultural craft meets culture and human stories.
▼项目鸟瞰,aerial view of the project

▼转变为一个园艺手工、文化与人文故事交织的场所,transformed into a place where horticultural craft meets culture and human stories

当代社区花园
Contemporary Community Garden
Kraffer花园宛如一座小岛,镶嵌在小镇中央,在昔日巴洛克花园的印迹上演绎出一场生机勃勃的景观剧场。花园的重建遵循了重新发现的、已有两百多年历史的地形格局,并根据当代功能加以改造。结果是一个灵活的空间,兼容文化、休闲与花卉种植。
Kraffer Garden is like an island in the middle of the town, where a vivid performance unfolds on the footprint of the old Baroque garden. It has been reconstructed according to a rediscovered, more than 200-year-old terrain configuration, adapted to contemporary functions. The result is a flexible space for culture, relaxation, and flower cultivation.
▼生机勃勃的景观剧场,A vibrant landscape theater


设计的基本理念严格遵循几何秩序——源自发掘出的历史设计语言,为花园赋予了清晰的秩序感。然而在细节上,方案完全当代化并高度可持续,强调回收利用、雨水管理与生物多样性的支持。在严谨的几何线条之间,植物的野性自然闯入,形成了鲜明的对比。整个梯田式花园由巴洛克石墙围合,南向一侧排列着温室与种植棚。
The basic concept is strictly geometric—derived from the uncovered historical design language, which gives the garden a clear order. In detail, however, the solutions are entirely contemporary and highly sustainable, with an emphasis on recycling, rainwater management, and biodiversity support. Into the strict lines enters the natural wildness of plants, creating a striking contrast. The entire terraced garden is framed by a Baroque stone wall, lined with south-facing greenhouses and growing sheds.
▼温室与种植棚,greenhouses and growing sheds



如今,园区的最大部分是公共示范花园。在这里不仅可以购买植物,还能观摩培育过程,公众有机会了解本地与季节性花卉的生产。园区还举办各类文化与环保活动,以及花卉、草药等工作坊——人们也可以单纯来此放松身心。
Today, the largest part of the complex is a public demonstration garden. Plants are not only sold here but also cultivated, allowing the public to discover local and seasonal flower production. The space also hosts a wide range of cultural and environmental events, flower, herb, and other workshops—and anyone can simply come here to relax.
▼为花园赋予了清晰的秩序感,gives the garden a clear order


建筑介入
Architectural Interventions
场地的建筑改造着眼于向公众开放花园。Matěj Šebek Architekti在花园东北侧进行了一项关键的干预:来自不同时期的仓库与温室被从中切开,形成一条新的坡道,直接通往花园。新建的扩展部分界定了坡道,取代了破败的旧建筑,并与原有的巴洛克围墙相连。在此形成了新的园区设施——一家花店与景观建筑工作室。该扩展部分为低矮体量,自然融入原有温室,并通过绿色屋顶契合梯田式花园的整体语境。
The architectural adaptations of the site were conceived with an emphasis on opening the garden to the public. A key intervention by matěj šebek architekti takes place on the northeastern edge of the garden. The complex of warehouses and greenhouses from different periods is cut open in the middle, creating a new ramp for direct access to the garden itself. The new extension defines the ramp, replaces the dilapidated buildings, and adjoins the original Baroque enclosure wall. A new garden facility is being created here – a flower shop and a landscape architecture studio. The extension is a low structure that blends naturally into the original greenhouses and, with its green roof, fits into the overall context of the terraced garden.
▼花店与景观建筑工作室入口,the entrance of the flower shop and a landscape architecture studio


▼花店与景观建筑工作室外观,the facade of the flower shop and a landscape architecture studio


▼花店与景观建筑工作室入口,the entrance of the flower shop and a landscape architecture studio


▼裸露的天花梁与支撑其上的清晰檐口,the exposed ceiling beams and the clearly defined cornice


▼扩建部分与原有巴洛克墙体相连,connects the extension to the original Baroque wall

新建筑的设计追求清晰可读,与功能高度契合。其设于轻质混凝土基座之上,并通过混凝土坡道将访客引入花园。建筑的布局与结构紧贴原有的巴洛克围墙,部分墙体残迹在室内依然可见。辅助建筑群位于花园边缘,围墙直接贯穿其中。这一情况通过一根整体式的厚重过梁被强调,它在象征与结构上都将扩建部分与原有巴洛克墙体相连。建筑顶部覆盖平屋顶绿化,南向大挑檐在夏季提供遮阳。建筑的显著特征是裸露的天花梁与支撑其上的清晰檐口。室内既功能性强,又显得细腻。隔墙无需永久存在,因此采用轻质胶合板制成。所有墙面均未抹灰,仅以石灰白涂,精细陶土砌块的结构与蜿蜒的巴洛克石墙在统一的胶合板天花之下相遇。
The architecture of the new extension strives above all to be understandable and consistent with its intended function. The house is set on a light concrete plinth, which is connected to a concrete ramp leading visitors into the garden. The layout and construction of the house adjoin the original Baroque enclosure wall, fragments of which are also visible in the interior. The complex of support buildings is located on the edge of the garden, with the aforementioned wall running directly through it. This situation is emphasized by a monolithic heavy lintel, which connects the extension to the original Baroque wall both symbolically and structurally. The building is topped with a flat green roof with a significant overhang to the south, which shades the intense summer sun. The dominant features are the exposed ceiling beams and the clearly defined cornice that supports them. The interior is both functional and delicate. The partition wall does not have to be permanent, which is why it is light and made of plywood. All the walls are unplastered, only whitewashed with lime, so the structure of the precise ceramic blocks meets the winding Baroque stone wall under a uniform plywood ceiling.
▼扩建部分与原有巴洛克墙体相连,connects the extension to the original Baroque wall

▼墙面均未抹灰,仅以石灰白涂,All the walls are unplastered, only whitewashed with lime


跨学科合作
Collaboration Across Disciplines
这座建筑与花园的生成过程始终保持对话——花园塑造着建筑,而建筑亦反过来塑造着花园。Ateliér Za Mák与Matěj Šebek Architekti的合作不仅孕育了一个共享的愉悦空间,还开启了未来项目的长期合作与新的友谊。建筑与花园的蜕变仍在持续展开。
The house and garden were developed in constant dialogue – the garden shaping the house, and the house in turn shaping the garden. The collaboration between Ateliér Za Mák and Matěj Šebek architekti produced not only a shared joyful space, but also long-term cooperation on future projects and new friendships. The transformation of the architecture and the garden is still unfolding.
▼灯光下的工作室,building under the lights

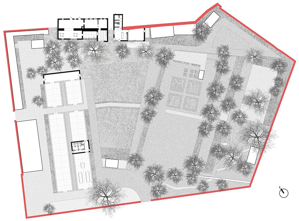
▼场地平面,site plan

▼建筑布局,building layout

▼建筑立面,building elevation

▼建筑剖面,building section

Studio Architecture: matěj šebek architekti
Landscape architecture: Ateliér Za Mák
Author Matěj Šebek [matěj šebek architekti]
Michaela Zudová, Jan Makovička [Ateliér Za Mák]
Contact E-mail: email@matejsebek.cz
http://www.matejsebek.cz http://www.atelierzamak.cz
Studio address: Janovského 31, 170 00 Prague, Czech Republic
Pražská 1286, 377 01 Jindřichův Hradec, Czech Republic
Project location: Pražská 1286, 377 01 Jindřichův Hradec
Project country: Czech Republic
Project year: 2021
Completion year: 2025
Client: Krafferova zahrada
Photographer: Radek Úlehla, www.radekulehla.com, hello@radekulehla.com














