Au银行网点改造,奥地利 / firm Architekten
Raiffeisenbank Mittel- und Hinterbregenzerwald银行大楼正在进行全面翻新。由于银行合并,Au的网点将得到长期的加强与保障。空间布局将根据新的需求进行调整,建筑将在能源效率方面得到改造,其整体形象也将被重新定位。开放而充满光线的空间应运而生,以回应不断变化的客户需求,使该网点以当代银行建筑的姿态展现出未来感。
The bank building of the “Raiffeisenbank Mittel- und Hinterbregenzerwald” is being completely renovated. Due to a bank merger, the location in Au is to be strengthened and secured in the long term. The spatial organization will be adapted to the new requirements, the building will be renovated in terms of energy efficiency and its overall appearance will be realigned. Open and light- flooded rooms are created that respond to changing customer needs and make the location appear future-proof as a contemporary bank building.
▼银行外观,Exterior of the bank



位于Au的银行网点坐落于村庄中心,正处于通往Faschina大街的交汇处。重新调整后的主入口面向街道,具有更强的存在感。建筑外观的特点是底层采用竖向云杉格栅并饰有雕刻纹样。上层的窗洞口被统一框合。结合以冷杉木制成的圆木瓦片,建筑呈现出清晰的结构秩序,既彰显为公共建筑,同时通过材料选择牢牢扎根于本地语境。节能改造包括更新外立面保温层和窗户,以及安装冷却天花系统和光伏发电系统。
▼改造前银行外观,facade before the renovation


The bank building in Au is centrally located in the village at the junction to the Faschina Street. The newly aligned main entrance opens onto the street and has more presence. The external appearance is characterized by the base with a vertical spruce screen and milled ornament. The window openings on the upper floors were framed together. In combination with the round wood shingles made of fir wood, the building appears clearly structured, becomes visible as a public building and is regionally located through the choice of materials. The energetic renovation includes the renewal of the facade insulation and windows, as well as the installation of cooling ceilings and a photovoltaic system.
▼底层采用竖向云杉格栅并饰有雕刻纹样,the base with a vertical spruce screen and milled ornament



通过设有服务区的前厅进入银行大楼,便可到达设有两个接待点的大厅。一方面,客户可在柜台办理业务,获得高度私密的服务;另一侧则设有接待台,用于客户登记预约或其他咨询。在上层楼面,客户可在现代化的办公室接受咨询服务,前方则设有等候及休息区。
If you enter the bank building through the vestibule with a service zone, you reach the entrance hall with two points of contact. On the one hand, the customer is served at the counter with a high level of privacy. Opposite is the reception desk for registering for customer appointments or other concerns. On the upper floor, customer consulting services take place in modern offices. There is a waiting and lounge area in front of it.
▼银行入口,the entrance of the bank

▼嵌入式ATM,Embedded ATM

▼墙面采用天然松木饰面板,The walls are made of natural pine paneling

▼一层接待大厅,the reception hall at the ground floor


▼通往二层的楼梯,the staircase towards the upper level


▼二层办公区,the office area on the upper level

▼二层办公区,the office area on the upper level

整体设计印象以开放与透明为特征,力求营造出友好而高质的氛围。一层地面铺设天然石材,墙面采用天然松木饰面板,白色釉面的声学条板天花同样由松木制成,桌面则选用榆木。现有的墙体元素覆盖以打磨平整的石灰抹灰。设计过程中尤为重视灯光与家具的整体概念,以便在清晰平静的整体氛围中营造对比、清新与多样的细节亮点。
The overall design impression is characterized by openness and transparency and should appear inviting and valuable. A natural stone floor is used on the ground floor. The walls are made of natural pine paneling, the white glazed acoustic slatted ceiling is made of pine wood. The table surfaces made of elm wood. Existing wall elements are covered with smoothed lime plaster. Great importance was placed on the lighting and furnishing concept in order to create contrasting, fresh and varied accents in the clear and calm overall impression.
▼场地平面,site plan

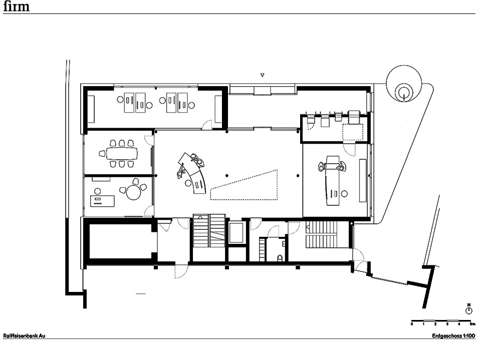
▼一层平面,ground floor plan

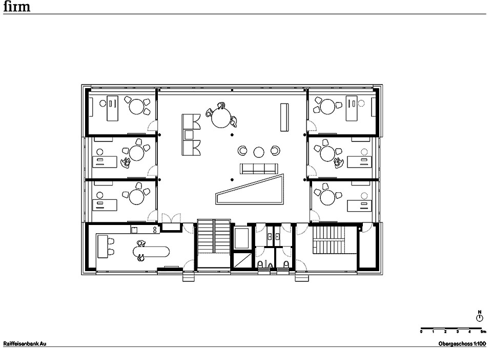
▼二层平面,first floor plan

▼立面,elevation


▼剖面,section

Architeture: firm Architekten, http://www.firm.ac
Client: Raiffeisenbank Mittel- und Hinterbregenzerwald eGen
Site: Au, Austria
Size: 800 m²
Planning: 2023 – 2024
Construction: 03/2024 – 09/2024
Photography: Adolf Bereuter














