Parque Primavera Oaxaqueña Cho Ndobá城市更新,墨西哥 / RootStudio
在瓦哈卡的城市中心,一家废弃数十年的旧胶合板工厂迎来了新的使命:Parque Primavera Oaxaqueña Cho Ndobá ——在马萨特克语中意为“春天”。这一城市更新计划将11.84公顷支离破碎、被破坏的土地转化为一个多功能生态系统,融合文化、体育、可持续性与社区生活,振兴了一个被边缘化的区域,并恢复了其在城市中的重要性。
In the urban heart of Oaxaca, where for decades an old plywood factory remained unused, a project with a new purpose has come to life: Parque Primavera Oaxaqueña Cho Ndobá—which means “spring” in Mazatec. This urban regeneration initiative has transformed 11.84 hectares of fragmented and degraded land into a multifunctional ecosystem that integrates culture, sports, sustainability, and community, revitalizing a marginalized area and restoring its prominence.
▼场地鸟瞰,aerial view of the site


由跨学科团队RootStudio与LABORA工作坊共同设计,这座公园结合了建筑与景观元素,在回应场地历史的同时展望可持续的未来。干预策略包括对原有建筑的修复,并通过使用回收木材和再利用金属框架等本地材料建设新建筑。此外,面积达85,000平方米的生态边界重新定义了城市界面,并将公园与城市公共空间网络连接起来。
Designed by the interdisciplinary workshop RootStudio in co-authorship with the LABORA workshop, this park combines architectural and landscape elements that engage with the site’s history while projecting a sustainable future. The intervention strategy combines the restoration of preexisting buildings with new structures using local materials such as recycled wood and recovered metal frameworks. Additionally, an extensive 85,000 m² ecological edge redefines the urban profile and connects the park to the city’s network of public spaces.
▼场地鸟瞰,aerial view of the site

对于RootStudio和LABORA来说,社区参与是所有项目中不可或缺的一部分。在本项目中,这一理念通过多种举措得以实现。其中最具象征性的空间之一是玉米与Milpa博物馆,它不仅向瓦哈卡及墨西哥现存的53种玉米中的35种致敬,同时也是一个关于生物多样性与食物可持续性的教育中心。除此之外,园区内还设有集市广场、露天影院,以及多个活跃的公共空间,其中包括27,500平方米的中央广场,用于休闲、体育活动和公共事件。
For RootStudio and LABORA, community participation in every project is essential, and in this case, it has materialized through various initiatives. One of the most emblematic spaces is the Museum of Corn and the Milpa, which pays tribute to Oaxaca and 35 of the 53 varieties of corn still extant in Mexico, while also functioning as an educational center on biodiversity and food sustainability. Complementing this offering are a fairground, an open-air cinema, and several active public spaces, including the 27,500 m² Central Plaza, designed for recreational, sports activities, and public events.
▼关于生物多样性与食物可持续性的教育中心,
an educational center on biodiversity and food sustainability


▼用于休闲、体育活动和公共事件的公共广场,
Central Plaza designed for recreational, sports activities, and public events


▼重新定义城市公共空间,redefine the urban public space


▼室内空间,interior space

▼室内空间,interior space

▼屋顶露台,roof terrace

公园的体育功能在其设计与建设中得以充分体现:自行车道、慢跑环道、足球、排球和篮球场,以及可举办专业赛事的滑板公园和沙地攀岩墙,均为公众提供了便捷的运动场所。项目特别强调了无障碍设计,包括适用于行动不便人群的基础设施、无障碍步道与包容性的游乐区。同时,安全性也被优先考虑,体现在照明良好的步道、安保亭和一体化的出入口系统上,确保公园真正成为社区共有的空间。
The park’s sports vocation is reflected in the design and construction of bike lanes, jogging circuits, soccer, volleyball, and basketball courts, as well as a skatepark suitable for professional championships and a climbing wall in the sandpit, promoting access to physical activity for a broad sector of the population. Special emphasis has been placed on universal accessibility, with infrastructure adapted for people with reduced mobility, including accessible paths and inclusive recreational areas. At the same time, safety has been a priority, realized through illuminated pathways, security booths, and an integrated access system that ensures community ownership of the park.
▼体育场看台,Stadium stands

▼为公众提供便捷的运动场所,
promoting access to physical activity for a broad sector of the population



▼运动场鸟瞰,aerial view of the playground

该项目对可持续性的承诺通过多种生态策略得以体现,包括雨水收集系统、渗井以及用于自然净化的人工湿地。园区内还设有苗圃,并与民族植物园共同促进本地物种保护,同时作为社区教育空间,增强居民的归属感,使公园成为多元市民表达的汇聚之地。
The commitment to sustainability is expressed through various ecological strategies, such as the implementation of rainwater harvesting systems, infiltration wells, and the integration of a wetland for natural water purification. It includes a nursery and, together with the ethnobotanical garden, promotes the conservation of native species, while functioning as educational spaces for the community, strengthening the sense of belonging and consolidating the park as a meeting point for diverse citizen expressions.
▼雨水收集系统,rainwater harvesting systems


▼用于自然净化与灌溉,for natural water purification

Parque Primavera Oaxaqueña Cho Ndobá也是一个艺术与文化表达的场所。由艺术家Francisco Toledo设计的大门以其作品《鱼》为基础,延展至周界围栏,沿千余米围合布置了 796件独特构件。瓦哈卡艺术家Alejandro Santiago的纪念性作品《2501 移民》也陈列于园中,象征着那些离开家园、追求有尊严生活的人们的旅程。同样,在艺术家Shinzaburo Takeda与陶艺家Adán Paredes的指导下,来自瓦哈卡八个地区的孩子们共同创作了一幅由200块陶瓷板组成的壁画,描绘了当地的动植物。
Parque Primavera Oaxaqueña Cho Ndobá is also a space for artistic and cultural expression. A gate designed by artist Francisco Toledo defines the space; it is a unique design of the work Peces replicated along the perimeter fence, integrating 796 pieces over a thousand linear meters. The monumental work 2501 Migrants by Oaxacan artist Alejandro Santiago is also present in the park, symbolizing the search for a dignified life by those who leave their homeland. Likewise, under the direction of artist Shinzaburo Takeda and ceramist Adán Paredes, children from the eight regions of the state participated in creating a mural made up of 200 ceramic plates representing the local fauna and flora.
▼纪念性作品《2501 移民》,The monumental work 2501 Migrants


▼细部,detail


该公园项目是瓦哈卡地区规模最大的城市基础设施工程之一,见证了集体努力在建设公平、可持续和充满活力的未来中的力量。其影响远超建筑设计本身:它在城市中建立了新的联系,消除了分割空间的屏障。通过这一计划,RootStudio重申了其对瓦哈卡、城市更新与协作工作的承诺,为一种既尊重历史、又拥抱未来可能性的共处方式奠定了基础。
This park project is one of the largest urban infrastructure works in the Oaxaca region and stands as a testament to the collective effort to build an equitable, sustainable, and vibrant future. Its impact goes beyond architectural design, generating new connections with the city and eliminating barriers that fragment the urban space. With this initiative, RootStudio reaffirms its commitment to Oaxaca, urban regeneration, and collaborative work, laying the foundations for a coexistence that honors the past and embraces the possibilities of the future.
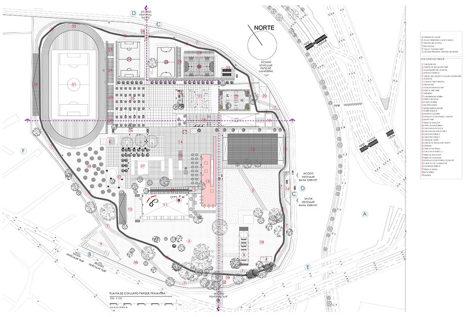
▼场地平面,site plan

▼立面图,elevation


Photo credits: ©Pacu














