巡圃,北京 / 北林风景建筑研究中心-段威工作室
引言 Introduction
我国城市发展整体步入以“存量提质增效”为内核的新时期,在这一战略转向中,公共空间的更新首当其冲,其范式正从“大拆大建”全面走向“小规模、渐进式”的有机更新。本设计正是基于这一背景所进行的一次微更新尝试。我们希望通过此装置,为各类城市公园的更新提供一种可复制、可推广的微更新“新载体”,以期为实现“提质增效”的城市愿景贡献实践力量。
China’s urban development entering a new era centered on “enhancing quality and efficiency of existing stock.” In this strategic shift, public space renewal takes precedence, with its paradigm transitioning from large-scale demolition and reconstruction to organic renewal characterized by small-scale, incremental approaches. This design embodies a micro-renewal experiment conducted against this backdrop. Through this installation, we aim to provide a replicable and scalable “new vehicle” for micro-renewal in various park upgrades, thereby contributing practical solutions toward realizing the urban vision of “enhancing quality and efficiency.”
概念 Concept
我们以传统卖花老农的三轮车厢为原型,将其重构为兼具运输,展示与互动功能的可打开式立体微花园。闭合时占地小,便于移动,展开后形成多层次花景。花厢的结构重现了市井卖花场景,唤醒城市乡愁。种子在花厢里发芽、生命在行列间孕育、废弃物在这里重生、人的双手重新学会触摸土地。
▼形态生成,Typology

▼形式,Form

▼活动分析,Activities

Based on the design of a traditional flower vendor’s tricycle cart, this structure has been reimagined as a multi-functional, foldable 3D micro-garden that combines transportation, display, and interactive features. When folded, it occupies minimal space and is easily transportable; when unfolded, it creates a multi-layered floral landscape. The garden’s structure recreates the scene of street-side flower sales, evoking urban nostalgia. Seeds sprout within the flower compartments, life blossoms between rows, discarded materials find new purpose here, and human hands rediscover the touch of soil.
▼项目概览,overview of the project



▼装置全展开,The project is fully deployed

▼装置立面,Elevation of the project


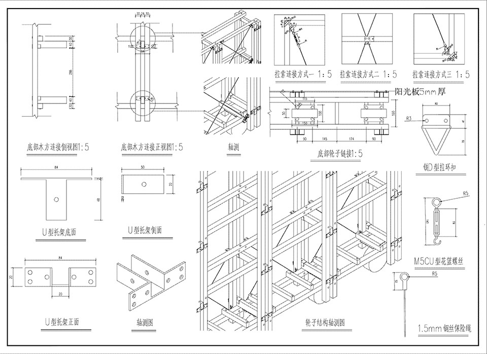
结构 Structure
主体框架由300mm×300mm×1700mm木方逐级向上搭建,横向短木方进行加固,节点处通过射钉及成品金属连接件固定,将荷载传导至底部。立面围护材料选用聚碳酸脂板。
▼分解轴测图,Exploded axonometric view

The main framework is constructed using 300×300×1700 timber beams stacked in ascending tiers, reinforced with horizontal short timber beams. Nodes are secured with nail guns to transfer forces to the base. Polycarbonate panels are selected as the facade cladding material.
▼装置微展,The project unfolds at a slight angle


▼施工现场照片,Construction photo


构造 Construction
底部安装万向轮保证移动灵活性,侧板通过合页实现开合。抽屉单元由不同规格木板拼合,以螺丝加固,并通过滑轨与主结构相连,实现顺畅抽拉。
▼施工图,Construction drawings

Swivel casters at the bottom ensure mobility, while the side panels open and close via hinges. The drawer unit is assembled from wooden panels of varying dimensions, secured with screws, and connected to the main structure via sliding rails to enable smooth extension and retraction.
▼安装抽屉,Install drawers

在最上层与最下层的基础结构单元中,采用角码、拉索及花篮钩等五金件进行加固,有效抑制形变,增强整体稳定性。
At the topmost and bottommost structural units, reinforcement is achieved using hardware components such as angle brackets, tension cables, and basket hooks. This effectively suppresses deformation and enhances overall stability.
▼花篮钩与拉索连接,The flower basket hook is connected to the cable


▼花篮钩与拉索连接,The flower basket hook is connected to the cable

▼固定拉索,Fixed cable

▼安装侧板,Install side panels

自行车轮通过可调节方形管卡与圆形管卡固定于主体,具备两种移动模式:遇不平整路面时,车轮下移接地,辅助万向轮共同行进;在平坦路段则可通过调节管卡将轮体上移,仅依靠万向轮实现灵活转向与移动。
▼节点施工图,Detail construction drawings

The bicycle wheel is secured to the main body via adjustable square tube clamps and round tube clamps, offering two mobility modes: – On uneven terrain, the wheel lowers to contact the ground, assisting the swivel casters for forward movement; – On flat surfaces, the wheel can be raised by adjusting the clamps, relying solely on the swivel casters for agile steering and maneuverability.
▼装置侧面设有地钉固定点,以抵抗侧向拉力,防止倾覆,The device features ground anchor attachment points on its sides to resist lateral forces and prevent overturning

▼自行车轮通过管卡安装在主结构上,The bicycle wheel is mounted on the main structure via tube clamps


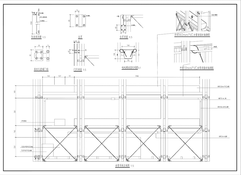
系统 System
内部构建自维持的水循环系统:通过便携户外电源驱动水泵,将鱼缸中的水输送至PVC主管道,并借助棉线的毛细作用实现立体导水。管道局部设排水孔,避免积水导致植物根部过涝。系统同时实现资源循环——鱼粪收集后用作植物肥料,雨天还可收集雨水补充系统。
▼水系统整体,Water system as a whole

Internal self-sustaining water circulation system: Powered by a portable outdoor power source, a pump circulates water from the fish tank through PVC main pipes. Capillary action in cotton threads enables vertical water transport. Drainage holes are strategically placed in sections to prevent waterlogging and root rot in plants. The system also recycles resources—fish waste is collected as plant fertilizer, and rainwater is harvested during storms to replenish the system.
▼安装侧板,Install side panels



种植介质采用土壤与椰糠按科学比例混合,植物栽种于轻质手提桶中,有效控制整体配重。
The planting medium consists of soil and coconut coir mixed in a scientifically determined ratio. Plants are cultivated in lightweight portable buckets, effectively controlling the overall weight distribution.
▼末端将水运输至鱼缸内,The end transports water into the fish tank

植物 Plants
植物配置以蓝、紫色系为基调,点缀明黄色花卉,营造宁静中富有生机的色彩叙事。立面以蓝雪花、紫菀为主景,其余植物穿插其间,形成高差错落、层次丰富的展示效果。
▼植物配置图,Planting Plan

The plant arrangement features a palette of blues and purples as its foundation, accented with bright yellow blooms to create a serene yet vibrant narrative of color. The facade showcases blue snowflakes and purple asters as the focal points, with other plants interspersed throughout to form a display effect characterized by varied heights and rich layering。
▼夜晚的植物,Plants at night


▼日光下的植物,Plants Under Sunlight


▼抽屉里的植物,Plants in the Drawer

▼手提桶里的植物,Plants in a handheld bucket

科普 Popularization of science
本装置除可移动展示外,更注重生态理念的传播。一侧侧板设置植物科普展区,另一侧则呈现“植物领养活动”策划内容,鼓励游客将心仪植物免费带回家。每盆被领养的植物均附赠定制领养卡,以此推动公众参与生态实践,传递可持续的城市生活理念。
Beyond serving as a mobile exhibit, this installation prioritizes spreading ecological awareness. One side features a plant science education zone, while the other showcases the “Plant Adoption Program” initiative, encouraging visitors to take home their favorite plants free of charge. Each adopted plant comes with a custom adoption card, promoting public engagement in ecological practices and conveying sustainable urban living concepts.
▼植物科普展板,Plant Science Exhibition Panels



价值 Value
每一株被领养的植物,都不只是生命的延续,更是一次生态意识的播种。这处微花园其柔软而坚定的存在,重新定义了公共空间的价值:它不仅是观赏的对象,更是激发社区互动、传承地方情感、培育生态文明的触媒,为高密度城市中的人与自然,创造着持续对话的可能。
Every adopted plant represents not merely the continuation of life, but the sowing of ecological awareness. This micro-garden, with its gentle yet resilient presence, redefines the value of public space: it is not only an object of beauty, but a catalyst for community interaction, the preservation of local sentiment, and the cultivation of ecological civilization. It creates the possibility for an ongoing dialogue between people and nature within high-density urban environments.
▼分析图,analysis diagrams

Project Name:Walking Plants
Project type: Architecture, Landscape Architecture
Project Location:Nanyuan Forest Wetland Park, Fengtai District, Beijing
Project Design/Completion Year: 2024/2025
Client: Fengtai District Landscape and Greening Bureau of Beijing
Architectural Design: Atelier Folie—Duan Wei Studio
Contact e-mail:duanwei@bjfu.edu.cn
Project Manager/Faculty Advisor:Duan Wei
Architectural Design/Construction Team:Ling Jiayao、Zhuang Ji、Wang Luyao、Lin Jie、Ma Mengxiang、Cui Yufeng、Shi Xue
Building Area:19㎡
Photography Copyright:Atelier Folie、Organizing Committee of the “Beilin-Nansen” International Garden Festival
Materials:Wood,Metal,Polycarbonate panel














