岳阳华菱港旅游码头游客中心,湖南 / URBANUS都市实践
2025年5月在湖南岳阳举办了第四届湖南旅游发展大会,这场盛会实现了“办一次会、兴一座城”初心,推动了一批城市更新项目的建设,华菱港旅游码头游客中心便是重点项目之一:它将遗留的两座老码头建筑华丽转型为洞庭湖旅游客船及游艇集散中心,成为岳阳的新地标。
The 4th Hunan Province Tourism Development Conference was held in Yueyang, Hunan, in May 2025. This event successfully fulfilled the goal of “hosting a conference to revitalize a city,” driving forward a number of urban renewal projects. The Hualinggang Pier Tourist Center is one of the key developments. It transforms two abandoned dockland buildings into a hub for tourist ships and yachts on Dongting Lake, becoming a new landmark in Yueyang.
▼旧港新韵,The new charm of the abandoned port

岳阳市地处长江、洞庭湖及湘资沅澧四水交汇处,因水而兴,自古即为交通枢纽与战略要地。岳阳港作为天然水运枢纽,是城市近代化的起点:1898年成为通商口岸,次年设岳州海关,成为中国内陆最早对外开放的港口之一。
Located at the confluence of the Yangtze River, Dongting Lake, and the Xiang-Zi-Yuan-Li rivers, Yueyang has historically thrived due to its waterways, serving as a transportation hub and a strategic location. The Yueyang Port also marked the starting point of the city’s modernization. It became a trading port in 1898, and the Yuezhou Customs was established the following year, making it one of China’s first inland ports to open to foreign trade.
▼古塔同框,Tourist center framing the ancient lighthouse

新中国成立后,港口工业功能持续增强。1997年,华菱钢铁集团整合成立,在港区建设专用码头与物流基地,“华菱港”成为工业时代的标志。进入21世纪,为响应“长江大保护”战略,岳阳港实现从工业锈带到生活秀带的转型。2017至2018年,老港区关停拆迁后未进行商业开发,而是改建为生态公园。这样,在保留下游的城陵矶新港区则继续承担着湖南联通世界的现代航运物流功能之外,处于历史文化名城核心区的岳阳港上游的老港区华丽转身为城市文化客厅。至此,岳阳港完成从千年古矶、通商口岸、工业枢纽到生态文化高地的演变,实现“生产岸线”向“生活岸线、生态岸线”的回归,同时也为深化城市更新打开了缺口。
▼岳阳港工业遗址公园与岳阳楼景区关系,Yueyang Port Industrial Heritage Park and the Yueyang Tower Scenic Area


After the founding of the People’s Republic of China, the industrial role of the port continued to grow. In 1997, Hualing Steel Group was formed, and specialized docks and logistics bases were built in the port area. “Hualinggang Port” became a symbol of the industrial era. In the 21st century, in response to the “Yangtze River Protection” strategy, Yueyang Port underwent a transformation from an industrial rust belt to a vibrant ecological and cultural district. Between 2017 and 2018, the old port area was de-industrialized, and instead of commercial development, it was converted into a pure ecological park. While the newly constructed Chenglingji New Port continues to serve as a modern shipping and logistics hub for Hunan Province, the historical Yueyang Port area has been rejuvenated into a cultural and leisure space at the heart of the city.
▼向慈氏塔致敬的天棚隐喻洞庭湖的船帆,A canopy paying tribute to the Cishi Pagoda evoking the sails of boats on Dongting Lake

2018年底,岳阳港工业遗址公园正式开放,保留了龙门吊、铁轨、塔吊、仓库架构等工业时代的记忆元素,与历史街区和未来城市共存。生态公园西面洞庭湖,东邻岳阳楼景区、汴河街、洞庭南路风貌区等景点,形成了岳阳历史文化核心区域中最重要的公共空间资源。美中不足的是占据黄金岸线的老港区虽然去工业化非常彻底,但不进行商业开发的遗址公园又过分生态,竟然没有邻近水体的服务设施。虽然这种短板被市民诟病,但人为的规划已很难再在这片拆得干干净净的公园里做任何超越红线的建设,而旅发大会则带来了用城市更新的特殊政策对岳阳港工业遗址公园进行再提升的机遇。
▼项目场地和慈氏塔关系,The site and its relationship with the Cishi Pagoda

▼施工时的岳阳华菱港旅游码头游客中心
Construction scene of the Yueyang Hualinggang Pier Tourist Center

At the end of 2018, the Yueyang Port Industrial Heritage Park officially opened, retaining elements from the industrial era such as gantry cranes, railways, tower cranes, and warehouse structures, while coexisting with both historical districts and the future city. The ecological park is located to the west of Dongting Lake and borders the Yueyang Tower Scenic Area, Bianhe Street, and Dongting South Road, forming the most important public space resource in the historical core of Yueyang. However, one shortcoming was its lack of service facilities in the waterfront area. Although this pitfall received many criticisms, any additional construction in this thoroughly de-industrialized area is impossible due to new zoning restrictions. However, the Tourism Development Conference brought a unique opportunity through special policies, offering a chance to enhance the Yueyang Port Industrial Heritage Park further.
▼生态化的岳阳港工业遗址公园,Ecological Yueyang Port Industrial Heritage Park

首先破局的是码头又回来了。岳阳楼、洞庭湖、君山岛是构成地方风景的三大要素:楼观湖,湖映楼,湖中有岛,岛点缀湖。楼-湖-岛三者所构成的山水画卷,是一个黄金旅游三角。从岳阳楼到君山岛的水上旅程,是从历史文化到自然风光、从静态观赏到动态体验洞庭的最佳方式,而游客码头是将这三者共同打包的必要基础设施。恰巧在公园中部有一个原先的货运码头,可以很容易改造为一个游艇和游客码头,通过浮桥可以安排22个小型游艇泊位与15个中型游艇泊位,即使现在航运没有开启,随水波轻晃U型浮桥,也已拉满了人们登船遨游洞庭湖的情绪价值。
The first breakthrough in the project came with the return of the dock. Yueyang Tower, Dongting Lake, and Junshan Island are the three defining elements of the local landscape. The tower overlooks the lake, the lake reflects the tower, and the island sits within the lake, creating a golden tourism triangle. The water journey from Yueyang Tower to Junshan Island offers the best way to experience both the historical culture and natural scenery of Dongting, transitioning from static observation to dynamic engagement. A visitor dock becomes essential for connecting these three elements. In the park’s center lies an old cargo dock, which can easily be transformed into a yacht and passenger dock. With floating bridges, 22 small yacht berths and 15 medium-sized yacht berths can be accommodated, which, even before the launch of water transport, already evoke the emotional value of embarking on a journey across Dongting Lake.
▼从码头南岸看项目场地及慈氏塔
The project site and the Cishi Pagoda from the south shore

码头需要配套用房,当年拆迁中一个小心思又为码头重建留了个伏笔:垂直于湖的两栋平行的办公楼侥幸没有被拆除,为游客中心获得了改造旧建筑的法理正当性。两栋楼的东侧是社会车辆可到达的岳阳南路,形成了大景区水陆交通的闭环。其东北是一片小山丘,矗立着通高39米、八角七级的宋代楼阁式实心砖塔——慈氏塔,它自古就是风高浪急的洞庭湖上航标塔。近期慈氏塔周边通过环境整治,拆除了邻近的民居和围墙,将其与岳阳港工业遗址公园连为一体,重新回到洞庭湖畔。作为全国重点文物保护单位,慈氏塔的建控范围非常大,所幸的是其西南侧建控蓝线落在已有建筑北侧不足10米的位置,使改造这两栋建筑变得可行。冥冥之中,这个在古代引导船只进入洞庭湖、靠近岳阳城的重要导航标志,似乎也应该和新建的游客码头有所关联。
▼码头现存二栋废弃小楼与慈氏塔空间关系
The spatial relationship between the two abandoned buildings and the Cishi Pagoda

▼增加架空观景平台连结二栋小楼,下方形成码头入口空间
An elevated viewing platform was added to link the two buildings, creating an entrance space for the dock below

The buildings’ east side connects to Yueyang South Road, creating a closed loop for the transportation of visitors via both land and water. To the northeast, there is a small hill with the 39-meter-tall Cishi Pagoda, a seven-story octagonal brick tower from the Song Dynasty that has historically served as a navigation lighthouse on the turbulent waters of Dongting Lake. Recent improvements to the surrounding environment have connected the Cishi Pagoda to the Yueyang Port Industrial Heritage Park, bringing it back to the waterfront. As a national cultural heritage site, the area around the pagoda is strictly controlled for construction, but fortunately, the southwest side of the building control zone is 10 meters away from the existing structures, making the renovation of the two buildings feasible. It seems that this historical lighthouse, which has guided ships into Dongting Lake for centuries, should indeed have a connection with the new visitor dock. The dock requires supporting structures. During the initial demolition phase, the two parallel office buildings perpendicular to the lake were fortunately preserved, later providing the legal basis for adapting the old structures into the tourist center.
▼慈氏塔,Cishi Pagoda

两栋小楼的首层面积,基本上满足了售票处、等候厅、卫生间等游客中心的功能要求。用一个连接二层和三层的宽台阶将两个建筑连接,既形成了尺度合宜的从马路走向码头的门户,也形成了楼上的配套功能的户外空间,可以坐下来静静观赏洞庭湖的朝晖夕阴、气象万千。
▼项目构成元素,Project components

The ground floor of the two buildings meets the functional requirements of a tourist center, including ticket sales, a waiting area, and restrooms. A wide staircase connects the second and third floors, forming a gateway from the street to the dock while also creating outdoor space for the upper-level functions. Here, visitors can sit and quietly enjoy the sunrise and sunset over Dongting Lake, experiencing the ever-changing landscape.
▼从洞庭南路看游客中心,View of the tourist center from Dongting South Road

▼从洞庭南路进入游客中心,Entering the tourist center from Dongting South Road

在春夏之交有梅雨、夏季炎热潮湿的岳阳,户外平台的遮蔽设施非常必要;加之从湖面看码头,原来两栋建筑的轮廓线毫无标志性,这样,用象征着风帆的张拉膜做个棚顶自然而然成为一种选择。
In the hot and humid summer months, outdoor platforms require shelter. Additionally, the original building’s outline lacked a distinctive presence when viewed from the lake. As a result, a canopy designed with a sail-like tensile membrane became a natural choice to top the structure.
▼屋顶平台观洞庭湖落日,Roof platform with a view of the sunset over Dongting Lake

▼从两侧灰空间进入屋顶平台,Entering the roof platform from the gray space on both sides

棚架的结构选型灵感来源于一个偶然的场地观察。在凹进湖岸的码头南壁,遗址公园有一处观景平台,且特意放了一组艺术装置。从这个点去看两栋保留建筑,如果把北侧的一栋中部破掉一点,正好把慈氏塔环报在建筑核心。在此基础上,假若再用拱形天棚把慈氏塔框住,则形成了这个宋代灯塔和当下码头之间跨越时空的对话!
▼从码头南岸看慈氏塔和两座保留建筑的关系,The relationship between the Cishi Pagoda and the two preserved buildings as viewed from the south shore

▼从码头南岸刚透过天棚,形成看慈氏塔的绝佳站点,From the southern shore of the dock, the canopy creates an excellent vantage point for viewing the Cishi Pagoda

The design of the canopy structure was inspired by a spontaneous observation at a nearby viewing platform within the park. This platform featured an artistic installation and provided a perfect view of the two preserved buildings. By slightly opening up the north side of one building, the Cishi Pagoda could be framed within the architectural core. With an arching canopy enclosing the pagoda, a dialogue between this ancient lighthouse and the contemporary dock emerged, bridging the historical and the modern.
▼从码头看慈氏塔,Viewing Cishi Pagoda from the dock

▼从建筑内部看塔,View of the pagoda from inside the building

从环境肌理上看,大片的张拉膜会非常刺眼。参考周边街区既有大仓库、又有小民居,起伏的地势又使它们的屋顶鳞次栉比、无序混搭,棚架一方面被设计成连续筒拱,组合起来更像个聚落;另一方面以慈氏塔为核心用放射线起拱,整体外边界投影又基本上控制在原建筑范围内,从而带来四个立面都有变化的轮廓线。在此基础上,通过反复推敲与山体、古塔、岸际等固有环境要素的关系,一个对话历史、拥抱未来的洞庭新地标跃然出现在湖面之上。
▼设计模型,Design model


The large-scale tensile membrane would be quite striking against the surrounding landscape. Drawing inspiration from the surrounding area, where large warehouses and small residences coexist, the roofline of the buildings varies greatly, creating a dynamic and eclectic aesthetic. The canopy structure, designed as continuous barrel vaults, is organized to resemble a small settlement. At the same time, using radial arches centered around the Cishi Pagoda, the overall form stays within the limits of the original building’s footprint, providing a dynamic outline on all four sides. After careful consideration of the topography, the historical pagoda, and the lakefront environment, a new cultural landmark emerged on Dongting Lake, one that honors the past while embracing the future.
▼作为小聚落的游客中心和周边街区的肌理关系,The tourist center and its relationship with the surrounding street fabric

显然,上层丰富和有情调的公共空间和服务设施大大地改变了候船的模式,使等候变成了享受。如何到达上层空间成为了潜在的设计亮点。通过浪漫化消防楼梯,让它们成为建筑剖面的切割刀,把原建筑二、三层朝湖的空间废墟化为公共厅堂,引景入室,又增加了两个可以举办小尺度活动的灰空间。这些空间为这个不大的聚落带来了层出不穷的惊喜。
The upper-level with public spaces and service facilities has significantly transformed the waiting experience. The way to access these upper spaces then becomes a key design highlight. By romanticizing the fire stairs, they are reimagined as sculptural elements of the building’s profile, converting the original upper spaces facing the lake into public halls. This not only opens up the indoors to a scenic view, but also creates two flexible shaded spaces ideal for small-scale events in the whole complex.
▼作为社交平台的南侧临湖灰空间,The south-facing lakeside shaded space as a social platform

▼作为小剧场的北侧临湖灰空间,The north-facing lakeside shaded space as a small theater

北侧由于受文保线的限制,登楼的行进路径藏在建筑内侧,形成一个小的戏剧空间,更加封闭些。
Due to the preservation zone restrictions on the north side, its path to the upper levels is concealed inside the building, creating a small theatrical space.
▼兼做消防楼梯的北侧小戏剧空间,The small theatrical space on the north side, which also serves as the fire stairs


南侧不受限,可以自由放纵,在建筑之外放飞两条半圆弧楼梯,可以凭栏眺望南侧的遗址公园和湖面。楼梯二、三层间的休息平台是向湖面敞开的社交空间。
The south side remains unconstrained and allows for more freedom. Two semi-circular staircases extend outside the building, offering views of the park and the lake. The resting platforms between the second and third floors of the staircases serve as open social spaces, offering direct views towards the lake.
▼空旷的公园中作为服务配套的游客中心,The tourist center as a service facility in the expansive park

▼南侧外挂楼梯激活内外景观,The external staircase on the south side activates both the interior and exterior landscapes

▼楼梯带来欢快的行进,External staircase

▼亲近古塔,A close-up view of the ancient pagoda

▼兼做消防楼梯间的南侧开放的社交空间,The south-facing open social space, which also serves as the fire escape stairwell

楼梯和棚架的钢结构,以及加固后的混凝土墙,又带回了所谓的工业风,既有十足的现代感,又和废墟化的老砖墙形成新旧对话,通过新美学带回来了这个片区缺席的工业时代。
The steel structure of the staircase and canopy, along with the reinforced concrete walls, bring back the so-called industrial style. It offers a strong sense of modernity while engaging in a dialogue of old and new with the weathered brick walls. Hence, the absent aesthetic of the industrial era is represented.
▼观景平台连接着二、三层的咖啡和餐饮空间,The viewing platform connects the coffee and dining spaces on the second and third floors

功能完善的游客中心不仅仅服务于航运,也补齐了在遗址公园缺失的配套功能,同时还带来了展览、展示、活动的可能。它不仅是服务的窗口,本身也是一个旅游景点,循环再利用残留的工业遗产,实现了遗址公园“保留历史、面向未来”的初心,让游客能沉浸式地感受到场地的历史厚重感与时空穿越般的戏剧感。在更高的维度上,这个游客中心也是一个具有强大叙事能力的文化装置,是岳阳城市转型的一个精神象征,一方面提升了市民的自豪感和归属感,另一方面也让游客看到了一个不仅有历史底蕴、更有现代发展眼光的岳阳。
The new well-equipped dock not only serves the tourism, but also fills the gap in amenities missing from the industrial heritage park. Recycling and reusing the remnants of industrial heritage, it introduces opportunities for exhibitions, displays, and events. This fulfills the park’s mission of “preserving history, looking to the future,” allowing visitors to immerse themselves in the site’s historical depth and experience a dramatic sense of time and space. On a broader scale, this tourist center serves as a cultural installation with strong narrative power, symbolizing the spiritual transformation of Yueyang city. On one hand, it enhances the pride and sense of belonging among the local population; on the other, it presents a Yueyang that is not only rich in historical heritage but also forward-looking in its modern development.
▼回到工业记忆的工业风,The industrial style that returns to the memory of industry

▼洞庭湖畔古塔与新码头同框,The ancient lighthouse by Dongting Lake and the new pier in the same frame

更有意义的是,游客中心的设计不仅没有破坏慈氏塔的历史环境,反而通过当下的设计语言,为观赏和理解慈氏塔提供了一个富有深度的视角。它们不再是两个孤立的景点,而是共同构成了一个讲述岳阳湖城一体的空间叙事。同时,这个在地化的关键节点改造,激活了整个片区的活力,并带动了码头遗址公园南部的发展。
More meaningfully, the design of the tourist center not only preserves the historical environment of the Cishi Pagoda but also provides a deeper perspective for viewing and understanding it through contemporary design language. The pagoda and the tourist center are no longer isolated landmarks; instead, they together form a spatial narrative that tells the story of the integrated city. Additionally, this site specific renovation has revitalized the entire area and driven the development of the southern part of the industrial heritage park.
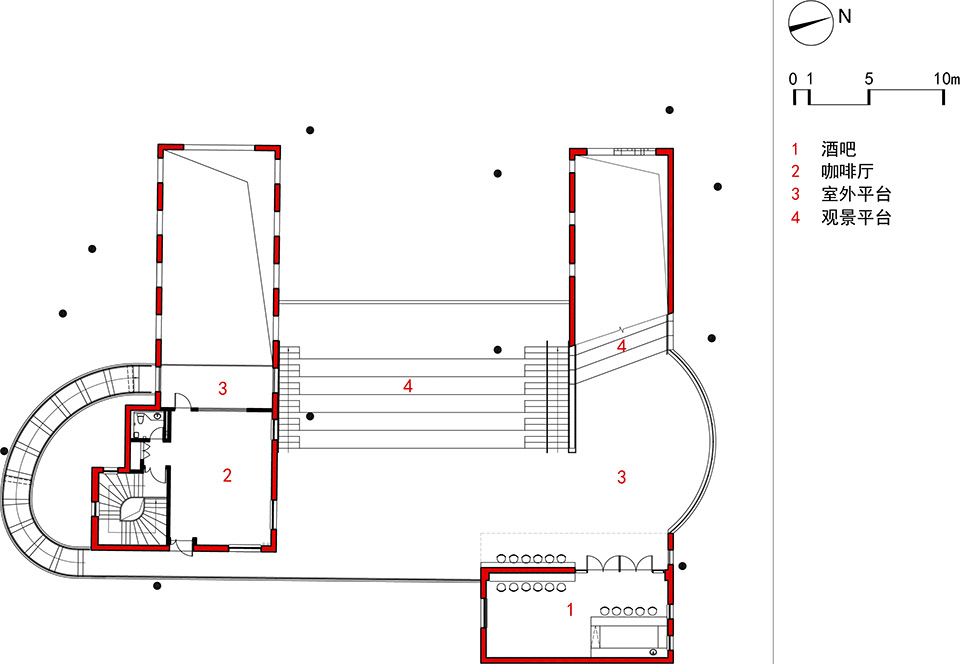
▼一层平面图,Ground floor plan

▼二层平面图,Second floor plan

▼三层平面图,Third floor plan

▼立面图,Elevation

▼剖面图,Section

项目地点:湖南岳阳
建设单位:岳阳天下洞庭水上旅游开发有限公司
设计时间:2024
建设时间:2024-2025
用地面积:2682㎡
建筑面积:1624㎡
建筑&室内&景观设计:URBANUS都市实践建筑设计事务所 |王辉(主持建筑师)|郑娜、姚咏梅、孙凡奇、豆勇辉、张富军、李文杰、周翔、王竞飞、卢勇、陈宇、赵萍、张书岩
合作单位:中交武汉港湾工程设计研究院有限公司(施工图)、
北京马斯特结构设计事务所有限公司(结构顾问)
施工单位:湖南省第八工程有限公司
摄影:TAL
Project Location: Yueyang, Hunan
Client: Yueyang Tianxia Dongting Water Tourism Development Co., Ltd.
Design Time: 2024
Construction Time: 2024-2025
Site Area: 2,682㎡
Building Area: 1,624㎡
Architecture, Interior & Landscape Design: URBANUS Architecture & Design | Wang Hui (Lead Architect) | Zheng Na, Yao Yongmei, Sun Fanqi, Dou Yonghui, Zhang Fujun, Li Wenjie, Zhou Xiang, Wang Jingfei, Lu Yong, Chen Yu, Zhao Ping, Zhang Shuyan
Collaborators:
CCCC Wuhan Harbour Engineering Design & Research Co., Ltd. (Construction Documents )
Beijing Master Structural Design Co., Ltd. (Structural Consultant)
Construction: Hunan Province Eighth Engineering Co., Ltd.
Photography: TAL














