Long Goy时装屋,泰国 / Sher Maker
Long goy (n.) 兰娜街时装屋,总部设在泰国清迈。
Long goy (n.) Lanna street fashion house, base in Chiangmai, Thailnad.
▼项目概览,overview of the project



▼建筑外观,exterior of the building

“Long goy”在北方方言中的意思是“试一试”,它除了通过现代时尚感的形式传达品牌从兰纳文化根源发展而来的技术外,还暗示了勇于尝试新事物的勇气。
Long goy means try it in the northern dialect, which in addition to conveying the technique of the brand that has developed from Lanna culture roots through the form of modern fashion sense It also indicates the courage to always experiment the new things.
▼鲜明大胆的用色,bold and eye-catching color


Long goy工作室是一个支持整个设计工作的空间。运行和生产试验。建筑的设计是一个长屋,长屋与原屋和庭院区域平行。该建筑的比例和位置类似于从该地区拆除的原始北方稻仓,重新集合到建筑后面的花园亭子里。
Long goy Studio is a space to support the entire design work. Operation and production trial as well. The design of the building is a long house with a long parallel to the the original house and courtyard area. The proportion and location of the building is similar to the original Northern rice barn that was demolished from this area. and re-assemble into the garden pavilion behind the building again.
▼灵感来源于北方稻仓,The inspiration comes from the rice barn in the north


▼建筑开口,The opening of the building

▼立面细部,facade detail

缝纫车间占大楼的大部分。设计师想要创造一个高中庭,在工作时间空气可以流通。整个建筑和内部空间由钢结构和玻璃开口等基本材料组成,允许自然光从建筑的北侧进入。但是当转向外面的建筑时,重叠的固体立面设计用于保护工作空间免受白天南方太阳的照射。智能板面板将被涂上蓝色木材染色,并被每一面染成蓝红色的硬木分割。这类似于缝纫衣服时故意翻转缝合线。并利用双面褶皱技术,在建筑的每一面创造出不同的感觉。
The sewing workshop is the majority of the building. We wanted to create a high atrium where air could circulate during working hours. The entire building and interior spaces made up of basic materials such as steel structures and glass openings that allow natural light to enter from the north side of the building. But when turning to the building on the outside, the overlap solid façade designed for protect the workspace from the southern sun during the day. The smart board façade will be painted with blue wood stain and divided by hardwood with blue-red dyed in each side. It is similar to sewing clothes by deliberately flipping the seams. and draws on the 2-sided pleating technique to make a different perception on each side of the building.
▼通高工作坊,double-height workshop

▼引入自然光和自然通风,introducing natural lighting and ventilation



▼灯光下的工作坊,workshop under lighting

所有结构都是钢和智能板,通常可以在当地施工车间建立。这是一种基本的材料,在需要大量使用时并不昂贵。建筑的尽头是工作室和展览厅。它一直延伸到后院和车间。因此,如果你仔细观察,这个LONG HOUSE建筑是一个用材料和基本技术形成的建筑。创建明亮的内部工作空间,以循环工作流程。但是要用一种敢于尝试的思维方式去做。这个品牌的服装和建筑也是如此。
All structures is steel and smart board that can normally founded in local construction shop. This is a material is basic and not expensive when need to use in large quantities. At the end of the building is the studio and exhibition hall area. That penetrates to the backyard and the workshop area. Therefore, this LONG HOUSE building, if you look carefully, is a building that is formed with materials and basic techniques. Create light internal workspaces to circulate working flow. But do it with a way of thinking that dares to try things. Both the brand’s clothes and the architecture as well.
▼工作室空间,the studio


▼工作室空间,the studio

▼展览厅,exhibition hall area


▼灯光下的工作室及展览厅,studio and exhibition hall area under lighting


▼夜景,night view

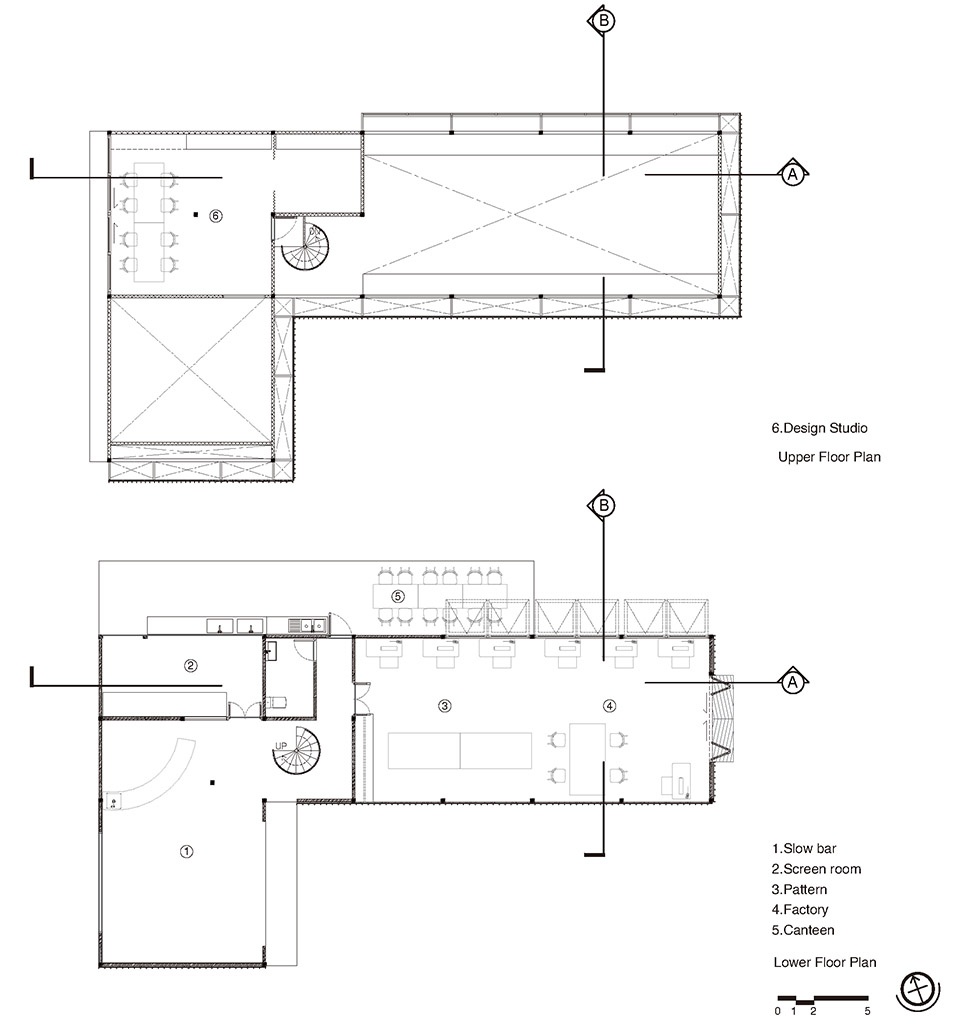
▼平面图,plan

▼立面图,elevation

Project name : Long Goy
Company name : Sher Maker
Website : http://www.shermaker.com
E-mail :shermakers@gmail.com
Project location : San Pa Tong,Chiangmai, Thailand
Building Type : Studio& Working Space
Completion Year : 2022
Area : 200 sq.m.
Lead Architect : Patcharada Inplang,
Thongchai Chansamak
Akapan Kanyen
Material research&Fabricator
: Akapan Kanyen
Warat phansanesri
Garden Pavillion designer : Paveen sriboon
Structure Engineer : Pilawan Piriyapokhai
Builder Team : Sher Maker builder team : Attipol Bamrungyai
Landscape contractor : Thanatcha Tangsuksawangporn
Photo credits : Rungkit charoenwat
Materialization : Steel structure / Smart Board /
wood stain – Sam Look Puen














