春熙集, 上海 / 联图设计
春熙集是一个以市集为主题的开放交流空间。项目位于原天通庵火车站居民区旧址,建筑以半透明表皮覆盖,营造出人们相聚、交流与互动的活力场所。设计灵感源于上海里弄的空间特质——错落的坡屋顶与凸出的老虎窗共同构成独特的上海城市肌理。本案在当代都市语境下对这些经典屋顶形态进行了再诠释,以轻盈、通透的设计语言重新演绎了在地记忆。室内空间则致敬历史火车站公共大厅的氛围,并通过深胡桃木材质与富有趣味的马赛克地面拼花,唤起人们对老上海的怀旧情感。
Ink Ink Market is a vibrant crossroad of meeting and congregation under a series of translucent roof planes, set within the residential neighbourhood of the former Tiantong‘an Railway Station. Referencing the spatial qualities of Shanghai’s laneways, an assortment of sloped roofs with protruding chimney windows, the new three-storey architecture reinterprets these iconic roofs within the modern urban context, with a lightweight and translucent design. The interior of the market pays homage to the public halls of historic train stations and gives a nostalgic nod to old Shanghai through the use of dark walnut wood and playful mosaic paving patterns.
▼项目概览,over view of the project

▼项目鸟瞰,aerial view of the project


▼赛克地面拼花,mosaic paving patterns

斜屋面由半透明PTFE膜材构成。金属体量穿插于屋面开口处,隐约透出上层餐厅的内部景象。沿街立面布置了错落的阳台,借由屋面层叠形成的灰空间,在光影之间交织出丰富的立面层次。从街面望去,绿植与市集活动清晰可见。半透明屋面如同第二层建筑表皮,在白天柔化强烈的阳光,使光线温和地引入室内;夜晚时分灯光又透过表皮散射到街区之中,交织成生动的光影拼贴,成为街区的温暖灯塔。建筑入口处,屋面向街角延展,形成一个宽阔的遮蔽广场,以开放的姿态迎接社区居民的日常交流与活动。
▼轴测图,axonometric drawing

The sloping roof planes are crafted from a translucent solar skin (PTFE). Metal boxes protrude through openings in the mesh offering views into the restaurants on the upper floors. The length of the façade is lined with balconies that shift in and out of shaded in-between spaces created by the overlapping skin. From the street, greenery and market activities are visible. The skin acts as a translucent second screen to diffuse the strong sunlight into the interior, while at night, the light from within radiates through the screen creating a lively collage of activities and serving as a beacon for the neighbourhood. At the entrance, a large covered piazza is formed under the sloped plane facing the crossroad, welcoming the community through daily rituals.
▼斜屋面,sloping roof



▼立面与阳台,facade and balconies

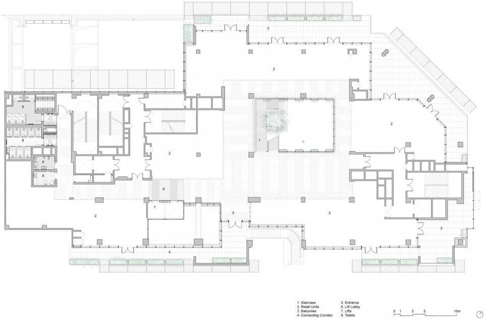
首层为开放式市集大厅,具备灵活的空间布局,可容纳轮换展陈与多样化摊位。中庭布置了小型市集摊位,外围沿街侧设有较大的生活方式类商铺,这些店铺同时面向街道与市集内部开放,形成内外贯通的空间体验。二、三层为餐饮空间,配有宽敞的外部露台,在屋面遮蔽下延展出舒适的户外就餐区域。
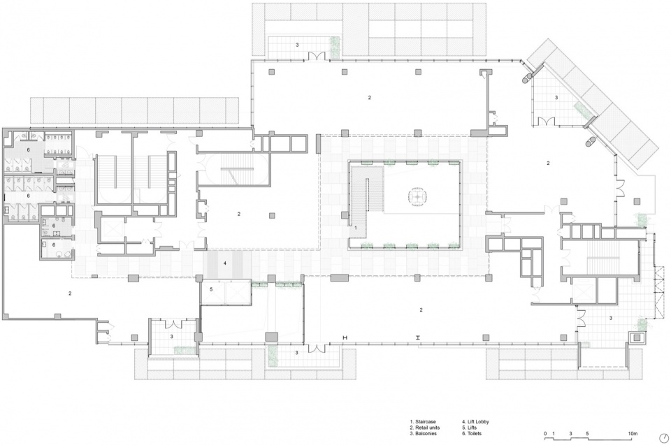
The first floor is designed as an open market hall with flexibility for rotational events and vendors. Smaller market kiosks populate the atrium, while larger permanent lifestyle shops along the perimeter have a dual aspect, spilling out onto the street as well as into the market hall. The second and third floors are dedicated to larger restaurants which have generous spill out space on exterior balconies, shaded beneath the roof planes.
▼中庭,atrium

▼开放式市集大厅,open market hall


▼小型市集摊位,smaller market kiosks

▼户外就餐区,outdoor dining area

室内三层通高中庭充盈自然光线,下方悬挂的木质格栅柔和过滤阳光,营造温润的光影氛围。为呈现富有层次感的市集体验,中庭空间采用阶梯式剖面设计,形成交叠的露台。露台边缘设有定制的环形灯具、简约长桌与绿植,塑造出轻松、开放的交流场景。一座以深色金属与胡桃木饰面的悬浮楼梯贯穿其间,引导访客在各层间漫步。中庭中央设有立柱,顶部悬挂着定制时钟,呼应火车站标志性钟表的意象,成为人们相聚的地标。以此为中心,放射状的鹅卵石铺地向四周延展,强化了空间的聚合感与仪式感。
Internally, the central three-storey market hall is bathed with natural light, below a draped timber trellis hangs to filter the sunlight. To create a dynamic market atmosphere, the hall is stepped sectionally creating overlapping terraces. The edges of these terraces are lined with custom circular lights, leaner tables and greenery. A black metal and walnut lined floating staircase invites visitors to wander between the floors. At the centre, a central column rises, holding a custom-designed clock, creating a meeting point reminiscent of the iconic clocks of railway stations. A radial floor pattern of tumbled cobbled stone extends from the column.
▼木质格栅,timber trellis

▼火车站标志性钟表,iconic clocks of railway stations

卫生间延续了老上海聚会场所的华丽与怀旧气息。首层卫生间中心设有圆形雕刻大理石洗手台,周围环绕镜面柱廊与竖向灯带,顶部悬挂定制吊灯,营造出典雅而戏剧性的空间体验。地面马赛克图案呼应钟表表盘的刻度与指针,延续时间主题。内部以不同尺寸的卡拉拉大理石马赛克与绿色调瓷砖层叠铺陈,金属收边界定出整洁界面,嵌入定制圆形壁灯,为空间增添细腻与趣味。
The bathrooms exude the grandeur and nostalgia of old Shanghai meeting halls. On the ground floor, a round, carved marble sink is encircled by a colonnade of mirrors with vertical lights and a custom chandelier overhead. The mosaic floor references the dials and hands of a clock face. Inside the bathrooms, a playful composition and layering of different-sized Carrera marble mosaics and green-toned tiles is framed by a series of metal trims, each holding custom circular sconces.
▼卫生间,bathrooms


▼圆形雕刻大理石洗手台,round carved marble sink

▼马赛克与绿色调瓷砖,mosaics and green-toned tiles

▼圆形壁灯,circular sconces

作为新兴住宅区整体规划的一部分,春熙集将成为社区生活的新锚点,紧密联系着市井生活与社群活动。建筑以适应性为设计核心,不仅契合当下需求,亦从容应对上海居民日新月异的生活方式与零售习惯。
Part of a broader masterplan for a new residential neighbourhood, Ink Ink Market stands as a new anchor for daily life and rituals. Designed with adaptability in mind, the building is not only suited to the needs of today but also to the rapidly evolving retail habits of Shanghai’s residents.
▼夜景,night view

▼1层平面,ground floor plan

▼2层平面,first floor plan

▼3层平面,ground floor plan

▼剖面,section

▼立面,elevation


竣工年份:2025年
面积:1790平方米
客户:万科
建筑与室内设计:Linehouse
设计总监:Alex Mok
设计团队:Cherngyu Chen、娄云彬、Mae Szeto、唐婧婷、王菲、童靖茹、王珏、Felix Saw
项目地址:上海
建筑师网站:linehousedesign.com
更多信息,请联系:info@linehousedesign.com
摄影版权:©Wen Studio
Year of Completion: 2025
Area: 1790 sqm
Client: Vanke
Architecture & Interior Design: Linehouse
Design Principal: Alex Mok
Design Team: Cherngyu Chen, Yunbin Lou, Mae Szeto, Jingting Tang, Fei Wang, Jingru Tong, Wang Jue, Felix Saw
Project Address: Shanghai
Architect Website: linehousedesign.com
For more information, contact: info@linehousedesign.com
Photo Credit: ©Wen Studio














