凹设计3.0,江苏 / 凹设计
环境,悄然塑造着我们的行为与文化;而人类也在与空间的对话中,不断书写属于自己的生态哲学。办公空间,早已不再只是四面墙与一盏灯,它成为一种精神的容器、一种工作与生活交织的场域。
The environment quietly shapes our behavior and culture; and in dialogue with space, humanity continuously writes its own ecological philosophy. The office space is no longer just four walls and a lamp—it has become a container of spirit, a realm where work and life are interwoven.
▼项目概览,Overview of the project


凹设计3.0的办公形态正经历一场静默的进化,传统的工作逻辑逐渐退场,取而代之的是一种开放、循环、自然、可持续的新生态。在这里,设计师不再孤立地沉浸于自我世界,而是可以自由切换于专注与交流之间,与空间、与人建立柔软而有机的连接。
The 3.0 concave office design is undergoing a silent evolution, as traditional work logic gradually recedes, giving way to a new ecosystem that is open, circular, natural, and sustainable. Here, designers no longer isolate themselves in their own world; instead, they can freely transition between focus and communication, establishing soft and organic connections with both the space and people.
▼与空间的有机连接,Overview of the project

凹工作室分为两层,一层以四个功能区串联起“品牌认知-创意思维-社交互动-实践落地”的全链路体验。打破传统办公室的封闭感,构建出多人协同、灵感流动的创作生态。这是一种新的办公哲学,不止于工作方式,更关乎我们如何与空间共生,与文化共鸣。
Concave Studio is divided into two levels. The first floor connects four functional zones to form a full-chain experience encompassing “brand cognition, creative thinking, social interaction, and practical execution.” This design breaks away from the enclosed feeling of traditional offices, fostering a creative ecosystem that facilitates multi-person collaboration and the free flow of inspiration. This represents a new philosophy of workspace—one that transcends mere work methods and speaks to how we coexist with space and resonate with culture.
▼打破传统办公室的封闭感,Breaking away from the enclosed traditional offices

01场所的预言Prophecy of Place
门厅,是空间的序幕。入室之初,黑色墙面与顶面沉静围合,一束光,静落在品牌标识上。“犹抱琵琶半遮面”,长廊如一首渐进的序曲,将故事的层次温柔铺展。无论时代如何更迭,人对于自然的向往始终深植于心,身处繁华,却依然渴望林间的鸟语、石边的水声。我们将山石、林木的意象纳入室内,一面粗砺的石墙,带着原始与随性的气息,悄然安顿每一份穿梭于都市的灵魂。
The entrance hall is the prologue to the space. Upon entering, one is enveloped by the serene embrace of black walls and ceiling, with a single beam of light resting quietly upon the brand insignia. “Like a lute player half-hidden behind her instrument,” the long corridor unfolds like a gradual overture, gently layering the narrative of the story. No matter how the times change, humanity’s yearning for nature remains deeply rooted. Amidst urban bustle, we still long for birdsong in the woods and the sound of water by stones. We incorporate the imagery of mountains, rocks, and forests indoors. A rough stone wall, bearing a raw and unrestrained essence, quietly shelters every soul navigating the urban landscape.
▼入口,Entrance

▼门厅,The entrance hall

通过六组隔断对功能区进行分流,加强通道的秩序感,同时产生有序的光影。办公区静落于长廊左侧,这里不仅是工作的容器,更逐渐成为社交与情感流动的舞台。设计师借由材料的质感与空间的逻辑,营造出开放而包容的氛围,鼓励深度对话与自然协作。这是一种具备自由度的互动场域,完整独立的动线,让思维得以无界碰撞,人也得以依心择位,随境而作。
Six sets of partitions guide the flow between functional zones, enhancing the sense of order in the circulation paths while creating structured plays of light and shadow. The work area rests quietly to the left of the corridor. It is no longer merely a container for tasks but is gradually becoming a stage for social interaction and emotional flow. Through the texture of materials and the logic of space, the designers foster an open and inclusive atmosphere that encourages deep dialogue and natural collaboration. This is an interactive field allowing freedom of movement. Complete and independent circulation paths enable thoughts to collide without boundaries, and allow individuals to choose their place intuitively and adapt their mode of work to the situation.
▼办公区,The work area


▼办公区隔断,partitions of work area

挑空设计的休息区,舒展了空间的尺度,也促进了两层之间的视觉联结。水吧、咖啡机、嵌饮设备悄然融入,于日常细节中传递温度——工作与生活,本就可以如此从容相融。在这处空间里,功能与诗意不再对立,而是共同编织成一种温柔的工作哲学。
The double-height design of the lounge area expands the spatial scale and promotes visual connection between the two floors. A water station, coffee machine, and integrated beverage facilities are subtly incorporated, conveying warmth in everyday details—work and life can indeed blend with such ease. Here, function and poetry are no longer opposites but are woven together into a gentle philosophy of work.
▼挑空休息区,Double-height lounge area

02灵感的胚芽Germination of Inspiration
这里被定义为“灵感室”,是设计发生的原点。空间以挑空之姿向上延伸,两侧墙面的方形视口如几何画框,将自然光裁剪成片,倾泻而入。光线沿材质表面流动,掠过石材的冷峻、织物的柔软、木质的温润,以及金属的锐利。它们并非静默陈列,而是在光的作用下彼此对话,形成一场关于触觉与视觉的叙事。
This area is defined as the “Inspiration Room,” the origin point where design takes shape. The space extends upward with a double-height volume, where square viewports on the side walls act as geometric frames, slicing natural light into planes that pour into the interior. Light flows across material surfaces, grazing the coolness of stone, the softness of fabric, the warmth of wood, and the sharpness of metal. These elements are not silent displays; under the influence of light, they engage in dialogue with one another, forming a narrative of touch and vision.
▼灵感室,Inspiration Room


▼材料陈列,Material display

点、线、面的构成逻辑贯穿始终:展示墙的纵向划分、中岛的横向延展、视口的方形切割,在空间中交织出清晰的节奏与韵律。这种秩序不仅服务于功能,更赋予空间一种建筑学的诗意——材质不再是冰冷的样本,而是可触摸的灵感,是设计语言的词汇表。在这里,封闭感被光与视野消解,空间成为连接思维与现实的媒介。客户与设计师在此相遇,不仅选择材料,更是在一场感官的旅行中,确认美的共识。楼梯,不仅是连接空间的通道,更是一场光、材质与几何的静默叙事。浅色调的阶梯在精准的光线勾勒下,呈现出清晰的体块感,与一侧粗犷的天然石墙形成极具张力的对话。
The logic of point, line, and plane composition runs throughout: the vertical division of the display wall, the horizontal extension of the central island, and the square framing of the viewports intertwine to create a distinct rhythm and cadence within the space. This order serves not only function but also imbues the space with an architectural poetry—materials are no longer cold samples, but tangible inspiration, a vocabulary of design language.
▼走廊,Corridor


在这里,封闭感被光与视野消解,空间成为连接思维与现实的媒介。客户与设计师在此相遇,不仅选择材料,更是在一场感官的旅行中,确认美的共识。楼梯,不仅是连接空间的通道,更是一场光、材质与几何的静默叙事。浅色调的阶梯在精准的光线勾勒下,呈现出清晰的体块感,与一侧粗犷的天然石墙形成极具张力的对话。
Here, any sense of enclosure is dissolved by light and vista. The space becomes a medium connecting thought and reality. Where clients and designers meet, they do not merely select materials; they arrive at a shared understanding of beauty through a journey of the senses. The staircase is not merely a passage connecting spaces, but a silent narrative of light, materiality, and geometry. Bathed in precise illumination, the light-toned steps articulate a clear sense of volume, engaging in a compelling interplay with the rugged natural stone wall beside them.
▼办公区过渡空间,Transforming space

▼楼梯,Stairs


03选择与共鸣Choice and Resonance
二楼的三处洽谈区,如同三首风格各异的散文诗,以截然不同的感官语言,分别撰写着关于对话的美学。一区是现代简约的明快诗行,线条利落,澄明通透;一区弥漫着复古幽韵的沉吟,细节处沉淀着时光的温度;另一区则释放着自然原野的自在气息,粗犷材质中见天真。
The three meeting areas on the second floor resemble three prose poems of distinct styles, each composing an aesthetic of dialogue in a completely different sensory language. One is a bright, concise verse of modern minimalism, with clean lines and crystalline transparency. Another is imbued with the contemplative murmur of vintage charm, where details hold the warmth of time. The third releases the unconstrained breath of the natural wilderness, its rustic materials revealing an innate simplicity.
▼半开放洽谈区,Semi-open meeting area

▼会议室,meeting area


步入二层,视线自然落于一隅木色的展示柜。它不仅是空间的视觉锚点,更是一部无声的立体日记。柜中每一件物品都是精心铺陈的语句:设计典籍沉淀思考的厚度,色板排列着色彩的韵律,奖杯默述过往的荣光,而那几件质朴的陶器与画作,则流露着对自然与艺术的亲近。
Upon stepping onto the second floor, the gaze naturally falls upon a wood-toned display cabinet in the corner. It is not only a visual anchor for the space but also a silent, three-dimensional diary. Each item within is a carefully arranged statement: design tomes沉淀 the depth of thought, color palettes arrange the rhythm of hues, trophies silently recount past honors, while a few unadorned ceramic pieces and paintings reveal an affinity for nature and art.
▼二层视角,Second floor view

▼二层隅木色的展示柜,A wood-toned display cabinet


▼二层公共区域,Public sapce

▼二层公共区域,Public sapce

它们以开放的姿态,邀人步入不同的情境。客户在此不仅能找到与自身气质相契的场域,更能在氛围的催化下,与团队展开一场真诚、松弛而深入的对话。空间不语,却自有力量。它悄然弥合距离,让理解自然发生,让合作始于同频的共鸣。
They extend an open invitation to step into different scenarios. Here, clients can not only find a setting that resonates with their own temperament, but also, catalyzed by the atmosphere, engage in sincere, relaxed, and in-depth dialogue with the team. The space does not speak, yet possesses its own power. It quietly bridges distances, allowing understanding to occur naturally and collaboration to begin with harmonious resonance.
▼包间入口,Entrance

▼包间室内概览,Overview of private suit

如果说开放会议区是思维激荡的广场,那么这间独立的包间则更像一个收藏思想、孕育深度的精神壁炉。空间不语,却自有其声。它以一种低调的奢华感,诠释着“老钱风”与“意式高奢”融合后的沉静力量。顶部极具雕塑感的线性设计,不仅仅是装饰,更是一种视觉的艺术。线条纵向延伸,巧妙地在方寸之间营造出豁然开朗的尺度错觉,让空间向上生长,充满呼吸感与向上的张力。空间的基调由精良的材质共同谱写,墙面覆以温润织物,赋予内敛底色。一张石纹如山水泼墨的茶几,成为视觉的锚点,将自然的野性凝练于沉稳之中。家具的轮廓利落而谦逊,顶级皮革的质感在暖光下低语。
If the open meeting area is a plaza for the clash of ideas, then this private room is more like a spiritual hearth for collecting thoughts and nurturing depth. The space does not speak, yet it has its own voice. With a sense of understated luxury, it interprets the serene power born from the fusion of “Old Money” aesthetic and Italian high-end design. The highly sculptural linear design on the ceiling is not merely decoration but a visual art. The lines extend vertically, cleverly creating an illusion of expansive scale within a compact footprint, making the space grow upward, full of breath and upward tension. The spatial tone is composed by exquisite materials. Walls clad in warm fabric provide a reserved backdrop. A coffee table with stone veins resembling ink-wash landscapes becomes the visual anchor, condensing the wildness of nature within steadiness. The furniture profiles are clean and modest, the texture of top-tier leather whispering under warm light.
▼家具排列,Furniture layout


▼细节,Details


功能与美学悄然交融,汇报、对话、沉思皆可在同一氛围中自如切换。光,被精心调配。它不是照亮,而是包裹,营造出一方令人心安的沉浸场域。这里推崇的不是即时的表达,而是经得起时间推敲的质感——让重要对话,在安静与尊贵中自然深化。一张宽大坚实的会议桌成为空间的绝对核心。桌面的天然木纹如水墨般铺展,保留着材质的原始触感,削弱了正式会议的拘谨。环绕其间的座椅自由排布,鼓励人们从不同角度加入讨论。这不仅仅是一个开会的地方,更是一个促进团队共鸣、激发集体智慧的“思想孵化器”。它用轻松、生活的氛围,悄然化解层级隔阂,让每一次交流都回归本质:专注、平等,并且充满创造的可能。
Function and aesthetics seamlessly merge. Presentations, conversations, and contemplation can all shift自如 within the same atmosphere. Light is meticulously calibrated. It does not merely illuminate, but envelops, crafting an immersive field that puts the mind at ease. What is celebrated here is not instant expression, but a quality that withstands the test of time—allowing important conversations to deepen naturally within quiet and Noble. A large, solid meeting table forms the absolute core of this space. The natural wood grain of the tabletop unfolds like ink wash, retaining the material’s原始 texture and softening the formality of traditional meetings. Chairs arranged freely around it encourage people to join the discussion from different angles. This is not merely a place for meetings, but an “idea incubator” that fosters team resonance and stimulates collective wisdom. It uses a relaxed, lived-in atmosphere to quietly dissolve hierarchical barriers, allowing every exchange to return to its essence: focused, equal, and full of creative potential.
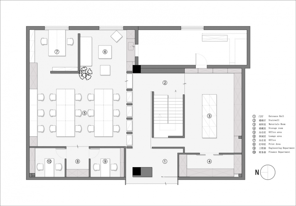
▼首层平面图,First floor plan

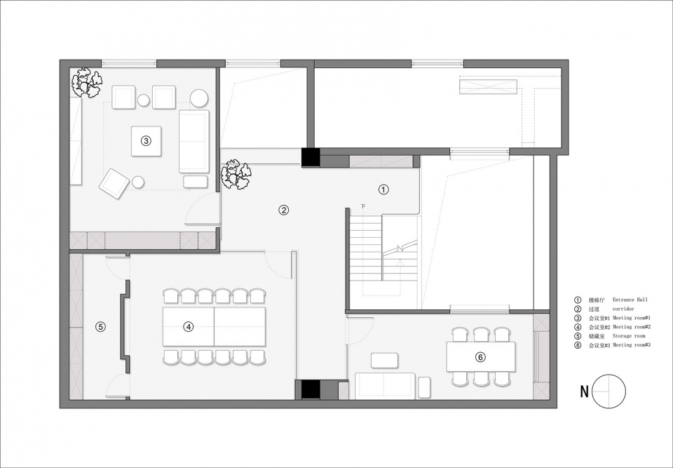
▼二层平面图,Second floor plan

Project name:AO SPACE DESIGN 3.0
Project type:Office Space
Design:AO SPACE DESIGN
Contact e-mail:aosheji2018@qq.com
Design year:2024
Completion Year:2025
Leader designer & Team:AO SPACE DESIGN
Project location:NANJING
Gross built area: 500㎡
Photo credit: HOWIE
Materials:Sintered Stone、Natural Stone、Decorative Paint














