燃画廊,北京 / 屋已设计工作室
燃画廊位于北京市朝阳区,在这个原始面积约280平米的开放空间,业主委托我们打造一处贴近家居氛围的青年艺术家画廊。由于定期会更替不同的展览主题,加上画作的流动性较快,我们就设计了一处以可移动模块为概念的展厅。
Fuel Gallery, located in Chaoyang District, Beijing, occupies an open space of approximately 280 square meters. The owner commissioned us to create a gallery with a home-like atmosphere for young artists. Due to the frequent changes in exhibition themes and the rapid turnover of artworks, we designed a gallery based on a modular, movable concept.
▼贴近生活氛围,Close to the atmosphere of life

▼不同颜色的模块化展墙配合各类作品及展览主题,
Modular exhibition walls of different colors match various works and exhibition themes

▼会客休闲区,Reception and leisure area

▼灵活的展陈形式,Flexible exhibition forms

设计师使用桦木多层板设计出多组工字型的实木结构,将整个空间顶面交织出4条横向木梁和7条纵向木梁,搭建好空间的骨架。再制作出小一号的可移动工字型柱体卡进木梁中,结合与柱体形成嵌套关系的模块化隔断墙,增添了立面维度的趣味。
The designer used birch plywood to create several sets of I-beam wooden structures, intertwining four transverse and seven longitudinal wooden beams on the ceiling to form the space’s skeletal framework. Smaller, movable I-beam columns were then designed to fit into the beams, and modular partition walls were added to create a dynamic interplay of vertical dimensions.
▼层叠的空间纵深感,The spatial depth of layering

▼颜色多变的模块展墙,Modular display walls with variable colors

▼家居与艺术相结合,The combination of home furnishings and art

于是使用者可以通过自行增减隔断墙模块,将这个场地从一块完整开阔的大空间分割成20多块自由的小空间,从大型画作展览到小型的家具、装置或影像展,都能够轻松呈现。
▼艺术品贯穿在空间之中,Artworks run through the space

▼一桌一椅一画,A table, a chair and a painting

▼色卡展墙,Color card display wall

以线带面,色彩与自然意义相连,蓝色的木质梁柱结构让人想起天空和大海,有深远和退后的效果。棕色的地毯使人联想到土地,稳重且向前。加上墙面跳跃的背景色与丰富题材的艺术作品,共同组合出无限可能性。让画廊空间在发展中得以不断更新和变化,充分激发观者的新鲜感和探索欲。
Lines define surfaces, and colors connect to natural meanings. The blue wooden beams evoke the sky and sea, offering a sense of depth and retreat. The brown carpet recalls the earth, steady and forward-looking. Combined with the vibrant background walls and diverse art themes, the gallery becomes a space of endless possibilities, continuously evolving to inspire curiosity and exploration in visitors.
▼蓝色的木梁木柱相互交错,The blue wooden beams and pillars crisscross each other

▼撞色组合激发想象力,Color-blocking combinations inspire imagination

▼结构细部,Structure details

▼材质质感,Material texture

▼原始平面图,original plan

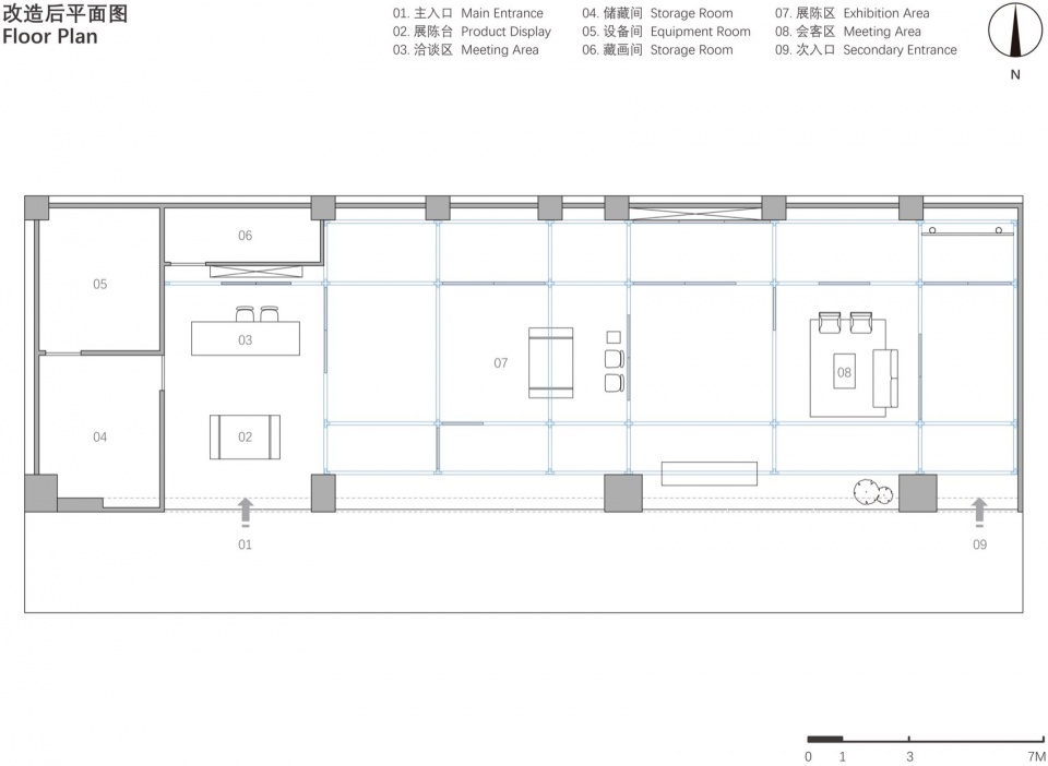
▼改造后平面图,after renewal floor plan

Project name: Fuel Gallery– Flexible Modular Exhibition Hall
Project type: Commercial Space, Gallery, Showroom
Design: WUE Design
Contact e-mail: wuedesign@163.com
Design year: May 2025
Completion Year: August 2025
Leader designer & Team: Shi Yingjie, Xie Weikang
Project location: Chaoyang District, Beijing
Gross built area: 280㎡
Photo credit: Fang Liming
Clients: Fuel Gallery
Materials: birch plywood, aluminum profiles, carpet, wood wax oil, artistic paint














