Luxemporium概念店 成都/室内

2022-02-10 14:46:16室内设计,综合商业,室内设计 , 现代风格

NASA于2020年在南极进行宇宙射线探测中发现证明平行宇宙的存在证据,科学家们探测到了由南极升起的高能粒子,这些粒子的行为方式与它们应有的运动方式相反。The Daily Star 写到:「科学家们探测到一个基本粒子微中子『涛微中子』从地球『上升』,这意味着这些粒子与过往认定的相反。它们的时间相较我们是在『倒流』中。」

 

In a scenario straight out of cosmic rays, a group of NASA scientists working on an experiment in Antarctica in 2020 has detected evidence of a parallel universe. Scientists found particles that coming from Antarctica with rules of physics that are completely the opposite.  “Scientists detected a subatomic elementary particle – tau neutrino – coming “up” out of the Earth would imply that these particles are actually traveling backwards in time.

 

如果这场平行世界与时间的关系与130亿年前的Big Bang宇宙大爆炸有关,那他可能是一个逆行与颠倒扭曲的关系。我们将此概念, 透过时间机器的演进产生出扭转,在扭转的过程中由规整变为抽象的液态。最终变为非固定造型的延伸体,超脱具象造型再次变为时间与光线。

 

At the moment of the Big Bang two universes were formed – ours, and another one that from our perspective is running in reverse. it may have spotted a link to backwards and perversion. We are inspired by this concept through the processing of the time machine into a reversion which transits the solid phase into the abstract liquid form. It culminates in an extension of the non-fixed form, and the transcendent form turns into time and light again.

 

▼项目视频,Video

 

▼空间概览,时间装置设置在平行的区域之间,overall view of the space, an installation located between the parallel areas

 
 

材质平行|主入口N.0

Material parallel | main entrance n.0

 
我们从装置的概念继续延展,将平行世界进行更深层次的分区规划,定义了四重平行空间:纬度平行,材质与颜色的平行,记忆平行以及镜面平行,将四个空间的语汇融入到服装,鞋包,配饰,潮鞋等不同的空间里。入口部分:从下至上的平行,从主入口可以看到金属柱面与陶土门头的材质和颜色碰撞。
 
The parallel universe is blended in a deeper sense based on our concept of architectural installation, defining quadruple parallel space: parallel latitude, parallel material and color, parallel memory, and parallel mirror. Entrance: parallelism from bottom to top, the metallic cylinder collides with the material and color of the storefront
 
▼主入口,main entrance
 
 
镜面平行|月球漫步

Mirror paralle | Moon Walking

 
首先进入眼帘的是太空飞船,从主入口进入正面宇宙飞船的第一个空间,限量联名潮鞋发布区是平行空间里的宇宙中转站,通过它可以穿越到其他空间。Moon The Space利用镜射的形式,表现真实与虚幻的可能,步入其中进入沉浸式的科幻空间。
 
We imagined the spacecraft as a singular entry experience. The first identification space is the transfer station in the parallel universe where dedicated to retail limited collaborated shoes. Leading from the “transfer station”, the tunnel links to other spaces. Moon The Space elaborates the possibility of reality and vitality by taking the advantage of mirroring, offering a unique, immersive, and mysterious space.
 
▼步入科幻空间,enter a mysterious space

 

记忆平行|鞋包区

Memory parallel | shoe bag area

 
进门的右手边蓝色区域主要陈列Top20明星鞋包。我们想要表达记忆上的平行,作为这个设计的开端,意欲透过人们习惯上的记忆,提取记忆中信箱墙的型态,颜色与比例。
 
Along with the right-hand side on the porch, we created a blue area with a collection of Top 20 best-selling shoes and handbags. With consideration of the desire to express parallelism in memory, Alldesign has contributed to retrieve the form, color, and proportion of memory wall through our habitual memory.
 
▼鞋包区,shoe and bag area

 
▼陈列台,display area

 
当平行关系发生时,让人可以感受到时尚是新与旧的交错与轮回。蓝色区域圆形装置架是平行世界中传递信息的管道, 这个概念也一直延续到中间时间装置。
 
As the existence of parallel relation arising, people can be immersed in the samsara and interlacing of fashion trends. The circular display shelves in this blue area feed a role in the way of relaying information through this cube in a parallel universe. Our concept continued to the time device in the middle part of the room.
 
▼圆形装置架,circular display shelves in the center

 
▼展架和形态丰富的天花,display shelves and irregular ceiling

 

颜色平行|服装区

Color parallel | clothing area

 
服装区域的粉色空间在概念上意欲表达星际大战场景里的沙丘和古堡是未来星球上的地貌从颜色上与鞋包区蓝色空间做对比形成颜色上的平行。
 
The pink space in the clothing area represents the landform on the future planet, which dedicates to describe the sand dune and castle in star wars. The color filled in this area is parallel to the blue vibe decorated in the area for shoes and handbags.
 
▼收银台,连接不同颜色的区域,cashier connecting the areas in different colors

 

 
▼服装区,garment area

 
▼展架,display shelves

 
▼细部,details

 
 
纬度平行|羽绒,牛仔区域

Parallel latitude | down, cowboy area

 
羽绒区和牛仔区是纬度上的平行,利用经纬度的空间感表现西部牛仔与极寒地带。
 
The area for the down jacket and denim clothing extends to parallelism in latitude by taking the advantage of a sense of space to present cowboy style and Arctic area
 
▼羽绒区,down jacket area

 
羽绒区从墙面到天花被数位化的白雪覆盖,中间的装置物南极探测器兼具陈列作用。陈列的展架利用冰块的形式表现出极寒地带的“冷”感,营造出购物的氛围。
 
Digital snow was used to spread across walls and ceilings in the down jacket area, accompanying the decoration in the middle – South Pole detector, which also serves as a display function. The display shelves took the advantage of ice cubes to dedicate a sense of “cold”, immersing in the shopping atmosphere.
 
▼间距陈列作品的探测器装置,detector installation as display shelf

 
▼细部,details

 
牛仔区域使人联想到西部牛仔,因此从地上到墙面长出陶土色的地貌,这种色系与牛仔的颜色搭配极为协调。
 
Denim elements link to reminiscent of western cowboys, therefore, the characteristic of terra cotta shade is pretty harmonious with denim color.
 
▼牛仔区,denim area

 
▼展架细部,details of the display shelves

 
3D打印装置|时间机器
3D printing device time machine
 
次入口:作为概念的开端也是店铺的最后一个场景时间的尽头。在平行世界的室内设计中,我们藉由此3D打印雕塑,强化时间这无法捉摸的概念。
 
Secondary access: The beginning of the concept throughout the design also serves as the temporal scenario at the end of the store. Alldesign created the artful installation by using 3D printing to dynamically reinforce the blurry concept of time.
 
▼3D打印的时间机器装置,time machine installation created by 3D printing

 
▼装置细部,details of the installation

 
无形如流水的时间在这里被量化被具象,希望观赏者能从中感受这奥妙。
 
Time, as invisible as the flow of water, is emerged to be quantified and concreted in the store, while we have a desire to left a beautiful record to the viewer.
 
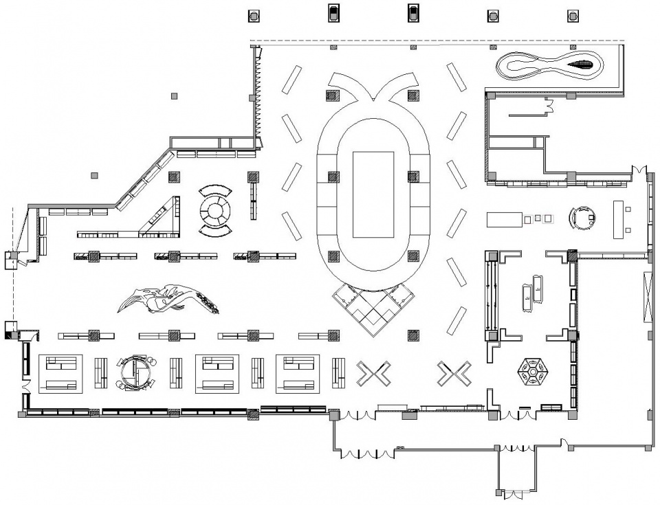
▼平面图,plan

 
项目名称:豪华百货多品牌精品店
设计:All Design Studio
网站:alldesignstudio.net
联系电子邮件:michelleyip@alldesignstudio.com.cn
设计和竣工年份:2020年
首席设计师和团队:梁亮,陈宏威,李亢骋
工程地点:成都市科华中路9号一层L01023
总建筑面积:2060㎡
图片来源:十号工作室-谭晓
合伙人:Xuberance
客户:豪华商场
3D 装置: Steven Ma
3D 装置施工:Xuberance
 
Project Name: Luxemporium multi brand boutique
Design: All Design Studio
Website: alldesignstudio.net
Contact e-mail: michelleyip@alldesignstudio.com.cn
Design & Completion Year: 2020
Leader Designer & Team: Gnial Liang , Wei Chen , Fred Li
Project Location: L01023,1F,No 9 Middle Ke Hua Road,Chengdu
Gross Built Area: 2060㎡
Photo Credits: Studio Ten – Tan Xiao
Partners: Xuberance
Clients: Luxemporium
3D device: Steven Ma
3D device construction: xuberance