K’s Veranda餐厅扩建,印度 / Hiren Patel Architects + Design
K’s Veranda是艾哈迈达巴德餐厅K’s Charcoal故事中的最新篇章,也集中体现了Hiren Patel Architects + Design(HPAD)一贯的设计精神——营造会呼吸、讲求平衡、并真正“属于场所”的空间。原本位于餐厅一侧、充满活力的开放草坪,如今被转化为一处富有情绪深度的静谧场所。在这里,墙体仿佛融入景观之中,室内空间自然地向户外延展。它并不像一次简单的加建,而更像是一种从容的演化:既延续了前作熟悉的温度与舒适感,又以克制而安静的方式,形成自身独立的表达。
K’s Veranda, the latest chapter in the story of K’s Charcoal in Ahmedabad, embodies the spirit of Hiren Patel Architects + Design (HPAD) — crafting spaces that breathe, balance, and belong. What once was a lively open lawn beside the restaurant has blossomed into a soulful retreat. Here, walls seem to melt into the landscape, and the indoors drift effortlessly into the open air. It doesn’t read as an addition, but as a graceful evolution, carrying the familiar warmth and comfort of its predecessor, yet whispering in its own quiet voice.
▼ 项目整体鸟瞰,Overall aerial view


▼ 项目顶视,Project top view




项目伊始的初衷十分清晰:在延续K’s Charcoal原有开放气质的基础上,使空间更加沉稳、更加私密,并更贴近其环境。HPAD希望打造一处呼应传统印度门廊(verandah)意象的场所——那是一种介于室内与室外之间的熟悉边界,向微风敞开,承载着人们相聚时的安定与从容。最终呈现的建筑空间邀请食客放慢脚步,感知光线的变化,并将用餐体验融入更完整的感官层次之中。
The project began with a simple intention: to build upon the easy openness of K’s Charcoal, but to make it more grounded, more personal, and more in tune with its surroundings. HPAD envisioned a space that would echo the mood of a traditional Indian verandah, that familiar threshold between indoors and out, open to the breeze, filled with the quiet comfort of people gathering. The resulting architecture invites diners to slow down, to engage with the changing light, and to enjoy their meal as part of a larger sensory experience.
▼ 主入口,Main entrance


▼ 入口檐廊空间,Entrance verandah

秉承HPAD的设计理念,自然在这里并非处于边缘,而是塑造一切的核心。K’s Veranda的中心是一处向天空敞开的绿色庭院,从空间内部的多个角度均可感知。自然光通过天窗与玻璃界面渗入室内,随着时间推移在地面与墙面上游走。花园始终近在咫尺——无论是窗边的座位,还是透过玻璃的一瞥,都仿佛已置身绿植之间。白天,餐厅通透明亮;入夜后,空间则逐渐转化为被烛光与倒影包裹的静谧容器。
True to HPAD’s philosophy, nature doesn’t sit on the periphery here, it shapes everything. At the heart of K’s Veranda lies a green courtyard, open to the sky and glimpsed from various corners within. Light filters through skylights and glass panels, slipping across the floors and walls as the day moves on. The garden feels close at every turn, a seat by the window, a glimpse through the glass, and you’re already among the plants. By afternoon, the restaurant feels sunlit and airy; come evening, it softens into a cocoon of candlelight and reflection.
▼ 建筑外观与庭院景观,Architecture integrated with garden courtyard




▼ 建筑外观与螺旋楼梯,Exterior view with spiral staircase

▼ 螺旋楼梯,Spiral staircase

▼ 螺旋楼梯细部,Spiral staircase detail

▼ 螺旋楼梯细部,Spiral staircase detail

材料的选择以克制而温和的语调展开。红色水磨石铺陈于地面,温暖而稳重,带着一丝怀旧气息;墙面采用清水混凝土处理,保留粗粝而真实的触感;黑色抛光木材用于界定转角与界面,为空间提供稳定的基调。寿司吧台与酒吧如同雕塑般自地面生长而出,竖向肌理的水泥表面在光线下形成柔和的明暗变化。台面选用Kesariyaji绿色大理石,其色泽呼应庭院植被,而寿司吧台上一道金属蓝色的细部点缀,则为空间增添一抹克制的亮色。所有材质都强调触感,引导来访者在近距离中感知细节。空间中对细节的关注体现在最微小的设计动作之中。入口门借鉴了传统门廊jali的几何语言,并以简洁而当代的方式重新诠释。室内的帘幕在桌面上方适度收止,使空间视线保持通透,人始终与外部保持联系。细看之下,灯具与织物中点缀的绿色元素,与庭院形成隐约呼应。整体设计克制而内敛,从不刻意吸引目光。
The materials speak in calm tones. Red terrazzo runs across the floor, warm, grounded, and faintly nostalgic. The walls are finished in exposed concrete, rough and textured to the touch, while black polished wood frames corners and surfaces, grounding the space. The sushi counter and bar rise like sculptural elements, their fluted cement surfaces catching light in soft patterns. Kesariyaji green marble tops the counters, its green tones reflecting the courtyard foliage, and a strip of metallic blue highlights the sushi counter. The finishes are tactile, encouraging guests to notice the details up close. There’s a thoughtfulness in the smallest gestures. The entrance door recalls the geometry of old verandah jalis, but reinterpreted in a clean, contemporary way. Inside, the curtains stop just short of the tabletops, keeping sightlines open across the space, you’re never fully separated from what’s outside. Looking around, you notice how green touches appear in the lamps and fabrics, connecting the interior to the courtyard. The design is measured and subtle, never calling attention to itself.
▼ 用餐区入口处,Dining area entrance

▼ 室内空间概览,Interior overall view



▼ 用餐区近景,Interior dining area close view


▼ 寿司吧台,Sushi counter

真正使空间脱颖而出的,是其整体氛围。这里没有匆忙,也没有对注意力的索取,而是邀请人进入一种专注而平静的状态。材质肌理与自然光的平衡,营造出一种在城市餐饮空间中愈发罕见的安宁感,成为喧嚣都市中的短暂停顿。每一个座位都提供着略有不同的体验:有的被庭院框景,有的沐浴天光,有的依偎在寿司吧台的柔光之侧。正是这些细微而慷慨的变化,使每位食客都能在空间中找到属于自己的节奏。
What ultimately distinguishes the space is its atmosphere. There is no rush, no demand for attention. Instead, it invites a kind of mindful presence. The balance of textures and natural light evokes a feeling of calm that is increasingly rare in urban dining, a moment of pause amidst the noise of the city. Each seat offers a slightly different experience: one framed by the courtyard, another by the skylight, another beside the sushi counter’s glow. The design’s generosity lies in these subtle variations, ensuring that every diner finds their own rhythm within the space.
▼ 黄昏建筑外观,Architecture exterior at dusk

▼ 黄昏亮灯室内空间,Illuminated interior at dusk



在K’s Veranda中,Hiren Patel Architects + Design塑造的不仅是一家餐厅,更是一种可被感知的精神状态。空间以传统印度门廊为灵感,通过当代材料与克制的几何语言加以转译。最终呈现的是一种被精炼后的简洁——既自然从容,又充满自觉与秩序,在每一个细节中找到其恰如其分的位置,使空间的每个角落都显得安静而完整。
At K’s Veranda, Hiren Patel Architects + Design have shaped a restaurant that nurtures a state of mind. Drawing inspiration from the timeless Indian verandah, the space reinterprets its spirit through modern materials and mindful geometry. The result is simplicity refined — a setting both effortless and intentional, where every element finds its purpose and every corner feels quietly complete.
▼ 夜晚建筑外观与庭院景观,
Architecture integrated with garden courtyard night view



▼ 首层平面图,Ground floor plan

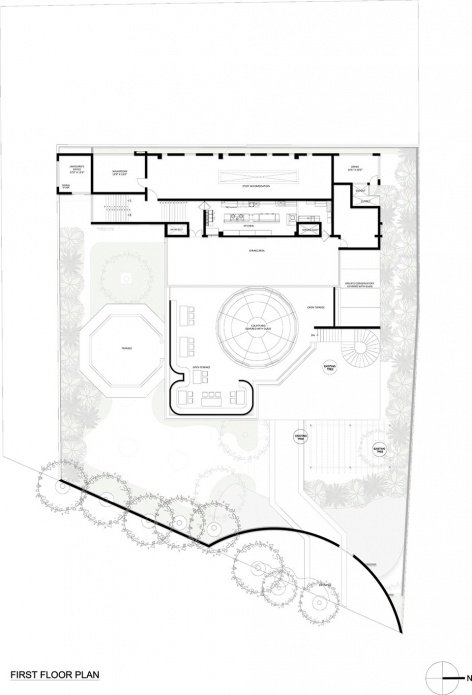
▼ 二层平面图,First floor plan

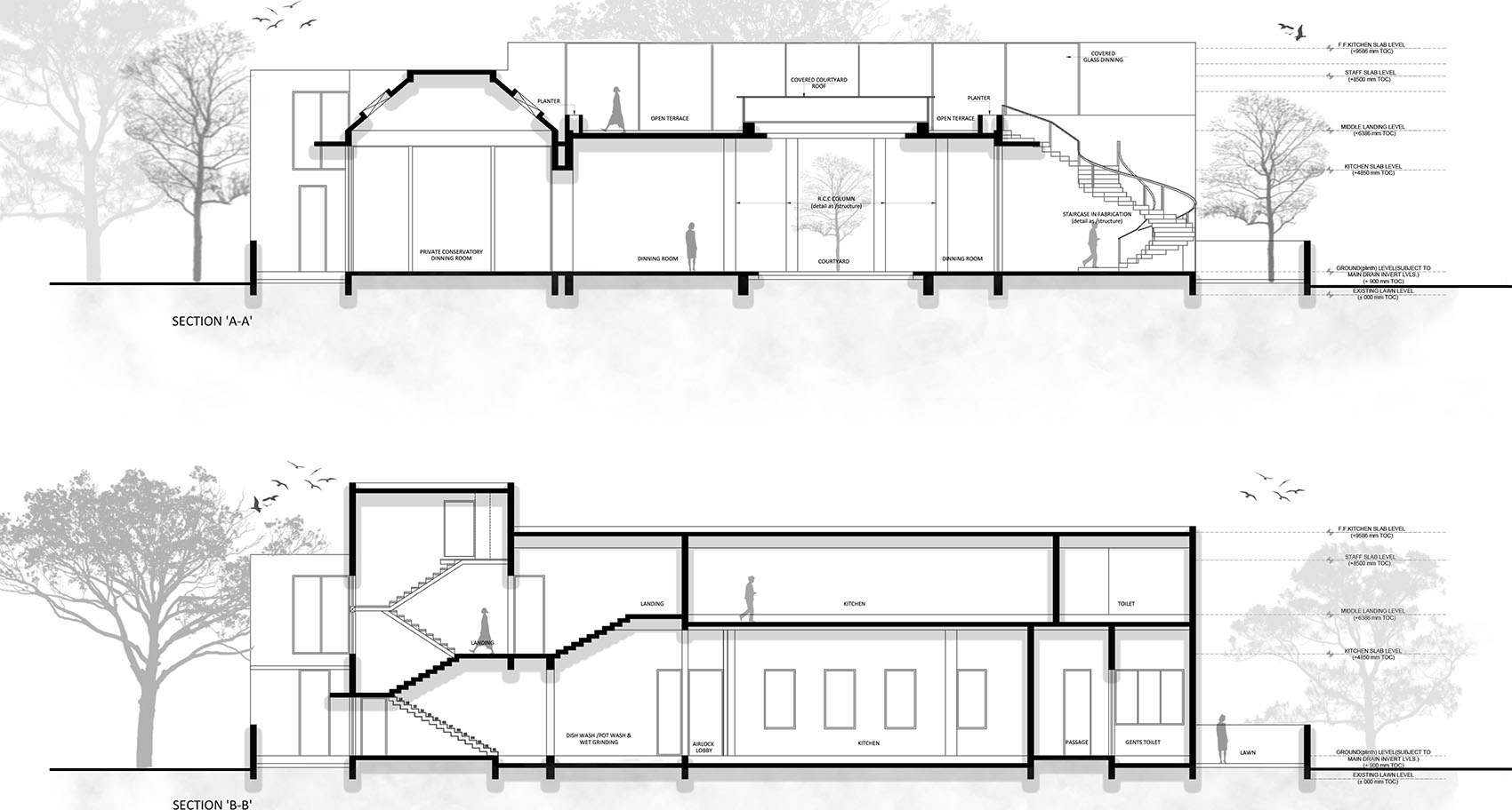
▼ 剖面图,Sections

▼ 立面图,Elevations

Project: K’s Veranda
Design Firm: Hiren Patel Architects + Design (HPAD)
Location: Ahmedabad, Gujarat














