gaga大吉巷店,北京 / odd设计事务所
当老建筑与新商业碰撞,将“市井”和“精致”藏在朱红、青瓦之中。
When historic architecture meets new commerce, the “earthy” and “refinement” are hidden within vermilion walls and indigo tiles.
▼gaga客厅开门迎友,Welcome to gaga

我们以“客厅”为概念构建设计核心,为gaga新店注入松弛感和烟火气。通过多条漫游式动线连接户外与室内,贴合“合院式街区”的商业氛围。
The design concept of the new gaga restaurant is creating a relaxed and earthy vibe, like stay in the living room. Multiple pathways connect outdoor and indoor spaces, echoing the commercial atmosphere of the neighborhood.
▼餐厅南侧入口,The south entrance of the restaurant

客厅开门迎友 Welcome to gaga
项目落于北京中轴线上,屋檐下藏着胡同生活的闲适与烟火。餐厅入口分别位于南、北两侧,并设置面向街区的外摆区域,提供灵活、丰富的就餐体验。
The project sits along Beijing’s central axis, presents the leisure and earthy lifestyle of hutong life. The entrances are located on the south and north sides respectively, with outdoor seating areas facing the neighborhood, offering flexible and diverse dining experiences.
▼餐厅入口,The entrance of the restaurant

▼餐厅南侧外摆区域,Outdoor seating area on the south side

▼外立面方砖造型,Facade with brick patterns

我们在注入现代设计元素的同时,保留四合院门头、屋脊、垂花门等传统建筑构件,展示北京老城特色风貌。
While incorporating modern design elements, we preserve traditional architectural components such as courtyard façade, roof ridges, and hanging-flower porch, showcasing the classic character of old-time Beijing.
▼餐厅北侧入口,The north entrance of the restaurant

餐厅北侧可以呈现完全打开的欢迎界面,半开放式庭院回应街区的开放与亲和,削弱传统商业立面的严肃性。
The north side of the restaurant can fully open to a semi-open courtyard that responds to the openness and approachability of the neighborhood, as well as softening the formality of traditional facades.
▼半开放式庭院,Semi-open courtyard


▼从户外看向餐厅室内,Looking interior from outdoor seating area

市井与精致并存 Where the earthy and refinement coexist
餐厅室内用曲线划分布局,弱化边界和空间棱角。增强空间灵活度与动态节奏,同时体现了品牌的商业气质和受众画像。
The interior layout employs curved lines to soften boundaries and sharp corners. This enhances spatial flexibility and dynamic rhythm while reflecting the brand’s commercial identity and target guest profile.
▼流动的曲线空间,Circulation with curved lines

▼城市特色装饰,Beijing city map

利用原始地形高差,我们在餐厅西侧做局部地面抬高处理,营造错落变化的空间感受。天花造型呼应曲线布局,弧形悬挑引导视线,建立天花与地面的内在联系;同时可以暗藏空调设备与管道。
Taking advantage of the natural elevation changes in the terrain, we partially raised the floor level on the west side of the restaurant to create a spatial experience with varied heights. The ceiling design echoes the curved layout, with arched cantilevers guiding the eye and establishing an intrinsic connection between the ceiling and the floor; it also discreetly conceals HVAC equipment and ductwork.
▼餐厅西侧局部地面抬高,Floor lifted on the west side of the restaurant

▼天花造型呼应曲线布局,Ceiling echoes the curved layout

吧台与卡座贴合平面弧线布局,成为餐厅核心造型,贯穿整个空间。弧形墙面采用橘红色夯土肌理漆,营造活泼、亲近的就餐体验。
▼ 餐厅轴侧图,Axonometric diagram

The bar counter and booth seating follow the curved layout, becomes to the major design element that runs throughout the entire restaurant. The curved wall is finished with orange-red rammed earth textured paint, creating a vibrant and welcoming vibe.
▼餐厅吧台,Bar counter

▼卡座区域,Booth seating

室内桌椅布局延续外摆区域,丰富多样。结合内渗的自然采光和景观绿植的搭配布置,将室内空间“庭院化”,弱化内外边界。
The indoor table and seating arrangement extends the layout of the outdoor seating area, offering a varied configuration. By integrating natural lighting and arranged landscape greenery, the interior space is transformed into a courtyard-like environment, blurring the boundaries between indoors and outdoors.
▼形式多样的桌椅布局,Diverse arrangements of table and chair


▼餐厅室内庭院化,Courtyard-like interior

鲜艳的颜色对比和金属装置点缀为餐厅增添几分时尚与俏皮。利用不同颜色和材质的肌理质感划定区域边界,呈现细腻区分。
Bold color contrasts and metallic accents add a touch of chic and playfulness to the restaurant. Different colors and materials are used to define spatial boundaries with subtle distinctions.
▼用颜色与材质划分区域,Divide areas by color and material


▼金属元素局部点缀,Accent with metal decorations

餐厅整体氛围协调统一,我们希望保留区域差异性的同时,提升空间的细节质感与生活温度。
The restaurant maintains a harmonious atmosphere overall; while preserving the distinct character of each area, we aim to enhance the spatial details and imbue the ambiance with warmth and liveliness.
▼刨花板隔断,Particleboard partition

▼餐厅角落的光影,Light and shadow


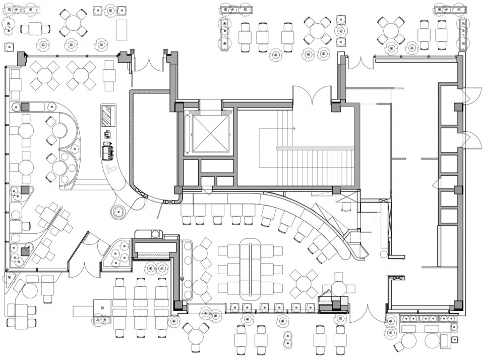
▼餐厅平面图,Restaurant floor plan

项目信息
Credits & Data
Project: gaga DAJIXIANG
Category: Restaurant & Bar
Location: Beijing
Floor area: Indoor 268㎡, Outdoor 133㎡
Design: odd (okamoto deguchi design)
Design team: OKAMOTO Keizo, DEGUCHI Tsutomu, LIU Jingyi, CAO Bo, ZHANG Ziqing
Completion: 2025.08
Materials: Rammed earth texture paint, Wood, Tile, Terrazzo, Particleboard, Metal
Photograph: gaga














