SÁ别墅,葡萄牙 / Tiago do Vale Architects
阿威罗在其城市肌理中保留了葡萄牙最具代表性的众多新艺术风格建筑实例,这一珍贵的文化遗产,至今仍是这座城市身份最清晰、最鲜明的表达之一。
Aveiro preserves within its urban fabric many of the most emblematic examples of Art Nouveau in Portugal, a heritage legacy that today stands as one of the clearest expressions of the city’s identity.
▼项目鸟瞰,Aerial-view of the project

新艺术运动在诞生之初,曾遭遇激烈的批评——被认为过于繁复、在功能上多余、造价高昂,并且与新兴现代社会的需求格格不入。它很快被装饰艺术风格、现代主义运动的理性实用主义所取代,并在几乎没有迟疑的情况下被系统性地抹除(无论在物质层面还是象征层面)。直到20世纪下半叶,新艺术才逐渐得到重新评价与修复:对遥远过去的礼赞(以及对当下和近代历史的贬抑)在文明史中反复出现,尽管这种冲动本身同样充满暧昧与矛盾。
Art Nouveau, upon its emergence, was the subject of fierce criticism -deemed excessive, functionally superfluous, costly, and out of step with the demands of the emerging modern society. It was swiftly supplanted by Art Deco, the rational pragmatism of the Modern Movement, and systematically erased (both physically and symbolically) without hesitation. Only in the second half of the twentieth century would Art Nouveau begin to be reappraised and recovered: the celebration of the distant past (and the devaluation of the present and the more recent past) has been a recurring impulse in the history of our civilisation, albeit one that is no less equivocal for that.
▼立面概览,Exterior overview

▼沿街立面,Street view elevation



然而,城市的形成历来如此——在层叠中生长,在叠加中演变,在不断回访与重释中前行。正是这种来自不同年代、不同声音的层累,构成了城市体验的丰富性。从这个意义上说,阿威罗堪称这种“重写羊皮纸式”城市状态的典范。
And yet, it has always been in this way that cities have taken shape -in layers, in superimpositions, in revisitations- and it is precisely from this stratification of voices and periods that the richness of the urban experience arises. In this sense, Aveiro stands as a paradigm of that palimpsestic condition.
▼开合的立面,Operable façade

在他后来为自己设计住宅的同一条街道上,建筑师弗朗西斯科·奥古斯托·席尔瓦·罗查(新艺术语言在阿威罗确立过程中的核心人物)于20世纪初构思了一座低调而庄重的建筑。其最具辨识度的特征之一,是首层一扇由石材镶边的圆形窗,构成了立面的构图轴线;一层立面则由装饰着花卉图案的窗洞节奏性展开,引导视线向上,最终抵达由陶瓷饰带与石质三槽板交错组成的檐口收边。阁楼层中,一扇小巧的山墙窗嵌有女性头像雕塑,强化了这组建筑安静而含蓄的叙事表达。
▼草图,Sketch

On the very street where he would later design his own residence, architect Francisco Augusto Silva Rocha (the central figure in the establishment of this language in the city) conceived, at the dawn of the twentieth century, a discreet yet dignified building. Among its most distinctive elements, the ground floor features a round window framed in stonework that defines the compositional axis, while the first floor is punctuated by openings adorned with floral motifs, leading the gaze upward to a ceramic frieze interspersed with stone triglyphs that crown the façade. In the attic storey, a small gabled window with a sculpted female face reinforces the quiet narrative that constitutes the singular expression of the ensemble.
▼立面细节,Facade details


从类型学角度看,这座立面遵循了城市中反复出现的一种模式:由三条竖向开间组织的两层立面,上方以居中的阁楼窗收束。正是在与这栋建筑的直接对话中,萨宅(Sá Townhouse)逐渐成形。项目位于一块空置地块之上,在体量、材料与构图上延续了席尔瓦·罗查住宅的建筑语汇:立面的竖向与横向节奏、檐口高度的对齐、屋顶的几何形态,以及五段式的立面组织方式。
Typologically, the façade follows a pattern widely repeated throughout the city: two floors articulated by three vertical bays, topped by a central attic window. It is in direct dialogue with this building that the Sá Townhouse takes form. Set on a vacant plot, the Sá Townhouse resumes, in volume, materiality, and composition, the architectural lexicon of Silva Rocha’s house, echoing the vertical and horizontal rhythms of the façade, the height alignments, the geometry of the roof, and the five-part organisation of the elevation.
▼几何形态,Geometry element
新建筑保留了两层、三开间与中央阁楼窗的熟悉结构,并配置了一个后侧上层露台庭院——这一布局在街道及整座城市中都十分常见。出于克制的姿态,新体量略微后退于街道红线,仿佛在“倾听”之后才开口回应。正是在这种谨慎而自觉的姿态中,建筑建立起一种审慎的对话关系:新建筑延续既有遗产,却并不试图盖过它。位于巨大圆形窗下方的技术壁龛,呼应了席尔瓦·罗查住宅中信箱上方那扇标志性的圆窗。
It retains the familiar scheme of two floors, three bays, and a central attic window, along with a rear upper patio, a configuration common both to the street and across the city. In a gesture of restraint, the new volume is set slightly back from the street alignment, as if speaking only after listening. In doing so, it establishes a deliberate and attentive dialogue, where the new extends the pre-existing legacy without seeking to overshadow it. The technical niche beneath a generous oculus references the distinctive round window that, in Silva Rocha’s house, sits above the letterbox.
▼玄关,Entrance

▼楼梯,Stairs
在有意识地引用原有建筑的前提下,萨宅在材料表达上与之形成直接呼应:石灰石界定了建筑基座,首层以陶瓷砖覆面,映射出原建筑的肌理与工艺特征。上部楼层中,铁艺与木构细部对早期建造方式进行了含蓄的再诠释,为历史语汇提供了一种当代阅读。
Deliberately citing the pre-existing house, the materiality of Sá Townhouse draws direct parallels with it: limestone defines the base, while ceramic tiles sheath the ground floor, reflecting textures and techniques of the original building. In the upper storeys, ironwork and timber subtly reinterpret earlier constructive solutions, offering a contemporary reading of a historical vocabulary.
▼阶梯到二层空间,Stairs to sencond floor

▼二层空间,Second floor space


▼木格栅窗,Timber slats window

尽管深深扎根于前身建筑的模型之中,萨宅仍明确地作为一个属于当代的项目而存在。它通过当代的设计选择,在尺度与形式上与前例建立呼应关系。同时,它也无可置疑地属于阿威罗:不仅源于对原有住宅的直接回应,也体现在对城市旧日盐仓木立面、以及潟湖地区传统“帕莱罗”建筑中图形节奏与原始色彩体系的更为含蓄的借鉴之中。
Though deeply anchored in the model that precedes it, Sá Towhnouse affirms itself as a project of its time, seeking to establish correspondences in scale and design with its predecessor through contemporary choices. At the same time, it belongs unmistakably to Aveiro, not only through its direct reference to the original house, but also more broadly through its evocation of the timber façades of the city’s former salt warehouses and, more subtly, the graphic rhythms and primitive colour palette of the Ria’s traditional Palheiros.
▼卧室,Bedroom

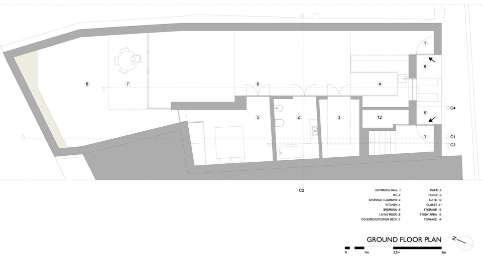
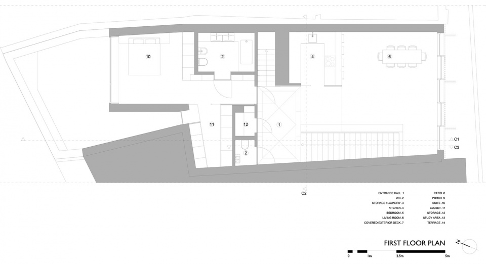
萨宅由两套彼此独立的居住单元组成:首层是一套紧凑的一居室出租公寓,通过大面积玻璃界面通向后侧庭院;主住宅则分布在一层与阁楼层之间。
Sá Townhouse comprises two distinct dwellings: a compact one-bedroom rental apartment on the ground floor, opening onto a rear patio through a wide glazed surface; and the main residence, which unfolds between the first floor and attic.
▼走廊,Corridor

▼交通空间,Transportation space
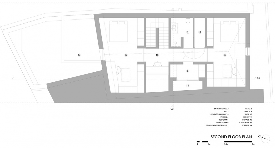
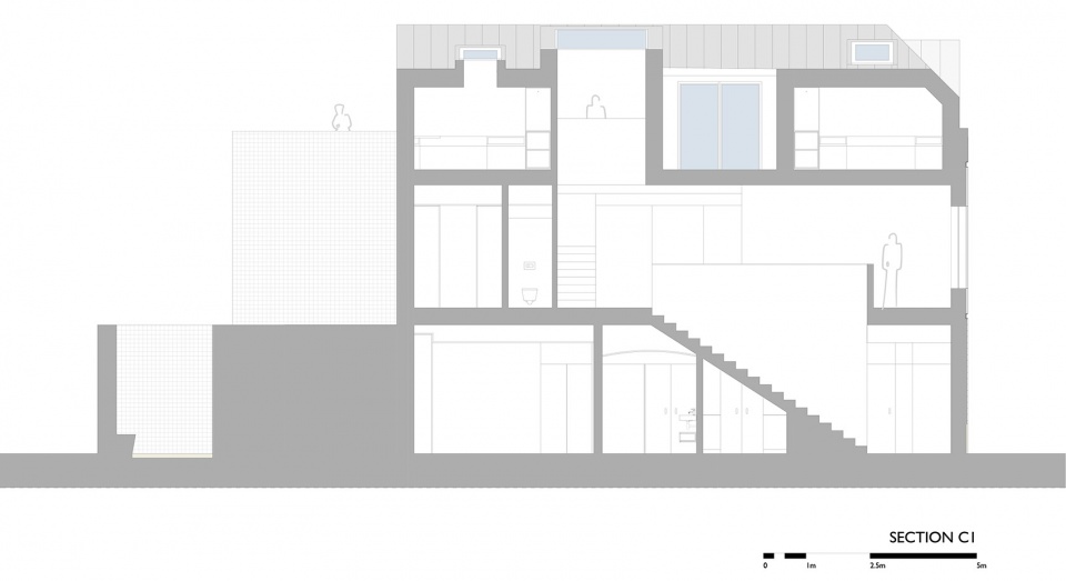
在上层住宅中,一处贯穿两层的中央天窗化解了狭深基地带来的采光问题。其轴线与入口前厅对齐,标示着抵达的瞬间,并以一种既直接又柔和、几近舞台化的光线,照亮两条垂直交通空间。公共起居空间朝南布置,面向街道,并通过木质格栅过滤自然光线;主卧套间则退居安静而私密的后立面。上层设置了两间卧室,分别位于建筑两端(一间利用主立面顶部的中央窗,另一间则通向抬高的后露台),技术空间、交通与书房夹置其间。
In the upper dwelling, a central skylight traverses both floors, resolving the depth of the plot. Its axis aligns with the entrance hall, marking the moment of arrival and softly illuminating both vertical circulations with a light that is at once direct and diffuse, almost scenographic. The social spaces face south, opening onto the street and benefiting from natural light filtered through timber slats. The master suite, in contrast, retreats to the quieter, more private rear façade. On the upper floor, two bedrooms occupy either end (one taking advantage of the central window crowning the main façade, the other opening onto a raised rear patio) with technical areas, circulation, and a study space arranged between them.
▼中央天窗,Central skylight

▼书房,Study space
项目以使用本地材料以及耐久、低维护的建造策略为基础。石材(花岗岩、石灰石与大理石)均在葡萄牙本土开采与加工;松木同样来自国内,五金、涂料及其他材料与饰面亦然。陶瓷覆面、洁具与龙头均为本地生产,进一步强化了项目与场所之间的紧密联系。
The proposal is grounded in the use of local materials and durable, low-maintenance solutions. The stones (granite, limestone, and marble) are quarried and processed in Portugal; the pinewood is of national origin, as are the hardware, paints, and other materials and finishes. Ceramic cladding, sanitaryware, and taps are locally manufactured, reinforcing the rootedness of the project in its place.
▼露台,Terrace

▼窗户,Window

在这一片充斥着空置地块、21世纪初建造的同质化住宅,以及零星散落于其间的1900年前后遗存建筑的城市语境中,萨宅以坚定而清醒的姿态立起。它与周边环境及建成历史建立起细腻而自觉的对话,同时主张自身作为当代建筑的合法性与形式自主性。
In a territory marked by vacant plots and the anonymous presence of undifferentiated residential buildings erected around the turn of the twenty-first century, interspersed here and there with survivals from the decades surrounding 1900, the Sá Townhouse rises assertively, establishing an attentive dialogue with its setting and its built history, asserting its right to contemporaneity and formal autonomy.
▼夜览,Nightview

▼夜间立面动态,Facade in nightview

萨宅不仅是一栋建筑,更是一篇关于延续性与归属感的建筑随笔,为未来的介入提供线索:在这里,记忆与当下相遇,建筑成为一种“倾听”的工具——倾听过去、倾听未来,也倾听街道、城市、日常生活及其具体情境。
More than a building, the Sá Townhouse presents itself as an essay on continuity and belonging, offering clues for future interventions: a gesture where memory and the present meet, and where architecture becomes a tool for listening -to the past, to the future, to the street, the city, everyday life, and its circumstances.
▼首层平面图,Ground floor plan

▼二层平面图,First floor plan

▼三层平面图,Second floor plan

▼立面图,Elevation


▼剖面图,Section



▼遮阳系统,Shading system

TECHNICAL SHEET
PROJECT NAME Sá Townhouse
ARCHITECTURE Atelier Tiago do Vale, Architects (http://tiagodovale.com)
ARCHITECTURE TEAM Tiago do Vale, Clementina Silva, Paula Campos, with Adriana Gomes, Alara Çağla, Marija Matozan, Nil Kokulu, Sara Ventura da Cruz, Jan Momot
PROJECT YEAR 2019-2021
PROGRAM Residential
LOCATION Aveiro, Portugal
CLIENT Patrícia Freitas, João Santos
CONSTRUCTION Engicivil – Cardoso & Manata L.da
ENGINEERING SIPC Lda
CONSTRUCTION YEAR 2022-2025
FOOTPRINT 110 m2 / 1190 ft2
CONSTRUCTION AREA 280 m2 / 3010 ft2
PHOTOGRAPHY João Morgado (http://joaomorgado.com)














