Paul Doumer学校综合体,法国 / AT architectes
Paul Doumer项目将一所在用学校转化为长期的城市公共催化剂,并将施工中的重重限制转化为契机,重新思考教育建筑如何重塑学习体验与城市形态。
Transforming a school in use into a long-term civic catalyst, the Paul Doumer project turns construction constraints into an opportunity to rethink how educational architecture can shape both learning and the city.
▼建筑外景,Exterior of the building


该综合体位于法国南部小镇拉法尔莱索利维耶尔(La Fare-les-Oliviers)的西入口处,集幼儿园、小学、食堂、课后托管设施及户外空间于一体。受市政府委托,该项目旨在解决原有建筑老化和结构脆弱的问题,同时确保在整个施工期间,数百名儿童的日常教学活动不受干扰。 场地条件极为受限:土地资源稀缺、地势高差变化显著、毗邻体育设施,且必须在不中断教学的前提下,跨年度分阶段完成施工。起初,如此大规模的改造通常意味着需要使用临时集装箱教室。然而,通过与业主的深入沟通,设计团队提出了一项更具雄心且更经济的替代方案:投资建设一座永久性建筑,既能满足短期的教育过渡需求,又能服务于长期的市政用途。
▼功能分析,Program analysis

Located at the western entrance of La Fare-les-Oliviers, a small town in southern France, the Paul Doumer school complex brings together a preschool, an elementary school, a cafeteria, after-school facilities, and outdoor spaces. Commissioned by the City of La Fare-les-Oliviers, the project addressed aging and structurally fragile buildings while maintaining daily school operations for several hundred children throughout construction. The site presented multiple constraints: limited land availability, changes in ground levels, proximity to sports facilities, and the necessity of phasing works over several years without interrupting teaching activities. Initially, the scale of the transformation implied the use of temporary modular classrooms. Instead, through close dialogue with the client, a more ambitious and economical alternative emerged: investing in a permanent building capable of serving both short-term educational needs and long-term municipal uses。
▼建筑街景,Building street view


项目被视为一个动态的“过程”,而非单一的建筑形式表达。施工分为多个阶段展开,每个阶段在改善场地环境的同时均保持了使用的连续性。首先建造的是一座“临时且永久”的建筑,用于在施工期间安置学生;该建筑充分考虑了耐用性与适应性,如今已转型为城市的体育部门办公楼,并与相邻的运动场直接相连。
The project was conceived as a process rather than a single architectural gesture. Construction unfolded over several phases, each improving the site while preserving continuity of use. A “temporary yet permanent” building was first constructed to host pupils during the works; designed with durability and adaptability in mind, it is now destined to become the city’s sports department, directly connected to the adjacent sports fields.
▼室外活动场地,Outdoor activity area

现有的教学楼经过了深度修复,而因地基沉降受损的幼儿园和食堂则进行了拆除重建。整体建筑风格质朴克制,强调气候适应性与可演进性。教室通过屋顶天窗实现自然通风,兼顾日间通风与夜间降温。庭院被设计成“绿洲空间”,结合植被、透水地面和遮荫区,提升了炎热季节的体感舒适度。 空间组织倾向于共享交通空间,通过定制家具激活室内氛围,支持非正式学习与社交互动。幼儿园与小学之间的连接建筑内设有“可变教室”,以应对人口结构变化和未来功能需求的演变。在材料与系统选择上,项目优先考虑耐用性、低维护成本和被动式舒适策略,而非盲目追求技术上的复杂性。
Existing elementary school buildings were heavily rehabilitated, while the preschool and cafeteria—damaged by ground movement—were entirely rebuilt. Architecture here is sober, climatic, and evolutive. Classrooms are naturally ventilated through roof sheds enabling both daytime ventilation and night-time cooling. Courtyards are conceived as “oasis spaces,” combining vegetation, permeable soils, and shaded areas to improve comfort during hot seasons. Spatial organization favors shared circulation spaces, animated by custom-designed furniture that supports informal learning and social interaction. A connecting building between the preschool and elementary school houses reversible classrooms, anticipating demographic changes and future programmatic evolution. Materials and systems privilege durability, low maintenance, and passive comfort strategies over technical complexity
▼室内走廊,Interior corridor



随着2025年景观美化和透水化处理后的新前广场交付使用,该项目的影响力已超越了学校本身。这一广场充当了城市连接器的角色,将学校与周边社区及体育设施紧密相连,为小镇入口营造了全新的公共空间。 通过用持久的基础设施取代临时解决方案,保罗·杜美学校综合体展示了教育建筑如何成为城市更新、环境责任和社会延续性的有力工具。这所学校不仅仅是学习场所,更成为了该地区的公民纽带和发展催化剂,体现了关怀、适应性与长远愿景的建筑哲学。
▼日照分析剖面图,Daylighting analysis section

Completed in 2025 with the delivery of a new landscaped and de-sealed forecourt, the project extends beyond the school itself. The parvis acts as an urban connector, linking the school to its neighborhood and nearby sports facilities while offering a new public space at the town’s entrance. By replacing temporary solutions with lasting infrastructure, the Paul Doumer School Complex demonstrates how educational architecture can become a tool for urban regeneration, environmental responsibility, and social continuity. More than a place of learning, the school now functions as a civic anchor and catalyst for the territory, embodying an architecture of care, adaptability, and long-term vision.
▼教室,Classroom


▼项目区位图,site plan

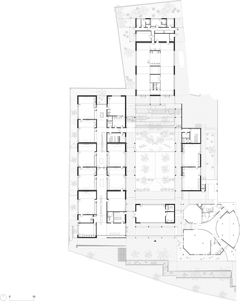
▼平面图,Floor plan

▼剖面图,Section

Paul Doumer School Complex
1 Avenue des Vignons, 13580 La Fare-les-Oliviers, France
Client
City of La Fare-les-Oliviers
Project
Complete reorganization and restructuring of the school complex (a preschool, an elementary school, oasis playground, school catering facilities, after-school facilities, forecourt)
Lead Architect
AT – Céline Teddé & Jérôme Apack architectes
Team
Structural engineering: i2c
MEP, Fire Safety Systems & Utilities engineering: AD2i
Acoustics consultant: Jean Amoros
Environmental quality consultant: Domene
Cost consultant & Project scheduling (OPC): PHD Ingénierie
Landscape architect: Marie-Pierre Grégoire
Floor Area
3 396 m2
Construction Cost
7 950 000€ excl. VAT
Schedule
Design phase: 2017–2019
Construction phase: 2021–2025
Credits
Florian Joliot : photos 1 – 2 – 3 – 4 – 6 – 7 – 8 – 9 – 10
AT – Céline Teddé & Jérôme Apack architectes : photos 5 – All drawings














