Heyi office,广州 / 偏离设计
项目坐落于广州一个以服装办公生产为主的产业园区内,原建筑为一幢三层楼面的框架结构四方体,与园区内大部分房屋一样,建筑紧挨主干道,四周封闭,与街面的关系接近碰撞式,无任何缓冲区域。设计需求为在这一四方体建筑内,设计一个可容纳百人左右的服装设计办公场所,人群密度与办公业态自身极强的功能属性给这一场所带来一种强烈的密度,在功能先行的条件下,设计开始展开。
The project is situated within a garment-focused industrial park in Guangzhou, where the primary activities encompass office operations and production. The original structure is a three-story, cube-shaped building with a frame system—consistent with most structures in the park, it abuts the main thoroughfare directly, enclosed on all sides, and presents an almost collisional interface with the street front, lacking any form of buffer zone. The design brief calls for the transformation of this cubic building into a garment design office capable of accommodating approximately 100 occupants. The high occupancy density, combined with the inherently strong functional attributes of the office typology, introduces a pronounced sense of spatial density to the site. Against the backdrop of prioritizing functional requirements, the design process is initiated.
▼项目外观,exterior view of the project

▼雨棚与支撑结构,canopy and the support structure


▼细部,details

由功能机制出发,引导出水平与垂直两条设计轴线,通过界面的退让,最终形成一个八小时机制的日常办公场所。
Starting from the functional mechanism, two design axes—horizontal and vertical—are derived. Through the setback of the building interfaces, a daily office space operating on an eight-hour work system is ultimately formed.
▼底层空间,ground floor space

▼蓝色马赛克地面,blue mosaic floor

▼界面的退让,setback of the interface

在剖析了整个办公业态属性后,设计的介入由纵向轴线先行展开,功能区沿三个楼面分层布置,1F为综合办公区;2F为产品打样制作区;3F为综合设计区;根据多层空间这一属性,垂直交通体系成为连接三个楼面的唯一路径。
▼剖透视图,perspective section

After analyzing the attributes of the entire office business format, the design intervention is initiated along the vertical axis. Functional areas are arranged hierarchically across three floors: the 1st floor houses the comprehensive office area, the 2nd floor the product prototyping and production area, and the 3rd floor the comprehensive design area. Given the characteristic of a multi-level space, the vertical transportation system serves as the sole pathway connecting the three floors.
▼多层空间的联系,interaction between three floors



▼水平线条,horizontal line

▼二层空间概览,overall of the first floor space

▼细部,details

将楼梯从整体功能机制中解构,成为一个独立的单元,采用单立柱悬挑结构,以敞开的方式给予街道积极的回应,与街面形成相互渗透的状态,从而使楼梯成为这一街区的符号。
The staircase is deconstructed from the overall functional mechanism to become an independent unit. Adopting a single-column cantilever structure, it responds proactively to the street in an open manner and forms an interpenetrating relationship with the street level, thus establishing the staircase as a symbolic landmark of the neighborhood.
▼楼梯,staircase

▼楼体采用单立柱悬挑结构,single-column cantilever structure of the staircase



▼楼梯细部,details of the staircase


▼半透明材料增强呼吸感,translucent materials enhance the sense of breathing


在水平设计轴线上,我们将主体功能区域后退4m,从而使进入这一行为有了缓冲,整个建筑面对街道也不再是封闭式的碰撞感,在二层立面设计挑檐,向街面延伸1.5m,同时配合纵向轴线的设计关系,在后退的4m空间内设计了几组挑空,自此,人在进入这栋建筑时有了呼吸感,也使整栋建筑在作为办公空间的同时与所在街区形成一定的连接,带来一定量的公共属性,檐下躲雨、等候、交谈等行为使整个建筑在一种日常的生活状态中变的生动。
Along the horizontal design axis, we set the main functional areas back by 4 meters, creating a buffer zone for the entry experience. This way, the building no longer presents a closed, confrontational facade to the street. A 1.5-meter cantilevered eave is designed on the second-floor elevation, extending toward the street. In conjunction with the vertical axis design, several voids are incorporated into the 4-meter setback space. As a result, the building offers a sense of spatial breathing upon entry. While serving as an office space, it also establishes organic connections with the surrounding neighborhood and takes on a certain public character. Everyday activities such as sheltering from rain, waiting and conversing under the eave infuse the building with vivid, lived-in vitality
▼三层空间概览,overall of the top floor space

▼利用家具进行空间分割,using furniture for space division


▼利用家具进行空间分割,using furniture for space division


剥离掉面层装饰,保留最基本的空间单元。功能在水平轴线上以敞开的方式分布,利用家具自身的体量与尺度进行空间分割,在统一的材质下,模块化与可移动设计给空间带来一定的可变量,也给后续的局部调整预留可行性,敞开的方式使整个办公效率得以最大化。
Strip away the surface decorative layers and retain the most basic spatial units. Functions are laid out in an open manner along the horizontal axis, with the volume and scale of furniture themselves used to divide the space. Under a unified material palette, modular and movable designs endow the space with a certain degree of variability and also reserve the feasibility for subsequent partial adjustments. This open layout maximizes the overall office efficiency.
▼模块化与可移动设计给空间带来一定的可变量,unified material palette, modular and movable designs


▼利用家具进行空间分割,using furniture for space division


▼高效率的办公空间布置,efficient office space arrangement


▼充足的储存空间,abundant storage space


▼细部,details

此案是我们尝试在一个高密度强功能以及需要一定私密感的场所内,在不破坏自身属性的前提下,是否可以将其与街道,与人群,产生链接的可能性。
This project explores the possibility of creating connections between this space—one characterized by high density, robust functionality and a need for a certain level of privacy—and the street as well as the public, without compromising its inherent attributes
▼外观夜景,night views of exterior



▼开敞的立面,open facade

▼夜景,night views


▼由周围看建筑,viewing the project from the alley

▼改造前,before renovation

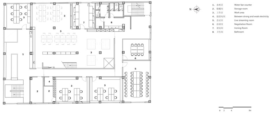
▼一层平面图,ground floor plan

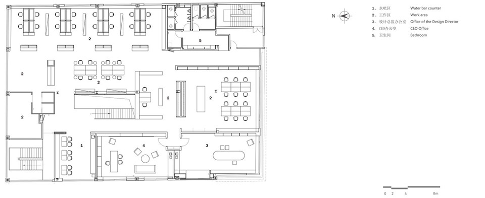
▼二层平面图,first floor plan

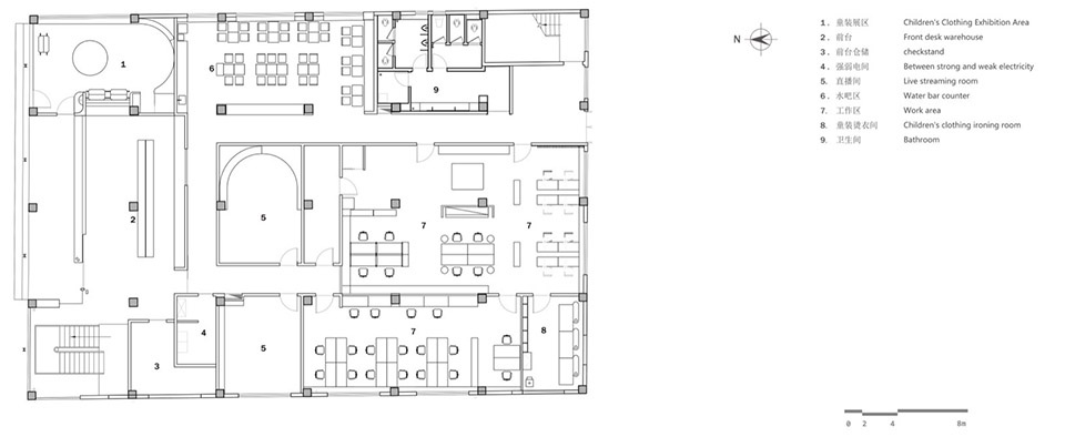
▼三层平面图,second floor plan

▼剖面图,section

Project name:Heyi office
Project type: Office Space Renovation Design
Design: DEPARTURE DESIGN STUDIO
Contact e-mail: H2design@126.com
Design year:2025/5
Completion Year:2025/11
Leader designer & Team: Xiao Dao, Qi Shuaiji, Zhao Yengkai, Xiong Liangjie, Li Mingsi
Project location: Guangzhou Haizhu Zhihui Technology Park
Gross built area: 2000㎡
Photo credit: Lihao
Partner:Guangzhou Guangshe Space Lighting, Zhejiang Shixi Decoration Engineering Co., Ltd.
Clients:Heyi (Guangzhou) Trading Co., Ltd.
Materials: Mosaic, marine board, vinyl flooring, metal spray paint














