研造所,深圳 / 如室建筑设计事务所
「研造所」落脚于万科第五园,一处已略显沉寂的社区商业街区。随着人流与消费活力的减弱,街区原有的商业氛围逐渐退场,万科第五园前巨大的前庭,成为都市中一个被遗忘的角落。研造所以印刷工作室的身份进驻社区,融合印刷衍生品与巧克力零售,希望搭建专业制作与日常消费之间的桥梁,使印刷工艺有机会被更广泛的群体体验与观摩。空间被定义为一个融合生产、展示、交流与售卖的复合型小型工艺工作坊,也是印刷工坊的当代表达。
YANZAO WORKSHOP is situated in Vanke Fifth Garden, a community commercial block that has grown somewhat quiet. As foot traffic and consumption vitality diminished, the original commercial atmosphere of the street gradually receded. The vast forecourt of Vanke Fifth Garden has become a forgotten corner of the city. Entering the community as a printing workshop and integrating printed derivative products with chocolate retail, YANZAO WORKSHOP aims to build a bridge between professional production and everyday consumption. This allows the craft of printing to be experienced and observed by a wider public. The space is defined as a composite, small-scale craft workshop that integrates production, exhibition, communication, and sales. It represents a contemporary interpretation of the traditional printing atelier.
▼项目外景,Exterior of the project



▼入口细节,Entrance detail



生产与交流的交汇Convergence of Production and Exchange
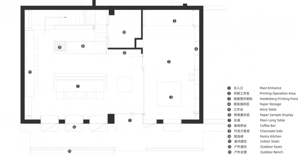
一层平面自然划分为两个区域:入口右侧为专业印刷操作区,由老式海德堡印刷机、纸样展示与存储系统构成,完整还原印刷流程与使用环境,供专业人士咨询与操作;左侧设置吧台,融合接待、轻饮与衍生品售卖功能,作为面向公众的主要界面。空间中央设置长桌,并延伸至可就坐的外摆区域,在访客、邻里与团队之间,形成一个自然聚合的“城市客厅”。
The ground floor is naturally divided into two zones. To the right of the entrance is the professional printing operation area, comprising an old Heidelberg printing press, a paper sample display, and a storage system. This area fully replicates the printing process and working environment for professional consultation and operation. To the left, a counter combines the functions of reception, light refreshments, and derivative product sales, serving as the primary public interface. A long table in the center of the space extends into an outdoor seating area, forming a naturally congregating “urban living room” for visitors, neighbors, and the team.
▼室外休闲区,Outdoor leisure area



▼印刷机,Printing machine


▼印刷工坊展示区,Printing workshop display area


二层作为“共享层”,被设定为一个灵活可变的公共展厅。通过一组“飞板”构件延展视觉边界,并将灯具系统全部隐藏,以简洁克制的光环境增强空间的沉静感;阶梯式看台与临窗办公座位的设置,满足展览、讲座与小型聚会等多种使用场景,
The second floor, as a “shared layer,” is conceived as a flexible public exhibition hall. A set of “floating panels” extends the visual boundaries, while all lighting fixtures are concealed within. This creates a simple, restrained luminous environment that enhances the space’s sense of serenity. Tiered seating and window-side workstations accommodate various scenarios such as exhibitions, lectures, and small gatherings.
▼一层客坐区,The first floor seating area

▼光入工坊,Workshop daylighting

▼二层共享层,shared layer



因地制宜的空间策略A Context-Driven Spatial Strategy
一层原有的开洞被予以保留,并调整为可内外互通的灰空间。在评估中发现,建筑原有夹层存在安全隐患,因此对整个二层底板进行了结构加固,并将裸露的 U 型钢作为一层空间的主要视觉要素。原建筑的设备平台与室内存在高差,通过设置阶梯将其转化为露台,同时也将二层空调设备和出风口巧妙地布置在台阶下的空腔内,避免了常规空调布置对原始天花的破坏。设备平台由此成为一块的“流浪猫花园”,也是主理人从工作状态中短暂抽离的角落。
The original openings on the ground floor were preserved and adapted into an interactive semi-outdoor “gray space.” During evaluation, safety hazards were identified in the building’s original mezzanine structure. Consequently, the entire second-floor slab was structurally reinforced, with the exposed U-shaped steel beams becoming a primary visual element in the ground floor space. An elevation difference existed between the building’s original equipment platform and the interior. This was transformed into a terrace by adding steps, which also cleverly house the second-floor air conditioning units and vents within the cavities beneath. This approach avoided the disruption to the original ceiling typical of conventional AC installations. The equipment platform thus became a “stray cat garden,” a corner for the manager to briefly retreat from work.
▼二层露台入口,Entrance to the second-floor terrace

材料与手作痕迹Materials and Traces of Handcrafting
在材料策略上,空间持续强调“手工感”。吧台采用小木模板进行混凝土浇筑,保留模具纹理,隐喻“制版—压印”的印刷机制;地面使用水泥金刚砂材质,强化工业属性与建造痕迹。施工过程中,工人操作产生的细微瑕疵被保留并优化。如室希望保留“非完美的真实”触感,鼓励使用者在微小偏差中,重新理解手作所带来的安心与温度。
The material strategy consistently emphasizes a “handcrafted feel.” The counter was cast in concrete using small wooden formwork, retaining the texture of the molds—a metaphor for the printing process of “plate-making and pressing.” The flooring utilizes cement and carborundum, reinforcing the industrial character and construction traces. Minor imperfections from the construction process were preserved and refined. The intention is to retain the tactile quality of “imperfect authenticity,” encouraging users to rediscover the reassurance and warmth inherent in handcraftsmanship through these subtle variations.
▼材料细节,Material detail


在有限预算下,如室与研造所携手试图建立一个可被感知、可被参与、可停留的文化工艺实验空间,而非将文化仅仅作为消费的背景。
Working within a limited budget, the designers and YANZAO WORKSHOP endeavored to create a cultural and craft experimental space that is perceptible, participatory, and inviting for lingering—rather than merely using culture as a backdrop for consumption.
▼室外绿植,Outdoor plants

▼一层平面,1st floor plan

▼二层平面,2nd floor plan

▼剖面,Section















