上海现代汽车服务产业集聚区尚鸿商务中心 / 致正建筑工作室
项目背景Project Background
长风生态商务区位于上海市普陀区南部内环线和中环线之间的苏州河北岸,其前身是北新泾工业区,是上海老工业区成功转型的典范,也是上海市首批重点推进的现代服务业集聚区之一,初步形成了开放服务型、总部集聚型、人文生态型的区域特征。上汽集团作为中国最大的汽车工业企业,正处于向全球布局、跨国经营、具有国际竞争力和品牌影响力的世界著名汽车公司的转型发展过程中。位于长风生态商务区的尚鸿商务中心项目将以汽车消费和汽车品牌文化为核心,围绕上汽自身需求,致力于塑造现代汽车服务企业的总部经济集聚地,现代汽车服务产业新技术、新知识和领军人才集聚高地,以及汽车服务产业新业务示范和体验的领先基地。本项目突出节能、绿色、环保、智能的设计理念,是上汽集团第一个绿色建筑三星和LEED金双认证项目。
The Changfeng Ecological Business District is located in the southern part of Shanghai’s Putuo District, between the Inner Ring and Middle Ring roads, along the northern bank of Suzhou Creek. Formerly known as the Beixinjing Industrial Area, it is a model for the successful transformation of Shanghai’s old industrial zones and one of the city’s first key areas to promote modern service industry clusters. The district has begun to develop characteristics of an open & service-oriented, headquarters-intensive, and eco-friendly area. The Shanghai Automotive Industry Corporation (SAIC Motor), China’s largest automotive enterprise, is currently undergoing a transformation to become a globally recognized automotive company with international competitiveness and brand influence. The Shanghong Business Center project, located in the Changfeng Ecological Business District, will focus on automotive consumption and brand culture, aiming to create a headquarters cluster for modern automotive service enterprises, a hub for new technologies, knowledge, and leading talents in the modern automotive service industry, as well as a leading base for the demonstration and experience of new automotive service businesses. The project emphasizes energy-saving, green, environmentally friendly, and intelligent design concepts and is SAIC’s first project to achieve both China’s Three-Star Green Building and LEED Gold certifications.
▼北侧街景,street view from the north side

场地概况Site Overview
项目基地位于丹巴路以东,云岭东路以北,东邻华师大四附中,北靠庆隆长风住宅项目沁和园,是长风生态商务区的西南门户节点。基地前身是1958年迁址于此的华丰钢铁厂,1965年该厂由上海市冶金局划归上海市机电一局农机公司(上汽集团前身)正式进军汽车行业。1992年华丰厂与上海压铸厂合并成立上海有色铸造总长,2001年上汽集团在华丰厂基础上合资成立上海皮尔博格有色零部件有限公司,并于2010年告别云岭东路厂区搬迁至嘉定,原有厂区经城市更新规划调整确定为商务、商业、文化混合用地。基地周边公共交通便利,教育、科研、文教、医疗及商业设施都较为充足。场地绿化景观资源丰富,北、东、南三面都被30-50米宽的绿带环绕,西侧隔路邻近城市公园。
▼大区位图,master location plan

▼小区位图,site location plan

The project site is located east of Danba Road and north of Yunling East Road, forming the southwestern gateway to the Changfeng Ecological Business District. The site was formerly home to the Huafeng Ironworks, relocated here in 1958. In 1965, the factory was transferred from the Shanghai Metallurgical Bureau to the Agricultural Machinery Company of the Shanghai Municipal Bureau of Machinery and Electronics (the predecessor of SAIC) and officially entered the automotive industry. In 1992, Huafeng merged with the Shanghai Die Casting Plant to form the Shanghai Nonferrous Foundry Corporation. In 2001, SAIC, based on Huafeng, formed a joint venture named Kolbenschmidt Pierburg Shanghai Nonferrous Components Co., Ltd., which bid farewell to the Yunling east road factory and relocated to Jiading in 2010, and the former factory site was designated for mixed-use business, commercial, and cultural purposes as part of urban renewal planning. The site is well-connected by public transportation, with ample educational, research, cultural, medical, and commercial facilities nearby. The area is rich in greenery, surrounded by a 30-50m wide greenbelt on the north, east, and south sides, with a city park across the road to the west.
▼西南侧鸟瞰,aerial view from southwest

总体布局Overall Disposition
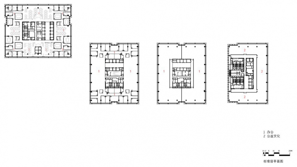
为了凸显上汽集团汽车服务业务的示范性、体验性和品牌性,我们在场地西南角临十字路口公众可达性最好的位置布置了一栋4层高方形体量的上汽品牌中心,并以此为关节点沿南侧和西侧道路呈L形布置四栋56米高的塔楼。这样的布局让四栋塔楼尽量远离北侧住宅区,与其之间留出大面积的共享花园空间,在解决日照影响的同时,保障了各自的私密要求与景观视野。品牌中心(A4楼)北侧的A1楼、以及东侧的A2、A3楼这三栋是商务办公主楼,它们通过相互之间的两层通高连接体在底部联成一体。底层除门厅外布置配套会议中心、文创商业,二层布置健身中心、后勤及物业部门。最东侧的B楼相对独立、作为还建地方政府的公益文化设施。建筑群沿云岭东路自西向东260米一气呵成展开,衬着50 米宽的城市绿带,向城市展示了一个兼具公共性和地标性的汽车文化界面。
▼轴测图,axonometric drawing

To highlight the demonstrative, experiential, and branding aspects of SAIC’s automotive services, a four-stories SAIC Brand Center is positioned at the southwestern corner near the crossroads, where it enjoys the best public accessibility. Four 56m-high towers are arranged in an L-shape along the southern and western roads, with this brand center serving as a joint point. This layout keeps the towers as far as possible from the northern residential area, leaving a large shared garden space in between to mitigate sunlight impact while ensuring privacy and scenic views. The three main office towers, A1 (to the north of the Brand Center A4), A2, and A3 (to the east), are interconnected each other at the bottom by some two-stories all-high linking structures. Except for the entrance hall, the ground floor houses supporting facilities like conference center, cultural and creative retail spaces. The second floor includes a fitness center, logistics and property departments. The relatively independent Building B, located to the east, serves as a public cultural facility for the local government. The building complex stretches 260m along Yunling East Road, facing a 50m-wide urban greenbelt, presenting a public and iconic automotive culture interface to the city.
▼东北侧鸟瞰,aerial view from northeast

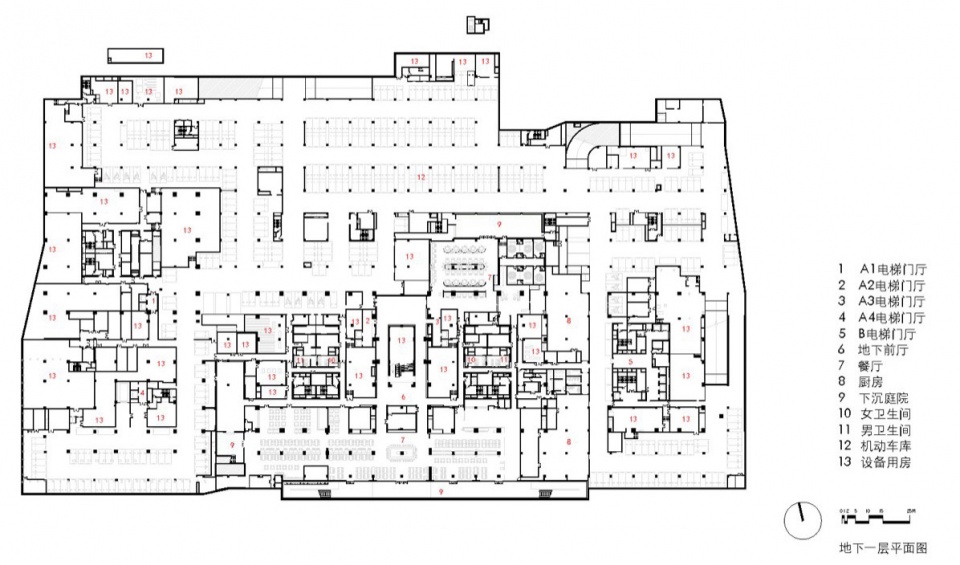
四栋塔楼都设置场地内外两侧双入口,面对内侧花园临内部车道是车行下客入口,面对外侧街道是人行入口。其中A1是朝东的独立专用车行入口,A2、A3合用一个朝北的车行入口,这两个入口内是贯通这三栋楼、总长195米的两层通高公共门厅,内部分为五段,其中三段是三栋塔楼电梯厅外对应的前厅,两段是三栋塔楼间的连接空间。A1、A2间的连接体向西向南延伸,同时连接了A4品牌中心,其中向西延伸部分成为A1面向丹巴路的人行入口,向南延伸部分是夹在A2和A4之间的400座会议厅。A2、A3间的连接体向南延展直至面向云岭东路的人行入口,成为贯穿南北、带有北向高侧天窗的高敞大厅,并有扶梯通向地下一层员工餐厅。
▼功能构成,function composition

The four towers are designed with dual entrances on both the inner and outer sides of the site. The inner entrances face the garden and connect to the internal driveway for vehicular drop-off, while the outer entrances face the street for pedestrian access. The A1 tower features an independent, dedicated vehicular entrance facing east. Towers A2 and A3 share a north-facing vehicular entrance. Inside, this entrance leads to a two-story-high public lobby that connects the three towers over a total length of 195m. The lobby is divided into five sections: three sections serve as the foyer outside the elevator lobbies of each tower, and the remaining two sections provide connecting spaces between the towers. The linking structure between A1 and A2 extends westward and southward, connecting to the A4 Brand Center. The westward extension forms the pedestrian entrance facing Danba Road, while the southward extension houses a 400-seat conference hall between A2 and A4. The link between A2 and A3 extends south to the pedestrian entrance facing Yunling East Road, forming a spacious north-south hall with a series of high northern clerestory and an escalator leading to the basement-level staff cafeteria.
▼L 形布置四栋塔楼,L-shaped four towers

▼东侧立面鸟瞰,aerial view of east elevation

立面设计Façade Design
立面设计回应上汽集团的品牌定位及汽车工业的美学特质,塑造项目整体简约理性、雅致精密、又富于视觉冲击力的气质。三栋办公主楼的南北主立面上设置竖向凹槽将单栋塔楼调适为两片板状体量微挑于首二层以上、与凹槽相夹的三明治状态,使塔楼在保证楼层使用进深的前提下在视觉上显得相对更为修长,并用两种幕墙类型来分别定义板状体量和凹槽这两部分的外立面。对于作为代表项目形象识别度的板状体量部分,我们采用了带有半层高横向外突石材遮阳格构的水平长窗带和铝质窗间墙带竖向虚实交替的系统,形成富于韵律感的光影效果。石材格构的外缘端部居中嵌入铜色铝材凹槽,让格构更显精致细腻。
The façade design reflects SAIC’s brand positioning and the aesthetic qualities of the automotive industry, giving the project an overall look that is minimalist and rational, elegant and precise, and visually striking. The main office towers feature vertical grooves on the north and south façades, creating the appearance of two slab-like volumes that overhang slightly outward above the first two levels, forming a “sandwich” effect with the grooves in between. This approach maintains the usable depth of each floor while visually elongating the towers. Two types of curtain walls are used to define the slab volumes and grooves respectively. For the slab-shaped volume representing the project’s iconic identity, we adopted a system with half-story-high protruding stone sunshades horizontal lattice, featuring a vertical alternating of horizontal strip windows and aluminum spandrels belt. This creates a rhythmic interplay of light and shadow. The outer edges of the stone lattice are embedded with copper-colored aluminum grooves at the center, adding a touch of refinement and delicacy.
▼东南侧街景,street view from southeast

窗带采用高强度的原产旭格窗系统,单块固定扇达到6平米,形成室内无遮拦的超宽横屏城市景观视野。窗间墙带部分采用了仿铜金属漆质感的内凹弧形铝型材拼接,在光影变化下展现出汽车工艺般的美感。塔楼竖向凹槽延续到塔楼首二层立面是带有两层高竖向石材格构的玻璃幕墙,比板状体量更轻盈通透,格构做法与板状体量的横向格构相同。A1楼车行入口上方设有大尺度出挑的铜色铝板宽大雨棚,底面配有发光顶棚。三栋主楼及品牌中心之间的两处连接体由带有铜色铝板挑檐雨棚的通高全玻幕墙维护,形成整个项目中最通透的部分。作为文化配套的B楼标准层相对最小,形体处理呼应内部偏心核心筒布置,形成西侧的竖向格构玻璃幕墙体量与东侧微凸的横向格构窗带-铝板带体量互相咬合的效果。
The window strips use high-strength original Schüco systems, with each fixed glass panel measuring up to 6m2, providing an unobstructed panoramic city view. The spandrel sections are made from recessed, curved aluminum profiles with a copper metallic finish, evoking the beauty of automotive craftsmanship under varying light conditions. The vertical grooves of towers continue down to the first two levels, where they are clad in glass curtain walls with two-story-high stone vertical lattice, giving a lighter and more transparent appearance than the slab volumes. The detailing of this lattice is consistent with the horizontal lattice of slab volumes. A large copper-colored aluminum canopy with an luminous ceiling extends above the drop-off entrance of Tower A1. The two connecting structures between the main office towers and the brand center feature floor-to-ceiling glass curtain walls with canopies of copper-colored aluminum, creating the most transparent areas of the project. Building B, serving as a cultural facility, has the smallest standard floor size and an asymmetric core arrangement, resulting in an interlocking effect between the vertical glass curtain wall on the west side and the slightly protruding slab volume with horizontal lattice of windows and aluminum spandrels on the east.
▼南侧街景(冬日),street view from south side (winter)

▼A4 栋西南侧内部,interior of southwest A4 building

品牌中心是整个项目的立面处理中最特殊的部分,我们用一个上下通高的密集石材柱廊构架形成品牌中心南、西两边面对城市的开放界面,既调节了它与项目整体的比例及尺度关系,又凸显了其作为项目整体空间关节点的应有形象。柱廊内是分层错叠咬合穿插的盒子体量,形成丰富的退台与悬挑空间。这些盒体分为由弧形铜色穿孔铝板单元包裹的半透明双层幕墙盒子和透明的单层玻璃幕墙盒子两种类型,并兼容了内部两个上下错位的双层通高空间。
The Brand Center has the most distinctive façade treatment in the project. A colonnade of densely spaced stone columns spans its south and west sides, forming an open urban interface that adjusts the building’s scale relative to the rest of the project while emphasizing its role as a spatial joint node. Inside the colonnade, stacked and interlocking box volumes create a variety of terraces and cantilevered spaces. These boxes consist of two types: semi translucent double-layer curtain walls clad in curved copper-colored perforated aluminum panels, and transparent single-layer glass curtain walls, accommodating two vertically offset double-height interior spaces.
▼A1 栋北侧,north side of A1 building

▼A1 栋东侧入口,east entrance of A1 building

▼局部,partial view


景观设计Landscape Design
景观设计充分融合了生态可持续和城市共享的理念,建筑组群和南、北、东三面的绿化带、花园和开放空间形成有机的整体,创造建筑、城市与环境的和谐共生。建筑组群南北两个长边的硬质铺装消防场地外侧都设置了向内跌落的线形跌水景观,既作为建筑各主要入口前区的对景屏障,又作为与外侧绿化景观区域的过度。南侧跌水与消防场地间设置通长线形下称庭院为地下一层的员工餐厅提供自然采光与通风,并让跌水一直延续到下沉花园底部水池。
The landscape design seamlessly integrates the concepts of ecological sustainability and urban sharing, creating a harmonious relationship between the building complex, the green belts and the surrounding gardens and open spaces on the south, north, and east sides. These elements form a cohesive whole that promotes the symbiosis of architecture, city, and environment. The outer edges of the hard-paved fire access areas along the northern and southern sides of the complex feature linear cascading water, which serve as visual barriers in front of the main building entrances while also providing a transition to the adjacent green landscape areas. The southern cascade incorporates a linear sunken courtyard that provides natural light and ventilation to the underground staff cafeteria on the basement level, with the cascading water flowing down into the pool at the bottom.
▼西南侧街景,street view from southwest

南区跌水外侧绿化带的主体是带有稀树的生态草原,而在品牌中心南侧则是适合举行各种活动的大草坪。生态草原区由本地耐寒植被组成,包括榉树、银杏、柳枝稷、千鸟花、金鸡菊、羽毛草等,具备低维护需求,能有效减少水资源的消耗,并提供栖息地支持本地生物多样性。
The green belt outside the southern cascade is mainly composed of an ecological meadow with scattered trees, while the area south of the Brand Center is a large lawn suitable for various events. The ecological meadow consists of local hardy plants, including zelkova, ginkgo, switchgrass, gaura, coreopsis, and feather grass, which require minimal maintenance, help reduce water consumption, and support local biodiversity by providing habitats.
▼南侧街景,street view from south side

北区跌水外侧的花园是以本地树种生态混合林和湿地为主的休憩漫游景观,错落有致地种植了栾树、朴树、榉树、白玉兰、枫树、樱花、海棠、桂花、杜鹃、鸢尾等。大树撑起绿荫,注重四季花与叶的色相变化;灌木既丰富林层结构,也与林间湿地一起为野生动物提供栖息之所和食物来源。
The garden outside the northern cascade is a leisure and strolling landscape dominated by a mixed forest of local tree species and wetland areas. It features an eclectic mix of koelreuteria paniculata, hackberry, zelkova, magnolia, maple, cherry blossom, crabapple, sweet osmanthus, azalea, and iris. The tall trees provide shade, emphasizing the seasonal color changes of flowers and leaves. The shrubs not only enrich the forest’s layered structure but also, together with the woodland wetlands, provide habitat and food sources for wildlife.
▼西侧街景,street view from west side

生态草原,生态混合林和湿地,是不同的生态景观类型,但它们都对丰富城市中的生物多样性、调节气候、涵养水源等有非常积极的作用。南北两区的景观相互依存,共同营造丰富多样、充满生机且优美动人的生态系统,也体现了企业对环境保护和可持续发展的承诺和永续形象。
Although the ecological meadow and the mixed forest with wetland represent different types of ecological landscapes, they both play crucial roles in enhancing urban biodiversity, regulating the microclimate, and conserving water resources. The northern and southern landscape areas are interdependent, together creating a vibrant and beautiful ecosystem that reflects the client’s commitment to environmental protection and sustainable development.
▼下沉庭院,sunken courtyard

北侧花园内跌水结构下部空间及园内草坪设置了开放式会议区、休闲放松区和运动场地等的多样设施,不仅服务于园区内部,也与周边社区及城市保持开放共享,这增强了企业与城市的互动。
The northern garden also includes various facilities such as open-air meeting spaces, relaxation areas, and sports fields located within the grassy areas and beneath the water cascading structures. These amenities not only serve the internal community of the business park but are also open to the surrounding neighborhoods and the city, fostering interaction between the client and the urban environment.
▼A4 栋西南侧,southwest side of A4 building

▼A4 栋东侧,east side of A4 building

▼A4 栋南侧,south side of A4 building

室内设计Interior Design
室内设计立足展现品牌形象,融合了当代工艺美学,以及功能性与艺术性的高度平衡。底层门厅作为室内最重要的空间,延续外部建筑用材至室内一体成型,展现简约大器的整体特质,不仅体现接待区的氛围,并通过对于上汽品牌元素的融合兼容了品牌展示的需要。
The interior design aims to showcase the brand’s image, blending contemporary craftsmanship aesthetics with a high balance between functionality and artistry. The ground floor lobby, as the most important interior space, continues the use of exterior building materials to create a seamless integration, reflecting a simplicity and gracefulness. It not only establishes the atmosphere of the reception area but also accommodates brand display needs by incorporating elements of SAIC’s identity.
▼A1 大堂,A1 lobby

▼A1 大堂通往 A2A3 公共门厅,A1 lobby to A2A3 public foyer

▼A1A2 共享大厅及报告厅,A1A2 shared hall & auditorium

▼A2 大堂,A2 lobby

▼A2A3 贯穿南北的共享大堂,A2A3 north-south shared lobby

▼共享大堂看向 A2 大堂,view from shared lobby to A2 lobby

▼A4 文化中心大堂,A4 cultural center lobby

▼A2A3 共享大厅,A2A3 shared hall

室内注重多功能性和弹性使用,无论是访客、员工还是举办活动,都能适时依需求选择空间。会议室设计灵活多变,从小型会议到大型活动,可以根据所需进行灵活配置。同时,休息区也兼顾了舒适性和实用性,在工作之余可以尽情放松。结合外立面的大面积水平窗带设计,利用光线与室内植物改善大进深室内办公空间使用体验,营造和谐且舒适的工作环境。材料与细节的设计展现上汽集团对品质的追求和对工艺的关注,也充分考虑环保和可持续性,符合现代企业的社会责任。
The interior emphasizes multifunctionality and flexibility, catering to various needs for visitors, employees, and events. The meeting rooms are designed to be versatile, allowing for configurations that range from small meetings to large events. The relaxation areas prioritize comfort and practicality, offering spaces for unwinding during breaks. The design takes advantage of the large horizontal strip windows on the façade, using natural light and indoor plants to enhance the experience in deep-plan office spaces, creating a harmonious and comfortable working environment. Material and detail choices reflect SAIC’s commitment to quality and attention to craftsmanship while considering environmental friendliness and sustainability. This approach aligns with the social responsibility of modern enterprises.
▼地下一层前厅,lobby on basement floor

▼电梯厅,elevator hall

▼总平,master plan

▼一层平面图,first floor plan

▼二层平面图,second floor plan

▼标准层平面图,typical floor plan

▼屋顶层平面图,roof floor plan

▼地下一层平面图,basement floor plan

▼北立面图,north elevation

▼南立面图,south elevation

▼东立面图,east elevation

▼西立面图,west elevation

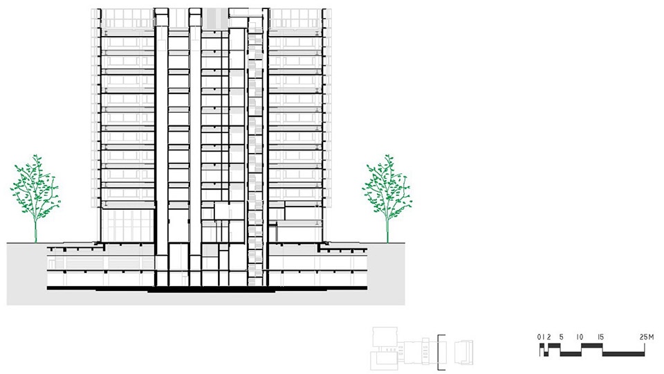
▼剖面 1,section 1

▼剖面 2,section 2

▼剖面 3,section 3

▼节点 1 模型图,node 1 model

▼节点 1 详图,node 1 detail

项目档案
Credits and Data
Project Name: Shanghong Business Center (Shanghai Modern Automobile Service Industry Agglomeration), Putuo, Shanghai
Architects: ZHOU Wei + ZHANG Bin / Atelier Z+
Partner in Charge: ZHANG Bin
Project Architect: LI Qin, WANG Weijie (Schematic Design, Developing Design, Construction Drawing Design), Wang Jiaqi (Landscape Design)
Architectural Design Team: HONG Kaiyue, LIU Xiaoman, LIAO Xuechen, LIANG Yifan, ZHANG Xun, HUANG Rongzheng, ZHA Dongni, Han Cheng, XU Yuxin, WANG Zhicong (Intern), LIU Xiaoyu (Intern), LU Yiyun(Intern), HAO Jing(Intern), LOU Liumeng(Intern), TANG Yun(Intern), HE Chenzhong(Intern), HE Cuiting(Intern)
Interior Consultant: YIYU Design / WANG Yuzhong, CHEN Penghui, LIU Zhongyang, WANG Zhihao, LIN Yusheng
Landscape Consultant: YIYU Design / LIN Yifeng, TIAN Yizheng, LI Jianjun, HUANG Wanzheng, Alex de Dios, HUANG Shenfei, SHEN Xue, WU Lijing
Curtain Wall Consultant: Shanghai Xima Engineering Consulting Co., Ltd / CAI Yidong, LI Gen, WU Shun
Lighting Consultant: Lighting Engineering Institute of Shanghai Tongji Architectural Interior Design Engineering Co., Ltd / YANG Xiu, LONG Ting, XIONG Qimin, HE Di
Interior Construction Drawing Design: Shanghai Tongji Architectural Interior Design Engineering Co., Ltd / ZHANG Xu, WANG Wenwu, TAN Kai, HUANG Hongbin, Chen Lujie
Design General Contractor: Tongji Architectural Design (Group) Co.,Ltd.
Project Leader: ZHANG Bin, ZENG Qun
Architecture: Professional Lead: ZHOU Wei, CHEN Kangquan, LAI Junheng
Design: LI Qin, HAN Peijing
Structure: Professional Lead: WAN Yuerong, HONG Wenming
Design: ZHONG Yuren, LI Xu, LI Zhenguo, DAI Jiaqi, DONG Yaomin,
JIA Guoqing, PEI Yingbo, GENg Liuxun
Power: Professional Lead: LIU Yi, SHAO Huaxia
Design: ZHU Qingqing
HVAC: Professional Lead: LIU Yi, SHAO Huaxia
Design: ZHU Qingqing, ZHOU Yi, WU Jiafei
Drainage: Professional Lead: WANG Wenqing
Design: WANG Wenqing
Strong Current: Professional Lead: WU Pan
Design: WU Pan, TANG Ping, WANG Ying, HU Zhuge, LIANG Fuzhu
Weak Current: Professional Lead: TANG Ping, XU Changhui
Design: TANG Ping, XU Changhui
Location: No.680 Yunling East Road, Putuo District, Shanghai, Northeast of the Intersection of Yunling East Road and Danba Road
Client: Shanghai Shanghong Real Estate Co., Ltd
Construction General Contractor: Shanghai Construction NO.2 (Group) Co., Ltd
Construction Subcontracting:
Curtain Wall: Wuhan Lingyun Building Decoration Engineering Co., Ltd
Jiangsu Hengshang Energy saving Technology Co., Ltd
Shanghai Bright Intelligent Curtain Wall Co., Ltd
Interior: Shanghai Building Decoration Engineering Group Co., Ltd
Floodlight: Shanghai Construction NO.1 (Group) Co., Ltd
Air Conditioner: Shanghai Construction NO.1 (Group) Co., Ltd
Fire Control: Shanghai Huanchuang Installation Engineering Group Co., Ltd
Weak Current: Shanghai Installation Engineering Group Co., Ltd
Landscape: Shanghai Garden (Group) Co., Ltd
Design Period: 03.2015-09.2022
Construction Period: 12.2016-12.2023
Site Area: 45,802m2
Building Area: 14,328m2
Gross Floor Area: 191,724 m2
Structure: Steel Frame+ Reinforced Concrete Core Tube Structure (Building A1, Building A2, Building A3, Building B), Steel Frame Structure (Building A4)
Building Story: 11 Stories above Ground, 3 Basements
Principal Use: Office, Culture and Creative Retail, Conference, Exhibition, Public Welfare Culture, Stuff Canteen
Primary Building Materials: Indian Blue Granite, Copper Colored Fluorocarbon Spray Pre-coated Aluminum Sheeting, Perforated Plate and Profile, Ultra Clear Glass, Schüco Window System, Brushed Stainless Steel
Primary Interior Materials: Leather Faced Indian Blue Granite (Wall), Smooth Indian Blue Granite (Ground), Fluorocarbon Spray Aluminum Sheeting, Grille, and Plate Expansion Mesh, Wood Grain Aluminum Sheeting, Resin Board, Hard Roll, Wood Veneer, Optical Filming, Woven Carpet, Anti Slip Floor Tiles
Primary Landscape Materials: Granite, Stone Slab, Plastic Wood, Pebble, Landscape Stone
Photography: Zystudio














