大塘屾月谷文旅度假景区,云南腾冲 / 重庆元道园林景观设计
项目背景|高黎贡山的风掠过千年林海 Project Background | The wind of Gaoligong Mountain sweeps through the thousand-year-old forest
大塘屾月谷位于云南腾冲市界头镇大塘村栗华山水库,是一处集自然风光与浪漫主题于一体的隐秘山谷,被誉为“高黎贡山深处的乌托邦”。当高黎贡山的风掠过千年林海,当山间的月光漫过澄澈湖面,屾月谷正以天地为媒,以万物为证,铺就一场属于世界的文旅盛宴。场地位于高黎贡山深处有一处被惊扰的原生水域,周边森林环绕,一片绿意盎然,湖面与蓝天白云相映,也是一处绝佳出片的宝藏之地!
▼现场踏勘,On-site survey


Datang Liyue Valley, located in Lihua Mountain Reservoir, Datang Village, Jietou Town, Tengchong City, Yunnan Province, is a secluded valley that combines natural scenery with romantic themes. It is known as the “utopia deep in Gaoligong Mountain”. When the wind of Gaoligong Mountain blows through the thousand-year-old forest, and when the moonlight of the mountains shines across the clear lake, Liyue Valley is using the sky and earth as a medium, and all things as a witness, to lay out a world-class cultural and tourism feast. The venue is located deep in the Gaoligong Mountains, where there is a disturbed native water area surrounded by lush forests. The lake reflects the blue sky and white clouds, creating a stunning scenery. It is also a treasure trove for excellent photography!
▼藏在世界级山脉下的神秘场地,Hidden site beneath a world-class mountain range

总体规划|自然馈赠与人文设计的共生共舞 Master Plan | Coexistence and Collaboration of Natural Gifts and Humanistic Design
屾月谷设计理念依托高黎贡山下的自然生态与田园风光,打造一个集自然观光、浪漫体验与休闲度假于一体的复合型农文旅空间。遵循 “主题化、场景化、生态化” 的原则,通过系统性景观规划,依托自然环境结合人文设计,打造一个兼具自然诗意、情感共鸣与多元休闲功能的秘境度假地。
▼屾月谷彩平,Colored master plan of Shunyue Valley

The design concept of Shun Yue Valley relies on the natural ecology and pastoral scenery beneath the Gaoligong Mountains, creating a comprehensive agricultural, cultural, and tourism space that integrates natural sightseeing, romantic experiences, and leisure vacation. Following the principles of “themation, scenization, and ecologization”, through systematic landscape planning, relying on the natural environment combined with humanistic design, it aims to create a secret resort that combines natural poetry, emotional resonance, and diverse leisure functions.
▼项目鸟瞰,Aerial view of the project


月湖教堂|爱如皎月,永恒澄明 Yuehu Church | Love like the bright moon, eternally clear
屾月谷首章是「月湖盟誓」的蓦然相认,设计师匠心独运,将场地水域巧妙重塑为一轮皎洁的月亮形态,融入大自然柔美形态,寓意永恒的爱意,周边设置生态树屋,夜幕降临时,可以望见平静的水面印着星光点点。周边种植红枫等红色系植物,进一步提升了场地的浪漫氛围。
The first chapter of the Moon Valley is the sudden recognition in the “Moon Lake Pledge”. The designer has ingeniously reshaped the water area of the venue into the shape of a bright moon, blending it with the gentle forms of nature, symbolizing eternal love. Ecological tree houses are set up around the area, and when night falls, one can see the calm water surface reflecting the twinkling stars. Red maple and other red plants are planted around, further enhancing the romantic atmosphere of the venue.
▼鸟瞰月湖景观,Yuehu landscape aerial view


▼生态木屋,Ecological wooden houses



▼生态木屋,Ecological wooden houses

白色教堂|光影寄情,纯粹相守 White Church | Emotions in Light and Shadow, Pure Companionship
白色教堂整体空间摒弃繁复装饰,以纯白色木构件为基础单元,通过简洁线条与规整结构勾勒出纯净通透的视觉轮廓,褪去世俗喧嚣,还原爱情本真的模样。自然光透过结构缝隙漫入室内,与柔和光影交织游走,在纯白空间里勾勒出温柔层次,让每一缕光线都成为见证爱意的媒介。
The overall space of the white church abandons complex decorations, using pure white wooden components as the basic unit. Through simple lines and neat structures, it outlines a pure and transparent visual contour, fading away from the hustle and bustle of the world and restoring the true appearance of love. Natural light penetrates into the interior through structural gaps, intertwining with soft shadows and creating gentle layers in the pure white space, making every ray of light a medium to witness love.
▼教堂外观,Church exterior

▼教堂外观,Church exterior

▼教堂内部,Church interior

▼教堂内部望向景观,Church interior towards landscape

白教堂在微光中静静伫立,纯白木质结构搭配自然花艺,像闯入北欧童话的殿堂,风里裹挟着草木与山间晨露的清甜,仿佛天地都在为爱情低语祝福。
The white church stands quietly in the dim light, its pure white wooden structure paired with natural floral arrangements, resembling a palace from a Nordic fairy tale. The wind carries the sweet scent of vegetation and mountain dew, as if the heavens and earth are whispering blessings for love.
▼教堂内部,Church interior

▼教堂内部,Church interior


时光之环|时光为誓,天地为鉴 Ring of Time | Time as a vow, heaven and earth as witnesses
在远离尘嚣的一隅,设计师巧妙地利用当地原石,融入了时间的轮回这一深邃理念,精心构筑起一个半开敞的空间,原石紧密堆砌,既保留了原始的粗犷与不规则,又通过艺术化的布局展现出一种和谐之美,形成了一道天然的屏障,在此许下的誓言,不被阴影笼罩,只被光明见证。
In a secluded corner far from the hustle and bustle, the designer cleverly utilized local raw stones, incorporating the profound concept of the cycle of time. With meticulous care, they constructed a semi-open space where the raw stones are closely stacked, retaining their original roughness and irregularity while exhibiting a harmonious beauty through artistic layout. This creates a natural barrier, where vows made are not shrouded in shadows but witnessed only by the light.
▼时光之环,Ring of Time




▼时光之环夜景,Ring of Time night view

无影塔|塔映山河,爱影相随 Shadowless Tower | The tower reflects the mountains and rivers, and love’s shadow follows
无影塔是湖畔最为浪漫的标志性存在,纯白的杆件构筑物与湖面遥相呼应,线条流畅而富有韵律感,在阳光的照耀下更显晶莹剔透,纯净无瑕。不仅展现了现代设计的简约美学,更蕴含了深刻的情感寓意,是屾月谷最佳打卡点,为恋人们定格爱的瞬间!
The Shadowless Tower stands as the most romantic landmark by the lakeside. Its pure white structure resonates with the lake, its sleek lines exuding a rhythmic beauty. Under the sun’s rays, it appears crystal clear and flawless, reflecting the simplicity and elegance of modern design. Moreover, it carries profound emotional significance, making it the perfect spot in Lanyue Valley for couples to capture their love moments!
▼无影塔景观,Shadowless Tower landscape


▼无影塔外观,Shadowless Tower exterior view



▼无影塔顶视,Shadowless Tower top view

▼无影塔外观近景,Shadowless Tower exterior close view


无影塔在诠释万物均始于一点之上做到了极致,通过以一种“最小单元竖向组合”的方式阐述。通过纯粹的而简单的源点构筑出无影虚无的精神空间,将整个场地穷途末路的境地巧妙转换。
The Shadowless Tower achieves the ultimate in interpreting that everything begins with a single point, through an approach of “vertical combination of minimal units”. It constructs a spiritual space of shadowless emptiness through pure and simple source points, cleverly transforming the entire site from a dead end.
▼无影塔内部,Shadowless Tower interior

杆件的落位:无影塔总高约13m。合理的布局:首层占地9m*2.3m,主体均30mm*30mm的竖向方管,按照间距为30mm组成,直冲缩小延伸至塔顶部。
Positioning of the rods: The total height of the shadowless tower is approximately 13 meters. Reasonable layout: The first floor covers an area of 9 meters by 2.3 meters, and the main body is composed of vertical square tubes with a uniform size of 30 millimeters by 30 millimeters, arranged at a spacing of 30 millimeters, extending straight up to the top of the tower.
▼无影塔细部,Shadowless Tower detail


林境草坪|绿茵为证,爱意绵长 Lawn in the Forest | With the green grass as a witness, our love endures
阳光穿透林海,在草坪上洒下斑驳光影,以高黎贡山连绵的群山为幕,以山间溪流为序,搭建起无界仪式区,脚下是青翠草坪,抬头是澄澈蓝天,远处是层峦叠嶂,每一缕风,都在传递爱意的绵长。
Sunlight pierces through the forest, casting dappled shadows on the lawn. With the rolling mountains of Gaoligong as a backdrop and the mountain streams as a sequence, a borderless ceremony area is set up. Beneath your feet lies a verdant lawn, above your head is a clear blue sky, and in the distance are layers upon layers of mountains. Every breeze carries the lingering message of love.
▼林境草坪,Lawn in the forest



秘境河谷|流水为弦,林间成曲 Secret Valley | Water as strings, forest as melody
河谷两岸林木葱茏,溪水潺潺流淌,设计遵循自然共生、场景共舞、意境共鸣三大原则,弱化建筑边界,让空间成为山水的延伸。顺应河谷地形与林相肌理,以流动曲线呼应水流韵律,用通透界面引天光、水景、林影入室,实现建筑与环境无界对话。
On both sides of the river valley, verdant forests stretch out, and the stream flows gently. The design follows three principles: natural symbiosis, scene interplay, and artistic resonance. It blurs the boundaries of the building, allowing the space to become an extension of the mountains and waters. Adapting to the terrain of the river valley and the texture of the forest, the design echoes the rhythm of the water flow with flowing curves. It uses transparent interfaces to bring natural light, water scenery, and forest shadows into the room, achieving a seamless dialogue between the building and the environment.
▼鸟瞰秘境河谷,Aerial view of Shunyue Valley

餐厅以建筑采用温润原木色调,弱化人工雕琢痕迹,让建筑如从林间自然生长而出,与山光水色温柔相融。同时室内延续古朴自然格调,以原生质感家具与质朴陈设铺陈空间,摒弃繁复装饰,还原自然本真肌理。
The restaurant’s architecture adopts a warm natural wood tone, minimizing the traces of artificial carving, making the building appear as if it has grown naturally from the forest, harmoniously blending with the mountain scenery and water colors. Meanwhile, the interior continues the quaint and natural style, with original texture furniture and rustic furnishings filling the space, abandoning complex decorations and restoring the natural texture.
▼屾月谷餐厅,Shunyue Valley restaurant

▼屾月谷餐厅近景,Shunyue Valley restaurant close view

▼屾月谷餐厅内部,Shunyue Valley restaurant interior view


溪谷图书馆设计巧妙运用框景手法,把奔腾不息的河流、灵动溪谷化作流动画卷,嵌入建筑与室内视野之中。人们静坐翻阅时,目光所及皆是山河意境,水声与翻页声相映成趣,自然的壮阔与文字的温润在此交融。
The design of the Xigu Library cleverly employs the technique of framing, transforming the ceaseless flowing river and the vibrant valley into a flowing scroll, seamlessly integrated into the architecture and indoor views. As people sit quietly and turn the pages, their gaze is filled with the artistic conception of mountains and rivers. The sound of water and the sound of turning pages complement each other, blending the magnificence of nature with the warmth of words.
▼秘境书吧,Secret valley book bar


于屾月谷,山为境,水为韵,天地共融。
以世界级秘境为基底,将自然与人文相融,把河谷的灵秀、山林的静谧,写进高黎贡山的岁月里。
建筑隐于自然,光影藏于溪涧,框景入怀,原木栖心,书香伴流水,烟火慰风尘。
从此,山河辽阔为幕,人间烟火为序,
让每一段相遇与栖居,都在此间,归于圆满。
In the Valley of Sunshine, mountains form the scenery, water adds the charm, and heaven and earth blend together.
Based on the world-class hidden wonders, we integrate nature and culture, embodying the elegance of the river valley and the tranquility of the mountains in the annals of Gaoligong Mountain.
The architecture blends seamlessly into nature, with light and shadows hidden within the streams. The framed scenery embraces the heart, and the natural wood nourishes the soul. The fragrance of books accompanies the flowing water, while the warmth of smoke and fire soothes the weary traveler.
From then on, the vast mountains and rivers served as the backdrop, and the human world’s bustling life as the prelude,
Let every encounter and dwelling find its fulfillment here.
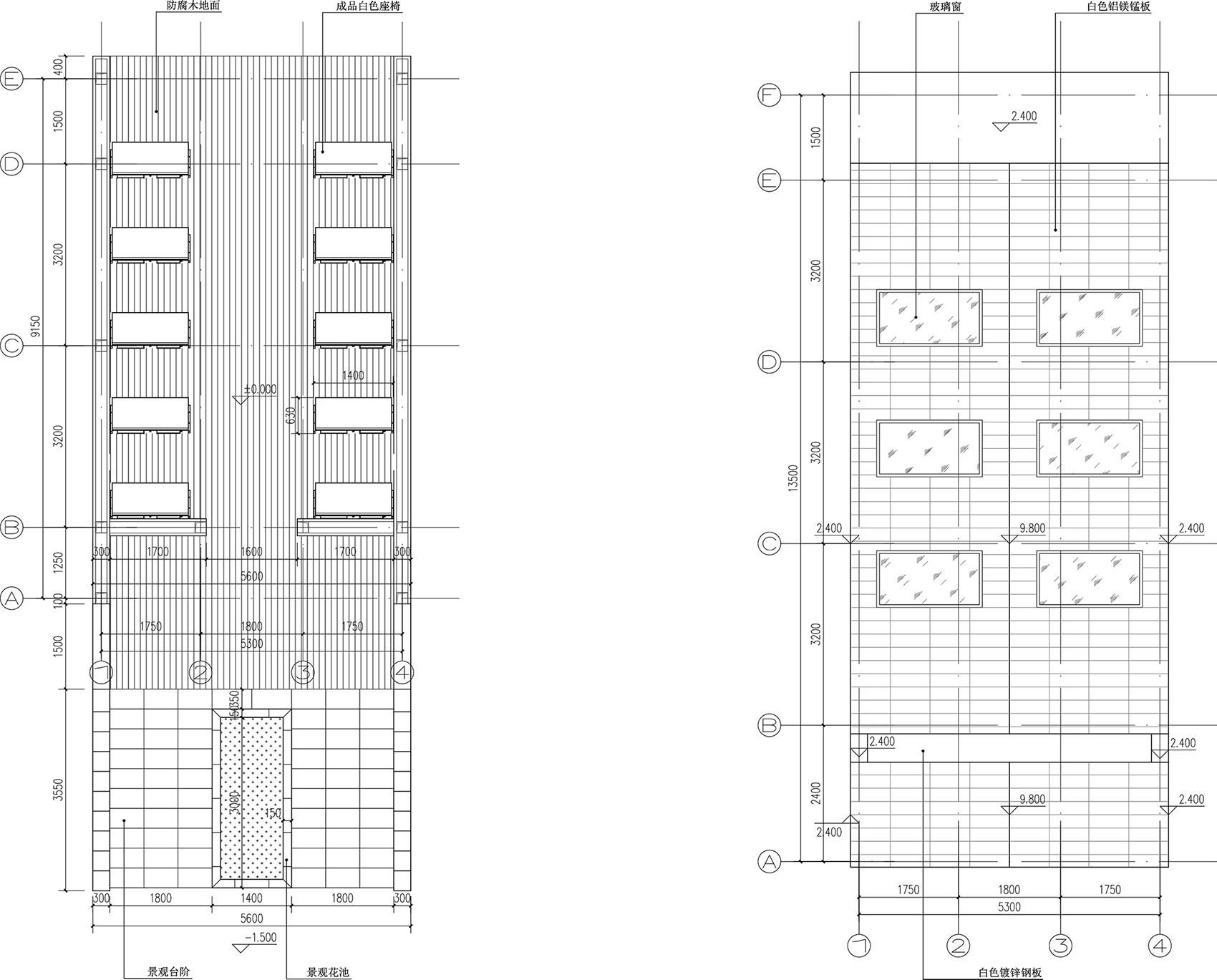
▼月湖教堂区域平面图,Yuehu Church area plan

▼月湖教堂平面图,Yuehu Church plan

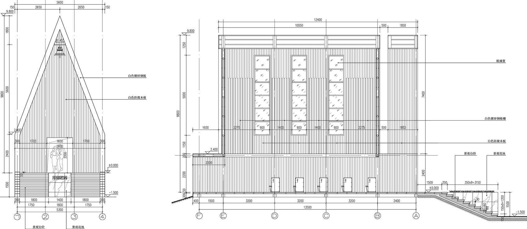
▼月湖教堂立面图,Yuehu Church elevation

▼无影塔区域平面图,Shadowless Tower area plan

▼无影塔平、立面图,Shadowless Tower plan and elevation

▼时光之环平面图,Ring of Time plan

▼时光之环立面图,Ring of Time elevation

Project Name: Datang Shenyuegu Cultural and Tourism Resort Scenic Area
Project type: Cultural tourism, waterfront spaces, leisure and entertainment
Designer: Chongqing Yuandao Landscape Design Co., Ltd
Contact email: 346200247@qq.com
Project design: 2024
Completion year: 2025
Design team: Wang Yu, Zhang Zongdi, Zheng Yali, Liu Beidi, Hou Hui, Xu Guilin, Cheng Jinglin, Wu Hongmei, Lan Yang, etc
Project location: Tengchong City, Yunnan Province
Building area: approximately 200,000 square meters
Photography copyright: Vano Space, Shi Feng, Wang Ying
Client: Tengchong Datan Mijing Tourism and Vacation Co., Ltd
Materials:Wood, metal, concrete, stone, glass














